安庆E网

搜索
查看: 6203|回复: 18

丹桂花园18栋复式楼设计方案及效果图

  [复制链接]

0

收听

1

听众

1209

帖子

未认证商家

注册时间
2010-3-4
精华
0
QQ
发表于 2010-11-3 09:52:38 | 显示全部楼层 |阅读模式
本帖最后由 满堂红装饰 于 2010-11-3 09:54 编辑

最近接了一套丹桂花园的房子,上一些方案图及效果图,欢迎同行指导。

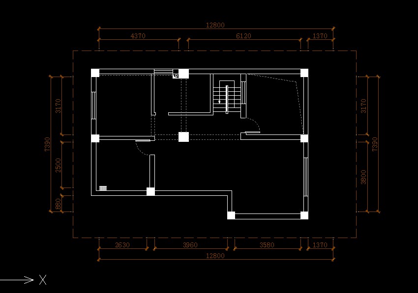
原始图1

原始图1

原始图2

原始图2

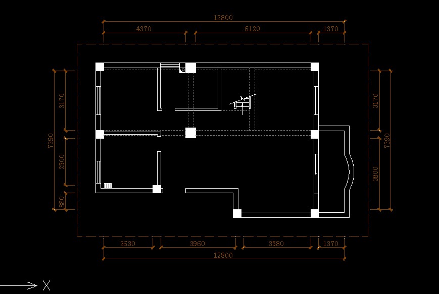
布置图1

布置图1

布置图2

布置图2

效果图1

效果图1

效果图2

效果图2

效果图3

效果图3
设计重实用、装修看做工。天宝新苑、金桂学府、碧桂园施工中,欢迎参观!光彩三期东四街88号1-3楼。0556-5175138,18655660988,13855674632
回复

使用道具 举报

0

收听

1

听众

144

帖子

E粉新星

注册时间
2010-8-12
精华
0
QQ
发表于 2010-11-6 20:21:15 | 显示全部楼层
兄弟,多世纪些地板啊,谢谢啦。帮你顶下{:9_492:}
菲林格尔地板    德国系  非凡家  舒怡国际家居二楼  0556-8881511
回复 支持 反对

使用道具 举报

0

收听

1

听众

1209

帖子

未认证商家

注册时间
2010-3-4
精华
0
QQ
 楼主| 发表于 2010-11-8 07:59:57 | 显示全部楼层
设计重实用、装修看做工。天宝新苑、金桂学府、碧桂园施工中,欢迎参观!光彩三期东四街88号1-3楼。0556-5175138,18655660988,13855674632
回复 支持 反对

使用道具 举报

0

收听

2

听众

193

帖子

E粉新星

注册时间
2007-12-11
精华
0
QQ
发表于 2010-11-8 11:07:04 | 显示全部楼层
/fig06/ 地面是什么东西?我建议你把餐桌横过来。。。{:9_504:}
设计  QQ:17903491  个人主页 http://aqts.china-designer.com
回复 支持 反对

使用道具 举报

0

收听

1

听众

1209

帖子

未认证商家

注册时间
2010-3-4
精华
0
QQ
 楼主| 发表于 2010-11-9 07:33:09 | 显示全部楼层
地面是实木地板,可能颜色有点失真,餐桌横过来,椅子靠着墙壁不是很好。谢谢你的建议。
设计重实用、装修看做工。天宝新苑、金桂学府、碧桂园施工中,欢迎参观!光彩三期东四街88号1-3楼。0556-5175138,18655660988,13855674632
回复 支持 反对

使用道具 举报

头像被屏蔽

1

收听

3

听众

785

帖子

禁止发言

注册时间
2010-11-2
精华
0

一切为了家。

QQ
发表于 2010-11-9 23:22:11 | 显示全部楼层
提示: 作者被禁止或删除 内容自动屏蔽
签名被屏蔽
回复 支持 反对

使用道具 举报

0

收听

1

听众

1209

帖子

未认证商家

注册时间
2010-3-4
精华
0
QQ
 楼主| 发表于 2010-11-10 07:19:29 | 显示全部楼层
回复 圣.保.罗.地.板 的帖子

我设计的是彩妆漆。
设计重实用、装修看做工。天宝新苑、金桂学府、碧桂园施工中,欢迎参观!光彩三期东四街88号1-3楼。0556-5175138,18655660988,13855674632
回复 支持 反对

使用道具 举报

头像被屏蔽

0

收听

1

听众

159

帖子

禁止访问

注册时间
2010-9-9
精华
0
QQ
发表于 2010-11-11 10:52:00 | 显示全部楼层
提示: 作者被禁止或删除 内容自动屏蔽
签名被屏蔽
回复 支持 反对

使用道具 举报

0

收听

1

听众

1209

帖子

未认证商家

注册时间
2010-3-4
精华
0
QQ
 楼主| 发表于 2010-11-12 14:12:32 | 显示全部楼层
设计重实用、装修看做工。天宝新苑、金桂学府、碧桂园施工中,欢迎参观!光彩三期东四街88号1-3楼。0556-5175138,18655660988,13855674632
回复 支持 反对

使用道具 举报

0

收听

1

听众

55

帖子

E粉新星

注册时间
2010-11-16
精华
0
QQ
发表于 2010-11-17 17:11:23 | 显示全部楼层
{:9_492:}{:9_492:}{:9_492:}
“涂”谋天下,共铸辉煌。
回复 支持 反对

使用道具 举报

0

收听

1

听众

1209

帖子

未认证商家

注册时间
2010-3-4
精华
0
QQ
 楼主| 发表于 2010-12-22 16:37:15 | 显示全部楼层
{:9_492:}{:9_492:}{:9_492:}{:9_492:}
设计重实用、装修看做工。天宝新苑、金桂学府、碧桂园施工中,欢迎参观!光彩三期东四街88号1-3楼。0556-5175138,18655660988,13855674632
回复 支持 反对

使用道具 举报

头像被屏蔽

0

收听

1

听众

594

帖子

禁止访问

注册时间
2009-3-12
精华
1
QQ
发表于 2010-12-22 20:20:49 | 显示全部楼层
提示: 作者被禁止或删除 内容自动屏蔽
签名被屏蔽
回复 支持 反对

使用道具 举报

0

收听

1

听众

1209

帖子

未认证商家

注册时间
2010-3-4
精华
0
QQ
 楼主| 发表于 2010-12-23 07:35:34 | 显示全部楼层
回复 懒人制造_ 的帖子

非常感谢你的建议。多谢指导!
设计重实用、装修看做工。天宝新苑、金桂学府、碧桂园施工中,欢迎参观!光彩三期东四街88号1-3楼。0556-5175138,18655660988,13855674632
回复 支持 反对

使用道具 举报

头像被屏蔽

0

收听

1

听众

521

帖子

禁止访问

注册时间
2007-2-9
精华
0
发表于 2010-12-27 09:27:58 | 显示全部楼层
提示: 作者被禁止或删除 内容自动屏蔽
回复 支持 反对

使用道具 举报

0

收听

1

听众

1209

帖子

未认证商家

注册时间
2010-3-4
精华
0
QQ
 楼主| 发表于 2010-12-29 15:55:21 | 显示全部楼层
回复 酸番茄 的帖子

你说的是设计的还是效果图的?
设计重实用、装修看做工。天宝新苑、金桂学府、碧桂园施工中,欢迎参观!光彩三期东四街88号1-3楼。0556-5175138,18655660988,13855674632
回复 支持 反对

使用道具 举报

0

收听

1

听众

918

帖子

E粉明星

注册时间
2007-4-5
精华
1
QQ
发表于 2010-12-30 19:17:06 | 显示全部楼层
很惨烈!很悲壮!太........的有才了~~~~~~~~~~~~~~
安庆市宏达装饰  左岸名居大门口  设计部主任
座机:5197333   手机:15856531039
回复 支持 反对

使用道具 举报

0

收听

1

听众

1209

帖子

未认证商家

注册时间
2010-3-4
精华
0
QQ
 楼主| 发表于 2010-12-31 08:03:48 | 显示全部楼层
回复 fangrui 的帖子

{:9_510:}{:9_488:}{:9_488:}{:9_488:}
设计重实用、装修看做工。天宝新苑、金桂学府、碧桂园施工中,欢迎参观!光彩三期东四街88号1-3楼。0556-5175138,18655660988,13855674632
回复 支持 反对

使用道具 举报

头像被屏蔽

0

收听

1

听众

27

帖子

禁止访问

注册时间
2010-12-16
精华
0
QQ
发表于 2011-1-3 10:58:36 | 显示全部楼层
提示: 作者被禁止或删除 内容自动屏蔽
回复 支持 反对

使用道具 举报

0

收听

1

听众

1209

帖子

未认证商家

注册时间
2010-3-4
精华
0
QQ
 楼主| 发表于 2011-1-18 15:39:32 | 显示全部楼层
本帖最后由 满堂红装饰 于 2011-1-18 15:43 编辑

{:9_492:}{:9_492:}{:9_492:}{:9_492:}


设计重实用、装修看做工。天宝新苑、金桂学府、碧桂园施工中,欢迎参观!光彩三期东四街88号1-3楼。0556-5175138,18655660988,13855674632
回复 支持 反对

使用道具 举报

您需要登录后才可以回帖 登录 | 注册

本版积分规则

联系合作|手机版|手机APP|Archiver|

GMT+8, 2025-12-10 16:39 Powered by Discuz! X3.4

安庆E网生活网站 © 2001-2013 Comsenz Inc. ( 皖ICP备05012696号 )

QQ

安庆瑞易文化 地址:华茂1958-C7栋 联系电话:0556-5306667 联系邮箱:17779721@qq.com 互联网违法和不良信息举报电话和邮箱:0556-5306667 17779721@qq.com

皖公网安备 34080002000101号

    
快速回复 返回顶部 返回列表