安庆E网

搜索
查看: 17200|回复: 85

[装修日记] 逸泉湾生活由此开始,装灯完毕!

  [复制链接]

0

收听

1

听众

98

帖子

E粉新星

注册时间
2009-4-11
精华
0
QQ
发表于 2011-8-4 13:05:50 | 显示全部楼层 |阅读模式
本帖最后由 村长无敌 于 2011-11-7 19:16 编辑

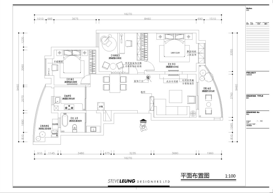
楼盘:逸泉湾      面积:120平米
经过一年的等待,7月1日钥匙终于拿到手了,但由于施工的师傅时间问题,装修的日子也延长了20多天……2011年7月26日,开工了!

当小区还没有装进户门的时候,我便开始找了设计师去量房设计(在此感谢你老马),然后便去市场上跑了跑材料,交房前一些基本都已定下来了,很是满意,希望效果会很好。
地板:久盛(强化地板) 满铺
瓷砖:简一陶瓷羊皮砖  (厨卫墙地)
卫浴洁具:浪鲸座便器、凯立隔断、帝谷橡木桶、帝谷橡木浴室柜、帕洛尼水槽、龙头、花洒(这个是网购的)
水管线管:伟星
开关插座:德力西


来,上图!

1.jpg
2.jpg

3.jpg

4.jpg

5.jpg


以上是咱家的设计图纸,有些个别的局部方案做了些修改,大致的设计保持不变,从设计效果上来说基本比较简约,我希望是打造一个清爽的环境,呵呵。

8月1日,水电结束,感谢董师傅,你很好,你也很坏!哈哈!
水电方面,PPR管和线管用的都是伟星的,质量上应该很不错,总之相信你了!

6.jpg

7.jpg

8.jpg

9.jpg

9月4日,木工结束了!他们是艺术家!
这次装修我对木工师傅的手艺相当满意,当然也少不了我天天陪伴的功劳,呵呵有点自吹自擂了,玩笑了。谈上正话题。装修前本想家里的大部分家具本买成品的,但为了凑上完美的尺寸和考虑到成本的因素,还是请木工师傅打了不少,分别是两个房间的衣柜、飘窗地柜、写字台,书房里的书柜、榻榻米、吊柜,客厅的电视柜和鞋柜,还有吊顶,这里还是要感谢下设计师老马同志和我(再次自吹自擂一次),有了他和我设计的尺寸,给木工师傅带来了不少的方便。
下面我来简介一下:
衣柜:大部分人都采用杉木集成板制作衣柜,个人觉得,杉木集成板环保性能不错,这是其他板材所不能比的,但有也有缺陷就是容易变形,防虫防潮较差,所以我不太想看到未来几年后,看见衣柜这里凹一块,那里凸一块。因此,我选择了好些的木工板代替它,这样牢固度上提高了不少,也不太会容易变形。而在内板面上,采用的是贴波音软片,柜内配上了格子抽,成品裤抽,铝制亮光封边条封边,整体效果看上去相当满意!
飘窗地柜:这一块,是我垂涎已久的地方,呵呵,理智的背后,哥也有感性的一面,早想家里有一个飘窗地台可以在冬天用来晒太阳,看书,喝咖啡……(自己听着都慎得慌,我不喝咖啡)。这个地柜充分考虑到了储物,休闲的特点,坚持实用原则,四抽两门,少不了放多多的东西!
小房间写字台:这个桌面是在小房间,未来是宝宝的房间。特意打了一个简单的写字台,桌面和那个飘窗地柜尺寸差的不太多,桌面挺大的。配了两个小抽屉和一个键盘抽。
书柜:简单大气是特点!哈哈,两扇长门和两个宽的抽屉!看上去的确挺简约的!门内镶上茶镜,配上成体的白色浑水漆,很漂亮!
榻榻米和吊柜:简单的长条行的榻榻米,高度35cm,宽85cm,面上安装地板,侧面4个大抽屉!继续秉承实用原则!休闲储物两不误!
电视柜:师傅是照着效果图打的,尺寸比例稍作修改,制作速度惊人,半天功夫就出来了!很是牛X!等会上图看!
鞋柜:这个鞋柜也是后来补上来的!选自网络,在这里,感谢社会的发展!网络造就美好生活!
9月13日瓦工还有 一天就结束了,恩。。。关于这次选购厨卫及阳台瓷砖,我们跑了好多家店。。。最终选择了简一陶瓷。店主很专业,不仅带我们看了适合咱家风格的砖,还亲自给我做了一套完整的设计方案,这是最吸引我们的地方。。。我承认我被“忽悠”到了,但是效果却没有“忽悠”我们。在这里感谢一下店主。。
今天休息,明日上图!大家记得都来看啊~~

2011年9月14日  瓦工结束了! 感谢吴师傅! 今天特来上图!
客厅部分
b.jpg

T.jpg

a.jpg

U.jpg

c.jpg

D.jpg

V.jpg


卧室部分
F.jpg 主卧衣柜

K.jpg 次卧衣柜

E.jpg 主卧飘窗地柜

L.jpg 次卧写字台



书房部分

J.jpg 书柜

H.jpg 书房吊柜

I.jpg

G.jpg

厨房部分

M.jpg

N.jpg

O.jpg


卫生间部分

P.jpg

Q.jpg

R.jpg


S.jpg 卫生间隔断大理石地基

橱柜安装完毕!上图!

我家的墙砖和柜体颜色真是很像啊  呵呵

2222222222.jpg                   11111111.jpg                bbbbbbbbbbbb.jpg

11.6日,浴桶、浴室柜到家了!花洒、龙头也一并安装,很OK! 师傅说这个花洒、龙头还不错,分量挺足的,问了我价格,有点吓坏了,呵呵,淘宝上淘的,厂家直接拿货,的确很便宜。上个图看看!

qqqqqqqqq.jpg          ssssssssss.jpg     mmmmmmmmmmm.jpg

11.7日,今天大部分灯具安装完毕,但还是有些小插曲,T5灯带颜色有一半发错了,联系了灯具店,等安装客厅水晶灯的时候一起换上。

儿童房吸顶灯
ccccccccccccc.jpg


主卧吸顶灯
vvvvvvvvvvv.jpg    


餐厅吊灯(鸟巢灯)
zzzzzzzzzzzzzzz.jpg


客餐厅部分效果

assss.jpg


xxxxxxxxxxxxxxx.jpg


nnnnnnnnnnnnn.jpg

过两天,无框阳台,衣柜移门,卫生间隔断也要开始安装,回头上图哦……







需要做名片、优惠券、单页、卡片、不干胶等印刷业务可以联系我~电话:15856544658 QQ:1535782544 欢迎各位
回复

使用道具 举报

0

收听

3

听众

810

帖子

E粉明星

注册时间
2009-8-9
精华
0
QQ
发表于 2011-8-4 13:38:52 | 显示全部楼层
祝楼主开工大吉,装修顺利
回复 支持 反对

使用道具 举报

2

收听

3

听众

431

帖子

未认证商家

注册时间
2009-8-27
精华
0
发表于 2011-8-4 13:43:38 | 显示全部楼层
橱柜来我家看看.恭喜
光彩二期五区3栋28号
电话:5186192     13063281601
回复 支持 反对

使用道具 举报

头像被屏蔽

0

收听

1

听众

1509

帖子

禁止访问

注册时间
2011-4-26
精华
0
发表于 2011-8-4 13:46:10 | 显示全部楼层
提示: 作者被禁止或删除 内容自动屏蔽
签名被屏蔽
回复 支持 反对

使用道具 举报

0

收听

1

听众

78

帖子

贵宾E粉

注册时间
2010-10-13
精华
0
发表于 2011-8-4 13:54:13 | 显示全部楼层
大厅怎么不用瓷砖?
中源朗高瓷砖招聘业内精英
QQ:368362214
回复 支持 反对

使用道具 举报

头像被屏蔽

0

收听

14

听众

3527

帖子

禁止访问

注册时间
2010-6-17
精华
12
发表于 2011-8-4 14:40:30 | 显示全部楼层
提示: 作者被禁止或删除 内容自动屏蔽
签名被屏蔽
回复 支持 反对

使用道具 举报

1

收听

1

听众

962

帖子

认证商家

注册时间
2010-10-6
精华
0
发表于 2011-8-4 15:06:09 | 显示全部楼层
祝开工大吉!
1:旗舰店舒怡国际家居城2楼B区8028号

电话:13966907991
回复 支持 反对

使用道具 举报

1

收听

1

听众

962

帖子

认证商家

注册时间
2010-10-6
精华
0
发表于 2011-8-4 15:07:07 | 显示全部楼层
祝开工大吉!
1:旗舰店舒怡国际家居城2楼B区8028号

电话:13966907991
回复 支持 反对

使用道具 举报

3

收听

12

听众

2040

帖子

认证商家

注册时间
2009-5-5
精华
0
发表于 2011-8-4 15:19:23 | 显示全部楼层
谢谢您选用久盛地板!祝LZ装修顺利!
回复 支持 反对

使用道具 举报

0

收听

1

听众

98

帖子

E粉新星

注册时间
2009-4-11
精华
0
QQ
 楼主| 发表于 2011-8-4 19:08:30 | 显示全部楼层
hwit.net 发表于 2011-8-4 13:54
大厅怎么不用瓷砖?

我比较喜欢木质的感觉,呵呵
需要做名片、优惠券、单页、卡片、不干胶等印刷业务可以联系我~电话:15856544658 QQ:1535782544 欢迎各位
回复 支持 反对

使用道具 举报

0

收听

1

听众

98

帖子

E粉新星

注册时间
2009-4-11
精华
0
QQ
 楼主| 发表于 2011-8-4 19:09:43 | 显示全部楼层
正点哥 发表于 2011-8-4 14:40
楼主美好的新生活开始啦!

THANK U !
需要做名片、优惠券、单页、卡片、不干胶等印刷业务可以联系我~电话:15856544658 QQ:1535782544 欢迎各位
回复 支持 反对

使用道具 举报

0

收听

1

听众

98

帖子

E粉新星

注册时间
2009-4-11
精华
0
QQ
 楼主| 发表于 2011-8-4 19:11:00 | 显示全部楼层
安庆大维装饰 发表于 2011-8-4 13:38
祝楼主开工大吉,装修顺利

大维这里做了不少啊,也恭喜你们哈  呵呵
需要做名片、优惠券、单页、卡片、不干胶等印刷业务可以联系我~电话:15856544658 QQ:1535782544 欢迎各位
回复 支持 反对

使用道具 举报

头像被屏蔽

0

收听

5

听众

517

帖子

禁止访问

注册时间
2011-1-26
精华
0
发表于 2011-8-4 20:32:25 | 显示全部楼层
提示: 作者被禁止或删除 内容自动屏蔽
签名被屏蔽
回复 支持 反对

使用道具 举报

0

收听

2

听众

1191

帖子

E粉明星

注册时间
2008-4-30
精华
2
QQ
发表于 2011-8-4 22:06:37 | 显示全部楼层
祝楼主开工大吉!
回复 支持 反对

使用道具 举报

0

收听

1

听众

473

帖子

E粉明星

注册时间
2010-7-22
精华
0
QQ
发表于 2011-8-4 22:14:38 | 显示全部楼层
幸福生活由此开始!!祝楼主永远开心!!!!
樱花整体厨房安庆舒怡专卖店    18705564825    5228584       始创于1986年中国宝岛台湾
回复 支持 反对

使用道具 举报

头像被屏蔽

0

收听

1

听众

208

帖子

禁止访问

注册时间
2011-6-19
精华
0
发表于 2011-8-5 08:44:31 | 显示全部楼层
提示: 作者被禁止或删除 内容自动屏蔽
签名被屏蔽
回复 支持 反对

使用道具 举报

0

收听

2

听众

2877

帖子

未认证商家

注册时间
2010-7-27
精华
0
QQ
发表于 2011-8-5 08:45:10 | 显示全部楼层
恭喜恭喜,米琪手绘祝您:开工大吉!!
QQ 27284524 电话 13033191509
地址 安庆西湖绿洲城 影竹圆 1栋5单元401
回复 支持 反对

使用道具 举报

头像被屏蔽

0

收听

1

听众

738

帖子

禁止访问

注册时间
2009-12-8
精华
0
发表于 2011-8-5 08:52:46 | 显示全部楼层
提示: 作者被禁止或删除 内容自动屏蔽
签名被屏蔽
回复 支持 反对

使用道具 举报

0

收听

1

听众

535

帖子

E粉明星

注册时间
2010-8-9
精华
0
发表于 2011-8-5 09:33:26 | 显示全部楼层
祝楼主开工大吉! 需要整体衣柜以及移门方面的,可以到店里来看看啊,就在天柱山路上,呵呵。。。你们小区我们也做了几户了,欢迎参观比较。
地址:光彩二期天柱山路二区六栋21-23号  电话:5170360 5170361 13855600666 QQ:465165639
回复 支持 反对

使用道具 举报

0

收听

1

听众

98

帖子

E粉新星

注册时间
2009-4-11
精华
0
QQ
 楼主| 发表于 2011-8-5 11:10:11 | 显示全部楼层
活金炭雕 发表于 2011-8-5 08:52
恭喜村长!开工大吉!俺们一个村的,哈哈

你怎么知道我们一个村的?!!!
需要做名片、优惠券、单页、卡片、不干胶等印刷业务可以联系我~电话:15856544658 QQ:1535782544 欢迎各位
回复 支持 反对

使用道具 举报

0

收听

1

听众

98

帖子

E粉新星

注册时间
2009-4-11
精华
0
QQ
 楼主| 发表于 2011-8-5 11:11:30 | 显示全部楼层
伊特莱现代衣柜 发表于 2011-8-5 09:33
祝楼主开工大吉! 需要整体衣柜以及移门方面的,可以到店里来看看啊,就在天柱山路上,呵呵。。。你们小区我 ...

谢谢,只是按照方案,咱们家是木工打柜子
需要做名片、优惠券、单页、卡片、不干胶等印刷业务可以联系我~电话:15856544658 QQ:1535782544 欢迎各位
回复 支持 反对

使用道具 举报

0

收听

1

听众

211

帖子

E粉新星

注册时间
2011-4-10
精华
0
发表于 2011-8-5 13:08:44 | 显示全部楼层
祝LZ装修顺利!买集成吊顶到德莱宝集成吊顶
光彩四期B区3栋13号电话:13855694991。
回复 支持 反对

使用道具 举报

头像被屏蔽

0

收听

2

听众

939

帖子

禁止访问

注册时间
2008-10-4
精华
0
QQ
发表于 2011-8-5 13:31:33 | 显示全部楼层
提示: 作者被禁止或删除 内容自动屏蔽
签名被屏蔽
回复 支持 反对

使用道具 举报

2

收听

3

听众

216

帖子

E粉新星

注册时间
2011-6-1
精华
0
发表于 2011-8-5 22:47:20 | 显示全部楼层
效果图做的是很不错,,,顶一个,,要是书房墙上的壁纸款式再低调些会更好,,因为壁纸的花纹比较大,壁画的内容再夸大就有点宣缤得主了,,不能更清晰的表达主题了,,个人观点!!
永信家具集团中国十大板式家具品牌之一玉庭家具;地址:舒怡国际家居购物广场4楼:电话:8881772:18609661060
回复 支持 反对

使用道具 举报

0

收听

2

听众

2877

帖子

未认证商家

注册时间
2010-7-27
精华
0
QQ
发表于 2011-8-6 08:56:51 | 显示全部楼层
恭喜恭喜七夕快乐……
QQ 27284524 电话 13033191509
地址 安庆西湖绿洲城 影竹圆 1栋5单元401
回复 支持 反对

使用道具 举报

您需要登录后才可以回帖 登录 | 注册

本版积分规则

联系合作|手机版|手机APP|Archiver|

GMT+8, 2025-12-11 23:57 Powered by Discuz! X3.4

安庆E网生活网站 © 2001-2013 Comsenz Inc. ( 皖ICP备05012696号 )

QQ

安庆瑞易文化 地址:华茂1958-C7栋 联系电话:0556-5306667 联系邮箱:17779721@qq.com 互联网违法和不良信息举报电话和邮箱:0556-5306667 17779721@qq.com

皖公网安备 34080002000101号

    
快速回复 返回顶部 返回列表