安庆E网

搜索

[装修日记] 好吃鬼的三口之家(木、瓦工结束,上半成品)

  [复制链接]

1

收听

1

听众

307

帖子

E粉明星

注册时间
2009-3-5
精华
0
 楼主| 发表于 2011-11-9 19:55:02 | 显示全部楼层
玻璃啊,木雕啊。。各位谁有个意见啊。。

点评

我家也用的老周东阳木雕  发表于 2011-11-14 10:21
我家用的是老周东阳木雕  发表于 2011-11-10 10:43
幸福并不是通过别人来施舍的,而是靠自己去赢取别人对你的需求和喜爱。
回复 支持 反对

使用道具 举报

1

收听

29

听众

5108

帖子

E粉明星

注册时间
2011-6-11
精华
2
QQ
发表于 2011-11-9 20:12:33 | 显示全部楼层
霏凡家装监理 发表于 2011-11-9 19:29
我家也是与你家房形一样的复式楼,我后来让打孔师傅过来打了二个通风口,目前我入住这几年感觉效果不错 ...

我不知道你家是怎么样的房形,最好问一下你家的项目经理,打孔师傅的电话是:沈师傅:13955662103。
公司地址:菱湖南路汽运公司大院内(原汽车二连);联系电话:13855665657;QQ:876338500。
回复 支持 反对

使用道具 举报

0

收听

2

听众

1191

帖子

E粉明星

注册时间
2008-4-30
精华
2
QQ
发表于 2011-11-9 21:46:57 | 显示全部楼层
本帖最后由 东艺壁纸 于 2011-11-9 21:50 编辑

祝楼主装修顺利!


地址 :湖心南路年家居D区 2 号
电话:5218955
回复 支持 反对

使用道具 举报

9

收听

7

听众

1349

帖子

认证商家

注册时间
2011-11-6
精华
0
发表于 2011-11-9 23:17:31 | 显示全部楼层
祝装修一切顺利!
展厅地址:光彩国际家居博览中心一层61号
销售热线:8882250
客服热线:8882251
品鉴热线:13905569197   qq:2502490242
做适合中国人的厨房,您的满意是我们最高的荣誉[
回复 支持 反对

使用道具 举报

头像被屏蔽

0

收听

2

听众

619

帖子

禁止访问

注册时间
2010-8-31
精华
0
发表于 2011-11-10 07:54:18 | 显示全部楼层
提示: 作者被禁止或删除 内容自动屏蔽
回复 支持 反对

使用道具 举报

头像被屏蔽

0

收听

2

听众

619

帖子

禁止访问

注册时间
2010-8-31
精华
0
发表于 2011-11-10 07:57:39 | 显示全部楼层
提示: 作者被禁止或删除 内容自动屏蔽
回复 支持 反对

使用道具 举报

0

收听

5

听众

1646

帖子

E粉明星

注册时间
2008-2-29
精华
1
发表于 2011-11-10 10:42:42 | 显示全部楼层
`嘟嘟 发表于 2011-11-10 07:57
海大师,我们家阳台4点几个平方,防水的价格和卫生间是一样的。
小草,你说下你家阳台多少钱,我坐稳了,你 ...

从图上看LZ家顶层阳台那可大了去了最少二十好几平方吧
回复 支持 反对

使用道具 举报

1

收听

1

听众

307

帖子

E粉明星

注册时间
2009-3-5
精华
0
 楼主| 发表于 2011-11-10 12:11:20 | 显示全部楼层
对,我们家的阳台最少25个平方。。海大师果然眼力惊人。。
幸福并不是通过别人来施舍的,而是靠自己去赢取别人对你的需求和喜爱。
回复 支持 反对

使用道具 举报

1

收听

1

听众

307

帖子

E粉明星

注册时间
2009-3-5
精华
0
 楼主| 发表于 2011-11-10 12:12:05 | 显示全部楼层
嘟嘟,有些事情说出来,装饰公司在看着呢。。这到底是说还是不说呢。
幸福并不是通过别人来施舍的,而是靠自己去赢取别人对你的需求和喜爱。
回复 支持 反对

使用道具 举报

头像被屏蔽

0

收听

2

听众

619

帖子

禁止访问

注册时间
2010-8-31
精华
0
发表于 2011-11-10 14:32:22 | 显示全部楼层
提示: 作者被禁止或删除 内容自动屏蔽
回复 支持 反对

使用道具 举报

头像被屏蔽

0

收听

2

听众

619

帖子

禁止访问

注册时间
2010-8-31
精华
0
发表于 2011-11-10 14:32:54 | 显示全部楼层
提示: 作者被禁止或删除 内容自动屏蔽
回复 支持 反对

使用道具 举报

1

收听

1

听众

307

帖子

E粉明星

注册时间
2009-3-5
精华
0
 楼主| 发表于 2011-11-11 11:35:58 | 显示全部楼层
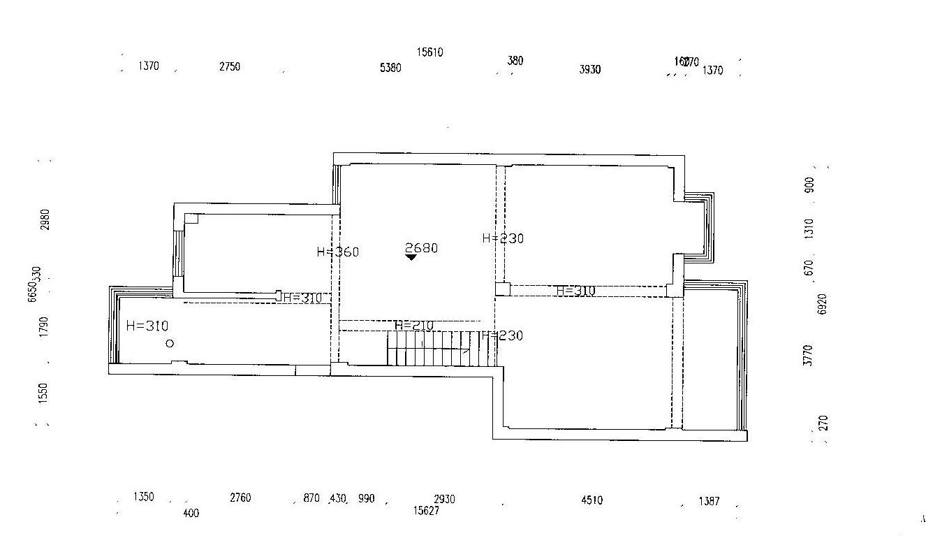
房子的图纸、。、
E1.jpg
幸福并不是通过别人来施舍的,而是靠自己去赢取别人对你的需求和喜爱。
回复 支持 反对

使用道具 举报

1

收听

1

听众

307

帖子

E粉明星

注册时间
2009-3-5
精华
0
 楼主| 发表于 2011-11-11 11:36:46 | 显示全部楼层
看的清楚吗各位,看不清楚就不传那么多了,看的清楚我就全部传了,24张呢。不小的工程。

点评

看不清楚  发表于 2011-11-11 11:39
幸福并不是通过别人来施舍的,而是靠自己去赢取别人对你的需求和喜爱。
回复 支持 反对

使用道具 举报

头像被屏蔽

0

收听

1

听众

172

帖子

禁止访问

注册时间
2011-9-26
精华
0
发表于 2011-11-11 15:12:45 | 显示全部楼层
提示: 作者被禁止或删除 内容自动屏蔽
回复 支持 反对

使用道具 举报

头像被屏蔽

0

收听

1

听众

172

帖子

禁止访问

注册时间
2011-9-26
精华
0
发表于 2011-11-13 13:29:25 | 显示全部楼层
提示: 作者被禁止或删除 内容自动屏蔽
回复 支持 反对

使用道具 举报

头像被屏蔽

0

收听

1

听众

172

帖子

禁止访问

注册时间
2011-9-26
精华
0
发表于 2011-11-14 10:09:04 | 显示全部楼层
提示: 作者被禁止或删除 内容自动屏蔽
回复 支持 反对

使用道具 举报

头像被屏蔽

0

收听

2

听众

917

帖子

禁止访问

注册时间
2011-9-12
精华
0
发表于 2011-11-14 10:23:36 | 显示全部楼层
提示: 作者被禁止或删除 内容自动屏蔽
签名被屏蔽
回复 支持 反对

使用道具 举报

头像被屏蔽

0

收听

1

听众

172

帖子

禁止访问

注册时间
2011-9-26
精华
0
发表于 2011-11-14 12:43:23 | 显示全部楼层
提示: 作者被禁止或删除 内容自动屏蔽
回复 支持 反对

使用道具 举报

头像被屏蔽

0

收听

1

听众

1259

帖子

禁止访问

注册时间
2011-3-29
精华
0
发表于 2011-11-14 16:38:12 | 显示全部楼层
提示: 作者被禁止或删除 内容自动屏蔽
签名被屏蔽
回复 支持 反对

使用道具 举报

1

收听

1

听众

307

帖子

E粉明星

注册时间
2009-3-5
精华
0
 楼主| 发表于 2011-11-14 19:42:59 | 显示全部楼层
打不死的小草 发表于 2011-11-9 19:55
玻璃啊,木雕啊。。各位谁有个意见啊。。

老周东阳木雕在哪里??地址?电话,随便给个吧。
幸福并不是通过别人来施舍的,而是靠自己去赢取别人对你的需求和喜爱。
回复 支持 反对

使用道具 举报

1

收听

1

听众

307

帖子

E粉明星

注册时间
2009-3-5
精华
0
 楼主| 发表于 2011-11-14 21:52:43 | 显示全部楼层
这两天实在太累了,在家里休息了两天,睡的昏天暗地的。。我还在呢。。小草是打不死的。。

点评

呵呵,装修的事情很杂很乱啊,头都大  发表于 2011-11-15 09:28
幸福并不是通过别人来施舍的,而是靠自己去赢取别人对你的需求和喜爱。
回复 支持 反对

使用道具 举报

1

收听

1

听众

307

帖子

E粉明星

注册时间
2009-3-5
精华
0
 楼主| 发表于 2011-11-14 21:55:53 | 显示全部楼层
现在一楼的进门玄关,以及二楼厕所的干湿分区的衔接,。重新设计了,明天上图纸。。这两天休息了,精神养好了,我们在来讨论房子的事情吧,这两天也没去工地,听说,开始贴地砖了,木工休息。。明天上图。
幸福并不是通过别人来施舍的,而是靠自己去赢取别人对你的需求和喜爱。
回复 支持 反对

使用道具 举报

头像被屏蔽

0

收听

2

听众

917

帖子

禁止访问

注册时间
2011-9-12
精华
0
发表于 2011-11-15 09:27:34 | 显示全部楼层
提示: 作者被禁止或删除 内容自动屏蔽
签名被屏蔽
回复 支持 反对

使用道具 举报

1

收听

1

听众

307

帖子

E粉明星

注册时间
2009-3-5
精华
0
 楼主| 发表于 2011-11-15 09:45:36 | 显示全部楼层
拉风哥真是太好了,去了直接说是拉风哥介绍来的,可以便宜点不、?
幸福并不是通过别人来施舍的,而是靠自己去赢取别人对你的需求和喜爱。
回复 支持 反对

使用道具 举报

1

收听

1

听众

307

帖子

E粉明星

注册时间
2009-3-5
精华
0
 楼主| 发表于 2011-11-15 09:46:38 | 显示全部楼层
还有,今天瓦匠说要买门槛石了,,哪些地方是集中卖大理石的??
幸福并不是通过别人来施舍的,而是靠自己去赢取别人对你的需求和喜爱。
回复 支持 反对

使用道具 举报

您需要登录后才可以回帖 登录 | 注册

本版积分规则

联系合作|手机版|手机APP|Archiver|

GMT+8, 2025-12-10 22:58 Powered by Discuz! X3.4

安庆E网生活网站 © 2001-2013 Comsenz Inc. ( 皖ICP备05012696号 )

QQ

安庆瑞易文化 地址:华茂1958-C7栋 联系电话:0556-5306667 联系邮箱:17779721@qq.com 互联网违法和不良信息举报电话和邮箱:0556-5306667 17779721@qq.com

皖公网安备 34080002000101号

    
快速回复 返回顶部 返回列表