安庆E网

搜索
楼主: 木娅

[装修日记] 写在装修4年后的感悟

  [复制链接]

2

收听

24

听众

1951

帖子

E粉明星

注册时间
2010-8-8
精华
0
发表于 2012-4-7 19:14:58 | 显示全部楼层
本帖最后由 竞叫战士 于 2012-4-7 20:55 编辑

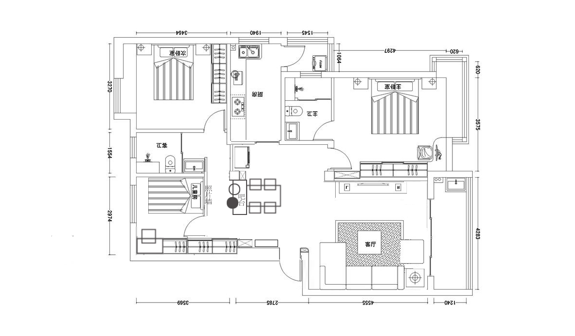
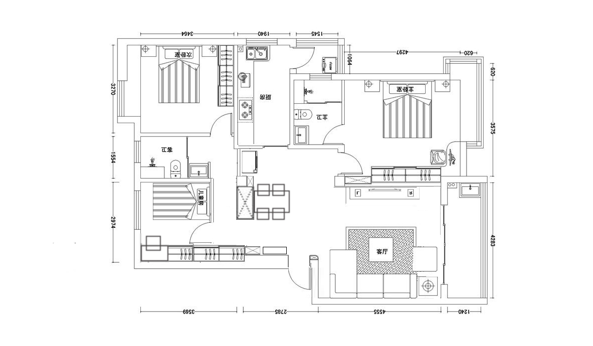
01.jpg
02.jpg
回复 支持 反对

使用道具 举报

0

收听

2

听众

481

帖子

E粉明星

注册时间
2011-11-22
精华
0
 楼主| 发表于 2012-4-7 19:17:44 | 显示全部楼层
竞叫战士 发表于 2012-4-7 19:14

呃?这俩有啥区别?
回复 支持 反对

使用道具 举报

0

收听

2

听众

481

帖子

E粉明星

注册时间
2011-11-22
精华
0
 楼主| 发表于 2012-4-7 19:18:57 | 显示全部楼层
哦哦看出了点区别 = =
回复 支持 反对

使用道具 举报

2

收听

24

听众

1951

帖子

E粉明星

注册时间
2010-8-8
精华
0
发表于 2012-4-7 19:35:09 | 显示全部楼层
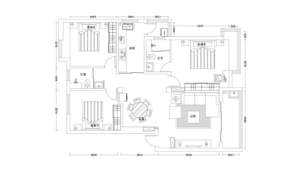
03.jpg
回复 支持 反对

使用道具 举报

2

收听

24

听众

1951

帖子

E粉明星

注册时间
2010-8-8
精华
0
发表于 2012-4-7 19:50:17 | 显示全部楼层
如果有相同户型的,注意大冰箱背后的通风散热。(也综合考量整体的通透)
回复 支持 反对

使用道具 举报

1

收听

3

听众

1557

帖子

E粉明星

注册时间
2005-5-11
精华
1

发表于 2012-4-9 09:35:25 | 显示全部楼层
几种方案都没有规避通风不畅的弊病,难啊!

点评

这个宅子最显著的优点就是通风、透光。三面有窗的房子很稀有的。  发表于 2012-4-9 09:39
宠辱不惊,静观堂前花开花落;去留无意,漫看天边云卷云舒。[img]http://attachments.goapk.com/album/2012
回复 支持 反对

使用道具 举报

1

收听

3

听众

1557

帖子

E粉明星

注册时间
2005-5-11
精华
1

发表于 2012-4-9 09:44:24 | 显示全部楼层
hongzai 发表于 2012-4-9 09:35
几种方案都没有规避通风不畅的弊病,难啊!

感觉北面有一间房堵的很死

点评

我也考虑到了,所以把餐台前使用了通透吧台。也就相当于别人家的主卧带卫生间的套间。要比原设计的两个次卧门门相对,主卧与厕所门门相对,大十字要好不知道多少。  发表于 2012-4-9 14:19
宠辱不惊,静观堂前花开花落;去留无意,漫看天边云卷云舒。[img]http://attachments.goapk.com/album/2012
回复 支持 反对

使用道具 举报

头像被屏蔽

0

收听

1

听众

1259

帖子

禁止访问

注册时间
2011-3-29
精华
0
发表于 2012-4-9 09:55:39 | 显示全部楼层
提示: 作者被禁止或删除 内容自动屏蔽
签名被屏蔽
回复 支持 反对

使用道具 举报

头像被屏蔽

0

收听

1

听众

262

帖子

禁止访问

注册时间
2009-10-8
精华
1
发表于 2012-4-9 11:00:34 | 显示全部楼层
提示: 作者被禁止或删除 内容自动屏蔽
签名被屏蔽
回复 支持 反对

使用道具 举报

0

收听

2

听众

481

帖子

E粉明星

注册时间
2011-11-22
精华
0
 楼主| 发表于 2012-4-9 11:15:32 | 显示全部楼层
hongzai 发表于 2012-4-9 09:35
几种方案都没有规避通风不畅的弊病,难啊!

还好,我家房子通风好像挺不错的,有时候站在厨房门口感觉风吹得都冷= =
回复 支持 反对

使用道具 举报

头像被屏蔽

0

收听

2

听众

619

帖子

禁止访问

注册时间
2010-8-31
精华
0
发表于 2012-4-9 14:18:26 | 显示全部楼层
提示: 作者被禁止或删除 内容自动屏蔽
回复 支持 反对

使用道具 举报

2

收听

24

听众

1951

帖子

E粉明星

注册时间
2010-8-8
精华
0
发表于 2012-4-9 14:28:45 | 显示全部楼层
本帖最后由 竞叫战士 于 2012-5-14 08:40 编辑



虽然添加了一个近3米的走廊,但添加了两米的衣柜、一米左右的鞋柜、一个长1.4M左右的吧台。并且餐厅更加通透。充分利用了起居室空间。
回复 支持 反对

使用道具 举报

头像被屏蔽

0

收听

1

听众

53

帖子

禁止访问

注册时间
2011-12-11
精华
0
QQ
发表于 2012-4-9 14:47:28 | 显示全部楼层
提示: 作者被禁止或删除 内容自动屏蔽
签名被屏蔽
回复 支持 反对

使用道具 举报

0

收听

2

听众

481

帖子

E粉明星

注册时间
2011-11-22
精华
0
 楼主| 发表于 2012-4-9 15:52:08 | 显示全部楼层
竞叫战士 发表于 2012-4-9 14:28
1、原方案两次卧、主卧与厕所门形成正十字星,人为制大煞。
2、虽然添加了一个近3米的走廊,但添加了两米 ...

那我现在都装差不多了。。

点评

以后有同户型的多一种选择  发表于 2012-4-9 16:03
回复 支持 反对

使用道具 举报

头像被屏蔽

0

收听

2

听众

619

帖子

禁止访问

注册时间
2010-8-31
精华
0
发表于 2012-4-10 08:10:03 | 显示全部楼层
提示: 作者被禁止或删除 内容自动屏蔽
回复 支持 反对

使用道具 举报

0

收听

2

听众

2877

帖子

未认证商家

注册时间
2010-7-27
精华
0
QQ
发表于 2012-4-10 09:21:12 | 显示全部楼层

点评

米琪,我家现在还没开始装卫浴,卫浴搞定了再联系你哦!  发表于 2012-4-10 09:23
QQ 27284524 电话 13033191509
地址 安庆西湖绿洲城 影竹圆 1栋5单元401
回复 支持 反对

使用道具 举报

0

收听

2

听众

481

帖子

E粉明星

注册时间
2011-11-22
精华
0
 楼主| 发表于 2012-4-10 09:23:14 | 显示全部楼层
`嘟嘟 发表于 2012-4-10 08:10
还没呢,最近懒的狠,很久没更新帖子了,橱柜尺寸还没有去量呢,师傅最近在贴厨房地砖,搞得一厨房里面都是 ...

我最近也好懒,碰上下雨天都不愿意动。
回复 支持 反对

使用道具 举报

0

收听

2

听众

2877

帖子

未认证商家

注册时间
2010-7-27
精华
0
QQ
发表于 2012-4-10 09:24:43 | 显示全部楼层
好有
QQ 27284524 电话 13033191509
地址 安庆西湖绿洲城 影竹圆 1栋5单元401
回复 支持 反对

使用道具 举报

0

收听

1

听众

84

帖子

E粉新星

注册时间
2011-12-27
精华
0
发表于 2012-4-10 17:49:41 | 显示全部楼层
楼主幸福啊!星期六壁纸,门,灯 , 插座 , 集成吊顶一起装!  靠要累死了。
回复 支持 反对

使用道具 举报

头像被屏蔽

0

收听

1

听众

44

帖子

禁止访问

注册时间
2011-12-4
精华
0
发表于 2012-4-10 18:12:03 | 显示全部楼层
提示: 作者被禁止或删除 内容自动屏蔽
回复 支持 反对

使用道具 举报

0

收听

2

听众

481

帖子

E粉明星

注册时间
2011-11-22
精华
0
 楼主| 发表于 2012-4-10 18:28:51 | 显示全部楼层
美丽的园林 发表于 2012-4-10 18:12
您的帖子看的我好累哦,有推荐的吗?

推荐什么?牌子?
回复 支持 反对

使用道具 举报

头像被屏蔽

0

收听

1

听众

44

帖子

禁止访问

注册时间
2011-12-4
精华
0
发表于 2012-4-10 18:58:36 | 显示全部楼层
提示: 作者被禁止或删除 内容自动屏蔽
回复 支持 反对

使用道具 举报

0

收听

2

听众

481

帖子

E粉明星

注册时间
2011-11-22
精华
0
 楼主| 发表于 2012-4-10 23:29:33 www.aqlife.com | 显示全部楼层
美丽的园林 发表于 2012-4-10 18:58  是啊,你认为可以信赖的商家或者说信誉好,性价比高的产品。

怎么说呢,我的帖子最主要的目的还是记录吧。就目前来看我所订的产品都能做到让我满意,也可能是装修我管得不太多,基本都是我男友在跑,所以实在不敢贸然推荐什么。印象中抽纸哥好像对挺多商家做过评价的,拉风哥也是。
回复 支持 反对

使用道具 举报

头像被屏蔽

0

收听

1

听众

1259

帖子

禁止访问

注册时间
2011-3-29
精华
0
发表于 2012-4-11 09:56:08 | 显示全部楼层
提示: 作者被禁止或删除 内容自动屏蔽
签名被屏蔽
回复 支持 反对

使用道具 举报

0

收听

2

听众

481

帖子

E粉明星

注册时间
2011-11-22
精华
0
 楼主| 发表于 2012-4-11 21:16:45 | 显示全部楼层
今天又去房子看了下,灯已经基本装好,卫浴全部搞定,主卫的玻璃隔断也差不多了。后天开始铺地板,我家终于快完工啦!哈哈!不过没带相机,手机像素太低,下次再更新照片\(^o^)/
回复 支持 反对

使用道具 举报

您需要登录后才可以回帖 登录 | 注册

本版积分规则

联系合作|手机版|手机APP|Archiver|

GMT+8, 2025-12-10 19:39 Powered by Discuz! X3.4

安庆E网生活网站 © 2001-2013 Comsenz Inc. ( 皖ICP备05012696号 )

QQ

安庆瑞易文化 地址:华茂1958-C7栋 联系电话:0556-5306667 联系邮箱:17779721@qq.com 互联网违法和不良信息举报电话和邮箱:0556-5306667 17779721@qq.com

皖公网安备 34080002000101号

    
快速回复 返回顶部 返回列表