安庆E网

搜索

[装修日记] 谐水湾——我家简约中式装修日记

  [复制链接]

0

收听

1

听众

181

帖子

E粉新星

注册时间
2009-4-16
精华
0
 楼主| 发表于 2012-1-13 09:25:58 | 显示全部楼层
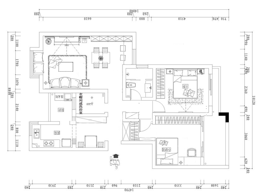
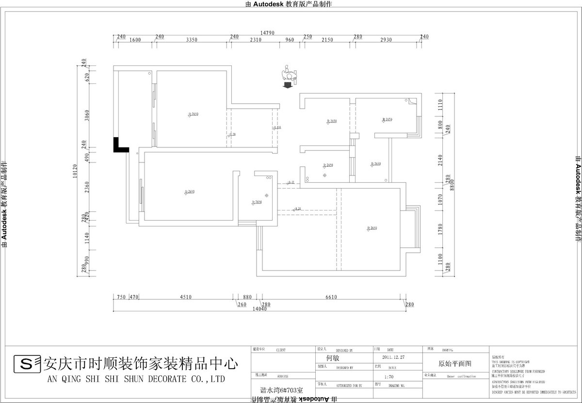
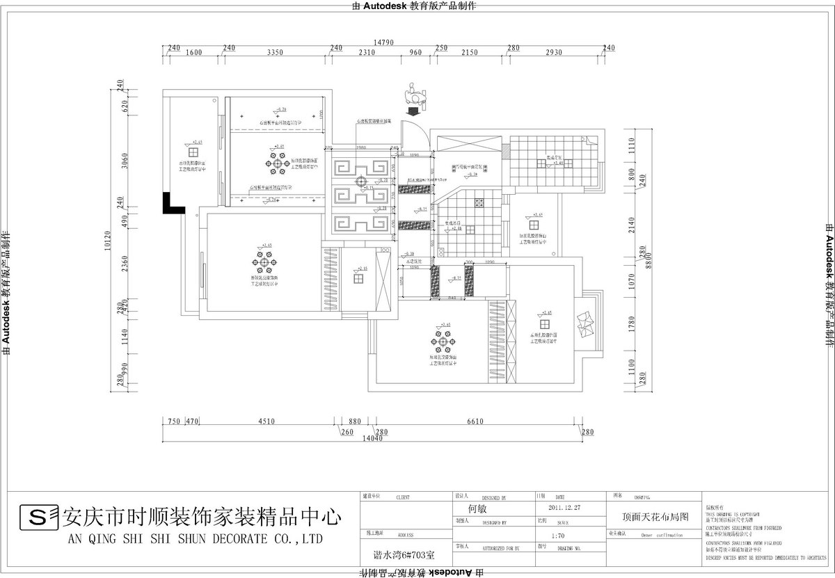
再来晒晒我家的平面图,设计师只发过来3张,全部贴上。

原始图

原始图

平面

平面

顶面

顶面



点评

哪些墙不能砸掉?  发表于 2012-1-13 11:36
哪些墙不能砸掉?  发表于 2012-1-13 11:35
回复 支持 反对

使用道具 举报

2

收听

8

听众

3219

帖子

E粉明星

注册时间
2009-10-21
精华
0
QQ
发表于 2012-1-13 10:13:16 | 显示全部楼层
祝LZ开工大吉,装修顺利

爱家装饰电话:5526533   13866431671
爱家装饰地址:湖心中路1号(牌坊往北100米)
低 调 奢 华,品 味 生 活
爱家装饰地址:吾悦广场B-1801-1802室
爱家装饰电话: 15856537787微信
回复 支持 反对

使用道具 举报

0

收听

2

听众

780

帖子

E粉明星

注册时间
2009-10-27
精华
1
发表于 2012-1-13 10:26:28 | 显示全部楼层
不错不错,我家也要装简约中式。关注,学习了!
回复 支持 反对

使用道具 举报

3

收听

71

听众

1万

帖子

超级版主

注册时间
2004-12-8
精华
287

情多累美人

公益义工

QQ
发表于 2012-1-13 12:01:50 | 显示全部楼层
时顺装饰在中式装修的设计上一向比较有心得,祝能带给你一个满意的家,建议楼主把平面户型图晒上来,看起来更直观一些

曾因酒醉鞭名马,生怕情多累美人……℡易随飞ooO…………18955600753
回复 支持 反对

使用道具 举报

0

收听

1

听众

205

帖子

E粉新星

注册时间
2010-7-10
精华
0
发表于 2012-1-13 15:28:01 | 显示全部楼层
首先祝楼主装修顺利!有空来过来体验一下
回复 支持 反对

使用道具 举报

头像被屏蔽

0

收听

1

听众

40

帖子

禁止访问

注册时间
2011-5-14
精华
0
发表于 2012-1-13 16:22:44 | 显示全部楼层
提示: 作者被禁止或删除 内容自动屏蔽
签名被屏蔽
回复 支持 反对

使用道具 举报

0

收听

1

听众

181

帖子

E粉新星

注册时间
2009-4-16
精华
0
 楼主| 发表于 2012-1-13 20:33:57 | 显示全部楼层
竞叫战士 发表于 2012-1-13 15:17
呵呵……

标注的不能打

标注的不能打

谢谢你了,很有想法。
这个地方不能开门,是承重墙。麻烦高手给我个好的创意,感谢啊,感谢

点评

室内南北向的墙,你都敢动?我在卫生间开门的位置(两个横梁下面那段)应该成立。  发表于 2012-1-13 20:59
我想跟你一道,实地考察!  发表于 2012-1-13 20:56
回复 支持 反对

使用道具 举报

0

收听

1

听众

181

帖子

E粉新星

注册时间
2009-4-16
精华
0
 楼主| 发表于 2012-1-13 21:13:28 | 显示全部楼层
竞叫战士 发表于 2012-1-13 21:02
中式的,较深色。再加上挤堵……

等于作孽!

所以要简约啊,不能搞的太复杂。
中式不是讲究对称吗,这个貌似不太对称

点评

你原电视背景墙,共3.3M分三分,去对称,不觉得古怪么?分割再小一些,别人还以为仨旗杆呢!呵呵……  发表于 2012-1-14 09:25
回复 支持 反对

使用道具 举报

0

收听

1

听众

181

帖子

E粉新星

注册时间
2009-4-16
精华
0
 楼主| 发表于 2012-1-13 21:25:57 | 显示全部楼层
竞叫战士 发表于 2012-1-13 21:11
赶快改,极简主义+浅色元明风格的配饰。

要少许的中式元素,比如丹青、小面积浅色(原木色,非红木色)花 ...

南北向的墙为什么不能动啊  不是承重墙啊
回复 支持 反对

使用道具 举报

0

收听

1

听众

181

帖子

E粉新星

注册时间
2009-4-16
精华
0
 楼主| 发表于 2012-1-13 21:30:07 | 显示全部楼层
竞叫战士 发表于 2012-1-13 21:18
谁说中式=对称?

你知道书法和国画么?

有心了 我Q号1422159905 私聊行吗 向你请教啊
回复 支持 反对

使用道具 举报

1

收听

1

听众

962

帖子

认证商家

注册时间
2010-10-6
精华
0
发表于 2012-1-13 22:16:19 | 显示全部楼层
中式门型我们家很多,欢迎抽空过来看看
1:旗舰店舒怡国际家居城2楼B区8028号

电话:13966907991
回复 支持 反对

使用道具 举报

0

收听

1

听众

181

帖子

E粉新星

注册时间
2009-4-16
精华
0
 楼主| 发表于 2012-1-14 10:30:20 | 显示全部楼层
竞叫战士 发表于 2012-1-13 22:18
我不会QQ,这个方案不会又碰到减力墙了吧?!

那面一堵全是剪力墙 不能打做一门呵呵
回复 支持 反对

使用道具 举报

0

收听

1

听众

181

帖子

E粉新星

注册时间
2009-4-16
精华
0
 楼主| 发表于 2012-1-14 10:57:06 | 显示全部楼层
原始图1.jpg
这是我们家构造柱的位置,呵呵,我觉得有点难搞哦,头都大了
听别人说,浴室柜的镜子不能和门相对,呵呵,你别嫌我麻烦哦

点评

房子不小,但空间零碎,不适合中式。  发表于 2012-1-14 12:13
你签了字的图纸,他们会想方设法回避的。你那标成墨绿色的地方不是动了么?  发表于 2012-1-14 12:08
呵呵,镜子照门,你在意。厕所和主卧门门相对,于是你不在乎了……  发表于 2012-1-14 11:31
回复 支持 反对

使用道具 举报

头像被屏蔽

0

收听

1

听众

39

帖子

禁止访问

注册时间
2012-1-8
精华
0
发表于 2012-1-15 18:57:12 | 显示全部楼层
提示: 作者被禁止或删除 内容自动屏蔽
回复 支持 反对

使用道具 举报

1

收听

3

听众

2053

帖子

E粉明星

注册时间
2009-12-7
精华
0
QQ
发表于 2012-1-15 20:27:03 | 显示全部楼层
祝邻居家开工大吉
安庆光彩四期二楼D区12幢2号宅本照明
回复 支持 反对

使用道具 举报

头像被屏蔽

0

收听

1

听众

39

帖子

禁止访问

注册时间
2012-1-8
精华
0
发表于 2012-1-15 21:06:49 | 显示全部楼层
提示: 作者被禁止或删除 内容自动屏蔽
回复 支持 反对

使用道具 举报

9

收听

7

听众

1349

帖子

认证商家

注册时间
2011-11-6
精华
0
发表于 2012-1-15 23:37:48 | 显示全部楼层
河里透气的鱼 发表于 2012-1-10 09:57
施工时间进度2011年12月31日   与时顺公司签定装修合同2012年元月6日  ...

您好,看您的日记发现您家的整体橱柜还没确定,欢迎您来了解和品鉴锦致橱柜,我们正月初八举行您定橱柜,我买单大型优惠活动,期待您胡光临。
展厅地址:光彩国际家居博览中心一层61号
销售热线:8882250
客服热线:8882251
品鉴热线:13905569197   qq:2502490242
做适合中国人的厨房,您的满意是我们最高的荣誉[
回复 支持 反对

使用道具 举报

0

收听

1

听众

181

帖子

E粉新星

注册时间
2009-4-16
精华
0
 楼主| 发表于 2012-1-16 10:50:44 | 显示全部楼层
       这几天身体不爽啊,感冒引起咳嗽,咳嗽引发支气管炎,支气管炎又导致腰痛,哎呀,真是祸不单行。这时,什么好都比不过身体好,身体呀身体。
    打开e网的帖子,发现这两天我的帖子还真是挺热,得到了大家的关注和支持,谢谢了,谢谢了,泪奔啊。这也是我继续开贴的动力,还是继续发我的片片吧。
    开工当日,装修公司的设计师、监理和项目经理齐刷刷集合。家里老人不主张在房间内部放鞭炮,尊重家长的意见,只是进行了个简单的开工仪式。之后,大家围着房间,讨论如何进行施工,最后,黄大锤登场,三下五去二,一堵墙豁开了大口。
    两天后,家中的三堵墙都被砸掉了,只留下光秃秃的一根柱子,不知道是否构造柱,还是等物业审核之后再进行吧。
    在这里,表扬一下时顺,一边砸墙一边清除渣滓,家里扫得干干净净,这也是专业的一种表现吧。
    看施工现场.jpg 墙被拆之后.jpg 原来卫生间的墙,现也已被拆掉.jpg 这是否是结构柱啊.jpg

回复 支持 反对

使用道具 举报

0

收听

1

听众

181

帖子

E粉新星

注册时间
2009-4-16
精华
0
 楼主| 发表于 2012-1-16 10:59:18 | 显示全部楼层
装修遇到了一些阻碍。
    我对房屋装修的目的是这样一种看法,第一是为了生活舒适,第二是美观漂亮,如果这两点产生矛盾的话,肯定对第二点有所牺牲,但是这两点的基础一定要建立在房屋安全水电发生问题概率尽量低的前提下。
    这次开工这么早,本来想着趁天气好的时候把墙砌起来,但在和高手交流的时候,发现我的一堵卫生间墙要重新砌到楼板上,这在建筑规范上严格来说是不允许的,由于现在混凝土楼板只有10公分厚,里面的钢筋有多粗,对轻质砖的线承载力有多大,我们都搞不清楚,有可能会改变楼板的恒载力,会极大地增加往楼下渗水的概率。我是万事唯谨慎,所以这个方案只好放弃,而改用玻璃隔墙,以减少楼板负重。
    本来还有别的墙,打算在年前砌起来,但天气逐渐转冷,水泥砌筑的施工最好应在5摄氏度以上,据好多TX讲,要把门关好后也可以达到施工条件,但要增加水泥砂浆的稠度,增长施工的工期,可能还要加防冻剂等等,这些条件我对安庆的公司不是很乐观,不怎么敢冒这个险,也可能是我多虑,南方也许不需要这么严格,但还是保险为上吧。公司建议,年前把墙砌起来,到年后天气好这段时间,有一个让墙体稳定的过程,我在选择做这个决定的过程中也是万分的纠结。只盼望明年公司在做砌墙粉刷工程时,把握好施工和养护的时间节奏,不过最后,由于装修公司和物业方面有一些问题还没有谈妥,以至开工时间推移,让我选择明年砌墙成为了必然。
    另外在施工过程中,听到大家的一些建议,才发现施工规范上还有构造柱等要求,让我对现在公司设计的方案产生疑问。重新开始分析我的设计方案,觉得有很多地方都有不适之处,痛苦啊。还好我的房子已定下等节后天气暖和之后才开工,这段时间认真考虑一下吧,也希望大家继续支持我。

回复 支持 反对

使用道具 举报

0

收听

1

听众

181

帖子

E粉新星

注册时间
2009-4-16
精华
0
 楼主| 发表于 2012-1-16 13:59:19 | 显示全部楼层
   
    昨天周末,馀庆家家居做活动。冒着大雨现场看了一下,活动力度还是很大的。因家中家具基本都有了意向,只是饱了眼福,没有下手。倒是给老爸买了张床,配上两个床头柜和床垫。
    馀庆家家居的二楼有一个很大规模的家饰部,从厨房刀具到懒人沙发,货色齐全,等以后搬到新房后可以考虑买入,呵呵,这也算是个小小的收获吧。                              
回复 支持 反对

使用道具 举报

2

收听

24

听众

1951

帖子

E粉明星

注册时间
2010-8-8
精华
0
发表于 2012-1-16 14:05:29 | 显示全部楼层
本帖最后由 竞叫战士 于 2012-1-16 14:16 编辑

呵呵…………
回复 支持 反对

使用道具 举报

0

收听

1

听众

416

帖子

E粉明星

注册时间
2011-7-29
精华
0
发表于 2012-1-17 08:46:23 | 显示全部楼层
开工之前能想的到的问题就要提前考虑清楚。摸着石头过河是容易淹死滴
用积极快乐的心态体验美妙的装修历程!
回复 支持 反对

使用道具 举报

2

收听

24

听众

1951

帖子

E粉明星

注册时间
2010-8-8
精华
0
发表于 2012-1-17 09:24:02 | 显示全部楼层
已经拆成这样了,最保守的方案:
谐水湾.jpg

回复 支持 反对

使用道具 举报

0

收听

1

听众

181

帖子

E粉新星

注册时间
2009-4-16
精华
0
 楼主| 发表于 2012-1-17 11:09:38 | 显示全部楼层
本帖最后由 河里透气的鱼 于 2012-1-17 11:10 编辑
竞叫战士 发表于 2012-1-17 09:24
已经拆成这样了,最保守的方案:


谢谢你这么热心哦,帮我设计了这么多的方案。
这套方案,我们家楼下就是这样设计的。
穿过长长的过道才到客厅,感觉有点怪怪的。呵呵,别见怪了。

其实,对于我们家现有的设计,从开始到现在,我们觉得有点问题的地方主要是以下几个地方,现在正在自己想办法克服。
1、卫生间:考虑到原来的卫生间空间太小,所以将原有的墙敲掉了。后来发现,重新砌的墙实在楼板上,从施工规范上来说安全系数不高,我们为此想了很久,想了一个方案:重新砌的那堵墙分成两段,紧挨着柱子的那段用玻璃砖砌起来,剩下的那段连着阳台的窗子做一个小吧台,正好可以放点微波炉之类,弥补点厨房空间的不足。
(因为我不会用cad制图,所以用word做了个简单的示意图,大家凑合着看吧)
无标题.jpg
2、小孩房:设计师当初设计时,考虑到增加空间,所以将靠墙的一组柜子移到了梁后50cm左右的位置。后来我们考虑卧室露一截梁不好,所以建议还是齐平梁打一组柜子,这样,就出现了一个新的问题,横向空间被缩小了,原来想放一张1.5m的床,现在空间不够,只能换成1.2m的床,否则卧室门正对着床,从风水上来说,对小孩的身体不好。

3、书房:以后老家那边会来人在我们家休息,兼顾美观和实用,打算买一张罗汉床。可是罗汉床的尺寸是长2米,宽1米,前面还有个脚踏45cm,在书房找不到合适的位置去放,为此我们一直都很纠结。

点评

这个方案的走道不足5M,你的方案走廊有11M以上!所以我称你的设计师是中式长廊设计专家。  发表于 2012-1-17 12:17
我不相信有人的方案跟我一样。  发表于 2012-1-17 12:02
客厅主沙发定制一张1.1MX2.3M的罗汉床吧。  发表于 2012-1-17 12:01
回复 支持 反对

使用道具 举报

2

收听

24

听众

1951

帖子

E粉明星

注册时间
2010-8-8
精华
0
发表于 2012-1-17 11:45:56 | 显示全部楼层
顶部图,顶部图腾只能在衣帽间门口的走廊上(粉红色区域)使用。
谐水湾.jpg

回复 支持 反对

使用道具 举报

您需要登录后才可以回帖 登录 | 注册

本版积分规则

联系合作|手机版|手机APP|Archiver|

GMT+8, 2025-12-11 01:51 Powered by Discuz! X3.4

安庆E网生活网站 © 2001-2013 Comsenz Inc. ( 皖ICP备05012696号 )

QQ

安庆瑞易文化 地址:华茂1958-C7栋 联系电话:0556-5306667 联系邮箱:17779721@qq.com 互联网违法和不良信息举报电话和邮箱:0556-5306667 17779721@qq.com

皖公网安备 34080002000101号

    
快速回复 返回顶部 返回列表