安庆E网

搜索
楼主: 潺潺的小河

[装修日记] 装修------装扮一个温馨舒适的家!吊顶、厨柜的安装

  [复制链接]

3

收听

71

听众

1万

帖子

超级版主

注册时间
2004-12-8
精华
287

情多累美人

公益义工

QQ
发表于 2012-5-30 13:56:33 | 显示全部楼层
图片大小控制在200K以内,另外总是提示登录可能是你电脑浏览器设置的问题,试试用QQ登录。因为大家用都是正常的,没有出现你说的情况

曾因酒醉鞭名马,生怕情多累美人……℡易随飞ooO…………18955600753
回复 支持 反对

使用道具 举报

头像被屏蔽

0

收听

2

听众

108

帖子

禁止访问

注册时间
2012-2-27
精华
0
 楼主| 发表于 2012-5-31 14:55:19 | 显示全部楼层
提示: 作者被禁止或删除 内容自动屏蔽
回复 支持 反对

使用道具 举报

头像被屏蔽

0

收听

2

听众

108

帖子

禁止访问

注册时间
2012-2-27
精华
0
 楼主| 发表于 2012-6-2 11:23:07 | 显示全部楼层
提示: 作者被禁止或删除 内容自动屏蔽
回复 支持 反对

使用道具 举报

2

收听

24

听众

1951

帖子

E粉明星

注册时间
2010-8-8
精华
0
发表于 2012-6-2 13:57:25 | 显示全部楼层
本帖最后由 竞叫战士 于 2012-6-2 14:48 编辑

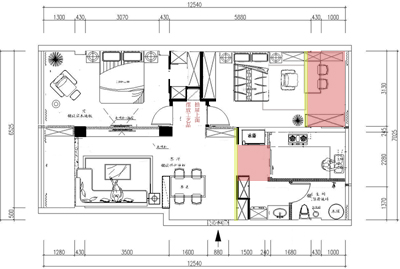
我也试试上图。中规中矩的布局:
b_68131870副本.jpg

回复 支持 反对

使用道具 举报

2

收听

24

听众

1951

帖子

E粉明星

注册时间
2010-8-8
精华
0
发表于 2012-6-2 14:17:26 | 显示全部楼层
中间黑不溜秋的书房,废掉吧。把空间释放出来吧。

何苦。
回复 支持 反对

使用道具 举报

0

收听

1

听众

109

帖子

未认证商家

注册时间
2012-5-9
精华
0
QQ
发表于 2012-6-4 10:17:10 | 显示全部楼层
祝装修顺利
安庆恒美万家装饰有限公司            
电话:13855636817  QQ:284233356
地址:绿地写字楼(1402)
回复 支持 反对

使用道具 举报

头像被屏蔽

0

收听

2

听众

108

帖子

禁止访问

注册时间
2012-2-27
精华
0
 楼主| 发表于 2012-6-4 16:16:53 | 显示全部楼层
提示: 作者被禁止或删除 内容自动屏蔽
回复 支持 反对

使用道具 举报

头像被屏蔽

0

收听

2

听众

108

帖子

禁止访问

注册时间
2012-2-27
精华
0
 楼主| 发表于 2012-6-5 09:21:40 | 显示全部楼层
提示: 作者被禁止或删除 内容自动屏蔽
回复 支持 反对

使用道具 举报

头像被屏蔽

0

收听

2

听众

108

帖子

禁止访问

注册时间
2012-2-27
精华
0
 楼主| 发表于 2012-6-5 09:37:38 | 显示全部楼层
提示: 作者被禁止或删除 内容自动屏蔽
回复 支持 反对

使用道具 举报

2

收听

24

听众

1951

帖子

E粉明星

注册时间
2010-8-8
精华
0
发表于 2012-6-5 09:38:03 | 显示全部楼层
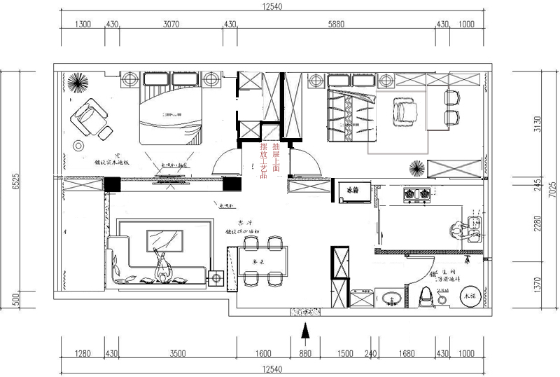
红色以梁的最低点吊平顶,绿色是灯带。
1.jpg
回复 支持 反对

使用道具 举报

2

收听

24

听众

1951

帖子

E粉明星

注册时间
2010-8-8
精华
0
发表于 2012-6-5 09:38:23 | 显示全部楼层
我不知道什么事弱化。
回复 支持 反对

使用道具 举报

头像被屏蔽

0

收听

2

听众

108

帖子

禁止访问

注册时间
2012-2-27
精华
0
 楼主| 发表于 2012-6-5 10:27:35 | 显示全部楼层
提示: 作者被禁止或删除 内容自动屏蔽
回复 支持 反对

使用道具 举报

头像被屏蔽

0

收听

2

听众

108

帖子

禁止访问

注册时间
2012-2-27
精华
0
 楼主| 发表于 2012-6-5 10:31:05 | 显示全部楼层
提示: 作者被禁止或删除 内容自动屏蔽
回复 支持 反对

使用道具 举报

2

收听

24

听众

1951

帖子

E粉明星

注册时间
2010-8-8
精华
0
发表于 2012-6-5 10:40:31 | 显示全部楼层
本帖最后由 竞叫战士 于 2012-6-5 10:56 编辑

装个门套就行了。

灯带下来15CM
门套上去15CM(深色壁面就用浅色门套,浅色壁面反之。)

基本都消化掉了。
回复 支持 反对

使用道具 举报

2

收听

24

听众

1951

帖子

E粉明星

注册时间
2010-8-8
精华
0
发表于 2012-6-5 10:58:04 | 显示全部楼层
本帖最后由 竞叫战士 于 2012-6-5 11:32 编辑

我已经交代得很清楚了,不需要像效果图那样处理。
1.jpg
回复 支持 反对

使用道具 举报

头像被屏蔽

0

收听

2

听众

108

帖子

禁止访问

注册时间
2012-2-27
精华
0
 楼主| 发表于 2012-6-5 11:24:22 | 显示全部楼层
提示: 作者被禁止或删除 内容自动屏蔽
回复 支持 反对

使用道具 举报

2

收听

24

听众

1951

帖子

E粉明星

注册时间
2010-8-8
精华
0
发表于 2012-6-5 11:34:41 | 显示全部楼层
潺潺的小河 发表于 2012-6-5 11:24
你标的位置错了,梁不是在厨房方向,梁下没有墙。
竞叫战士 发表于 2012-6-5 10:40
装个门套就行了。

灯带下来15CM

你标的位置错了,梁不是在厨房方向,梁下没有墙。

见图,看明白么?
1.jpg

回复 支持 反对

使用道具 举报

2

收听

24

听众

1951

帖子

E粉明星

注册时间
2010-8-8
精华
0
发表于 2012-6-5 11:37:37 | 显示全部楼层
深灰色地是石材门套,当然也可以是其他材质。
回复 支持 反对

使用道具 举报

头像被屏蔽

0

收听

2

听众

108

帖子

禁止访问

注册时间
2012-2-27
精华
0
 楼主| 发表于 2012-6-11 15:20:02 | 显示全部楼层
提示: 作者被禁止或删除 内容自动屏蔽
回复 支持 反对

使用道具 举报

1

收听

3

听众

2053

帖子

E粉明星

注册时间
2009-12-7
精华
0
QQ
发表于 2012-6-11 21:18:56 | 显示全部楼层
潺潺的小河 发表于 2012-6-11 15:20
3月份开工到现在木工还没有全部结束,因各种原因耽误了不少时间,本以为6月中旬可以全部结束,可现在,唉   ...

业内专家指出,雨季装修时千万要注意保持室内通风、下雨天不刷漆、尽量别铺木地板等问题。
  保持室内通风良好
  阴雨天空气潮湿,施工中要将所有的门窗都打开,以保持室内良好的通风。这样不仅有利于施工人员的身体健康,而且有助于室内墙面、地面及木材等的尽早干燥。
  下雨天切勿刷漆
  对于木制品,无论是刷清漆或刷硝基漆,都切记不要在下雨天刷。因为木制品表面在雨天时会凝聚一层水汽,这时如果刷漆,水汽便会包裹在漆膜里,使木制品表面浑浊不清。比如雨天刷硝基漆,会导致色泽不均匀,而刷油漆,则会出现泛白的现象。

专家建议,如果一定要赶工期的话,可以在漆中加入一定量的化白粉。化白粉可以吸收空气中的潮气,并加快干燥速度,但也会对工程质量带来一定的负面影响。所以一般情况下,哪怕让施工队先干点别的活或暂时停工两天,也尽可能不要在雨天做油漆活。
  刮腻子延长干透时间
  刮腻子是我们选用的墙衬材料,这种材料有防水、防潮、防粉化及防发霉等作用。涂刷墙面前先要刮腻子,一般需要刮1至3遍,其间正常的干透时间为1至2天。但在阴雨天刮腻子时,应该先用干布将墙面水气擦拭干净,尽可能保持墙面的干燥。同时还应根据天气的实际情况,尽可能延长腻子干透的时间,一般以2至3天为宜。
  另外,雨季施工要防止木制品因受潮变形。
  雨季施工最重要的是防止现场制作的木制品变形。
  专家建议,在木制门、窗成型但尚未刷(喷)漆时,可用重物对其平压近一周的时间,使门或窗的结构基本稳定,这样便可防止木制品因受潮而变形。饰面板材料进入现场后,首先封底油控制吸收水分;门套及门收口线,在钉装时留出收缩量,一个星期后再用收边机刨平,这样可以避免收缩和开裂。
  无论是铺实木地板还是复合地板,都尽量不要在下雨天进行铺装。因为雨天地面会受潮,特别是一楼,还会出现返潮现象。此时水分蒸发慢,胶干得也慢,如果在这种情况下施工,将来很容易变形或出现空鼓现象。不过,在空气湿度不是很大的阴天里,还是可以铺装木地板的,但注意要铺装得紧凑些,不然天一晴,水分被蒸发干净后,会导致木地板收缩,造成地板间缝隙过大。这是我从网上转述的,希望对你有所帮助

安庆光彩四期二楼D区12幢2号宅本照明
回复 支持 反对

使用道具 举报

头像被屏蔽

0

收听

2

听众

108

帖子

禁止访问

注册时间
2012-2-27
精华
0
 楼主| 发表于 2012-6-12 08:58:22 | 显示全部楼层
提示: 作者被禁止或删除 内容自动屏蔽
回复 支持 反对

使用道具 举报

1

收听

3

听众

2053

帖子

E粉明星

注册时间
2009-12-7
精华
0
QQ
发表于 2012-6-12 13:47:45 | 显示全部楼层
潺潺的小河 发表于 2012-6-12 08:58
谢谢。还是不能在雨季刷漆啊。只好再停一段时间。后期需要开关面板联系你啊。

你太客气了,发这个装修知识不是要叫你来我这里买产品自已也想学习下,另外后期筒灯,射灯在我这里买不买都无所谓,只希望你到时给我一个机会,让我报个价,如果你认为在我这里买价廉物美的话,可以来选够,本人文化不高,如有什么地方表达不够清楚的话,敬请谅解
安庆光彩四期二楼D区12幢2号宅本照明
回复 支持 反对

使用道具 举报

头像被屏蔽

0

收听

2

听众

290

帖子

禁止访问

注册时间
2010-2-7
精华
0
发表于 2012-6-14 14:02:08 | 显示全部楼层
提示: 作者被禁止或删除 内容自动屏蔽
签名被屏蔽
回复 支持 反对

使用道具 举报

头像被屏蔽

0

收听

2

听众

108

帖子

禁止访问

注册时间
2012-2-27
精华
0
 楼主| 发表于 2012-6-16 11:06:34 | 显示全部楼层
提示: 作者被禁止或删除 内容自动屏蔽
回复 支持 反对

使用道具 举报

头像被屏蔽

0

收听

1

听众

14

帖子

禁止访问

注册时间
2012-6-15
精华
0
发表于 2012-6-17 09:05:36 | 显示全部楼层
提示: 作者被禁止或删除 内容自动屏蔽
回复 支持 反对

使用道具 举报

您需要登录后才可以回帖 登录 | 注册

本版积分规则

联系合作|手机版|手机APP|Archiver|

GMT+8, 2025-12-19 01:31 Powered by Discuz! X3.4

安庆E网生活网站 © 2001-2013 Comsenz Inc. ( 皖ICP备05012696号 )

QQ

安庆瑞易文化 地址:华茂1958-C7栋 联系电话:0556-5306667 联系邮箱:17779721@qq.com 互联网违法和不良信息举报电话和邮箱:0556-5306667 17779721@qq.com

皖公网安备 34080002000101号

    
快速回复 返回顶部 返回列表