安庆E网

搜索
查看: 6689|回复: 43

[施工探讨] 帮我看看这个户型

  [复制链接]
头像被屏蔽

0

收听

1

听众

70

帖子

禁止访问

注册时间
2007-5-16
精华
0

发表于 2012-3-21 22:51:17 | 显示全部楼层 |阅读模式
提示: 作者被禁止或删除 内容自动屏蔽
签名被屏蔽
回复

使用道具 举报

2

收听

24

听众

1951

帖子

E粉明星

注册时间
2010-8-8
精华
0
发表于 2012-3-22 02:19:46 | 显示全部楼层
本帖最后由 竞叫战士 于 2012-4-4 17:12 编辑

回复 支持 反对

使用道具 举报

2

收听

24

听众

1951

帖子

E粉明星

注册时间
2010-8-8
精华
0
发表于 2012-3-22 02:32:40 | 显示全部楼层
本帖最后由 竞叫战士 于 2012-4-4 17:12 编辑

回复 支持 反对

使用道具 举报

头像被屏蔽

0

收听

1

听众

70

帖子

禁止访问

注册时间
2007-5-16
精华
0

 楼主| 发表于 2012-3-22 09:51:19 | 显示全部楼层
提示: 作者被禁止或删除 内容自动屏蔽
签名被屏蔽
回复 支持 反对

使用道具 举报

头像被屏蔽

0

收听

1

听众

92

帖子

禁止访问

注册时间
2011-11-24
精华
0
QQ
发表于 2012-3-22 09:53:39 | 显示全部楼层
提示: 作者被禁止或删除 内容自动屏蔽
签名被屏蔽
回复 支持 反对

使用道具 举报

2

收听

24

听众

1951

帖子

E粉明星

注册时间
2010-8-8
精华
0
发表于 2012-3-22 09:59:07 | 显示全部楼层
入户门对景是1.8M高度以下的半通透隔断。
回复 支持 反对

使用道具 举报

2

收听

24

听众

1951

帖子

E粉明星

注册时间
2010-8-8
精华
0
发表于 2012-3-22 10:00:34 | 显示全部楼层
我给出的方案框架,可以说在安庆你有钱未必能得到的。
回复 支持 反对

使用道具 举报

头像被屏蔽

0

收听

1

听众

70

帖子

禁止访问

注册时间
2007-5-16
精华
0

 楼主| 发表于 2012-3-22 10:07:00 www.aqlife.com | 显示全部楼层
提示: 作者被禁止或删除 内容自动屏蔽
签名被屏蔽
回复 支持 反对

使用道具 举报

头像被屏蔽

0

收听

1

听众

70

帖子

禁止访问

注册时间
2007-5-16
精华
0

 楼主| 发表于 2012-3-22 10:07:55 www.aqlife.com | 显示全部楼层
提示: 作者被禁止或删除 内容自动屏蔽
签名被屏蔽
回复 支持 反对

使用道具 举报

2

收听

24

听众

1951

帖子

E粉明星

注册时间
2010-8-8
精华
0
发表于 2012-3-22 10:10:38 | 显示全部楼层
本帖最后由 竞叫战士 于 2012-4-4 17:12 编辑

回复 支持 反对

使用道具 举报

头像被屏蔽

0

收听

1

听众

70

帖子

禁止访问

注册时间
2007-5-16
精华
0

 楼主| 发表于 2012-3-22 10:11:45 www.aqlife.com | 显示全部楼层
提示: 作者被禁止或删除 内容自动屏蔽
签名被屏蔽
回复 支持 反对

使用道具 举报

2

收听

24

听众

1951

帖子

E粉明星

注册时间
2010-8-8
精华
0
发表于 2012-3-22 10:12:20 | 显示全部楼层
工艺玻璃

铁艺

木花板

还有……
回复 支持 反对

使用道具 举报

头像被屏蔽

0

收听

1

听众

70

帖子

禁止访问

注册时间
2007-5-16
精华
0

 楼主| 发表于 2012-3-22 10:15:39 www.aqlife.com | 显示全部楼层
提示: 作者被禁止或删除 内容自动屏蔽
签名被屏蔽
回复 支持 反对

使用道具 举报

2

收听

24

听众

1951

帖子

E粉明星

注册时间
2010-8-8
精华
0
发表于 2012-3-22 10:18:30 | 显示全部楼层
因为你的端景距离只有1.8M(我估计的)

再做柜体,有些顶!
回复 支持 反对

使用道具 举报

2

收听

24

听众

1951

帖子

E粉明星

注册时间
2010-8-8
精华
0
发表于 2012-3-22 10:19:58 | 显示全部楼层
如果有2.0M以上,就可以加柜体。
回复 支持 反对

使用道具 举报

头像被屏蔽

0

收听

1

听众

70

帖子

禁止访问

注册时间
2007-5-16
精华
0

 楼主| 发表于 2012-3-22 10:30:18 www.aqlife.com | 显示全部楼层
提示: 作者被禁止或删除 内容自动屏蔽
签名被屏蔽
回复 支持 反对

使用道具 举报

2

收听

24

听众

1951

帖子

E粉明星

注册时间
2010-8-8
精华
0
发表于 2012-3-22 10:45:26 | 显示全部楼层
本帖最后由 竞叫战士 于 2012-4-4 17:13 编辑

未标题-1.jpg

未标题-1副本.jpg

点评

地台不错,就是上个卫生间,有点麻烦,特别是晚上,七拐八弯地  发表于 2012-4-11 16:47
回复 支持 反对

使用道具 举报

2

收听

24

听众

1951

帖子

E粉明星

注册时间
2010-8-8
精华
0
发表于 2012-3-22 10:51:19 | 显示全部楼层
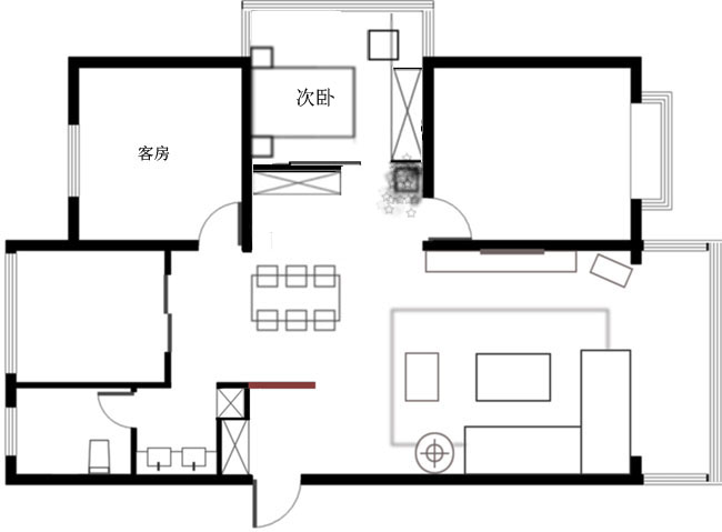
把北边房间的门改向
1、避开与主卧门门相对
2、充分利用原三个房间的公用走廊
3、解决加玄关后,餐厅宽度不足,南北轴向不够通畅
4、实际上吧台是可以兼书房的。坐在沙发上左面青龙位高大、宽敞,且有底蕴……
回复 支持 反对

使用道具 举报

0

收听

5

听众

841

帖子

未认证商家

注册时间
2011-10-14
精华
0
QQ
发表于 2012-3-22 10:55:51 | 显示全部楼层
设计的很不错  顶一下
更多有品位的家庭选择雷拓
一店:南翔博览中心二楼 8882133
二店:百年家居一期 5848688[/
回复 支持 反对

使用道具 举报

头像被屏蔽

0

收听

1

听众

70

帖子

禁止访问

注册时间
2007-5-16
精华
0

 楼主| 发表于 2012-3-22 11:08:35 www.aqlife.com | 显示全部楼层
提示: 作者被禁止或删除 内容自动屏蔽
签名被屏蔽
回复 支持 反对

使用道具 举报

头像被屏蔽

0

收听

1

听众

70

帖子

禁止访问

注册时间
2007-5-16
精华
0

 楼主| 发表于 2012-3-22 11:11:50 www.aqlife.com | 显示全部楼层
提示: 作者被禁止或删除 内容自动屏蔽
签名被屏蔽
回复 支持 反对

使用道具 举报

头像被屏蔽

0

收听

1

听众

70

帖子

禁止访问

注册时间
2007-5-16
精华
0

 楼主| 发表于 2012-3-22 11:13:16 www.aqlife.com | 显示全部楼层
提示: 作者被禁止或删除 内容自动屏蔽
签名被屏蔽
回复 支持 反对

使用道具 举报

0

收听

6

听众

587

帖子

E粉明星

注册时间
2010-9-20
精华
1
QQ
发表于 2012-3-23 08:48:56 | 显示全部楼层
有时间可以来我们新天地装饰公司坐坐哦!我们专业的设计队伍会给您份满意的设计方案的!
勿加广告图,否则封号
回复 支持 反对

使用道具 举报

2

收听

8

听众

3219

帖子

E粉明星

注册时间
2009-10-21
精华
0
QQ
发表于 2012-3-23 11:31:24 | 显示全部楼层
爱家装饰祝您开工大吉。
低 调 奢 华,品 味 生 活
爱家装饰地址:吾悦广场B-1801-1802室
爱家装饰电话: 15856537787微信
回复 支持 反对

使用道具 举报

0

收听

2

听众

2877

帖子

未认证商家

注册时间
2010-7-27
精华
0
QQ
发表于 2012-3-23 14:15:53 | 显示全部楼层
QQ 27284524 电话 13033191509
地址 安庆西湖绿洲城 影竹圆 1栋5单元401
回复 支持 反对

使用道具 举报

您需要登录后才可以回帖 登录 | 注册

本版积分规则

联系合作|手机版|手机APP|Archiver|

GMT+8, 2025-12-19 16:19 Powered by Discuz! X3.4

安庆E网生活网站 © 2001-2013 Comsenz Inc. ( 皖ICP备05012696号 )

QQ

安庆瑞易文化 地址:华茂1958-C7栋 联系电话:0556-5306667 联系邮箱:17779721@qq.com 互联网违法和不良信息举报电话和邮箱:0556-5306667 17779721@qq.com

皖公网安备 34080002000101号

    
快速回复 返回顶部 返回列表