安庆E网

搜索
查看: 59480|回复: 257

[装修日记] 老房改造(每天跟进)

  [复制链接]

0

收听

1

听众

100

帖子

E粉新星

注册时间
2011-6-20
精华
0
发表于 2012-3-29 21:05:22 | 显示全部楼层 |阅读模式
本帖最后由 chenchun1989 于 2012-3-31 13:42 编辑

     今天房子开始装修了,在选择多家装饰公司后,我选择了百安居装饰公司,希望大家多提建议,先上几张pp,每天跟进


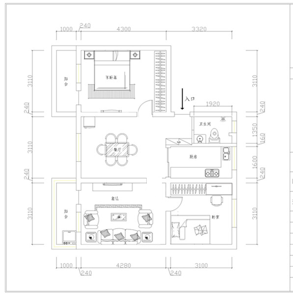
平面设计图
Drawing1-Model_副本.jpg





装修前

客厅.jpg                                                         
厨房.jpg
psbCANT6FHK.jpg
                                                        
拆除中
                                                         厨房1 (1)_副本.jpg
                                                 IMG_0056_副本.jpg





IMG_0049_副本.jpg

评分

参与人数 1鲜花 +1 收起 理由
木娅 + 1 淡定!

查看全部评分

回复

使用道具 举报

0

收听

2

听众

2877

帖子

未认证商家

注册时间
2010-7-27
精华
0
QQ
发表于 2012-3-30 08:27:35 | 显示全部楼层
QQ 27284524 电话 13033191509
地址 安庆西湖绿洲城 影竹圆 1栋5单元401
回复 支持 反对

使用道具 举报

头像被屏蔽

0

收听

2

听众

91

帖子

禁止访问

注册时间
2011-9-15
精华
0
发表于 2012-3-30 09:37:17 | 显示全部楼层
提示: 作者被禁止或删除 内容自动屏蔽
签名被屏蔽
回复 支持 反对

使用道具 举报

头像被屏蔽

0

收听

1

听众

243

帖子

禁止访问

注册时间
2008-10-7
精华
0
QQ
发表于 2012-3-30 09:39:28 | 显示全部楼层
提示: 作者被禁止或删除 内容自动屏蔽
签名被屏蔽
回复 支持 反对

使用道具 举报

头像被屏蔽

0

收听

1

听众

112

帖子

禁止访问

注册时间
2011-7-12
精华
0
发表于 2012-3-30 10:00:33 | 显示全部楼层
提示: 作者被禁止或删除 内容自动屏蔽
签名被屏蔽
回复 支持 反对

使用道具 举报

2

收听

8

听众

3219

帖子

E粉明星

注册时间
2009-10-21
精华
0
QQ
发表于 2012-3-30 10:14:00 | 显示全部楼层
爱家装饰祝您开工大吉,装修顺利
低 调 奢 华,品 味 生 活
爱家装饰地址:吾悦广场B-1801-1802室
爱家装饰电话: 15856537787微信
回复 支持 反对

使用道具 举报

头像被屏蔽

0

收听

1

听众

1259

帖子

禁止访问

注册时间
2011-3-29
精华
0
发表于 2012-3-30 10:56:25 | 显示全部楼层
提示: 作者被禁止或删除 内容自动屏蔽
签名被屏蔽
回复 支持 反对

使用道具 举报

头像被屏蔽

0

收听

1

听众

125

帖子

禁止访问

注册时间
2009-4-5
精华
0
发表于 2012-3-30 11:05:50 | 显示全部楼层
提示: 作者被禁止或删除 内容自动屏蔽
签名被屏蔽
回复 支持 反对

使用道具 举报

头像被屏蔽

1

收听

3

听众

785

帖子

禁止发言

注册时间
2010-11-2
精华
0

一切为了家。

QQ
发表于 2012-3-30 11:40:10 | 显示全部楼层
提示: 作者被禁止或删除 内容自动屏蔽
签名被屏蔽
回复 支持 反对

使用道具 举报

0

收听

1

听众

101

帖子

E粉新星

注册时间
2012-2-9
精华
0
QQ
发表于 2012-3-30 11:48:22 | 显示全部楼层
祝装修顺利!
回复 支持 反对

使用道具 举报

头像被屏蔽

0

收听

1

听众

787

帖子

禁止访问

注册时间
2010-10-4
精华
0
发表于 2012-3-30 12:50:56 | 显示全部楼层
提示: 作者被禁止或删除 内容自动屏蔽
回复 支持 反对

使用道具 举报

6

收听

2

听众

221

帖子

E粉新星

注册时间
2011-10-30
精华
0
发表于 2012-3-30 13:31:43 | 显示全部楼层
恭喜楼主装修愉快哦
回复 支持 反对

使用道具 举报

6

收听

2

听众

221

帖子

E粉新星

注册时间
2011-10-30
精华
0
发表于 2012-3-30 13:31:59 | 显示全部楼层
恭喜楼主装修愉快哦
回复 支持 反对

使用道具 举报

0

收听

1

听众

127

帖子

E粉新星

注册时间
2010-4-13
精华
0
QQ
发表于 2012-3-30 15:29:50 | 显示全部楼层
GXGXGX!!!!
回复 支持 反对

使用道具 举报

0

收听

5

听众

1574

帖子

未认证商家

注册时间
2007-5-31
精华
0
发表于 2012-3-30 16:23:46 | 显示全部楼层
恭喜楼主开工大吉。呵呵~~~~~~
装修格言:踏踏实实做人 认认真真做事
联系人:   胡广峰   电话: 13063275823    5191201    QQ:534679318
回复 支持 反对

使用道具 举报

9

收听

7

听众

1349

帖子

认证商家

注册时间
2011-11-6
精华
0
发表于 2012-3-30 17:59:52 | 显示全部楼层
祝开工大吉!老房改造是复杂的工程,特别要注意以前的水电管线。
展厅地址:光彩国际家居博览中心一层61号
销售热线:8882250
客服热线:8882251
品鉴热线:13905569197   qq:2502490242
做适合中国人的厨房,您的满意是我们最高的荣誉[
回复 支持 反对

使用道具 举报

2

收听

24

听众

1951

帖子

E粉明星

注册时间
2010-8-8
精华
0
发表于 2012-3-30 18:12:31 | 显示全部楼层
这户人家两居室,只有两米的衣柜。

扯淡。
回复 支持 反对

使用道具 举报

2

收听

24

听众

1951

帖子

E粉明星

注册时间
2010-8-8
精华
0
发表于 2012-3-30 18:22:11 | 显示全部楼层
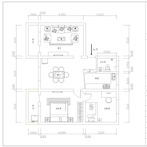
未标题-4副本.jpg

点评

想不到竟叫这么有才。。。。。你的这个方案我也挺喜欢的,我要是小孩子的话,就不愿意跟爸爸妈妈的卧室贴在一起,这样的话,一点隐私都没有了  发表于 2012-4-7 15:42
不管是自家孩子还是客人住次卧,从主卧进出都是很不方便。这个改动很好!  发表于 2012-4-1 00:02
回复 支持 反对

使用道具 举报

0

收听

1

听众

100

帖子

E粉新星

注册时间
2011-6-20
精华
0
 楼主| 发表于 2012-3-30 18:44:25 | 显示全部楼层
竞叫战士 发表于 2012-3-30 18:22

因为是二手房 ,衣柜是之前房东留下的,我们不动

点评

正因为是二手房 ,所以你更要把它变成一手。竞叫的方案很好!!  发表于 2012-4-1 13:59
回复 支持 反对

使用道具 举报

2

收听

24

听众

1951

帖子

E粉明星

注册时间
2010-8-8
精华
0
发表于 2012-3-30 19:28:43 | 显示全部楼层
那组破柜子,500元你会买吗?

都拆除成酱紫,还舍不得那组烂柜子,我是想不通。
回复 支持 反对

使用道具 举报

2

收听

24

听众

1951

帖子

E粉明星

注册时间
2010-8-8
精华
0
发表于 2012-3-30 19:32:45 | 显示全部楼层
小孩子长大了,或来客人在次卧。

你觉得方便么?---我的天……
回复 支持 反对

使用道具 举报

0

收听

3

听众

403

帖子

E粉明星

注册时间
2009-3-9
精华
0
发表于 2012-3-30 20:04:12 | 显示全部楼层
竞叫,说话太直白了
回复 支持 反对

使用道具 举报

头像被屏蔽

0

收听

1

听众

815

帖子

禁止访问

注册时间
2010-6-24
精华
0
发表于 2012-3-30 21:28:44 | 显示全部楼层
提示: 作者被禁止或删除 内容自动屏蔽
回复 支持 反对

使用道具 举报

0

收听

1

听众

100

帖子

E粉新星

注册时间
2011-6-20
精华
0
 楼主| 发表于 2012-3-30 21:40:15 | 显示全部楼层
本帖最后由 chenchun1989 于 2012-3-30 21:47 编辑
竞叫战士 发表于 2012-3-30 18:22

客厅和书房在一起,那以后再书房看书写字不是很吵吗?

点评

客卧和主卧在一起就很方便是吧?  发表于 2012-4-1 14:01
回复 支持 反对

使用道具 举报

头像被屏蔽

0

收听

2

听众

550

帖子

禁止访问

注册时间
2007-1-15
精华
0
发表于 2012-3-30 23:08:23 | 显示全部楼层
提示: 作者被禁止或删除 内容自动屏蔽
签名被屏蔽
回复 支持 反对

使用道具 举报

您需要登录后才可以回帖 登录 | 注册

本版积分规则

联系合作|手机版|手机APP|Archiver|

GMT+8, 2025-12-10 14:26 Powered by Discuz! X3.4

安庆E网生活网站 © 2001-2013 Comsenz Inc. ( 皖ICP备05012696号 )

QQ

安庆瑞易文化 地址:华茂1958-C7栋 联系电话:0556-5306667 联系邮箱:17779721@qq.com 互联网违法和不良信息举报电话和邮箱:0556-5306667 17779721@qq.com

皖公网安备 34080002000101号

    
快速回复 返回顶部 返回列表