安庆E网

搜索
查看: 11678|回复: 51

[设计交流] 咨询设计方案

  [复制链接]

0

收听

3

听众

1005

帖子

E粉明星

注册时间
2006-7-8
精华
0

一级注册民工

发表于 2012-3-31 15:00:28 | 显示全部楼层 |阅读模式

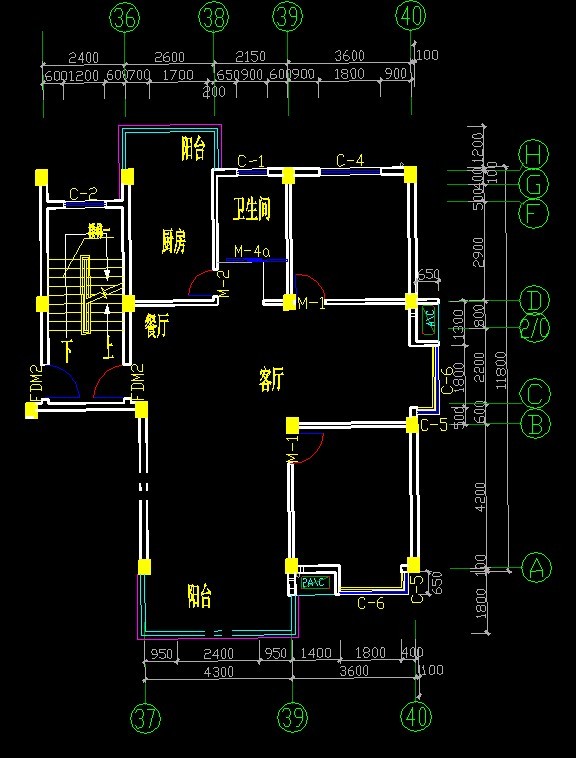
   因时间关系无法一家家去咨询,只好在这请专业人士帮忙参谋下,如何进行设计,大致想法是三代5人居住,风格是适用、简洁。其它细部要求可以进一步从方案上继续推敲,谢谢

1.jpg
做人仍须厚道...
回复

使用道具 举报

1

收听

9

听众

5117

帖子

E粉明星

注册时间
2009-11-24
精华
0

室内装饰设计QQ243160571

QQ
发表于 2012-3-31 15:06:33 | 显示全部楼层
我是设计师,可以加QQ243160571,可以细聊
东盛装饰  您身边的装修专家!
地址:光彩四期烩街公寓6楼(光彩大舞台隔壁)
电话:13625565176   5200845
回复 支持 反对

使用道具 举报

头像被屏蔽

1

收听

3

听众

785

帖子

禁止发言

注册时间
2010-11-2
精华
0

一切为了家。

QQ
发表于 2012-3-31 15:29:47 | 显示全部楼层
提示: 作者被禁止或删除 内容自动屏蔽
签名被屏蔽
回复 支持 反对

使用道具 举报

2

收听

8

听众

3219

帖子

E粉明星

注册时间
2009-10-21
精华
0
QQ
发表于 2012-3-31 15:45:13 | 显示全部楼层
爱家装饰欢迎您的咨询,也可以加我QQ详聊
低 调 奢 华,品 味 生 活
爱家装饰地址:吾悦广场B-1801-1802室
爱家装饰电话: 15856537787微信
回复 支持 反对

使用道具 举报

0

收听

2

听众

87

帖子

E粉新星

注册时间
2012-3-30
精华
0
QQ
发表于 2012-3-31 18:55:48 | 显示全部楼层
http://user.qzone.qq.com/1307527029
欢迎点击参考我的作品。。。。
回复 支持 反对

使用道具 举报

2

收听

24

听众

1951

帖子

E粉明星

注册时间
2010-8-8
精华
0
发表于 2012-3-31 21:00:04 | 显示全部楼层
1、
1.jpg
回复 支持 反对

使用道具 举报

2

收听

24

听众

1951

帖子

E粉明星

注册时间
2010-8-8
精华
0
发表于 2012-3-31 21:19:08 | 显示全部楼层
2.jpg
回复 支持 反对

使用道具 举报

2

收听

24

听众

1951

帖子

E粉明星

注册时间
2010-8-8
精华
0
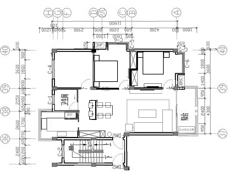
发表于 2012-3-31 22:08:01 | 显示全部楼层
本帖最后由 竞叫战士 于 2012-3-31 22:25 编辑

2.jpg

点评

高手哦。设计的实用性很强,佩服佩服  发表于 2012-4-9 09:06
设计的很不错,您能帮我也设计一下吗?我现在对主卧的门和大门对着比较头疼,而且也不想加隔断,那样会比较浪费地方,谢谢啊  发表于 2012-4-1 09:46

评分

参与人数 1金币 +2 鲜花 +1 +2 收起 理由
商周 + 2 + 1 + 2 有劳你花了不少时间,是不是职业设计?

查看全部评分

回复 支持 反对

使用道具 举报

头像被屏蔽

0

收听

1

听众

738

帖子

禁止访问

注册时间
2009-12-8
精华
0
发表于 2012-4-1 09:17:04 | 显示全部楼层
提示: 作者被禁止或删除 内容自动屏蔽
签名被屏蔽
回复 支持 反对

使用道具 举报

0

收听

3

听众

1005

帖子

E粉明星

注册时间
2006-7-8
精华
0

一级注册民工

 楼主| 发表于 2012-4-1 11:59:22 | 显示全部楼层
活金炭雕 发表于 2012-4-1 09:17
老商啊,我也不懂这个,帮你顶帖

顶顶更健康
做人仍须厚道...
回复 支持 反对

使用道具 举报

0

收听

5

听众

841

帖子

未认证商家

注册时间
2011-10-14
精华
0
QQ
发表于 2012-4-1 14:10:02 | 显示全部楼层
竞战设计的不错 我也来顶一下哈
更多有品位的家庭选择雷拓
一店:南翔博览中心二楼 8882133
二店:百年家居一期 5848688[/
回复 支持 反对

使用道具 举报

0

收听

3

听众

1005

帖子

E粉明星

注册时间
2006-7-8
精华
0

一级注册民工

 楼主| 发表于 2012-4-5 00:00:23 | 显示全部楼层
竞叫战士 发表于 2012-3-31 22:08

能不能考虑客厅东西向?不是免费咨询,方案敲定后,再深谈,有劳大家了
做人仍须厚道...
回复 支持 反对

使用道具 举报

2

收听

24

听众

1951

帖子

E粉明星

注册时间
2010-8-8
精华
0
发表于 2012-4-5 00:08:19 | 显示全部楼层
东西向,通风与采光没有南北好

阳台在客厅使用便利些

我不收费,业余爱好。

点评

是的,但房间利用率低了,与初衷有差距  发表于 2012-4-5 00:10
回复 支持 反对

使用道具 举报

2

收听

8

听众

3219

帖子

E粉明星

注册时间
2009-10-21
精华
0
QQ
发表于 2012-4-5 10:50:22 | 显示全部楼层
回复 支持 反对

使用道具 举报

头像被屏蔽

0

收听

1

听众

178

帖子

禁止访问

注册时间
2007-8-9
精华
0
QQ
发表于 2012-4-6 17:16:35 | 显示全部楼层
提示: 作者被禁止或删除 内容自动屏蔽
回复 支持 反对

使用道具 举报

2

收听

24

听众

1951

帖子

E粉明星

注册时间
2010-8-8
精华
0
发表于 2012-4-6 18:25:05 | 显示全部楼层
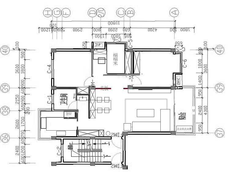
本帖最后由 竞叫战士 于 2012-4-6 18:44 编辑

未标题-1副本.jpg

点评

这个不太好,我还是喜欢榻榻米那种方案,榻榻米下储藏功能很强,加上卧室衣柜,适合五口之家的衣物收纳  发表于 2012-4-9 09:10

评分

参与人数 1金币 +2 收起 理由
商周 + 2 很给力!

查看全部评分

回复 支持 反对

使用道具 举报

2

收听

24

听众

1951

帖子

E粉明星

注册时间
2010-8-8
精华
0
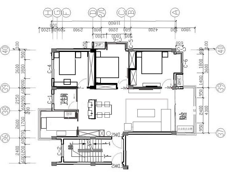
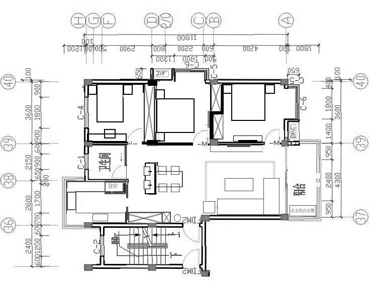
发表于 2012-4-6 18:26:46 | 显示全部楼层
未标题-1.jpg
回复 支持 反对

使用道具 举报

2

收听

24

听众

1951

帖子

E粉明星

注册时间
2010-8-8
精华
0
发表于 2012-4-6 18:50:12 | 显示全部楼层
未标题-1.jpg

点评

这个方案有几点难以处理:1、卫生间无法做成2个空间2、中卧室与主门对上了,有悖于风水3、阳台的上水一般怎么接过去?  发表于 2012-4-9 22:10
回复 支持 反对

使用道具 举报

0

收听

3

听众

403

帖子

E粉明星

注册时间
2009-3-9
精华
0
发表于 2012-4-6 19:26:05 | 显示全部楼层
建议把中间那个卧室的门开在左边,这样,一来大门不直接对着卧室门,二来电视墙也显得宽些,呵呵

点评

1、就这样开,门对餐台也不亚于门门相对。2、电视背景墙并不小气,把主次卧的大门夸张(包括门套)对称起来。  发表于 2012-4-6 19:46
回复 支持 反对

使用道具 举报

头像被屏蔽

0

收听

5

听众

517

帖子

禁止访问

注册时间
2011-1-26
精华
0
发表于 2012-4-6 19:28:01 | 显示全部楼层
提示: 作者被禁止或删除 内容自动屏蔽
回复 支持 反对

使用道具 举报

2

收听

24

听众

1951

帖子

E粉明星

注册时间
2010-8-8
精华
0
发表于 2012-4-6 19:54:46 | 显示全部楼层
河西彩虹 发表于 2012-4-6 19:26
建议把中间那个卧室的门开在左边,这样,一来大门不直接对着卧室门,二来电视墙也显得宽些,呵呵

大概是这个样子:
未标题-4副本.jpg

回复 支持 反对

使用道具 举报

2

收听

24

听众

1951

帖子

E粉明星

注册时间
2010-8-8
精华
0
发表于 2012-4-6 20:01:32 | 显示全部楼层
大概就是这个造型:
未标题-4副本.jpg
回复 支持 反对

使用道具 举报

2

收听

24

听众

1951

帖子

E粉明星

注册时间
2010-8-8
精华
0
发表于 2012-4-6 20:24:34 | 显示全部楼层
规整的豪宅feel!
回复 支持 反对

使用道具 举报

2

收听

3

听众

356

帖子

E粉新星

注册时间
2012-3-24
精华
0
发表于 2012-4-6 20:45:40 | 显示全部楼层
还是6楼的方案最好,通风、采光都不错,利用率最高。5口人怎么住都够了。

点评

楼主孝顺,想把父母安排在靠南或东的房间。  发表于 2012-4-6 20:56
回复 支持 反对

使用道具 举报

2

收听

3

听众

356

帖子

E粉新星

注册时间
2012-3-24
精华
0
发表于 2012-4-6 21:02:49 | 显示全部楼层
安庆易网 发表于 2012-4-6 20:45
还是6楼的方案最好,通风、采光都不错,利用率最高。5口人怎么住都够了。

其实北边卧室也有9点几个平方,够用了。

点评

北边的房间一般做书房或客房的。  发表于 2012-4-6 21:12
回复 支持 反对

使用道具 举报

您需要登录后才可以回帖 登录 | 注册

本版积分规则

联系合作|手机版|手机APP|Archiver|

GMT+8, 2025-12-10 16:27 Powered by Discuz! X3.4

安庆E网生活网站 © 2001-2013 Comsenz Inc. ( 皖ICP备05012696号 )

QQ

安庆瑞易文化 地址:华茂1958-C7栋 联系电话:0556-5306667 联系邮箱:17779721@qq.com 互联网违法和不良信息举报电话和邮箱:0556-5306667 17779721@qq.com

皖公网安备 34080002000101号

    
快速回复 返回顶部 返回列表