安庆E网

搜索
查看: 14946|回复: 97

[装修日记] 衔草筑巢

  [复制链接]

0

收听

1

听众

73

帖子

E粉新星

注册时间
2012-3-31
精华
0
发表于 2012-3-31 20:29:38 | 显示全部楼层 |阅读模式
房子买了好久了,准备装饰一下,有好建议就提哦。
进门就是这个样子。 IMG_1412.JPG


回复

使用道具 举报

0

收听

1

听众

73

帖子

E粉新星

注册时间
2012-3-31
精华
0
 楼主| 发表于 2012-3-31 20:31:56 | 显示全部楼层
这是厨房。
IMG_1411.JPG
回复 支持 反对

使用道具 举报

0

收听

1

听众

73

帖子

E粉新星

注册时间
2012-3-31
精华
0
 楼主| 发表于 2012-3-31 20:35:50 | 显示全部楼层
这是门厅。
IMG_1408.JPG
回复 支持 反对

使用道具 举报

0

收听

1

听众

73

帖子

E粉新星

注册时间
2012-3-31
精华
0
 楼主| 发表于 2012-3-31 20:38:37 | 显示全部楼层
这是另一个角度看门厅。
IMG_1407.JPG
回复 支持 反对

使用道具 举报

0

收听

1

听众

73

帖子

E粉新星

注册时间
2012-3-31
精华
0
 楼主| 发表于 2012-3-31 20:40:40 | 显示全部楼层
这是主卧。
IMG_1406.JPG
回复 支持 反对

使用道具 举报

0

收听

1

听众

73

帖子

E粉新星

注册时间
2012-3-31
精华
0
 楼主| 发表于 2012-3-31 20:42:50 | 显示全部楼层
这是客厅,旁边就是主卧。
IMG_1405.JPG
回复 支持 反对

使用道具 举报

0

收听

1

听众

73

帖子

E粉新星

注册时间
2012-3-31
精华
0
 楼主| 发表于 2012-3-31 20:45:37 | 显示全部楼层
这是楼上的两间卧房,准备并成一间大卧房。
IMG_1399.JPG
回复 支持 反对

使用道具 举报

3

收听

12

听众

2040

帖子

认证商家

注册时间
2009-5-5
精华
0
发表于 2012-4-1 08:44:45 | 显示全部楼层
祝楼主装修愉快!有空来久盛地板坐坐!
回复 支持 反对

使用道具 举报

头像被屏蔽

0

收听

1

听众

738

帖子

禁止访问

注册时间
2009-12-8
精华
0
发表于 2012-4-1 09:02:09 | 显示全部楼层
提示: 作者被禁止或删除 内容自动屏蔽
签名被屏蔽
回复 支持 反对

使用道具 举报

0

收听

1

听众

73

帖子

E粉新星

注册时间
2012-3-31
精华
0
 楼主| 发表于 2012-4-1 09:03:00 | 显示全部楼层
继续,这是楼上的大卧室,弄好了有25平方,应该很不错的。
回复 支持 反对

使用道具 举报

0

收听

1

听众

73

帖子

E粉新星

注册时间
2012-3-31
精华
0
 楼主| 发表于 2012-4-1 09:05:03 | 显示全部楼层
图发错了,应该是这个。
IMG_1402.JPG
IMG_1400.JPG
回复 支持 反对

使用道具 举报

0

收听

1

听众

73

帖子

E粉新星

注册时间
2012-3-31
精华
0
 楼主| 发表于 2012-4-1 09:06:44 | 显示全部楼层
这是楼梯洞孔。
回复 支持 反对

使用道具 举报

0

收听

1

听众

73

帖子

E粉新星

注册时间
2012-3-31
精华
0
 楼主| 发表于 2012-4-1 09:09:10 | 显示全部楼层
又错了,菜鸟,别介意。是这个。
IMG_1398.JPG
回复 支持 反对

使用道具 举报

0

收听

1

听众

73

帖子

E粉新星

注册时间
2012-3-31
精华
0
 楼主| 发表于 2012-4-1 09:11:38 | 显示全部楼层
这是朝北面平台的门。
IMG_1397.JPG
回复 支持 反对

使用道具 举报

0

收听

1

听众

73

帖子

E粉新星

注册时间
2012-3-31
精华
0
 楼主| 发表于 2012-4-1 09:14:24 | 显示全部楼层
这是朝南的阳台,长时间不打理,已经很不像样子了。
IMG_1404.JPG
IMG_1403.JPG
回复 支持 反对

使用道具 举报

0

收听

1

听众

307

帖子

E粉新星

注册时间
2012-2-28
精华
0
QQ
发表于 2012-4-1 09:16:35 | 显示全部楼层
祝装修成功!
龙树底下   富贵人家
地址:光彩大市场四期C区10栋东1号
电话:0556--5179100     15155089100
QQ:4347194
回复 支持 反对

使用道具 举报

0

收听

1

听众

73

帖子

E粉新星

注册时间
2012-3-31
精华
0
 楼主| 发表于 2012-4-1 09:19:46 | 显示全部楼层
这是北面的平台,更糟。
IMG_1393.JPG
IMG_1394.JPG
IMG_1395.JPG
IMG_1396.JPG
回复 支持 反对

使用道具 举报

0

收听

1

听众

73

帖子

E粉新星

注册时间
2012-3-31
精华
0
 楼主| 发表于 2012-4-1 09:25:25 | 显示全部楼层
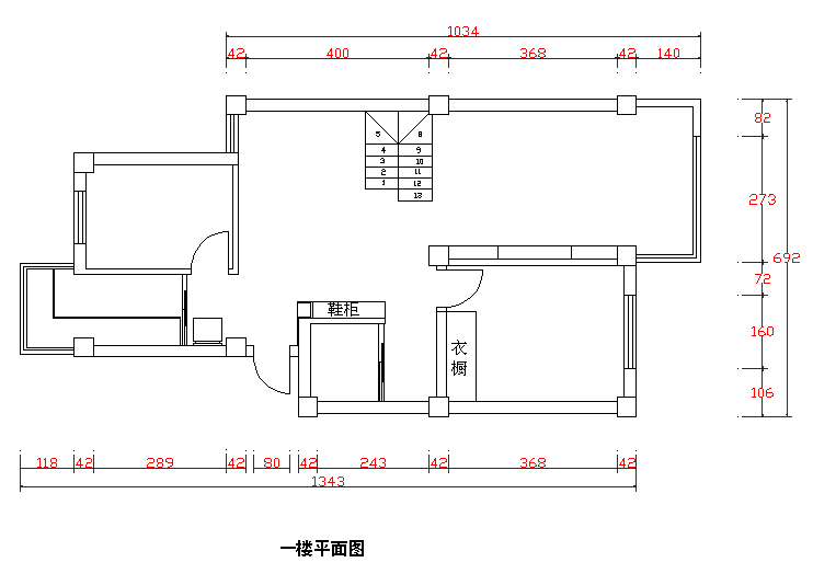
这是房屋的平面图,楼下
20120401085105052.png
回复 支持 反对

使用道具 举报

0

收听

1

听众

73

帖子

E粉新星

注册时间
2012-3-31
精华
0
 楼主| 发表于 2012-4-1 09:27:28 | 显示全部楼层
这是楼上。
20120401085156418.png
回复 支持 反对

使用道具 举报

0

收听

2

听众

2877

帖子

未认证商家

注册时间
2010-7-27
精华
0
QQ
发表于 2012-4-1 09:34:29 | 显示全部楼层
房子很大啊!祝楼主:装修顺利!
QQ 27284524 电话 13033191509
地址 安庆西湖绿洲城 影竹圆 1栋5单元401
回复 支持 反对

使用道具 举报

0

收听

1

听众

101

帖子

E粉新星

注册时间
2012-2-9
精华
0
QQ
发表于 2012-4-1 10:43:54 | 显示全部楼层
祝楼主装修顺利!!
回复 支持 反对

使用道具 举报

0

收听

1

听众

73

帖子

E粉新星

注册时间
2012-3-31
精华
0
 楼主| 发表于 2012-4-1 11:49:15 | 显示全部楼层
初步设计方案:
20120401114225734.png
20120401114249875.png
回复 支持 反对

使用道具 举报

0

收听

1

听众

73

帖子

E粉新星

注册时间
2012-3-31
精华
0
 楼主| 发表于 2012-4-1 11:56:04 | 显示全部楼层
这张图清晰些。
20120401114953000.png
回复 支持 反对

使用道具 举报

2

收听

24

听众

1951

帖子

E粉明星

注册时间
2010-8-8
精华
0
发表于 2012-4-1 12:01:50 | 显示全部楼层
本帖最后由 竞叫战士 于 2012-4-1 12:05 编辑

回复 支持 反对

使用道具 举报

0

收听

1

听众

73

帖子

E粉新星

注册时间
2012-3-31
精华
0
 楼主| 发表于 2012-4-1 12:04:57 | 显示全部楼层
鞋柜的背后就是厕所。
回复 支持 反对

使用道具 举报

您需要登录后才可以回帖 登录 | 注册

本版积分规则

联系合作|手机版|手机APP|Archiver|

GMT+8, 2025-12-10 15:31 Powered by Discuz! X3.4

安庆E网生活网站 © 2001-2013 Comsenz Inc. ( 皖ICP备05012696号 )

QQ

安庆瑞易文化 地址:华茂1958-C7栋 联系电话:0556-5306667 联系邮箱:17779721@qq.com 互联网违法和不良信息举报电话和邮箱:0556-5306667 17779721@qq.com

皖公网安备 34080002000101号

    
快速回复 返回顶部 返回列表