安庆E网

搜索
查看: 11161|回复: 62

竞叫战士帮我看看这个房型

  [复制链接]

2

收听

2

听众

356

帖子

E粉新星

注册时间
2012-3-24
精华
0
发表于 2012-4-6 21:29:23 | 显示全部楼层 |阅读模式
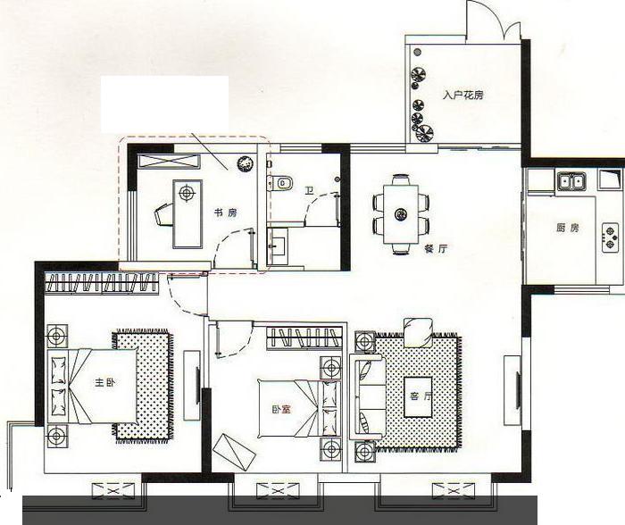
大观天下户型.jpg 这是我南宁的一套房子,是开发商给的平面布置。红圈内是赠送的8.5平米,
回复

使用道具 举报

2

收听

2

听众

356

帖子

E粉新星

注册时间
2012-3-24
精华
0
 楼主| 发表于 2012-4-6 21:30:36 | 显示全部楼层
主要让你看看这样的布置合不合理

点评

没有尺寸,一般开发商的图纸都把家具比例缩小。  发表于 2012-4-6 21:34
回复 支持 反对

使用道具 举报

2

收听

23

听众

1951

帖子

E粉明星

注册时间
2010-8-8
精华
0
发表于 2012-4-6 21:31:47 | 显示全部楼层
我来瞧瞧
回复 支持 反对

使用道具 举报

2

收听

2

听众

356

帖子

E粉新星

注册时间
2012-3-24
精华
0
 楼主| 发表于 2012-4-6 21:51:48 | 显示全部楼层
本帖最后由 安庆易网 于 2012-4-6 22:02 编辑
安庆易网 发表于 2012-4-6 21:30
主要让你看看这样的布置合不合理


书房:2.9*3
主卧室:4.8*3.6
次卧室:3.8*3.3
餐厅+客厅:7.8*4.1
卫生间:1.8*2.9
厨房:3.2*2.6
这房型没有阳台,不过进户花园还不错。
进门除剪力墙外,没有隔墙。

回复 支持 反对

使用道具 举报

2

收听

23

听众

1951

帖子

E粉明星

注册时间
2010-8-8
精华
0
发表于 2012-4-6 21:56:48 | 显示全部楼层
回复 支持 反对

使用道具 举报

0

收听

1

听众

87

帖子

E粉新星

注册时间
2012-3-30
精华
0
QQ
发表于 2012-4-7 08:22:20 | 显示全部楼层
我也来瞧瞧………………
回复 支持 反对

使用道具 举报

2

收听

2

听众

356

帖子

E粉新星

注册时间
2012-3-24
精华
0
 楼主| 发表于 2012-4-7 10:28:07 | 显示全部楼层
设计尸 发表于 2012-4-7 08:22
我也来瞧瞧………………

别光瞧瞧啊,帮我出出招摘!
回复 支持 反对

使用道具 举报

0

收听

1

听众

147

帖子

E粉新星

注册时间
2011-6-28
精华
0
发表于 2012-4-7 12:38:49 | 显示全部楼层
坐便器位置太居中,妨碍了淋浴房或浴缸的布置;餐厅离厨房太远,貌合神离中……
回复 支持 反对

使用道具 举报

1

收听

7

听众

5114

帖子

E粉明星

注册时间
2009-11-24
精华
0

室内装饰设计QQ243160571

QQ
发表于 2012-4-7 14:59:49 | 显示全部楼层
户型还是不错的
回复 支持 反对

使用道具 举报

2

收听

2

听众

356

帖子

E粉新星

注册时间
2012-3-24
精华
0
 楼主| 发表于 2012-4-7 16:20:26 | 显示全部楼层
本帖最后由 安庆易网 于 2012-4-7 16:24 编辑
绝代芳华 发表于 2012-4-7 12:38
坐便器位置太居中,妨碍了淋浴房或浴缸的布置;餐厅离厨房太远,貌合神离中……


这是开发商给的图,正考虑装修呢。厨房紧连着餐厅还远
回复 支持 反对

使用道具 举报

2

收听

2

听众

356

帖子

E粉新星

注册时间
2012-3-24
精华
0
 楼主| 发表于 2012-4-7 16:21:10 | 显示全部楼层
wjj11192226 发表于 2012-4-7 14:59
户型还是不错的


就是面积小了点,没有阳台。
回复 支持 反对

使用道具 举报

1

收听

7

听众

5114

帖子

E粉明星

注册时间
2009-11-24
精华
0

室内装饰设计QQ243160571

QQ
发表于 2012-4-7 16:36:33 | 显示全部楼层
安庆易网 发表于 2012-4-7 16:21
就是面积小了点,没有阳台。

就算没有阳台,户型比安庆的要好多了,很实用也比较合理,是我喜欢的那种
东盛装饰  您身边的装修专家!
地址:光彩四期烩街公寓6楼(光彩大舞台隔壁)
电话:13625565176   5200845
回复 支持 反对

使用道具 举报

0

收听

1

听众

147

帖子

E粉新星

注册时间
2011-6-28
精华
0
发表于 2012-4-7 16:42:55 | 显示全部楼层
安庆易网 发表于 2012-4-7 16:20
这是开发商给的图,正考虑装修呢。厨房紧连着餐厅还远?

餐桌早已疏远了厨房,暗暗恋上卫生间的墙!!!!
回复 支持 反对

使用道具 举报

2

收听

2

听众

356

帖子

E粉新星

注册时间
2012-3-24
精华
0
 楼主| 发表于 2012-4-7 16:58:09 | 显示全部楼层
绝代芳华 发表于 2012-4-7 16:42
餐桌早已疏远了厨房,暗暗恋上卫生间的墙!!!!

你的意思要把餐桌放在厨房里????????
你要知道餐厅跨度才4.1M哦。
你可能对装修也不怎么在行吧。

回复 支持 反对

使用道具 举报

2

收听

2

听众

356

帖子

E粉新星

注册时间
2012-3-24
精华
0
 楼主| 发表于 2012-4-7 17:02:48 | 显示全部楼层
wjj11192226 发表于 2012-4-7 16:36
就算没有阳台,户型比安庆的要好多了,很实用也比较合理,是我喜欢的那种

我也还满意。毕竟是只有80几平,光线和通风都还很好。
我当时看上的就是那个进户花园!!!!!!!
回复 支持 反对

使用道具 举报

6

收听

2

听众

2846

帖子

认证商家

注册时间
2008-5-12
精华
1

我的原则是今天的客户,明天的朋友,走自己的路让别人说去吧。

QQ
发表于 2012-4-7 19:02:11 | 显示全部楼层
谈一下个人观点,橱柜设计大失水准。

点评

没有切菜的地方还是洗菜光线不好?  发表于 2012-4-7 20:04
回复 支持 反对

使用道具 举报

2

收听

2

听众

356

帖子

E粉新星

注册时间
2012-3-24
精华
0
 楼主| 发表于 2012-4-7 19:50:58 | 显示全部楼层
新派橱柜 发表于 2012-4-7 19:02
谈一下个人观点,橱柜设计大失水准。

不好意思,没有设计,这是开发商给的户型图

点评

已经很合理了。 几个人住?一定要一个书房或客房?  发表于 2012-4-7 20:02
回复 支持 反对

使用道具 举报

头像被屏蔽

0

收听

3

听众

24

帖子

禁止访问

注册时间
2012-4-1
精华
0
发表于 2012-4-7 20:02:11 | 显示全部楼层
提示: 作者被禁止或删除 内容自动屏蔽
回复 支持 反对

使用道具 举报

2

收听

2

听众

356

帖子

E粉新星

注册时间
2012-3-24
精华
0
 楼主| 发表于 2012-4-7 20:06:08 | 显示全部楼层
安庆易网 发表于 2012-4-7 19:50
不好意思,没有设计,这是开发商给的户型图

就孩子结婚住,未来的三口之家吧

点评

客厅的飘窗是落地的?  发表于 2012-4-7 20:09
真奢侈  发表于 2012-4-7 20:07
回复 支持 反对

使用道具 举报

2

收听

2

听众

356

帖子

E粉新星

注册时间
2012-3-24
精华
0
 楼主| 发表于 2012-4-7 20:08:54 | 显示全部楼层
竞叫战士 发表于 2012-4-6 21:56

就孩子结婚住,未来的三口之家吧
回复 支持 反对

使用道具 举报

2

收听

2

听众

356

帖子

E粉新星

注册时间
2012-3-24
精华
0
 楼主| 发表于 2012-4-7 20:17:42 | 显示全部楼层
竞叫战士 发表于 2012-4-6 21:56

也是没得法子,都要了我几层皮。

客厅飘窗不到地;卧室也是。
回复 支持 反对

使用道具 举报

2

收听

23

听众

1951

帖子

E粉明星

注册时间
2010-8-8
精华
0
发表于 2012-4-7 20:38:53 | 显示全部楼层
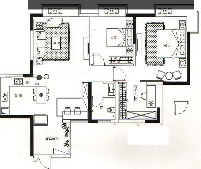
参考一下吧。
04.jpg
回复 支持 反对

使用道具 举报

2

收听

2

听众

356

帖子

E粉新星

注册时间
2012-3-24
精华
0
 楼主| 发表于 2012-4-7 20:54:09 | 显示全部楼层
竞叫战士 发表于 2012-4-7 20:38
参考一下吧。

大师就是不一样,厨房处很好。
我那伢子是个书呆子,书特别的多,可否安排一个大一点的书架呢?
回复 支持 反对

使用道具 举报

头像被屏蔽

0

收听

0

听众

168

帖子

禁止访问

注册时间
2012-2-24
精华
0
QQ
发表于 2012-4-7 21:16:14 | 显示全部楼层
提示: 作者被禁止或删除 内容自动屏蔽
回复 支持 反对

使用道具 举报

头像被屏蔽

0

收听

0

听众

168

帖子

禁止访问

注册时间
2012-2-24
精华
0
QQ
发表于 2012-4-7 21:20:53 | 显示全部楼层
提示: 作者被禁止或删除 内容自动屏蔽
回复 支持 反对

使用道具 举报

您需要登录后才可以回帖 登录 | 注册

本版积分规则

联系合作|手机版|手机APP|Archiver|

GMT+8, 2025-10-24 19:04 Powered by Discuz! X3.4

安庆E网生活网站 © 2001-2013 Comsenz Inc. ( 皖ICP备05012696号 )

QQ

安庆瑞易文化 地址:华茂1958-C7栋 联系电话:0556-5306667 联系邮箱:17779721@qq.com 互联网违法和不良信息举报电话和邮箱:0556-5306667 17779721@qq.com

皖公网安备 34080002000101号

    
快速回复 返回顶部 返回列表