安庆E网

搜索
楼主: 天柱石牛

[装修日记] 绿地绿色庭院!(网购无框画)

  [复制链接]
头像被屏蔽

1

收听

1

听众

536

帖子

禁止访问

注册时间
2012-4-9
精华
0
 楼主| 发表于 2012-5-1 07:04:18 | 显示全部楼层
提示: 作者被禁止或删除 内容自动屏蔽
签名被屏蔽
回复 支持 反对

使用道具 举报

0

收听

3

听众

321

帖子

E粉新星

注册时间
2011-5-5
精华
0
发表于 2012-5-1 08:47:45 | 显示全部楼层
天柱石牛 发表于 2012-5-1 07:04
谢谢!你家开始了吗?

快结束了。
回复 支持 反对

使用道具 举报

头像被屏蔽

1

收听

1

听众

536

帖子

禁止访问

注册时间
2012-4-9
精华
0
 楼主| 发表于 2012-5-1 13:07:57 | 显示全部楼层
提示: 作者被禁止或删除 内容自动屏蔽
签名被屏蔽
回复 支持 反对

使用道具 举报

2

收听

23

听众

1951

帖子

E粉明星

注册时间
2010-8-8
精华
0
发表于 2012-5-1 17:07:56 | 显示全部楼层
本帖最后由 竞叫战士 于 2012-5-1 17:23 编辑

可恶的缺少字数
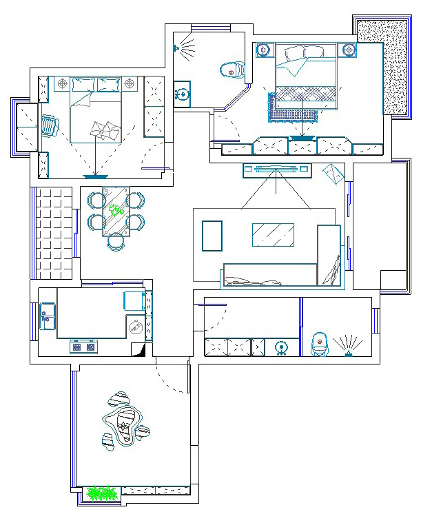
11p99c2235szhengfeng副本.jpg
11p99c2235szhengfeng副本.jpg
回复 支持 反对

使用道具 举报

2

收听

23

听众

1951

帖子

E粉明星

注册时间
2010-8-8
精华
0
发表于 2012-5-1 17:20:15 | 显示全部楼层
本帖最后由 竞叫战士 于 2012-5-1 18:07 编辑

1、原设计衣柜以及厨房收纳不足
2、原设计次卧朝沙发的锐利墙角没有处理
3、客人较多,可以去入户花园就餐
4、开放餐厨及吧台融为一体,使仓促、呆板的空间赋予拓展灵动起来
5、沙发的边几还是要地,辅助光源和电话是必须地
6、还是建议在餐客厅装中央空调
7、廉价的实木地板和便宜的强化地板,无条件地选择实木地板。
回复 支持 反对

使用道具 举报

头像被屏蔽

1

收听

1

听众

536

帖子

禁止访问

注册时间
2012-4-9
精华
0
 楼主| 发表于 2012-5-1 20:55:42 | 显示全部楼层
提示: 作者被禁止或删除 内容自动屏蔽
签名被屏蔽
回复 支持 反对

使用道具 举报

头像被屏蔽

1

收听

1

听众

536

帖子

禁止访问

注册时间
2012-4-9
精华
0
 楼主| 发表于 2012-5-1 20:59:55 | 显示全部楼层
提示: 作者被禁止或删除 内容自动屏蔽
签名被屏蔽
回复 支持 反对

使用道具 举报

头像被屏蔽

1

收听

1

听众

536

帖子

禁止访问

注册时间
2012-4-9
精华
0
 楼主| 发表于 2012-5-1 21:08:26 | 显示全部楼层
提示: 作者被禁止或删除 内容自动屏蔽
签名被屏蔽
回复 支持 反对

使用道具 举报

头像被屏蔽

0

收听

0

听众

6

帖子

禁止访问

注册时间
2012-4-6
精华
0
发表于 2012-5-1 22:40:59 | 显示全部楼层
提示: 作者被禁止或删除 内容自动屏蔽
回复 支持 反对

使用道具 举报

头像被屏蔽

0

收听

0

听众

25

帖子

禁止访问

注册时间
2010-12-7
精华
0
发表于 2012-5-1 23:46:05 | 显示全部楼层
提示: 作者被禁止或删除 内容自动屏蔽
签名被屏蔽
回复 支持 反对

使用道具 举报

0

收听

0

听众

625

帖子

E粉明星

注册时间
2005-6-27
精华
0
发表于 2012-5-2 11:44:28 | 显示全部楼层
天柱石牛 发表于 2012-4-23 20:51
发上一组外景。

窗外的风景好美,希望面对面装使公司将LZ家装修得更美,我们将一直关注。。。
怎么效果图也没有,要考虑整体效果,装修风格,尤其颜色的考虑,怎么没见到设计师的设计考虑,大家发表不少了。
祝楼主装修顺利,装修要请我们去哦。
回复 支持 反对

使用道具 举报

1

收听

2

听众

2053

帖子

E粉明星

注册时间
2009-12-7
精华
0
QQ
发表于 2012-5-2 15:50:10 | 显示全部楼层
小区环境不错
安庆光彩四期二楼D区12幢2号宅本照明
回复 支持 反对

使用道具 举报

0

收听

0

听众

205

帖子

E粉新星

注册时间
2010-12-13
精华
0
发表于 2012-5-2 16:39:54 | 显示全部楼层
小区风景唯一的缺点就是那池水,看上去一点都不清澈,好像还有些脏脏的感觉,夏天会招蚊子吧。
回复 支持 反对

使用道具 举报

头像被屏蔽

1

收听

1

听众

536

帖子

禁止访问

注册时间
2012-4-9
精华
0
 楼主| 发表于 2012-5-2 19:38:37 | 显示全部楼层
提示: 作者被禁止或删除 内容自动屏蔽
签名被屏蔽
回复 支持 反对

使用道具 举报

头像被屏蔽

1

收听

1

听众

536

帖子

禁止访问

注册时间
2012-4-9
精华
0
 楼主| 发表于 2012-5-2 19:39:43 | 显示全部楼层
提示: 作者被禁止或删除 内容自动屏蔽
签名被屏蔽
回复 支持 反对

使用道具 举报

头像被屏蔽

1

收听

1

听众

536

帖子

禁止访问

注册时间
2012-4-9
精华
0
 楼主| 发表于 2012-5-2 19:43:09 | 显示全部楼层
提示: 作者被禁止或删除 内容自动屏蔽
签名被屏蔽
回复 支持 反对

使用道具 举报

1

收听

3

听众

684

帖子

未认证商家

注册时间
2012-2-12
精华
0
发表于 2012-5-4 09:36:29 | 显示全部楼层
预祝楼主装修顺利!顶!
锦致橱柜,做最适合中国人的厨房
展厅地址:南翔光彩国际家居博览中心一层61号
品鉴热线:8882250
服务热
回复 支持 反对

使用道具 举报

头像被屏蔽

1

收听

1

听众

536

帖子

禁止访问

注册时间
2012-4-9
精华
0
 楼主| 发表于 2012-5-5 11:35:38 | 显示全部楼层
提示: 作者被禁止或删除 内容自动屏蔽
签名被屏蔽
回复 支持 反对

使用道具 举报

头像被屏蔽

1

收听

1

听众

536

帖子

禁止访问

注册时间
2012-4-9
精华
0
 楼主| 发表于 2012-5-9 05:02:14 | 显示全部楼层
提示: 作者被禁止或删除 内容自动屏蔽
签名被屏蔽
回复 支持 反对

使用道具 举报

1

收听

2

听众

2053

帖子

E粉明星

注册时间
2009-12-7
精华
0
QQ
发表于 2012-5-9 13:03:27 | 显示全部楼层
天柱石牛 发表于 2012-5-9 05:02
瓷砖已经进场。
请各位高手解惑:贴瓷砖要留缝吗?留多大缝?

那要看你家贴的是多大的瓷砖,还有是用的什么砖,我家用的是防古砖,留了缝感觉效果很不错。以前听砖工说瓷砖最好是留缝,因为瓷砖也会热膨冷缩的。
安庆光彩四期二楼D区12幢2号宅本照明
回复 支持 反对

使用道具 举报

头像被屏蔽

1

收听

1

听众

536

帖子

禁止访问

注册时间
2012-4-9
精华
0
 楼主| 发表于 2012-5-9 13:05:15 | 显示全部楼层
提示: 作者被禁止或删除 内容自动屏蔽
签名被屏蔽
回复 支持 反对

使用道具 举报

头像被屏蔽

0

收听

0

听众

10

帖子

禁止访问

注册时间
2011-12-8
精华
0
发表于 2012-5-9 14:25:02 | 显示全部楼层
提示: 作者被禁止或删除 内容自动屏蔽
回复 支持 反对

使用道具 举报

头像被屏蔽

1

收听

1

听众

536

帖子

禁止访问

注册时间
2012-4-9
精华
0
 楼主| 发表于 2012-5-11 07:25:38 | 显示全部楼层
提示: 作者被禁止或删除 内容自动屏蔽
签名被屏蔽
回复 支持 反对

使用道具 举报

头像被屏蔽

1

收听

1

听众

536

帖子

禁止访问

注册时间
2012-4-9
精华
0
 楼主| 发表于 2012-5-11 07:36:13 | 显示全部楼层
提示: 作者被禁止或删除 内容自动屏蔽
签名被屏蔽
回复 支持 反对

使用道具 举报

头像被屏蔽

1

收听

1

听众

536

帖子

禁止访问

注册时间
2012-4-9
精华
0
 楼主| 发表于 2012-5-11 07:39:29 | 显示全部楼层
提示: 作者被禁止或删除 内容自动屏蔽
签名被屏蔽
回复 支持 反对

使用道具 举报

您需要登录后才可以回帖 登录 | 注册

本版积分规则

联系合作|手机版|手机APP|Archiver|

GMT+8, 2025-10-29 00:28 Powered by Discuz! X3.4

安庆E网生活网站 © 2001-2013 Comsenz Inc. ( 皖ICP备05012696号 )

QQ

安庆瑞易文化 地址:华茂1958-C7栋 联系电话:0556-5306667 联系邮箱:17779721@qq.com 互联网违法和不良信息举报电话和邮箱:0556-5306667 17779721@qq.com

皖公网安备 34080002000101号

    
快速回复 返回顶部 返回列表