安庆E网

搜索
查看: 8164|回复: 41

[装修日记] 我的小家开始装修啦!(施工单位:安庆弘扬装饰)

  [复制链接]
头像被屏蔽

0

收听

1

听众

6

帖子

禁止访问

注册时间
2012-4-17
精华
0
发表于 2012-4-19 14:31:26 | 显示全部楼层 |阅读模式
提示: 作者被禁止或删除 内容自动屏蔽
回复

使用道具 举报

头像被屏蔽

0

收听

1

听众

6

帖子

禁止访问

注册时间
2012-4-17
精华
0
 楼主| 发表于 2012-4-19 14:44:46 | 显示全部楼层
提示: 作者被禁止或删除 内容自动屏蔽
回复 支持 反对

使用道具 举报

2

收听

24

听众

1951

帖子

E粉明星

注册时间
2010-8-8
精华
0
发表于 2012-4-19 15:02:44 | 显示全部楼层
本帖最后由 竞叫战士 于 2012-4-19 17:00 编辑

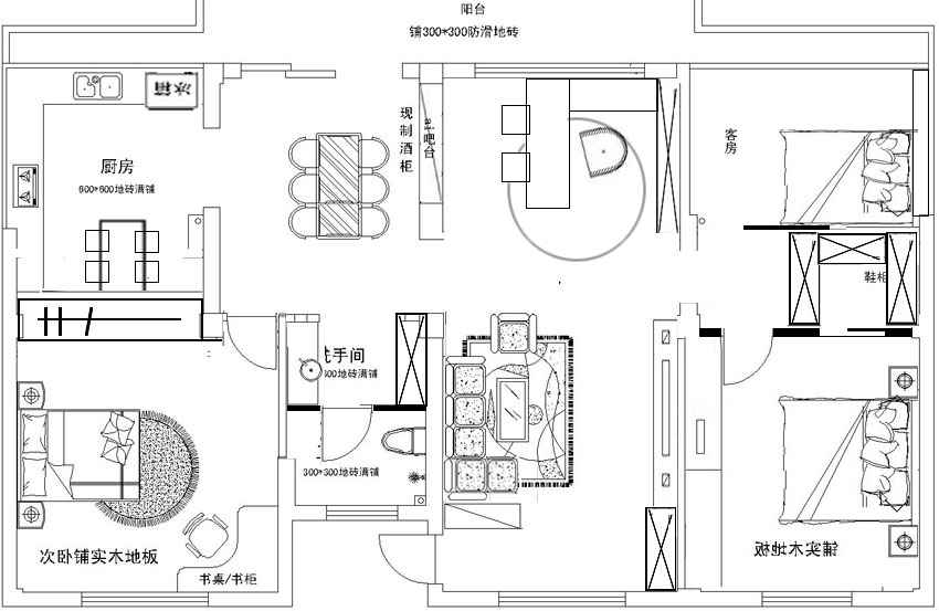
未标题-2副本.jpg

点评

E网因你而精彩: 3.0
房间不小哦,估计在140以上吧?  发表于 2012-5-2 17:19
E网因你而精彩: 3
  发表于 2012-4-21 13:27
回复 支持 反对

使用道具 举报

0

收听

2

听众

102

帖子

未认证商家

注册时间
2012-4-4
精华
0
QQ
发表于 2012-4-19 15:06:02 | 显示全部楼层
布置很好  顶一下
蒙娜丽莎卫浴—品味艺术人生
旗舰店:安庆市光彩大市场四期D区8栋2号
Call:0556-5363922  QQ:434482655
回复 支持 反对

使用道具 举报

头像被屏蔽

0

收听

1

听众

6

帖子

禁止访问

注册时间
2012-4-17
精华
0
 楼主| 发表于 2012-4-19 15:08:50 | 显示全部楼层
提示: 作者被禁止或删除 内容自动屏蔽
回复 支持 反对

使用道具 举报

0

收听

3

听众

403

帖子

E粉明星

注册时间
2009-3-9
精华
0
发表于 2012-4-19 15:20:47 | 显示全部楼层
怎么厅是个暗厅?应该再好好设计下
回复 支持 反对

使用道具 举报

0

收听

3

听众

403

帖子

E粉明星

注册时间
2009-3-9
精华
0
发表于 2012-4-19 15:22:18 | 显示全部楼层
哦,不好意思,看错了,厅有窗户的
回复 支持 反对

使用道具 举报

0

收听

5

听众

841

帖子

未认证商家

注册时间
2011-10-14
精华
0
QQ
发表于 2012-4-19 18:04:30 | 显示全部楼层
都不错 竞战士修改后的效果图更好点哈
更多有品位的家庭选择雷拓
一店:南翔博览中心二楼 8882133
二店:百年家居一期 5848688[/
回复 支持 反对

使用道具 举报

0

收听

2

听众

38

帖子

E粉新人

注册时间
2012-4-16
精华
0
QQ
发表于 2012-4-19 19:06:03 | 显示全部楼层
恭喜恭喜!
回复 支持 反对

使用道具 举报

2

收听

24

听众

1951

帖子

E粉明星

注册时间
2010-8-8
精华
0
发表于 2012-4-19 19:08:30 | 显示全部楼层
本帖最后由 竞叫战士 于 2012-4-20 09:24 编辑

楼主沙发和次卧的床的尺寸比例不对

66.jpg
回复 支持 反对

使用道具 举报

2

收听

24

听众

1951

帖子

E粉明星

注册时间
2010-8-8
精华
0
发表于 2012-4-19 21:41:03 | 显示全部楼层
这种图,楼主千万不要签字!



切切!
回复 支持 反对

使用道具 举报

头像被屏蔽

0

收听

1

听众

1259

帖子

禁止访问

注册时间
2011-3-29
精华
0
发表于 2012-4-20 09:17:40 | 显示全部楼层
提示: 作者被禁止或删除 内容自动屏蔽
签名被屏蔽
回复 支持 反对

使用道具 举报

头像被屏蔽

0

收听

1

听众

6

帖子

禁止访问

注册时间
2012-4-17
精华
0
 楼主| 发表于 2012-4-20 09:28:07 | 显示全部楼层
提示: 作者被禁止或删除 内容自动屏蔽
回复 支持 反对

使用道具 举报

头像被屏蔽

0

收听

1

听众

6

帖子

禁止访问

注册时间
2012-4-17
精华
0
 楼主| 发表于 2012-4-20 09:32:58 | 显示全部楼层
提示: 作者被禁止或删除 内容自动屏蔽
回复 支持 反对

使用道具 举报

2

收听

24

听众

1951

帖子

E粉明星

注册时间
2010-8-8
精华
0
发表于 2012-4-20 09:54:27 | 显示全部楼层
1、厕所门尽可能使用平开门,使用移门的是菜鸟。(不能使用平开门的例外)
2、至于书房、客房。都不是问题。(前提不要把临时功能作为十年必备需求)
3、你的客厅沙发比例不对。
4、你必须使用我设计的玄关,否则追悔莫及。(我不相信有人跟我一样设计玄关,我自认为我是玄关达人。)
5、空调?使用中央空调或挂机,柜机是鸡肋。使用柜机的都是土掉渣的过时人士。
6、买这号宅子,不简单。不要委屈自己,更不要把粉涂在屁股上!

点评

竞叫啊,你可以做设计了。狂毛先生走,你来了。这是TX们的大幸啊。  发表于 2012-4-20 16:21
回复 支持 反对

使用道具 举报

2

收听

24

听众

1951

帖子

E粉明星

注册时间
2010-8-8
精华
0
发表于 2012-4-20 09:58:25 | 显示全部楼层
楼主如果是业主,我同情你

楼主若不是野猪,我鄙视你
回复 支持 反对

使用道具 举报

头像被屏蔽

0

收听

1

听众

6

帖子

禁止访问

注册时间
2012-4-17
精华
0
 楼主| 发表于 2012-4-20 10:07:34 | 显示全部楼层
提示: 作者被禁止或删除 内容自动屏蔽
回复 支持 反对

使用道具 举报

2

收听

24

听众

1951

帖子

E粉明星

注册时间
2010-8-8
精华
0
发表于 2012-4-20 10:23:15 | 显示全部楼层
本帖最后由 竞叫战士 于 2012-4-20 10:33 编辑

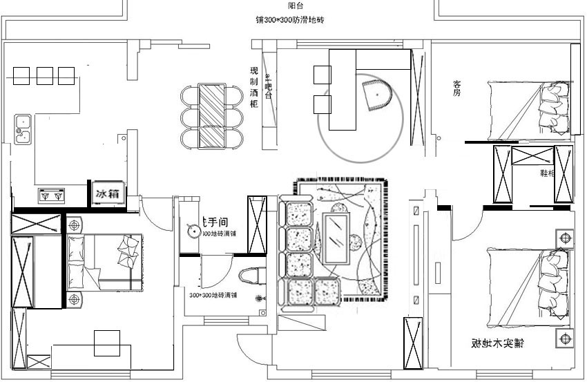
把书房开放就是为了大气

客人多了,书房也是客厅功能的延伸

(按照你的摆放,你能多坐几个人?)

花花草草你有大阳台。
回复 支持 反对

使用道具 举报

0

收听

3

听众

403

帖子

E粉明星

注册时间
2009-3-9
精华
0
发表于 2012-4-20 10:52:37 | 显示全部楼层
5、空调?使用中央空调或挂机,柜机是鸡肋。使用柜机的都是土掉渣的过时人士。
   为什么不要用柜机?能说说理由吗?

点评

把电器作为陈设的时代已经一去不复返了。中央空调并不贵。  发表于 2012-4-20 11:37
回复 支持 反对

使用道具 举报

2

收听

1

听众

130

帖子

E粉新星

注册时间
2012-2-23
精华
0
QQ
发表于 2012-4-20 11:04:19 | 显示全部楼层

回复 支持 反对

使用道具 举报

1

收听

3

听众

1557

帖子

E粉明星

注册时间
2005-5-11
精华
1

发表于 2012-4-20 11:17:39 | 显示全部楼层
本帖最后由 hongzai 于 2012-4-20 11:20 编辑

1.大客厅用挂机确实比较勉强,中央空调需要量力而行;
2.鞋柜玄关是必须要的,沙发和电视背景可以对调,解决空调安装的问题;
3.阳台做个大鞋柜是个很好的做法,家中的鞋子永远都放不下;
4.支持卫生间做平开门,移门确实土的掉渣。。。
5.书房还是有个移门的好,最起码利于空调效果和节能
宠辱不惊,静观堂前花开花落;去留无意,漫看天边云卷云舒。[img]http://attachments.goapk.com/album/2012
回复 支持 反对

使用道具 举报

2

收听

24

听众

1951

帖子

E粉明星

注册时间
2010-8-8
精华
0
发表于 2012-4-20 14:50:16 | 显示全部楼层
书房的那道门不要,门套要1千元,移门中等的也要4---5000元。


5千元为了节能低排?一年一个季度用空调,一天用三小时,一个小时三度点,一个季度电费大概500元,十年的电费啊。

呵呵,不还有个客房么?需要空调就到那个空间去……

点评

书房门做的好,也是一道与众不同的风景啊  发表于 2012-4-20 17:16
可家里来人了,还是得在客厅里招待啊!家庭中央空调不好吧,我家亲戚用的,修理费用好高的,结果几年后他又装了两个挂机  发表于 2012-4-20 15:53
回复 支持 反对

使用道具 举报

0

收听

1

听众

200

帖子

房产中介

注册时间
2010-8-14
精华
0
发表于 2012-4-20 16:39:45 | 显示全部楼层
房子不错。进门的位置应该有个鞋柜才合理。生活才方便。另外洗衣机放哪?阳台吗?

点评

洗衣机在洗脸槽对面,柜体下面。我能力有限不会表达。谢谢关注。  发表于 2012-4-20 17:24
回复 支持 反对

使用道具 举报

2

收听

24

听众

1951

帖子

E粉明星

注册时间
2010-8-8
精华
0
发表于 2012-4-20 17:20:29 | 显示全部楼层
to hongzai:

估计他的客厅书房之间有梁,不要再人为地功能分区。
回复 支持 反对

使用道具 举报

2

收听

24

听众

1951

帖子

E粉明星

注册时间
2010-8-8
精华
0
发表于 2012-4-20 17:22:24 | 显示全部楼层
可家里来人了,还是得在客厅里招待啊!家庭中央空调不好吧,我家亲戚用的,修理费用好高的,结果几年后他又装了两个挂机

嗯,有喝水被呛死的。不能以点带面。如果中央空调故障率如此高,厂家可以关门了。
回复 支持 反对

使用道具 举报

您需要登录后才可以回帖 登录 | 注册

本版积分规则

联系合作|手机版|手机APP|Archiver|

GMT+8, 2025-12-19 14:35 Powered by Discuz! X3.4

安庆E网生活网站 © 2001-2013 Comsenz Inc. ( 皖ICP备05012696号 )

QQ

安庆瑞易文化 地址:华茂1958-C7栋 联系电话:0556-5306667 联系邮箱:17779721@qq.com 互联网违法和不良信息举报电话和邮箱:0556-5306667 17779721@qq.com

皖公网安备 34080002000101号

    
快速回复 返回顶部 返回列表