安庆E网

搜索
查看: 5092|回复: 18

[施工探讨] 求高手帮我看看这个平面图,做个平面布置

[复制链接]

2

收听

3

听众

356

帖子

E粉新星

注册时间
2012-3-24
精华
0
发表于 2012-5-2 22:26:41 | 显示全部楼层 |阅读模式
本帖最后由 安庆易网 于 2012-5-8 11:05 编辑

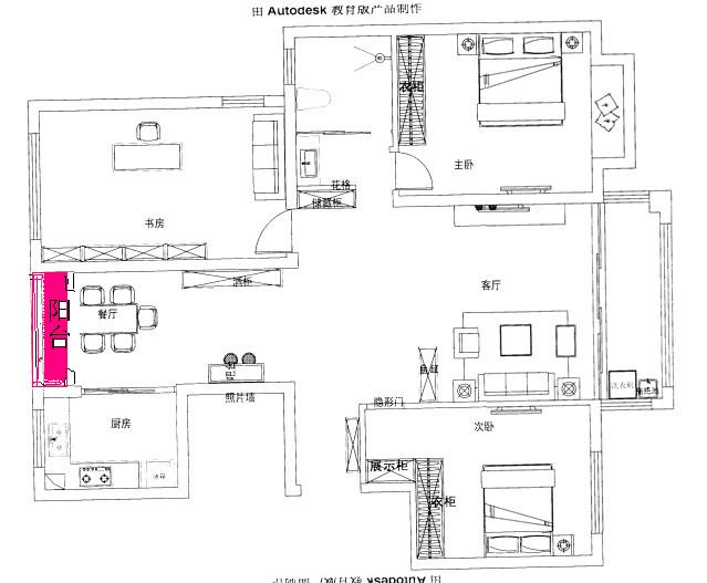
平面图2.png

求高手帮我看看这个平面图,做个平面布置图
回复

使用道具 举报

2

收听

3

听众

356

帖子

E粉新星

注册时间
2012-3-24
精华
0
 楼主| 发表于 2012-5-3 11:11:15 | 显示全部楼层
竞叫战士 发表于 2012-5-3 01:11
guy关于i会会哦hi哦炯炯joi级爬坡

谢谢你!
1.就是进户门处的那个是公共电线井,改不了;
2.还有厨房和北阳台的那个墙是剪力墙。(不好意思,我不会标注,让你误解了
3.卫生间我只想保留一个,另一个做储物,不知可照?如行,你说保留哪个好呢?
    目前是主卫比客卫要大。
麻烦你再帮我过过眼!!!

回复 支持 反对

使用道具 举报

2

收听

3

听众

356

帖子

E粉新星

注册时间
2012-3-24
精华
0
 楼主| 发表于 2012-5-3 11:23:35 | 显示全部楼层
竞叫战士 发表于 2012-5-3 11:19
几个人住?

三人住,北面想做书房
回复 支持 反对

使用道具 举报

0

收听

1

听众

63

帖子

E粉新星

注册时间
2012-2-19
精华
0
发表于 2012-5-3 11:29:38 | 显示全部楼层
您好,可以让我们的设计师帮您看看!
电话:0556-5533606

点评

谢谢,让你们设计师看看,做个平面布置  发表于 2012-5-3 11:45
安庆1978装饰工程有限公司
电话:0556-5533350/ 5533351
地址:湖心南路110号正奇家居体验馆二楼
回复 支持 反对

使用道具 举报

0

收听

1

听众

348

帖子

E粉新星

注册时间
2010-9-17
精华
0
发表于 2012-5-4 08:40:34 | 显示全部楼层
”【壹玖柒捌】 发表于 2012-5-3 11:29
您好,可以让我们的设计师帮您看看!
电话:0556-5533606

光说不做,让你出个设计图呢?
回复 支持 反对

使用道具 举报

2

收听

3

听众

356

帖子

E粉新星

注册时间
2012-3-24
精华
0
 楼主| 发表于 2012-5-4 11:00:45 | 显示全部楼层
我估计他们出图要点时间呢!
回复 支持 反对

使用道具 举报

2

收听

3

听众

356

帖子

E粉新星

注册时间
2012-3-24
精华
0
 楼主| 发表于 2012-5-5 00:00:22 | 显示全部楼层
哪位大师帮看看啊!
回复 支持 反对

使用道具 举报

0

收听

1

听众

63

帖子

E粉新星

注册时间
2012-2-19
精华
0
发表于 2012-5-6 16:38:39 | 显示全部楼层
您好!方便告知您的QQ吗?我们设计师已经设计好图了,可以发给你看看。
安庆1978装饰工程有限公司
电话:0556-5533350/ 5533351
地址:湖心南路110号正奇家居体验馆二楼
回复 支持 反对

使用道具 举报

2

收听

8

听众

3219

帖子

E粉明星

注册时间
2009-10-21
精华
0
QQ
发表于 2012-5-6 18:01:16 | 显示全部楼层
您好,方便去现场测量一下。帮你设计分图纸
5526533   15856537787
爱家装饰欢迎您
低 调 奢 华,品 味 生 活
爱家装饰地址:吾悦广场B-1801-1802室
爱家装饰电话: 15856537787微信
回复 支持 反对

使用道具 举报

2

收听

3

听众

356

帖子

E粉新星

注册时间
2012-3-24
精华
0
 楼主| 发表于 2012-5-6 23:02:46 | 显示全部楼层
”【壹玖柒捌】 发表于 2012-5-6 16:38
您好!方便告知您的QQ吗?我们设计师已经设计好图了,可以发给你看看。

你好,qq 724562481  你把图发过来吧
回复 支持 反对

使用道具 举报

2

收听

3

听众

356

帖子

E粉新星

注册时间
2012-3-24
精华
0
 楼主| 发表于 2012-5-6 23:04:40 | 显示全部楼层
捌伍捌捌 发表于 2012-5-6 18:01
您好,方便去现场测量一下。帮你设计分图纸
5526533   15856537787
爱家装饰欢迎您

谢谢,关键是房子还没交钥匙!
回复 支持 反对

使用道具 举报

2

收听

3

听众

356

帖子

E粉新星

注册时间
2012-3-24
精华
0
 楼主| 发表于 2012-5-8 11:12:55 | 显示全部楼层
这是1978装饰做的平面图,红色区域是我说明的
未命名1.jpg

点评

楼主说他想要个书房  发表于 2012-5-9 11:22
原两个卧室门向好好的,为什么一定要主卧门对镜子,次卧门对厕所?我建议书房变成次卧。  发表于 2012-5-8 11:32
回复 支持 反对

使用道具 举报

头像被屏蔽

0

收听

1

听众

112

帖子

禁止访问

注册时间
2011-7-12
精华
0
发表于 2012-5-9 09:13:09 | 显示全部楼层
提示: 作者被禁止或删除 内容自动屏蔽
签名被屏蔽
回复 支持 反对

使用道具 举报

0

收听

9

听众

742

帖子

未认证商家

注册时间
2010-5-19
精华
0
发表于 2012-5-16 18:32:38 | 显示全部楼层
您好!宏达装饰来报到啦!
公司地址:新河路与文苑路交汇处新河湾商业A#
电话:0556-5197333  
监督电话:13955683080
回复 支持 反对

使用道具 举报

6

收听

3

听众

2846

帖子

认证商家

注册时间
2008-5-12
精华
1

我的原则是今天的客户,明天的朋友,走自己的路让别人说去吧。

QQ
发表于 2012-5-16 18:56:48 | 显示全部楼层
楼主,您这房子貌似书香一品的豪宅?
美多集成灶地址:南翔光彩博览中心一楼南厅61号  电话:8882250    13905569197
回复 支持 反对

使用道具 举报

2

收听

3

听众

356

帖子

E粉新星

注册时间
2012-3-24
精华
0
 楼主| 发表于 2012-5-23 11:42:57 | 显示全部楼层
再来提提帖子!!
回复 支持 反对

使用道具 举报

2

收听

3

听众

356

帖子

E粉新星

注册时间
2012-3-24
精华
0
 楼主| 发表于 2012-6-15 19:17:37 | 显示全部楼层
新派橱柜 发表于 2012-5-16 18:56
楼主,您这房子貌似书香一品的豪宅?

是书香一品的!
回复 支持 反对

使用道具 举报

6

收听

3

听众

2846

帖子

认证商家

注册时间
2008-5-12
精华
1

我的原则是今天的客户,明天的朋友,走自己的路让别人说去吧。

QQ
发表于 2012-6-18 22:55:27 | 显示全部楼层
安庆易网 发表于 2012-6-15 19:17
是书香一品的!

书香一品的房子明年交房,功课提前做的很足。
美多集成灶地址:南翔光彩博览中心一楼南厅61号  电话:8882250    13905569197
回复 支持 反对

使用道具 举报

2

收听

3

听众

356

帖子

E粉新星

注册时间
2012-3-24
精华
0
 楼主| 发表于 2012-7-1 12:12:33 | 显示全部楼层
提提帖子
回复 支持 反对

使用道具 举报

您需要登录后才可以回帖 登录 | 注册

本版积分规则

联系合作|手机版|手机APP|Archiver|

GMT+8, 2025-12-10 16:06 Powered by Discuz! X3.4

安庆E网生活网站 © 2001-2013 Comsenz Inc. ( 皖ICP备05012696号 )

QQ

安庆瑞易文化 地址:华茂1958-C7栋 联系电话:0556-5306667 联系邮箱:17779721@qq.com 互联网违法和不良信息举报电话和邮箱:0556-5306667 17779721@qq.com

皖公网安备 34080002000101号

    
快速回复 返回顶部 返回列表