安庆E网

搜索
查看: 3669|回复: 8

[设计交流] 帮看下房型设计,谢谢!

[复制链接]

0

收听

2

听众

38

帖子

E粉新人

注册时间
2012-4-16
精华
0
QQ
发表于 2012-5-8 23:39:28 | 显示全部楼层 |阅读模式
本帖最后由 330700060 于 2012-5-8 23:43 编辑

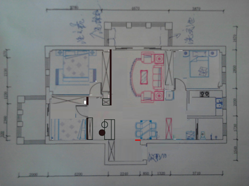
帮看下房型设计
回复

使用道具 举报

0

收听

5

听众

841

帖子

未认证商家

注册时间
2011-10-14
精华
0
QQ
发表于 2012-5-11 09:25:40 | 显示全部楼层
看不了哈   重新传一下哈
更多有品位的家庭选择雷拓
一店:南翔博览中心二楼 8882133
二店:百年家居一期 5848688[/
回复 支持 反对

使用道具 举报

2

收听

24

听众

1951

帖子

E粉明星

注册时间
2010-8-8
精华
0
发表于 2012-5-11 09:36:21 | 显示全部楼层
5600290ce135cb46b699a6e1b2eba6ee.jpg
jsdfAhfjosdofjsdool客家人岁的法国尼斯
回复 支持 反对

使用道具 举报

2

收听

24

听众

1951

帖子

E粉明星

注册时间
2010-8-8
精华
0
发表于 2012-5-11 10:49:19 | 显示全部楼层
三大楼盘购房i怕热仅提供日渐提高及儿童
未标题-1副本.jpg
回复 支持 反对

使用道具 举报

0

收听

2

听众

38

帖子

E粉新人

注册时间
2012-4-16
精华
0
QQ
 楼主| 发表于 2012-5-11 18:52:42 | 显示全部楼层
非常感谢 竞叫战士 ,这样改非常不错,但进门物业不让改,比较麻烦

点评

祝你好运。字数太少,补上。  发表于 2012-5-11 22:23
回复 支持 反对

使用道具 举报

2

收听

24

听众

1951

帖子

E粉明星

注册时间
2010-8-8
精华
0
发表于 2012-5-11 22:12:26 | 显示全部楼层
进户只要不是剪力墙,只要没有管线。

给他一包中华,应该可以摆平。
回复 支持 反对

使用道具 举报

2

收听

24

听众

1951

帖子

E粉明星

注册时间
2010-8-8
精华
0
发表于 2012-5-11 22:15:34 | 显示全部楼层
注:

请把两个阳台和玄关的地面材质区别于室内
回复 支持 反对

使用道具 举报

6

收听

3

听众

2846

帖子

认证商家

注册时间
2008-5-12
精华
1

我的原则是今天的客户,明天的朋友,走自己的路让别人说去吧。

QQ
发表于 2012-5-11 23:22:32 | 显示全部楼层
竞叫战士 发表于 2012-5-11 22:12
进户只要不是剪力墙,只要没有管线。

给他一包中华,应该可以摆平。

这年头,物质.金钱改变了一切。

点评

你帮忙看看,冰箱那个位置不合理。  发表于 2012-5-12 00:03
呵呵………………  发表于 2012-5-12 00:03
美多集成灶地址:南翔光彩博览中心一楼南厅61号  电话:8882250    13905569197
回复 支持 反对

使用道具 举报

6

收听

3

听众

2846

帖子

认证商家

注册时间
2008-5-12
精华
1

我的原则是今天的客户,明天的朋友,走自己的路让别人说去吧。

QQ
发表于 2012-5-16 19:12:24 | 显示全部楼层
楼主也不关注自己的帖子了,没有合理不合理的,只有适合自己的最合理。
美多集成灶地址:南翔光彩博览中心一楼南厅61号  电话:8882250    13905569197
回复 支持 反对

使用道具 举报

您需要登录后才可以回帖 登录 | 注册

本版积分规则

联系合作|手机版|手机APP|Archiver|

GMT+8, 2025-12-12 00:55 Powered by Discuz! X3.4

安庆E网生活网站 © 2001-2013 Comsenz Inc. ( 皖ICP备05012696号 )

QQ

安庆瑞易文化 地址:华茂1958-C7栋 联系电话:0556-5306667 联系邮箱:17779721@qq.com 互联网违法和不良信息举报电话和邮箱:0556-5306667 17779721@qq.com

皖公网安备 34080002000101号

    
快速回复 返回顶部 返回列表