安庆E网

搜索
查看: 3825|回复: 18

【面对面装饰】美女设计师作品解析

[复制链接]

11

收听

6

听众

2246

帖子

认证商家

注册时间
2008-6-9
精华
0
QQ
发表于 2012-5-31 08:36:30 | 显示全部楼层 |阅读模式

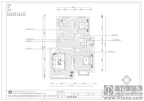
       本案为一套复式楼,由于在房子基础上明确了不同区域的功能性,并加以改造使之更适于业主的居住,本案定位于现代简约风格,以白色为基调,通过壁纸和色彩来点缀展示家中特色的空间。房屋的顶部几乎没有修饰,仅仅以简单的造型顶几盏筒灯来点缀,简约而不失层次感。客厅配以温馨的现代风格的沙发,电视背景用仿欧式的壁纸,墙面点缀雕花及黑色烤漆玻璃,装饰柱体,使空间有了很好的延伸。楼梯处设计了装饰柱子造型,作为书房与过道的隔断。

1335765790[1].jpg

1335765799[1].jpg

1335765815[1].jpg

1335765826[1].jpg

1335765840[1].jpg





回复

使用道具 举报

2

收听

24

听众

1951

帖子

E粉明星

注册时间
2010-8-8
精华
0
发表于 2012-5-31 10:09:11 | 显示全部楼层
厨房餐厅放在二楼确实有创意。

这种创意也只有没有生活阅历的人才敢想。

回复 支持 反对

使用道具 举报

2

收听

24

听众

1951

帖子

E粉明星

注册时间
2010-8-8
精华
0
发表于 2012-5-31 14:44:55 | 显示全部楼层
看样子,我凹凸了……
回复 支持 反对

使用道具 举报

11

收听

6

听众

2246

帖子

认证商家

注册时间
2008-6-9
精华
0
QQ
 楼主| 发表于 2012-5-31 15:30:01 | 显示全部楼层
竞叫战士 发表于 2012-5-31 14:44
看样子,我凹凸了……


肿么啦
回复 支持 反对

使用道具 举报

1

收听

9

听众

5117

帖子

E粉明星

注册时间
2009-11-24
精华
0

室内装饰设计QQ243160571

QQ
发表于 2012-6-1 14:49:16 | 显示全部楼层
莫非是旺旺家缘的户型?
东盛装饰  您身边的装修专家!
地址:光彩四期烩街公寓6楼(光彩大舞台隔壁)
电话:13625565176   5200845
回复 支持 反对

使用道具 举报

11

收听

6

听众

2246

帖子

认证商家

注册时间
2008-6-9
精华
0
QQ
 楼主| 发表于 2012-6-1 16:06:57 | 显示全部楼层
wjj11192226 发表于 2012-6-1 14:49
莫非是旺旺家缘的户型?

亲怎么知道呀?
回复 支持 反对

使用道具 举报

1

收听

9

听众

5117

帖子

E粉明星

注册时间
2009-11-24
精华
0

室内装饰设计QQ243160571

QQ
发表于 2012-6-1 16:19:44 | 显示全部楼层
安庆面对面装饰 发表于 2012-6-1 16:06
亲怎么知道呀?


以前做过,呵呵,业主也是强调把餐厅和厨房一起放到二楼,虽然节省空间,但生活上还是不方便的,不过,业主第一啦,现在平方就是银子,能省就省
东盛装饰  您身边的装修专家!
地址:光彩四期烩街公寓6楼(光彩大舞台隔壁)
电话:13625565176   5200845
回复 支持 反对

使用道具 举报

11

收听

6

听众

2246

帖子

认证商家

注册时间
2008-6-9
精华
0
QQ
 楼主| 发表于 2012-6-1 16:22:44 | 显示全部楼层
wjj11192226 发表于 2012-6-1 16:19
以前做过,呵呵,业主也是强调把餐厅和厨房一起放到二楼,虽然节省空间,但生活上还是不方便的,不过, ...

对的对的 一切以业主为准
回复 支持 反对

使用道具 举报

2

收听

24

听众

1951

帖子

E粉明星

注册时间
2010-8-8
精华
0
发表于 2012-6-2 19:12:17 | 显示全部楼层
自己给自己打圆场

买回菜,血淋淋的鸡鸭鱼肉,有时候还买了酸臭的腌制品,居然还要在家里绕一圈,再爬上二楼再兜一圈


我的个亲额……不管是是设计师还是业主,脑子进……
回复 支持 反对

使用道具 举报

2

收听

24

听众

1951

帖子

E粉明星

注册时间
2010-8-8
精华
0
发表于 2012-6-2 19:13:18 | 显示全部楼层
全世界的居家,厨房都最接近入户门。

这是原则。
回复 支持 反对

使用道具 举报

2

收听

24

听众

1951

帖子

E粉明星

注册时间
2010-8-8
精华
0
发表于 2012-6-2 19:17:24 | 显示全部楼层
这哪是寸土寸金的问题哦

整个二楼置换成20平米都一楼(平层),足矣。
回复 支持 反对

使用道具 举报

头像被屏蔽

1

收听

1

听众

86

帖子

禁止访问

注册时间
2012-6-4
精华
0
发表于 2012-6-14 16:31:01 | 显示全部楼层
提示: 作者被禁止或删除 内容自动屏蔽
回复 支持 反对

使用道具 举报

0

收听

3

听众

335

帖子

E粉新星

注册时间
2010-4-9
精华
0
QQ
发表于 2012-6-29 09:25:43 | 显示全部楼层
楼梯的扶手能安装牢固吗?
<strong>家居采暖+生活热水一体化解决方案  地暖   暖气片  中央空调  中央新风
回复 支持 反对

使用道具 举报

11

收听

6

听众

2246

帖子

认证商家

注册时间
2008-6-9
精华
0
QQ
 楼主| 发表于 2012-7-18 10:42:56 | 显示全部楼层
尚美尚家冷暖 发表于 2012-6-29 09:25
楼梯的扶手能安装牢固吗?

面对面做的都是有质量保证的 这个请放心哈
回复 支持 反对

使用道具 举报

0

收听

2

听众

54

帖子

E粉新人

注册时间
2012-7-17
精华
0
QQ
发表于 2012-7-20 10:47:16 | 显示全部楼层
安庆面对面装饰 发表于 2012-7-18 10:42
面对面做的都是有质量保证的 这个请放心哈

壁纸用了太多了,显得发闷
回复 支持 反对

使用道具 举报

0

收听

1

听众

918

帖子

E粉明星

注册时间
2007-4-5
精华
1
QQ
发表于 2012-7-26 15:12:37 | 显示全部楼层
这个设计很牛逼~~~~~~~~敢发上来更牛逼~~~~~~~
安庆市宏达装饰  左岸名居大门口  设计部主任
座机:5197333   手机:15856531039
回复 支持 反对

使用道具 举报

0

收听

2

听众

139

帖子

E粉新星

注册时间
2012-6-23
精华
0
发表于 2012-7-26 17:11:54 | 显示全部楼层
在牛逼的话也无法形容哥现在牛逼的心情
回复 支持 反对

使用道具 举报

头像被屏蔽

0

收听

1

听众

124

帖子

禁止访问

注册时间
2007-6-23
精华
1
QQ
发表于 2012-12-16 10:35:07 | 显示全部楼层
提示: 作者被禁止或删除 内容自动屏蔽
签名被屏蔽
回复 支持 反对

使用道具 举报

头像被屏蔽

0

收听

2

听众

43

帖子

禁止访问

注册时间
2013-4-9
精华
0
发表于 2013-4-9 14:07:06 | 显示全部楼层
提示: 作者被禁止或删除 内容自动屏蔽
回复 支持 反对

使用道具 举报

您需要登录后才可以回帖 登录 | 注册

本版积分规则

联系合作|手机版|手机APP|Archiver|

GMT+8, 2025-12-13 03:31 Powered by Discuz! X3.4

安庆E网生活网站 © 2001-2013 Comsenz Inc. ( 皖ICP备05012696号 )

QQ

安庆瑞易文化 地址:华茂1958-C7栋 联系电话:0556-5306667 联系邮箱:17779721@qq.com 互联网违法和不良信息举报电话和邮箱:0556-5306667 17779721@qq.com

皖公网安备 34080002000101号

    
快速回复 返回顶部 返回列表