安庆E网

搜索
查看: 4015|回复: 9

[施工探讨] ---发个平面图,想听听大家有没有好的建议---(据说标题要长)

[复制链接]

0

收听

1

听众

51

帖子

E粉新星

注册时间
2006-2-5
精华
0

发表于 2012-6-5 15:04:20 | 显示全部楼层 |阅读模式
本帖最后由 flyfox 于 2012-6-5 15:09 编辑

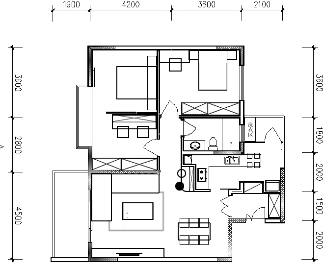
房子不大,图是开发商提供的,三个卧室之间的墙目前是没有的,但墙的位置顶上有梁。南面是个完整的大飘窗,用墙来隔断飘窗总感觉不太舒服,有没有更好的隔断方法?或者把墙砌到距离飘窗80cm左右使南面两个房间变成套间样式如何?南面小房间做书房,这样飘窗完整。
回复

使用道具 举报

头像被屏蔽

4

收听

3

听众

427

帖子

禁止发言

注册时间
2012-6-4
精华
0
QQ
发表于 2012-6-5 19:42:50 | 显示全部楼层
提示: 作者被禁止或删除 内容自动屏蔽
签名被屏蔽
回复 支持 反对

使用道具 举报

0

收听

3

听众

685

帖子

贵宾E粉

注册时间
2010-7-29
精华
7

婚礼文化研究员

发表于 2012-6-5 20:19:45 | 显示全部楼层
房子不错啊!
520港湾婚礼文化传媒   婚礼文化研究/传播  婚礼跟拍摄影/摄像
德宽路154号(大观亭小区对面) 电话13074023206QQ583030449
回复 支持 反对

使用道具 举报

0

收听

5

听众

841

帖子

未认证商家

注册时间
2011-10-14
精华
0
QQ
发表于 2012-6-5 20:30:21 | 显示全部楼层
不一定必须要用墙隔断  用其它的材料做隔断也可以的哈
更多有品位的家庭选择雷拓
一店:南翔博览中心二楼 8882133
二店:百年家居一期 5848688[/
回复 支持 反对

使用道具 举报

2

收听

24

听众

1951

帖子

E粉明星

注册时间
2010-8-8
精华
0
发表于 2012-6-5 21:23:12 | 显示全部楼层
本帖最后由 竞叫战士 于 2012-6-5 21:25 编辑

挺有意思的户型。
1.jpg
1.jpg
回复 支持 反对

使用道具 举报

2

收听

24

听众

1951

帖子

E粉明星

注册时间
2010-8-8
精华
0
发表于 2012-6-5 21:33:54 | 显示全部楼层
一定要小三居,卧室分配就按楼主的方案。
回复 支持 反对

使用道具 举报

0

收听

2

听众

450

帖子

E粉明星

注册时间
2008-5-1
精华
2
发表于 2012-6-6 08:09:57 | 显示全部楼层
墙砌到飘窗前,再用艺术玻璃隔断飘窗。
回复 支持 反对

使用道具 举报

头像被屏蔽

4

收听

3

听众

427

帖子

禁止发言

注册时间
2012-6-4
精华
0
QQ
发表于 2012-6-6 08:27:29 | 显示全部楼层
提示: 作者被禁止或删除 内容自动屏蔽
签名被屏蔽
回复 支持 反对

使用道具 举报

0

收听

2

听众

87

帖子

E粉新星

注册时间
2012-3-30
精华
0
QQ
发表于 2012-6-6 09:26:10 | 显示全部楼层
欢迎交流!QQ 1307527029
回复 支持 反对

使用道具 举报

0

收听

1

听众

51

帖子

E粉新星

注册时间
2006-2-5
精华
0

 楼主| 发表于 2012-6-6 09:42:08 | 显示全部楼层
非常感谢大家的建议。尤其感谢竞叫战士,很有创意。
回复 支持 反对

使用道具 举报

您需要登录后才可以回帖 登录 | 注册

本版积分规则

联系合作|手机版|手机APP|Archiver|

GMT+8, 2025-12-10 19:07 Powered by Discuz! X3.4

安庆E网生活网站 © 2001-2013 Comsenz Inc. ( 皖ICP备05012696号 )

QQ

安庆瑞易文化 地址:华茂1958-C7栋 联系电话:0556-5306667 联系邮箱:17779721@qq.com 互联网违法和不良信息举报电话和邮箱:0556-5306667 17779721@qq.com

皖公网安备 34080002000101号

    
快速回复 返回顶部 返回列表