安庆E网

搜索
12
返回列表 发新帖
楼主: luobo829

[装修日记] 我为装修狂(绿地幸福小屋装修记录)

  [复制链接]

0

收听

5

听众

841

帖子

未认证商家

注册时间
2011-10-14
精华
0
QQ
发表于 2012-6-16 12:37:23 | 显示全部楼层
luobo829 发表于 2012-6-15 22:51
你们在绿地装了哪些人家,提供楼号我有时间过去看看~

已经发信息给您了哈  您看看
更多有品位的家庭选择雷拓
一店:南翔博览中心二楼 8882133
二店:百年家居一期 5848688[/
回复 支持 反对

使用道具 举报

11

收听

6

听众

2246

帖子

认证商家

注册时间
2008-6-9
精华
0
QQ
发表于 2012-6-16 13:54:50 | 显示全部楼层
面对面装饰祝业主亲早日住上新房 装修顺利哈
回复 支持 反对

使用道具 举报

头像被屏蔽

0

收听

1

听众

14

帖子

禁止访问

注册时间
2012-6-15
精华
0
发表于 2012-6-17 09:22:12 | 显示全部楼层
提示: 作者被禁止或删除 内容自动屏蔽
回复 支持 反对

使用道具 举报

头像被屏蔽

0

收听

1

听众

52

帖子

禁止访问

注册时间
2010-1-8
精华
0
QQ
 楼主| 发表于 2012-6-17 09:35:52 | 显示全部楼层
提示: 作者被禁止或删除 内容自动屏蔽
签名被屏蔽
回复 支持 反对

使用道具 举报

2

收听

24

听众

1951

帖子

E粉明星

注册时间
2010-8-8
精华
0
发表于 2012-6-17 16:14:55 | 显示全部楼层
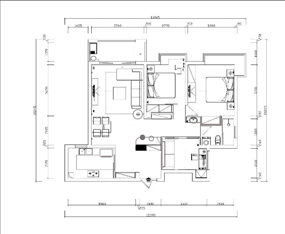
1、原设计就餐和进出厨房很不便利。
2、过道狭长且没有充分利用。
3、收纳还是不足。
4、厕所空间不足。
回复 支持 反对

使用道具 举报

2

收听

24

听众

1951

帖子

E粉明星

注册时间
2010-8-8
精华
0
发表于 2012-6-17 16:16:12 | 显示全部楼层
本帖最后由 竞叫战士 于 2012-6-17 17:35 编辑

要因地制宜,不要生搬硬摆。

回复 支持 反对

使用道具 举报

2

收听

24

听众

1951

帖子

E粉明星

注册时间
2010-8-8
精华
0
发表于 2012-6-17 16:25:29 | 显示全部楼层
本帖最后由 竞叫战士 于 2012-6-17 17:20 编辑

阳台不破,也较从容。
未标题-8.jpg
1.jpg

2.jpg
3.jpg
4.jpg
回复 支持 反对

使用道具 举报

2

收听

24

听众

1951

帖子

E粉明星

注册时间
2010-8-8
精华
0
发表于 2012-6-17 17:13:32 | 显示全部楼层
本帖最后由 竞叫战士 于 2012-6-17 17:23 编辑

以上图片搜索于网络,并非本人原创。

特此申明。


楼主要是在乎厕所门对餐台,那就在进洗脸槽的地方挂上珠帘。
回复 支持 反对

使用道具 举报

2

收听

24

听众

1951

帖子

E粉明星

注册时间
2010-8-8
精华
0
发表于 2012-6-17 23:36:25 | 显示全部楼层
原设计(客气地说是设计)

50分。
回复 支持 反对

使用道具 举报

头像被屏蔽

0

收听

1

听众

52

帖子

禁止访问

注册时间
2010-1-8
精华
0
QQ
 楼主| 发表于 2012-6-18 10:30:24 | 显示全部楼层
提示: 作者被禁止或删除 内容自动屏蔽
签名被屏蔽
回复 支持 反对

使用道具 举报

头像被屏蔽

0

收听

1

听众

52

帖子

禁止访问

注册时间
2010-1-8
精华
0
QQ
 楼主| 发表于 2012-6-18 10:33:17 | 显示全部楼层
提示: 作者被禁止或删除 内容自动屏蔽
签名被屏蔽
回复 支持 反对

使用道具 举报

2

收听

24

听众

1951

帖子

E粉明星

注册时间
2010-8-8
精华
0
发表于 2012-6-18 10:57:15 | 显示全部楼层
本帖最后由 竞叫战士 于 2012-6-18 11:10 编辑

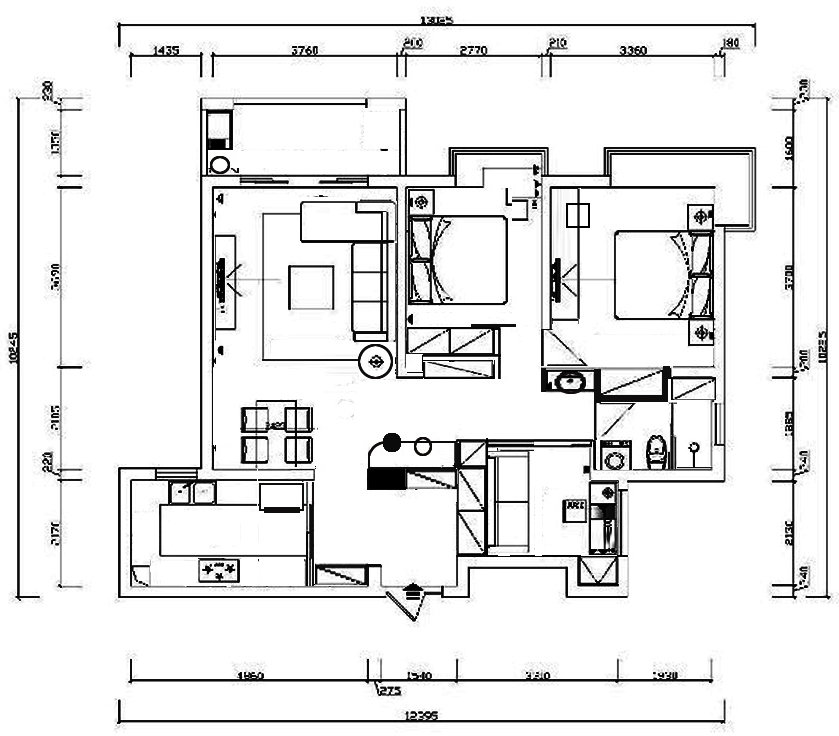
衣柜还是缺少一点
未标题-8.jpg
回复 支持 反对

使用道具 举报

头像被屏蔽

0

收听

1

听众

54

帖子

禁止访问

注册时间
2012-6-21
精华
0
发表于 2012-6-24 10:35:34 | 显示全部楼层
提示: 作者被禁止或删除 内容自动屏蔽
回复 支持 反对

使用道具 举报

0

收听

1

听众

307

帖子

E粉新星

注册时间
2012-2-28
精华
0
QQ
发表于 2012-6-28 08:55:53 | 显示全部楼层
龙树门业祝您装修顺利,有时间来看看。
龙树底下   富贵人家
地址:光彩大市场四期C区10栋东1号
电话:0556--5179100     15155089100
QQ:4347194
回复 支持 反对

使用道具 举报

0

收听

2

听众

2877

帖子

未认证商家

注册时间
2010-7-27
精华
0
QQ
发表于 2012-6-28 10:36:10 | 显示全部楼层
QQ 27284524 电话 13033191509
地址 安庆西湖绿洲城 影竹圆 1栋5单元401
回复 支持 反对

使用道具 举报

头像被屏蔽

0

收听

3

听众

408

帖子

禁止访问

注册时间
2011-8-13
精华
0
发表于 2012-7-7 08:58:16 | 显示全部楼层
提示: 作者被禁止或删除 内容自动屏蔽
回复 支持 反对

使用道具 举报

0

收听

3

听众

293

帖子

E粉新星

注册时间
2012-4-7
精华
0
QQ
发表于 2012-7-7 12:50:27 | 显示全部楼层
有没有新动向啊,关注中!
地址:光彩二期二区6栋南二层9、11、13号(7路车底站斜对面)电话:5533508  18956952520   QQ:2324197628
回复 支持 反对

使用道具 举报

0

收听

1

听众

197

帖子

E粉新星

注册时间
2008-4-26
精华
0
QQ
发表于 2012-7-7 13:51:34 | 显示全部楼层
顶,楼主真赞,看得出来你很用心打造自己的世界,好贴,继续跟帖中。。。
索弗仑壁纸:舒怡国际家居一期负一楼
电话: 5369208
回复 支持 反对

使用道具 举报

您需要登录后才可以回帖 登录 | 注册

本版积分规则

联系合作|手机版|手机APP|Archiver|

GMT+8, 2025-12-19 14:34 Powered by Discuz! X3.4

安庆E网生活网站 © 2001-2013 Comsenz Inc. ( 皖ICP备05012696号 )

QQ

安庆瑞易文化 地址:华茂1958-C7栋 联系电话:0556-5306667 联系邮箱:17779721@qq.com 互联网违法和不良信息举报电话和邮箱:0556-5306667 17779721@qq.com

皖公网安备 34080002000101号

    
快速回复 返回顶部 返回列表