安庆E网

搜索
查看: 4513|回复: 17

[设计交流] 这种户型是不是很难设计啊?

  [复制链接]

0

收听

0

听众

1

帖子

E粉新人

注册时间
2013-2-18
精华
0
发表于 2013-2-19 10:17:00 | 显示全部楼层 |阅读模式
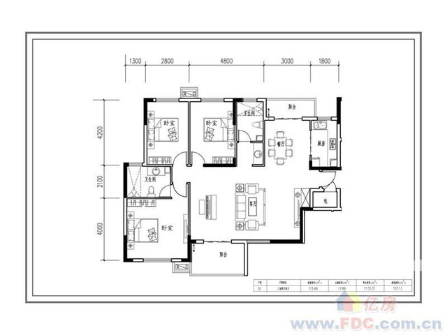
总感觉进门客厅太大,似乎有些空荡,可是又没有正对卫生间的门和房门,似乎也没啥可以设计的。有没有高人给点建议?谢谢!
bf63d8fc1e178a82461ae59bf703738da977e8a9.jpg
回复

使用道具 举报

11

收听

6

听众

2246

帖子

认证商家

注册时间
2008-6-9
精华
0
QQ
发表于 2013-2-19 11:00:36 | 显示全部楼层
您好,恭喜您新房装修,专业室内设计尽在面对面装饰!可以过来咨询哦~
回复 支持 反对

使用道具 举报

头像被屏蔽

3

收听

2

听众

166

帖子

禁止访问

注册时间
2012-6-3
精华
0
发表于 2013-2-19 11:22:32 | 显示全部楼层
提示: 作者被禁止或删除 内容自动屏蔽
签名被屏蔽
回复 支持 反对

使用道具 举报

5

收听

8

听众

534

帖子

未认证商家

注册时间
2012-9-16
精华
0
QQ
发表于 2013-2-19 11:52:42 | 显示全部楼层
亲。如果觉得客厅太的话可以把客厅隔个书房。
北京百度家装安庆分公司
地址:安庆市湖心北路19号
咨询热线: 15855657537
QQ:361470412
回复 支持 反对

使用道具 举报

2

收听

24

听众

1951

帖子

E粉明星

注册时间
2010-8-8
精华
0
发表于 2013-2-19 12:12:27 | 显示全部楼层
本帖最后由 竞叫战士 于 2013-2-19 12:15 编辑

1、厨房与此宅不配套,拓展厨房,把餐台放到大厅里来。
2、沙发比例不对,放不了那么多沙发。

回复 支持 反对

使用道具 举报

0

收听

3

听众

340

帖子

未认证商家

注册时间
2003-5-20
精华
3

发表于 2013-2-19 12:44:25 | 显示全部楼层
这个户型,开发商当时设计的时候,应该就很端正,很好用了哦
回复 支持 反对

使用道具 举报

1

收听

4

听众

605

帖子

未认证商家

注册时间
2010-8-26
精华
0
QQ
发表于 2013-2-19 13:38:35 | 显示全部楼层
您好,安庆千色话装饰欢迎您来咨询。您可以和我们的设计师交流沟通一下的!

公司地址:人民路203—207号(谐水湾二期售楼部旁)

联系电话:5570733
               13905560433(陈)

标准工程     一就不同
地址:棋盘山路与沿江路交叉口1-2号门面  
电话:5570733
回复 支持 反对

使用道具 举报

头像被屏蔽

4

收听

3

听众

427

帖子

禁止发言

注册时间
2012-6-4
精华
0
QQ
发表于 2013-2-19 15:50:46 | 显示全部楼层
提示: 作者被禁止或删除 内容自动屏蔽
签名被屏蔽
回复 支持 反对

使用道具 举报

0

收听

3

听众

451

帖子

未认证商家

注册时间
2011-9-20
精华
0
QQ
发表于 2013-2-19 16:22:33 | 显示全部楼层
【惠民装饰工程队】   专业承接装饰、装修以及维修工程,单包双包皆可;你的满意是我们最大地追求,欢迎新老朋友来电联系!电话:13955609468 5350019 张斌 地址:安庆市天宝教师楼105* QQ1356093996 我们免费与你实地洽谈。
回复 支持 反对

使用道具 举报

0

收听

1

听众

18

帖子

E粉新人

注册时间
2013-2-18
精华
0
QQ
发表于 2013-2-19 16:59:20 | 显示全部楼层
楼上的楼主是一位实习生吧,那个电视墙可以调到对面去,沙发后面用玻璃隔断,隔出一个书房。  请称我风飘絮,QQ:1515557113  
质量是企业的生命,诚信是立业之根本。
回复 支持 反对

使用道具 举报

0

收听

2

听众

553

帖子

E粉明星

注册时间
2008-4-25
精华
0
发表于 2013-2-19 20:58:31 | 显示全部楼层
楼主是探讨一下,有见识的装修达人提提建议,可惜了装修公司的老总们都是惜字如金,商业味道太重了些
回复 支持 反对

使用道具 举报

头像被屏蔽

0

收听

1

听众

64

帖子

禁止访问

注册时间
2012-12-11
精华
0
发表于 2013-2-20 14:17:57 | 显示全部楼层
提示: 作者被禁止或删除 内容自动屏蔽
回复 支持 反对

使用道具 举报

0

收听

5

听众

401

帖子

未认证商家

注册时间
2013-1-9
精华
1
QQ
发表于 2013-2-20 14:22:17 | 显示全部楼层
您好,我是广东星艺装饰集团(安庆分公司)的设计师小周,有装修的需要可以跟我聊系,有装修问题可以咨询我!QQ:1115924565
设计源于生活,生活是设计出来的!
回复 支持 反对

使用道具 举报

0

收听

5

听众

401

帖子

未认证商家

注册时间
2013-1-9
精华
1
QQ
发表于 2013-2-21 12:59:01 | 显示全部楼层
您好,我是广东星艺装饰集团(安庆分公司)的设计师小周,有装修的需要可以跟我聊系,有装修问题可以咨询我!QQ:1115924565
  我们下个月9号在碧桂园凤凰大酒店举行一场“品质生活,爱传万家”的大型回馈客户的优惠活动,我们还邀请了安庆箭牌卫浴.郁金香壁纸等14个高端品牌参与
本次活动必须要凭入场券入场   您想抓住这次 难得的优惠活动您就要尽快联系我把入场劵拿过去    我手里只有3张   由于优惠力度大所以名额相当有限   
设计源于生活,生活是设计出来的!
回复 支持 反对

使用道具 举报

1

收听

1

听众

67

帖子

E粉新人

注册时间
2013-3-12
精华
0
QQ
发表于 2013-3-13 09:07:32 | 显示全部楼层
您好,安庆千色话装饰欢迎您来咨询。您可以和我们的设计师交流沟通一下的!

公司地址:人民路203—207号(谐水湾二期售楼部旁)

联系电话:5570733
               13905560433(陈)


国家二级资质。
您的家,我装修;装修您做主,我做辅;相辅相成,一装即成。电话:5570733  地址:安庆市人民路205-207号(谐水湾二期售楼部旁)
联系电话:13696626307(林)       QQ:352801248
回复 支持 反对

使用道具 举报

0

收听

5

听众

1574

帖子

未认证商家

注册时间
2007-5-31
精华
0
发表于 2013-3-13 10:18:13 | 显示全部楼层
在建筑上这种房型的设计是很不错的,它的亮点就在客厅上。只要设计师动点脑筋设计是会出效果的。
装修格言:踏踏实实做人 认认真真做事
联系人:   胡广峰   电话: 13063275823    5191201    QQ:534679318
回复 支持 反对

使用道具 举报

头像被屏蔽

0

收听

1

听众

15

帖子

禁止访问

注册时间
2013-3-9
精华
0
发表于 2013-3-13 10:29:13 | 显示全部楼层
提示: 作者被禁止或删除 内容自动屏蔽
回复 支持 反对

使用道具 举报

头像被屏蔽

0

收听

1

听众

15

帖子

禁止访问

注册时间
2013-3-9
精华
0
发表于 2013-3-13 10:31:29 | 显示全部楼层
提示: 作者被禁止或删除 内容自动屏蔽
回复 支持 反对

使用道具 举报

您需要登录后才可以回帖 登录 | 注册

本版积分规则

联系合作|手机版|手机APP|Archiver|

GMT+8, 2025-12-19 01:39 Powered by Discuz! X3.4

安庆E网生活网站 © 2001-2013 Comsenz Inc. ( 皖ICP备05012696号 )

QQ

安庆瑞易文化 地址:华茂1958-C7栋 联系电话:0556-5306667 联系邮箱:17779721@qq.com 互联网违法和不良信息举报电话和邮箱:0556-5306667 17779721@qq.com

皖公网安备 34080002000101号

    
快速回复 返回顶部 返回列表