安庆E网

搜索
查看: 3680|回复: 14

[施工探讨] 求 竟叫战士 做个平面布置

[复制链接]

2

收听

3

听众

356

帖子

E粉新星

注册时间
2012-3-24
精华
0
发表于 2013-2-20 20:21:40 | 显示全部楼层 |阅读模式
回复

使用道具 举报

2

收听

3

听众

356

帖子

E粉新星

注册时间
2012-3-24
精华
0
 楼主| 发表于 2013-2-20 20:23:59 | 显示全部楼层
本帖最后由 安庆易网 于 2013-2-20 20:26 编辑

三口人,储物柜多些就行!去年发过,方案没定下来,今年要装修了。
回复 支持 反对

使用道具 举报

头像被屏蔽

4

收听

3

听众

427

帖子

禁止发言

注册时间
2012-6-4
精华
0
QQ
发表于 2013-2-20 20:50:51 | 显示全部楼层
提示: 作者被禁止或删除 内容自动屏蔽
签名被屏蔽
回复 支持 反对

使用道具 举报

11

收听

6

听众

2246

帖子

认证商家

注册时间
2008-6-9
精华
0
QQ
发表于 2013-2-21 08:38:09 | 显示全部楼层
您好,安庆面对面装饰公司欢迎您的咨询~
回复 支持 反对

使用道具 举报

2

收听

3

听众

356

帖子

E粉新星

注册时间
2012-3-24
精华
0
 楼主| 发表于 2013-2-21 11:25:29 | 显示全部楼层
我想要一个合理的平面布置看看
回复 支持 反对

使用道具 举报

1

收听

2

听众

473

帖子

未认证商家

注册时间
2010-8-28
精华
0
QQ
发表于 2013-2-21 11:32:55 | 显示全部楼层
福星装饰欢迎您,联系电话13305566258     5937258
装修找福星 事事都顺心  装饰装修一级资质
地址:安庆市迎江区皖江大道绿地.启航社1号楼4层(恒大绿洲对面交通银行楼上)
电话:15856576258    0556-8798258  QQ:14948722
回复 支持 反对

使用道具 举报

0

收听

5

听众

401

帖子

未认证商家

注册时间
2013-1-9
精华
1
QQ
发表于 2013-2-21 12:53:08 | 显示全部楼层
您好,我是广东星艺装饰集团(安庆分公司)的设计师小周,有装修的需要可以跟我聊系,有装修问题可以咨询我!QQ:1115924565
  我们下个月9号在碧桂园凤凰大酒店举行一场“品质生活,爱传万家”的大型回馈客户的优惠活动,我们还邀请了安庆箭牌卫浴.郁金香壁纸等14个高端品牌参与
本次活动必须要凭入场券入场   您想抓住这次 难得的优惠活动您就要尽快联系我把入场劵拿过去    我手里只有3张   由于优惠力度大所以名额相当有限   
设计源于生活,生活是设计出来的!
回复 支持 反对

使用道具 举报

2

收听

24

听众

1951

帖子

E粉明星

注册时间
2010-8-8
精华
0
发表于 2013-2-22 06:36:40 | 显示全部楼层
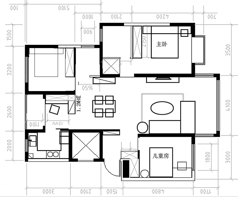
本帖最后由 竞叫战士 于 2013-2-22 08:26 编辑

未标题-1.jpg
回复 支持 反对

使用道具 举报

2

收听

24

听众

1951

帖子

E粉明星

注册时间
2010-8-8
精华
0
发表于 2013-2-22 06:41:56 | 显示全部楼层
本帖最后由 竞叫战士 于 2013-2-22 08:26 编辑

这两天肩膀疼,回复晚了。见谅。



注:儿童房的门选择透光的门

点评

战士,能帮我家设计下吗?  发表于 2014-3-7 15:58
战士,能帮我家设计下吗  发表于 2014-3-7 15:58
回复 支持 反对

使用道具 举报

2

收听

3

听众

356

帖子

E粉新星

注册时间
2012-3-24
精华
0
 楼主| 发表于 2013-2-22 11:40:21 | 显示全部楼层
竞叫战士 发表于 2013-2-22 06:41
这两天肩膀疼,回复晚了。见谅。

不好意思,受累了。在这表示万分感谢!!!!

点评

你绕来绕去就是想孩子给你们留一个房间,是吧?  发表于 2013-2-22 13:51
呵呵  发表于 2013-2-22 13:39
回复 支持 反对

使用道具 举报

2

收听

8

听众

3219

帖子

E粉明星

注册时间
2009-10-21
精华
0
QQ
发表于 2013-2-22 11:58:19 | 显示全部楼层
伴着温暖的阳光,载着愉快的心情,爱家装饰先来给大家拜个晚年,,愿亲们在新的一年家旺,业旺,人更旺!
低 调 奢 华,品 味 生 活
爱家装饰地址:吾悦广场B-1801-1802室
爱家装饰电话: 15856537787微信
回复 支持 反对

使用道具 举报

您需要登录后才可以回帖 登录 | 注册

本版积分规则

联系合作|手机版|手机APP|Archiver|

GMT+8, 2025-12-10 21:54 Powered by Discuz! X3.4

安庆E网生活网站 © 2001-2013 Comsenz Inc. ( 皖ICP备05012696号 )

QQ

安庆瑞易文化 地址:华茂1958-C7栋 联系电话:0556-5306667 联系邮箱:17779721@qq.com 互联网违法和不良信息举报电话和邮箱:0556-5306667 17779721@qq.com

皖公网安备 34080002000101号

    
快速回复 返回顶部 返回列表