安庆E网

搜索
楼主: 宓浩

[装修日记] 谐水湾二期春江花月装修日记(最新更新:预定锦绣窗帘)

  [复制链接]
头像被屏蔽

0

收听

1

听众

26

帖子

禁止访问

注册时间
2013-3-7
精华
0
发表于 2013-3-27 10:31:33 | 显示全部楼层
宓浩 发表于 2013-3-26 14:49
淘宝聚划算315家装节活动,网上订的九牧花洒1280元,实体店315活动价要1880元,省了,呵呵。上图:

真的很便宜,六年前,我买的差不多也是这个价,不过上面的淋浴喷头我基本没有用过,还有时间长了,还是有锈迹,下面的水龙头真的不错,一点问题都没有,一点锈迹都没有!
回复 支持 反对

使用道具 举报

头像被屏蔽

1

收听

3

听众

47

帖子

禁止访问

注册时间
2012-11-22
精华
0
发表于 2013-3-27 12:25:21 | 显示全部楼层
楼主有空来火星人无烟灶看看    厨房从此没油烟!
签名被屏蔽
回复 支持 反对

使用道具 举报

0

收听

2

听众

2877

帖子

未认证商家

注册时间
2010-7-27
精华
0
QQ
发表于 2013-3-27 13:31:52 | 显示全部楼层
QQ 27284524 电话 13033191509
地址 安庆西湖绿洲城 影竹圆 1栋5单元401
回复 支持 反对

使用道具 举报

头像被屏蔽

0

收听

1

听众

13

帖子

禁止访问

注册时间
2013-3-26
精华
0
发表于 2013-3-27 17:34:47 | 显示全部楼层
恭喜·······················
签名被屏蔽
回复 支持 反对

使用道具 举报

4

收听

2

听众

48

帖子

E粉新星

注册时间
2007-10-23
精华
0
发表于 2013-3-27 21:23:20 | 显示全部楼层
我也是谐水湾二期的,楼主和竞叫战士的设计很有创意,断续关注。
回复 支持 反对

使用道具 举报

头像被屏蔽

1

收听

4

听众

176

帖子

禁止访问

注册时间
2013-3-18
精华
1
QQ
 楼主| 发表于 2013-3-28 08:42:52 | 显示全部楼层
驭帅 发表于 2013-3-27 09:05
延迟这么长时间交房。。说3月25后等通知 。。。。

今天都28号了,还等通知啊。哎
回复 支持 反对

使用道具 举报

头像被屏蔽

1

收听

4

听众

176

帖子

禁止访问

注册时间
2013-3-18
精华
1
QQ
 楼主| 发表于 2013-3-28 08:44:12 | 显示全部楼层
顺便问问群里的朋友们,房子103平米,套内面积93平米,我买的立邦4桶面漆和2桶底漆够不够啊。
回复 支持 反对

使用道具 举报

头像被屏蔽

1

收听

4

听众

176

帖子

禁止访问

注册时间
2013-3-18
精华
1
QQ
 楼主| 发表于 2013-3-28 08:45:43 | 显示全部楼层
aqsjl 发表于 2013-3-27 21:23
我也是谐水湾二期的,楼主和竞叫战士的设计很有创意,断续关注。

遇到邻居了,,我是8号楼的
回复 支持 反对

使用道具 举报

头像被屏蔽

1

收听

4

听众

176

帖子

禁止访问

注册时间
2013-3-18
精华
1
QQ
 楼主| 发表于 2013-3-28 08:46:59 | 显示全部楼层
横刀立马1 发表于 2013-3-27 10:31
真的很便宜,六年前,我买的差不多也是这个价,不过上面的淋浴喷头我基本没有用过,还有时间长了,还是有 ...

晕,六年前买的这个价,今天我买还是这个价,我亏大了啊。
回复 支持 反对

使用道具 举报

头像被屏蔽

1

收听

4

听众

176

帖子

禁止访问

注册时间
2013-3-18
精华
1
QQ
 楼主| 发表于 2013-3-28 08:51:47 | 显示全部楼层
竞叫战士 发表于 2013-3-25 22:11
4.8M的客厅,不要破掉。

我的设计应该很合理。

谢谢你的无私设计,但我一楼的,南北要透光好点,要不家里太暗了。

点评

一楼,靠北面屋子的门采光,是灰常灰常有限的。  发表于 2013-3-28 12:38
回复 支持 反对

使用道具 举报

4

收听

2

听众

48

帖子

E粉新星

注册时间
2007-10-23
精华
0
发表于 2013-3-28 10:48:52 | 显示全部楼层
一楼啊,还真巧,我也是,不过不同一幢。洗衣机放阳台不好吗,防盗网怎做,阳台防盗门怎样考虑?

回复 支持 反对

使用道具 举报

2

收听

24

听众

1951

帖子

E粉明星

注册时间
2010-8-8
精华
0
发表于 2013-3-28 12:39:07 | 显示全部楼层
在阳台入户成立么?
回复 支持 反对

使用道具 举报

头像被屏蔽

1

收听

4

听众

176

帖子

禁止访问

注册时间
2013-3-18
精华
1
QQ
 楼主| 发表于 2013-3-28 13:57:43 | 显示全部楼层
竞叫战士 发表于 2013-3-28 12:39
在阳台入户成立么?

是从阳台入户的,房子是一楼的,阳台那个地方前边是院子,从阳台那个地方入户。

点评

哦,一楼你尽可能在梁下建墙。  发表于 2013-3-28 17:24
回复 支持 反对

使用道具 举报

头像被屏蔽

1

收听

4

听众

176

帖子

禁止访问

注册时间
2013-3-18
精华
1
QQ
 楼主| 发表于 2013-3-28 14:00:35 | 显示全部楼层
aqsjl 发表于 2013-3-28 10:48
一楼啊,还真巧,我也是,不过不同一幢。洗衣机放阳台不好吗,防盗网怎做,阳台防盗门怎样考虑?

洗衣机不放阳台那个地方,风吹日晒的容易老化。卧室要在外边装防盗网。阳台的防盗门我准备用玻璃防盗门。可以到光彩卖防盗门的地方去问问。
回复 支持 反对

使用道具 举报

头像被屏蔽

1

收听

4

听众

176

帖子

禁止访问

注册时间
2013-3-18
精华
1
QQ
 楼主| 发表于 2013-3-28 14:05:53 | 显示全部楼层
本帖最后由 宓浩 于 2013-3-31 21:31 编辑

315做活动时,在光彩南翔家居博览中心定的大自然强化地板。上图:
(, 下载次数: 20)
回复 支持 反对

使用道具 举报

2

收听

24

听众

1951

帖子

E粉明星

注册时间
2010-8-8
精华
0
发表于 2013-3-28 19:03:53 | 显示全部楼层
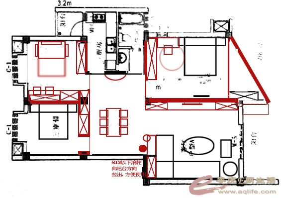
宓浩 发表于 2013-3-26 15:02
再次感谢热心的网友“竞叫战士”,如果平面图还有不妥的,请指教。

未标题-1.jpg
回复 支持 反对

使用道具 举报

2

收听

3

听众

431

帖子

未认证商家

注册时间
2009-8-27
精华
0
发表于 2013-3-29 09:42:13 | 显示全部楼层
有时间来本店坐坐
光彩二期五区3栋28号
电话:5186192     13063281601
回复 支持 反对

使用道具 举报

0

收听

2

听众

189

帖子

E粉新星

注册时间
2010-1-8
精华
0
发表于 2013-3-29 18:34:54 | 显示全部楼层
29号了,还是没交房的消息
人人为我,我为人人
回复 支持 反对

使用道具 举报

1

收听

5

听众

1437

帖子

E粉明星

注册时间
2013-2-3
精华
1
发表于 2013-3-29 18:41:45 | 显示全部楼层
宓浩 发表于 2013-3-28 14:05
315做活动时,在光彩南翔家居博览中心定的大自然强化地板。上图:

图呢????
回复 支持 反对

使用道具 举报

0

收听

5

听众

841

帖子

未认证商家

注册时间
2011-10-14
精华
0
QQ
发表于 2013-3-30 11:22:32 | 显示全部楼层
我也听说月底交房 祝楼主装修顺利哈
更多有品位的家庭选择雷拓
一店:南翔博览中心二楼 8882133
二店:百年家居一期 5848688[/
回复 支持 反对

使用道具 举报

0

收听

2

听众

2877

帖子

未认证商家

注册时间
2010-7-27
精华
0
QQ
发表于 2013-3-30 13:51:13 | 显示全部楼层
为楼主顶顶……
QQ 27284524 电话 13033191509
地址 安庆西湖绿洲城 影竹圆 1栋5单元401
回复 支持 反对

使用道具 举报

头像被屏蔽

0

收听

1

听众

174

帖子

未认证商家

注册时间
2013-3-27
精华
0
发表于 2013-3-30 15:54:39 | 显示全部楼层
提示: 该帖被管理员或版主屏蔽
回复 支持 反对

使用道具 举报

头像被屏蔽

1

收听

4

听众

176

帖子

禁止访问

注册时间
2013-3-18
精华
1
QQ
 楼主| 发表于 2013-3-31 21:33:03 | 显示全部楼层
RBT@九天 发表于 2013-3-29 18:41
图呢????

上图了。
回复 支持 反对

使用道具 举报

头像被屏蔽

1

收听

4

听众

176

帖子

禁止访问

注册时间
2013-3-18
精华
1
QQ
 楼主| 发表于 2013-3-31 21:36:05 | 显示全部楼层
wlpch 发表于 2013-3-29 18:34
29号了,还是没交房的消息

这个月没戏了,又延期一次了,再次问候开发商他父母。
回复 支持 反对

使用道具 举报

头像被屏蔽

1

收听

4

听众

176

帖子

禁止访问

注册时间
2013-3-18
精华
1
QQ
 楼主| 发表于 2013-3-31 21:50:33 | 显示全部楼层
315淘宝家装节买的立邦油漆到了,明天上图。
对了,有网友知道的么,93平米的套内面积,4桶5L面漆和2桶5L底漆够不够啊,要差的话,还需要几桶?
回复 支持 反对

使用道具 举报

您需要登录后才可以回帖 登录 | 注册

本版积分规则

联系合作|手机版|手机APP|Archiver|

GMT+8, 2025-12-12 03:00 Powered by Discuz! X3.4

安庆E网生活网站 © 2001-2013 Comsenz Inc. ( 皖ICP备05012696号 )

QQ

安庆瑞易文化 地址:华茂1958-C7栋 联系电话:0556-5306667 联系邮箱:17779721@qq.com 互联网违法和不良信息举报电话和邮箱:0556-5306667 17779721@qq.com

皖公网安备 34080002000101号

    
快速回复 返回顶部 返回列表