安庆E网

搜索
查看: 4606|回复: 23

[施工探讨] 看看这个设计还要如何修改呢

  [复制链接]

1

收听

2

听众

414

帖子

E粉明星

注册时间
2011-2-2
精华
0
发表于 2013-3-29 19:15:02 | 显示全部楼层 |阅读模式
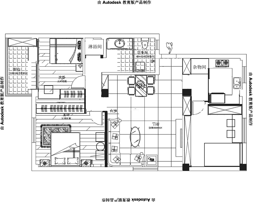
旺园小区练先生-Model.jpg
回复

使用道具 举报

头像被屏蔽

4

收听

3

听众

427

帖子

禁止发言

注册时间
2012-6-4
精华
0
QQ
发表于 2013-3-29 21:08:31 | 显示全部楼层
提示: 作者被禁止或删除 内容自动屏蔽
签名被屏蔽
回复 支持 反对

使用道具 举报

头像被屏蔽

4

收听

3

听众

427

帖子

禁止发言

注册时间
2012-6-4
精华
0
QQ
发表于 2013-3-29 21:09:00 | 显示全部楼层
提示: 作者被禁止或删除 内容自动屏蔽
签名被屏蔽
回复 支持 反对

使用道具 举报

头像被屏蔽

0

收听

1

听众

86

帖子

禁止访问

注册时间
2013-3-9
精华
0
发表于 2013-3-29 22:48:10 | 显示全部楼层
提示: 作者被禁止或删除 内容自动屏蔽
签名被屏蔽
回复 支持 反对

使用道具 举报

1

收听

2

听众

414

帖子

E粉明星

注册时间
2011-2-2
精华
0
 楼主| 发表于 2013-3-30 11:16:36 | 显示全部楼层
欧派衣柜客服 发表于 2013-3-29 22:48
可否把冰箱移到餐厅,从图上看冰箱放厨房,厨柜比较小。难得一个大气的餐厅,餐厅隔个储藏室没必要吧 ...

好建议  回去参考一下
回复 支持 反对

使用道具 举报

0

收听

5

听众

841

帖子

未认证商家

注册时间
2011-10-14
精华
0
QQ
发表于 2013-3-30 11:18:56 | 显示全部楼层
感觉蛮好的哈
更多有品位的家庭选择雷拓
一店:南翔博览中心二楼 8882133
二店:百年家居一期 5848688[/
回复 支持 反对

使用道具 举报

0

收听

2

听众

2877

帖子

未认证商家

注册时间
2010-7-27
精华
0
QQ
发表于 2013-3-30 13:52:21 | 显示全部楼层
挺好的……
QQ 27284524 电话 13033191509
地址 安庆西湖绿洲城 影竹圆 1栋5单元401
回复 支持 反对

使用道具 举报

0

收听

1

听众

174

帖子

未认证商家

注册时间
2013-3-27
精华
0
发表于 2013-3-30 15:11:21 | 显示全部楼层
平面图很合理,我建议储藏室不要,因为储藏室以后可能成为卫生死角,何况放在餐厅也不雅,酒吧应该换成间厅柜,沙发后面就是吧台,酒水很易泼洒到沙发上面,我建议买成品的间厅柜,有时间来我商场看看,有几十个款型。
回复 支持 反对

使用道具 举报

0

收听

1

听众

335

帖子

E粉新星

注册时间
2013-2-27
精华
0
QQ
发表于 2013-3-30 15:18:24 | 显示全部楼层
感觉很不错
回复 支持 反对

使用道具 举报

2

收听

24

听众

1951

帖子

E粉明星

注册时间
2010-8-8
精华
0
发表于 2013-3-30 15:59:02 | 显示全部楼层
原始图,框架结构,没有墙体么?
回复 支持 反对

使用道具 举报

1

收听

2

听众

414

帖子

E粉明星

注册时间
2011-2-2
精华
0
 楼主| 发表于 2013-3-30 16:34:41 | 显示全部楼层
竞叫战士 发表于 2013-3-30 15:59
原始图,框架结构,没有墙体么?

1212.jpg 这是设计师按照我的意思暂时设计的一个平面图,希望给点意见啊
回复 支持 反对

使用道具 举报

2

收听

24

听众

1951

帖子

E粉明星

注册时间
2010-8-8
精华
0
发表于 2013-3-30 20:00:07 | 显示全部楼层
楼主为什么放弃三居?
回复 支持 反对

使用道具 举报

0

收听

1

听众

153

帖子

E粉新星

注册时间
2013-4-9
精华
0
QQ
发表于 2013-4-12 09:18:34 | 显示全部楼层
布置图很合理,但是要配合装修风格,如果楼主愿意,我们也可以给您出1套方案,供您参考。
飞龙装饰公司成立于1993年,今年是公司20年店庆的大喜之年,值此之际,公司为了回馈广大安庆市民20年来的支持与厚爱,特推出让利大活动。现有多种团购和让利活动,等您来拿。
   公司有着十分优越的设计资源和施工资质,我们可以提供多套的设计风格供客户参考,各大小区也有我们的经典案例,如有需要可安排参观考察。
  有需要咨询的可联系我 严经理:13866616357
严连
时代1+1吊顶
市场部经理
Tel:13966619399
QQ:603209667
地址:安庆市舒怡国际家居2楼
回复 支持 反对

使用道具 举报

1

收听

4

听众

684

帖子

未认证商家

注册时间
2012-2-12
精华
0
发表于 2013-4-12 09:42:52 | 显示全部楼层
整体的格局关系到以后生活的质量!祝楼主早日确定方案,早日开工,早日拥有自己舒适的“小窝”!

锦致橱柜集中帖,4月13日~14日锦致橱柜厂商联手推出特价套餐,全场优惠!
http://www.aqlife.com/forum.php?mod=viewthread&tid=1465993&fromuid=227659
锦致橱柜,做最适合中国人的厨房
展厅地址:南翔光彩国际家居博览中心一层61号
品鉴热线:8882250
服务热
回复 支持 反对

使用道具 举报

0

收听

5

听众

1574

帖子

未认证商家

注册时间
2007-5-31
精华
0
发表于 2013-4-12 10:15:01 | 显示全部楼层
381420787 发表于 2013-3-30 16:34
这是设计师按照我的意思暂时设计的一个平面图,希望给点意见啊

这个户型好熟悉,在南园山庄小区吗?
装修格言:踏踏实实做人 认认真真做事
联系人:   胡广峰   电话: 13063275823    5191201    QQ:534679318
回复 支持 反对

使用道具 举报

2

收听

8

听众

3219

帖子

E粉明星

注册时间
2009-10-21
精华
0
QQ
发表于 2013-4-12 15:56:38 | 显示全部楼层
爱家装饰欢迎您的咨询
低 调 奢 华,品 味 生 活
爱家装饰地址:吾悦广场B-1801-1802室
爱家装饰电话: 15856537787微信
回复 支持 反对

使用道具 举报

2

收听

24

听众

1951

帖子

E粉明星

注册时间
2010-8-8
精华
0
发表于 2013-4-13 15:50:06 | 显示全部楼层
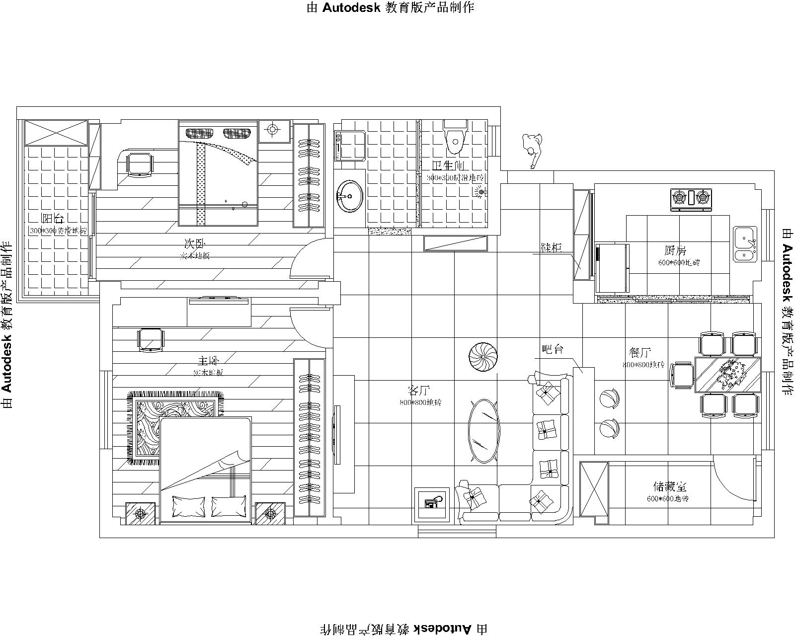
本帖最后由 竞叫战士 于 2013-4-13 16:11 编辑

1.jpg

点评

这个方案还没有之前的楼主发出来的合理哦!!!  发表于 2013-5-25 11:24

评分

参与人数 1鲜花 +1 收起 理由
╰_☆_小_凯_☆_ + 1 哪有进房间还要经过厨房的!晕死

查看全部评分

回复 支持 反对

使用道具 举报

1

收听

2

听众

414

帖子

E粉明星

注册时间
2011-2-2
精华
0
 楼主| 发表于 2013-4-13 16:03:01 | 显示全部楼层
竞叫战士 发表于 2013-4-13 15:50

恩恩  值得参考
回复 支持 反对

使用道具 举报

头像被屏蔽

1

收听

1

听众

130

帖子

禁止访问

注册时间
2013-5-9
精华
0
发表于 2013-5-23 17:25:46 | 显示全部楼层
提示: 作者被禁止或删除 内容自动屏蔽
回复 支持 反对

使用道具 举报

6

收听

4

听众

921

帖子

认证商家

注册时间
2013-5-23
精华
0
QQ
发表于 2013-5-25 11:13:02 | 显示全部楼层
顶   顶   顶    楼主想做 纱门纱窗,封露台 阳台 阳光房。欢迎到绿娃门窗样品店参观 比较  地址 光彩4期C区7栋西4号。电话5011785  QQ2444859628  绿娃阳台窗 全新的设计理念 ,演绎全新的生活空间 。绿娃门窗期待为您服务
回复 支持 反对

使用道具 举报

0

收听

1

听众

61

帖子

E粉新人

注册时间
2013-5-11
精华
0
发表于 2013-5-25 11:23:59 | 显示全部楼层
这个户型应该是还迁房性质的吧!
回复 支持 反对

使用道具 举报

0

收听

0

听众

1

帖子

E粉新人

注册时间
2014-6-24
精华
0
发表于 2014-6-25 11:44:11 | 显示全部楼层

哪有去房间还要经过厨房的,无语了
回复 支持 反对

使用道具 举报

0

收听

1

听众

174

帖子

未认证商家

注册时间
2013-3-27
精华
0
发表于 2014-6-28 13:38:39 | 显示全部楼层
吧台建议做造型墙,储藏室不要
回复 支持 反对

使用道具 举报

您需要登录后才可以回帖 登录 | 注册

本版积分规则

联系合作|手机版|手机APP|Archiver|

GMT+8, 2025-12-17 04:59 Powered by Discuz! X3.4

安庆E网生活网站 © 2001-2013 Comsenz Inc. ( 皖ICP备05012696号 )

QQ

安庆瑞易文化 地址:华茂1958-C7栋 联系电话:0556-5306667 联系邮箱:17779721@qq.com 互联网违法和不良信息举报电话和邮箱:0556-5306667 17779721@qq.com

皖公网安备 34080002000101号

    
快速回复 返回顶部 返回列表