安庆E网

搜索
查看: 12392|回复: 67

[设计交流] 我的新房麻烦帮我看看怎么隔断

  [复制链接]
头像被屏蔽

0

收听

1

听众

18

帖子

禁止访问

注册时间
2013-2-27
精华
0
发表于 2013-4-3 17:18:00 | 显示全部楼层 |阅读模式
提示: 作者被禁止或删除 内容自动屏蔽
回复

使用道具 举报

头像被屏蔽

0

收听

1

听众

39

帖子

禁止访问

注册时间
2013-4-3
精华
0
发表于 2013-4-3 17:21:30 | 显示全部楼层
提示: 作者被禁止或删除 内容自动屏蔽
回复 支持 反对

使用道具 举报

1

收听

1

听众

67

帖子

E粉新人

注册时间
2013-3-12
精华
0
QQ
发表于 2013-4-3 17:24:46 | 显示全部楼层
安庆千色花装饰公司欢迎您的咨询!    如果您有时间可以来我们公司看看,我们再跟您好沟通。  地址:人民路203-207号 (十一中斜对面)    电话:5570733    QQ:352801248
联系电话:13696626307(林)       QQ:352801248
回复 支持 反对

使用道具 举报

0

收听

5

听众

841

帖子

未认证商家

注册时间
2011-10-14
精华
0
QQ
发表于 2013-4-3 17:36:13 | 显示全部楼层
房型还好哈  祝装修顺利
更多有品位的家庭选择雷拓
一店:南翔博览中心二楼 8882133
二店:百年家居一期 5848688[/
回复 支持 反对

使用道具 举报

头像被屏蔽

0

收听

1

听众

25

帖子

禁止访问

注册时间
2013-4-3
精华
0
发表于 2013-4-3 17:47:21 | 显示全部楼层
提示: 作者被禁止或删除 内容自动屏蔽
回复 支持 反对

使用道具 举报

0

收听

1

听众

78

帖子

E粉新星

注册时间
2013-3-14
精华
0
发表于 2013-4-3 17:59:27 | 显示全部楼层
你好,我是【百度家装】的小纪
有任何问题 都可以问我
QQ: 185337369
希望可以帮到你
本公司 主打466元/平的  全包模式
让每位客户 省心 省时 省力 省钱
回复 支持 反对

使用道具 举报

头像被屏蔽

0

收听

1

听众

104

帖子

禁止访问

注册时间
2010-6-19
精华
0
发表于 2013-4-3 18:28:47 | 显示全部楼层
提示: 作者被禁止或删除 内容自动屏蔽
回复 支持 反对

使用道具 举报

头像被屏蔽

0

收听

1

听众

155

帖子

禁止发言

注册时间
2010-8-23
精华
0
发表于 2013-4-3 20:25:35 | 显示全部楼层
提示: 作者被禁止或删除 内容自动屏蔽
回复 支持 反对

使用道具 举报

0

收听

2

听众

2877

帖子

未认证商家

注册时间
2010-7-27
精华
0
QQ
发表于 2013-4-4 08:05:20 | 显示全部楼层
QQ 27284524 电话 13033191509
地址 安庆西湖绿洲城 影竹圆 1栋5单元401
回复 支持 反对

使用道具 举报

0

收听

1

听众

335

帖子

E粉新星

注册时间
2013-2-27
精华
0
QQ
发表于 2013-4-4 10:15:29 | 显示全部楼层
亲:
    来我们店里看看,感觉隔断这样是有点不合理,走廊浪费空间!
回复 支持 反对

使用道具 举报

2

收听

8

听众

3219

帖子

E粉明星

注册时间
2009-10-21
精华
0
QQ
发表于 2013-4-4 10:25:56 | 显示全部楼层
爱家装饰欢迎您的咨询,
低 调 奢 华,品 味 生 活
爱家装饰地址:吾悦广场B-1801-1802室
爱家装饰电话: 15856537787微信
回复 支持 反对

使用道具 举报

2

收听

24

听众

1951

帖子

E粉明星

注册时间
2010-8-8
精华
0
发表于 2013-4-4 11:17:41 | 显示全部楼层
主卧是南么?
回复 支持 反对

使用道具 举报

0

收听

3

听众

293

帖子

E粉新星

注册时间
2012-4-7
精华
0
QQ
发表于 2013-4-4 11:21:10 | 显示全部楼层
忆佳装饰欢迎您的咨询,报价根据您的需求来定。我们公司前期提供免费量房、出图、预算服务,热诚欢迎您的咨询!
地址:光彩二期二区6栋南二层9、11、13号(7路车底站斜对面)电话:5533508  18956952520   QQ:2324197628
回复 支持 反对

使用道具 举报

2

收听

24

听众

1951

帖子

E粉明星

注册时间
2010-8-8
精华
0
发表于 2013-4-4 11:21:17 | 显示全部楼层
本帖最后由 竞叫战士 于 2013-4-4 12:03 编辑

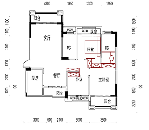
如果客厅是南,把与客卫相邻的卧室做主卧,保留主卫。收纳够了。
未标题-2.jpg


如果客厅是北,保留原格局。

点评

考虑的很全面。值得借鉴  发表于 2013-4-4 16:36
回复 支持 反对

使用道具 举报

2

收听

24

听众

1951

帖子

E粉明星

注册时间
2010-8-8
精华
0
发表于 2013-4-4 12:18:46 | 显示全部楼层
本帖最后由 竞叫战士 于 2013-4-4 12:32 编辑

这个案子的问题:

1、廊道3米,正对大门。
2、主卧门与大门相冲。
3、主卫与床容易对上。



若主卧床头背后就是坐便器,我的摆放彻底放弃。
回复 支持 反对

使用道具 举报

头像被屏蔽

1

收听

2

听众

900

帖子

禁止访问

注册时间
2008-4-20
精华
0
QQ
发表于 2013-4-4 12:21:42 | 显示全部楼层
提示: 作者被禁止或删除 内容自动屏蔽
签名被屏蔽
回复 支持 反对

使用道具 举报

4

收听

4

听众

240

帖子

E粉新星

注册时间
2012-2-16
精华
1
QQ
发表于 2013-4-4 13:53:20 | 显示全部楼层
预祝楼主装修愉快!
忆佳装饰——圆您美好家的梦想!
有时间欢迎来我们公司看看。
地址:安庆市光彩二期(7路公交车终点站斜对面)忆佳装饰
TEL:18056910669
地址:安庆市光彩二期(7路公交车终点站斜对面)忆佳装饰 TEL:18056910669(小胡)
回复 支持 反对

使用道具 举报

11

收听

6

听众

2246

帖子

认证商家

注册时间
2008-6-9
精华
0
QQ
发表于 2013-4-4 15:47:28 | 显示全部楼层
有时间可以抽空来下我们公司看下,有专业的设计师给你设计下,看看怎么样,
面对面装饰欢迎您的咨询
电话:15956617819  
  QQ:2475303512
地址:开发区中兴大道14号晶海花园对面
回复 支持 反对

使用道具 举报

头像被屏蔽

0

收听

1

听众

145

帖子

禁止访问

注册时间
2009-5-7
精华
1
发表于 2013-4-4 16:36:19 | 显示全部楼层
提示: 作者被禁止或删除 内容自动屏蔽
回复 支持 反对

使用道具 举报

头像被屏蔽

0

收听

1

听众

197

帖子

禁止访问

注册时间
2013-3-21
精华
0
发表于 2013-4-4 17:04:08 | 显示全部楼层
提示: 作者被禁止或删除 内容自动屏蔽
回复 支持 反对

使用道具 举报

0

收听

1

听众

953

帖子

E粉明星

注册时间
2008-9-23
精华
0
QQ
发表于 2013-4-5 09:06:06 | 显示全部楼层
安庆都辉装饰工程有限公司

安庆都辉装饰工程有限公司是一家专业从事家居装饰、写字楼、公寓、挑高

空间、商业空间、别墅设计与施工的专业性工程公司,

      都辉人对内提倡尊重、信任、崇尚团队精神,对外强调诚实、信用、坚持质量第一。力求在每一项工程以及每一项工程的每一个环节,通过自身优势营造出完美的工程作品以回馈客户。

我们通过对各种性质的建筑空间进行设计和施工,使我们积累了丰富的管理、设计和施工经验,公司本着以绿色环保为主题,对家居住宅、办公、商铺等不同特点的室内装饰产品形成了独特的装饰理念。

公司在与客户进行工程合作之时,必将为客户提供详尽的工程咨询、合理的设计、优良的施工。在创造经济效益之同时,更加追求良好的企业信誉及社会效益。

都辉人将长期   坚持以质量和居住性为首位
                            坚持绿色环保装饰,艺术个性风尚设计
                            坚持人性,感性,理性的结合
                            坚持优化房屋功能设计,合理规范施工

立足安庆,展望未来。都辉人将遵循企业国际惯例,以规模发展、精品施工的崇高理念,按照“运作规范化、管理信息化、经营规模化、发展国际化”的经营方针,引领家居装饰潮流,服务装饰事业,让每一项工程成为样板工程,让您们成为我们永远的朋友。
   

安庆都辉装饰工程有限公司感谢广大新老客户一直以来对我们的信赖与支持!

 
如果您有空,不妨和我们聊聊
都辉装饰讨论版: http:/www.aqdhzs.com。
都辉装饰百度空间:http://hi.baidu.com。  
我们的邮箱:wshong189@sina.com   
我们的QQ:1048677767
365天服务电话:05568733819       传真:05568733818
回复 支持 反对

使用道具 举报

头像被屏蔽

0

收听

1

听众

18

帖子

禁止访问

注册时间
2013-2-27
精华
0
 楼主| 发表于 2013-4-5 09:16:44 | 显示全部楼层
提示: 作者被禁止或删除 内容自动屏蔽
回复 支持 反对

使用道具 举报

头像被屏蔽

0

收听

1

听众

18

帖子

禁止访问

注册时间
2013-2-27
精华
0
 楼主| 发表于 2013-4-5 15:47:39 | 显示全部楼层
提示: 作者被禁止或删除 内容自动屏蔽
回复 支持 反对

使用道具 举报

头像被屏蔽

4

收听

3

听众

427

帖子

禁止发言

注册时间
2012-6-4
精华
0
QQ
发表于 2013-4-5 15:50:13 | 显示全部楼层
提示: 作者被禁止或删除 内容自动屏蔽
签名被屏蔽
回复 支持 反对

使用道具 举报

0

收听

1

听众

335

帖子

E粉新星

注册时间
2013-2-27
精华
0
QQ
发表于 2013-4-5 20:56:08 | 显示全部楼层
亲:
    看到楼主在团购希望你到我们实体店看看多了解一下!
回复 支持 反对

使用道具 举报

您需要登录后才可以回帖 登录 | 注册

本版积分规则

联系合作|手机版|手机APP|Archiver|

GMT+8, 2025-12-17 05:48 Powered by Discuz! X3.4

安庆E网生活网站 © 2001-2013 Comsenz Inc. ( 皖ICP备05012696号 )

QQ

安庆瑞易文化 地址:华茂1958-C7栋 联系电话:0556-5306667 联系邮箱:17779721@qq.com 互联网违法和不良信息举报电话和邮箱:0556-5306667 17779721@qq.com

皖公网安备 34080002000101号

    
快速回复 返回顶部 返回列表