安庆E网

搜索
查看: 8469|回复: 38

[设计交流] 这个户型怎样设计更好呢

  [复制链接]
头像被屏蔽

1

收听

4

听众

606

帖子

禁止访问

注册时间
2007-10-4
精华
0
QQ
发表于 2013-4-5 14:54:08 | 显示全部楼层 |阅读模式
提示: 作者被禁止或删除 内容自动屏蔽
回复

使用道具 举报

0

收听

1

听众

56

帖子

未认证商家

注册时间
2013-2-21
精华
0

时克装饰

发表于 2013-4-5 15:00:48 | 显示全部楼层
我们真诚期待你的咨询、也欢迎您前来比价
        承诺:
      所用材料一律为市场主流品牌、或者由您指定品牌;
        发现假冒伪劣产品一律返还装修合同款;
现针对90——110平方的所有户型,半包价格一律为32800元
中途若无缘无故出现增项一律为我方承担;
                详细情况请咨询:
QQ:563304068
电话:15155667162      地址:湖心南路百年家居巷内时克装饰


此次活动仅限5户,先到先得!!!
回复 支持 反对

使用道具 举报

头像被屏蔽

4

收听

3

听众

427

帖子

禁止发言

注册时间
2012-6-4
精华
0
QQ
发表于 2013-4-5 15:03:12 | 显示全部楼层
提示: 作者被禁止或删除 内容自动屏蔽
签名被屏蔽
回复 支持 反对

使用道具 举报

0

收听

2

听众

2877

帖子

未认证商家

注册时间
2010-7-27
精华
0
QQ
发表于 2013-4-5 15:06:24 | 显示全部楼层
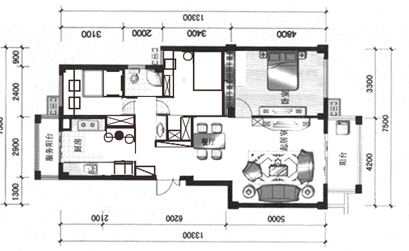
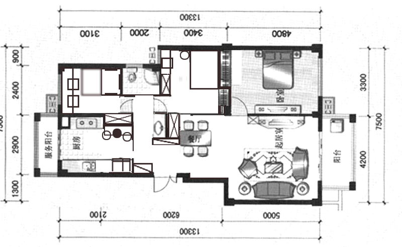
这个户型好熟悉……
QQ 27284524 电话 13033191509
地址 安庆西湖绿洲城 影竹圆 1栋5单元401
回复 支持 反对

使用道具 举报

头像被屏蔽

1

收听

4

听众

606

帖子

禁止访问

注册时间
2007-10-4
精华
0
QQ
 楼主| 发表于 2013-4-5 15:14:43 | 显示全部楼层
提示: 作者被禁止或删除 内容自动屏蔽
回复 支持 反对

使用道具 举报

头像被屏蔽

1

收听

4

听众

606

帖子

禁止访问

注册时间
2007-10-4
精华
0
QQ
 楼主| 发表于 2013-4-5 15:17:29 | 显示全部楼层
提示: 作者被禁止或删除 内容自动屏蔽
回复 支持 反对

使用道具 举报

头像被屏蔽

1

收听

4

听众

606

帖子

禁止访问

注册时间
2007-10-4
精华
0
QQ
 楼主| 发表于 2013-4-5 15:18:48 | 显示全部楼层
提示: 作者被禁止或删除 内容自动屏蔽
回复 支持 反对

使用道具 举报

头像被屏蔽

4

收听

3

听众

427

帖子

禁止发言

注册时间
2012-6-4
精华
0
QQ
发表于 2013-4-5 15:24:13 | 显示全部楼层
提示: 作者被禁止或删除 内容自动屏蔽
签名被屏蔽
回复 支持 反对

使用道具 举报

13

收听

8

听众

352

帖子

未认证商家

注册时间
2012-9-17
精华
0
QQ
发表于 2013-4-5 16:15:03 | 显示全部楼层
您好!百度家装欢迎您的咨询!
百度家装欢迎您的咨询!
地址:安庆市迎江区宜城路御景国际4#3层,皖源国际对面
咨询电话18755628012
回复 支持 反对

使用道具 举报

头像被屏蔽

0

收听

1

听众

25

帖子

禁止访问

注册时间
2013-4-3
精华
0
发表于 2013-4-5 16:43:57 | 显示全部楼层
提示: 作者被禁止或删除 内容自动屏蔽
回复 支持 反对

使用道具 举报

0

收听

5

听众

841

帖子

未认证商家

注册时间
2011-10-14
精华
0
QQ
发表于 2013-4-5 16:54:17 | 显示全部楼层
卧室夹在厨房和卫生间中间  看着不是太习惯哈
更多有品位的家庭选择雷拓
一店:南翔博览中心二楼 8882133
二店:百年家居一期 5848688[/
回复 支持 反对

使用道具 举报

9

收听

15

听众

825

帖子

E粉明星

注册时间
2012-9-24
精华
4
发表于 2013-4-5 17:04:43 | 显示全部楼层
设计当然是找设计师啦!
上善若水 厚德载物
回复 支持 反对

使用道具 举报

头像被屏蔽

0

收听

1

听众

155

帖子

禁止发言

注册时间
2010-8-23
精华
0
发表于 2013-4-5 20:35:16 | 显示全部楼层
提示: 作者被禁止或删除 内容自动屏蔽
回复 支持 反对

使用道具 举报

0

收听

1

听众

335

帖子

E粉新星

注册时间
2013-2-27
精华
0
QQ
发表于 2013-4-5 23:12:04 | 显示全部楼层
澳蓝特整体橱柜设计师们愿为楼主厨房设计提供服务!!!QQ:l34701157
回复 支持 反对

使用道具 举报

2

收听

24

听众

1951

帖子

E粉明星

注册时间
2010-8-8
精华
0
发表于 2013-4-6 02:17:03 | 显示全部楼层
本帖最后由 竞叫战士 于 2013-4-6 12:14 编辑

我的方案较紧凑,缺点:
1、主卧上厕所多绕3米。
2、厕所和主卧之间的卧室通风问题。

换来的代价:

1、入户有对景玄关,不见多门,不一览无余。
2、解决了两个次卧收纳的拓展,且最大限度地扩大两个小卧室的使用空间。
3、扩大了厨房的空间和功能性。

注:
1、厨房和厕所的门要透光。
2、如果讨厌洗脸槽上方的镜片,可以用推拉的方式,不用就将镜面藏起来。(此处的防水处理要谨而慎之)
3、厨房隔壁的卧房,是书房兼客卧,使用推拉沙发床。
4、具体操作,还要根据现场实测为准。
015909bd2g32gtonn6zo2s.jpg

未标题-1.jpg
fangan.jpg

回复 支持 反对

使用道具 举报

1

收听

1

听众

67

帖子

E粉新人

注册时间
2013-3-12
精华
0
QQ
发表于 2013-4-6 08:49:23 | 显示全部楼层
安庆千色花装饰公司欢迎您的咨询!    我们有专业的设计师为您打造理想家装!   地址:人民路203-207号(十一中斜对面)       电话:5570733   QQ:352801248
联系电话:13696626307(林)       QQ:352801248
回复 支持 反对

使用道具 举报

4

收听

4

听众

240

帖子

E粉新星

注册时间
2012-2-16
精华
1
QQ
发表于 2013-4-6 09:00:36 | 显示全部楼层
忆佳装饰——圆您美好家的梦想!
我们前期提供免费上门量房,出平面方案和报价。
欢迎楼主有时间来我们公司看看。
地址:安庆市光彩二期(7路公交车终点站斜对面)忆佳装饰
TEL:18056910669(小胡)
地址:安庆市光彩二期(7路公交车终点站斜对面)忆佳装饰 TEL:18056910669(小胡)
回复 支持 反对

使用道具 举报

0

收听

1

听众

953

帖子

E粉明星

注册时间
2008-9-23
精华
0
QQ
发表于 2013-4-6 09:22:08 | 显示全部楼层
安庆都辉装饰工程有限公司

安庆都辉装饰工程有限公司是一家专业从事家居装饰、写字楼、公寓、挑高

空间、商业空间、别墅设计与施工的专业性工程公司,

      都辉人对内提倡尊重、信任、崇尚团队精神,对外强调诚实、信用、坚持质量第一。力求在每一项工程以及每一项工程的每一个环节,通过自身优势营造出完美的工程作品以回馈客户。

我们通过对各种性质的建筑空间进行设计和施工,使我们积累了丰富的管理、设计和施工经验,公司本着以绿色环保为主题,对家居住宅、办公、商铺等不同特点的室内装饰产品形成了独特的装饰理念。

公司在与客户进行工程合作之时,必将为客户提供详尽的工程咨询、合理的设计、优良的施工。在创造经济效益之同时,更加追求良好的企业信誉及社会效益。

都辉人将长期   坚持以质量和居住性为首位
                            坚持绿色环保装饰,艺术个性风尚设计
                            坚持人性,感性,理性的结合
                            坚持优化房屋功能设计,合理规范施工

立足安庆,展望未来。都辉人将遵循企业国际惯例,以规模发展、精品施工的崇高理念,按照“运作规范化、管理信息化、经营规模化、发展国际化”的经营方针,引领家居装饰潮流,服务装饰事业,让每一项工程成为样板工程,让您们成为我们永远的朋友。
   

安庆都辉装饰工程有限公司感谢广大新老客户一直以来对我们的信赖与支持!

 
如果您有空,不妨和我们聊聊
都辉装饰讨论版: http:/www.aqdhzs.com。
都辉装饰百度空间:http://hi.baidu.com。  
我们的邮箱:wshong189@sina.com   
我们的QQ:1048677767
365天服务电话:05568733819       传真:05568733818
回复 支持 反对

使用道具 举报

头像被屏蔽

1

收听

4

听众

606

帖子

禁止访问

注册时间
2007-10-4
精华
0
QQ
 楼主| 发表于 2013-4-7 10:40:17 | 显示全部楼层
提示: 作者被禁止或删除 内容自动屏蔽
回复 支持 反对

使用道具 举报

2

收听

24

听众

1951

帖子

E粉明星

注册时间
2010-8-8
精华
0
发表于 2013-4-7 13:15:47 | 显示全部楼层
未标题-1.jpg
回复 支持 反对

使用道具 举报

1

收听

4

听众

684

帖子

未认证商家

注册时间
2012-2-12
精华
0
发表于 2013-4-7 13:47:17 | 显示全部楼层
祝楼主早日觅得适合自己的设计方案!
橱柜这块,可以到我们锦致橱柜安庆旗舰店来实地了解!
锦致橱柜集中帖,4月13日~14日锦致橱柜厂商联手推出特价套餐,全场优惠!
http://www.aqlife.com/forum.php?mod=viewthread&tid=1465993&fromuid=227659
品鉴热线:8882250  13966931992(江女士)
展厅地址:南翔光彩国际家居博览中心一层61号  锦致橱柜

锦致橱柜,做最适合中国人的厨房
展厅地址:南翔光彩国际家居博览中心一层61号
品鉴热线:8882250
服务热
回复 支持 反对

使用道具 举报

0

收听

1

听众

153

帖子

E粉新星

注册时间
2013-4-9
精华
0
QQ
发表于 2013-4-10 10:15:11 | 显示全部楼层
  您好,建筑面积是包括墙体的面积和公摊面积的。设计这块建议您找专业的设计师帮您看看,另外风水方面看看你是否还有其他的讲究,装修不是件小事情。
  您好,我这边是飞龙装饰公司的,这种案例我们可以做,费用是根据您要求的设计方案和主材选定来确定的,我们提供半包和全包
  飞龙装饰公司成立于1993年,今年是公司20年店庆的大喜之年,值此之际,公司为了回馈广大安庆市民20年来的支持与厚爱,特推出让利大活动。现有多种优惠让利和团购活动。
   公司有着十分优越的设计资源和施工资质,我们可以提供多套的设计风格供客户参考,各大小区也有我们的经典案例,如有需要可安排参观考察。

  有需要咨询的可联系我 严经理:13866616357
严连
时代1+1吊顶
市场部经理
Tel:13966619399
QQ:603209667
地址:安庆市舒怡国际家居2楼
回复 支持 反对

使用道具 举报

头像被屏蔽

0

收听

1

听众

31

帖子

禁止访问

注册时间
2013-3-15
精华
0
发表于 2013-4-10 12:30:08 | 显示全部楼层
提示: 作者被禁止或删除 内容自动屏蔽
回复 支持 反对

使用道具 举报

头像被屏蔽

0

收听

1

听众

33

帖子

禁止访问

注册时间
2013-4-10
精华
0
发表于 2013-4-10 13:51:51 | 显示全部楼层
提示: 作者被禁止或删除 内容自动屏蔽
回复 支持 反对

使用道具 举报

0

收听

2

听众

2877

帖子

未认证商家

注册时间
2010-7-27
精华
0
QQ
发表于 2013-4-10 14:52:16 | 显示全部楼层
QQ 27284524 电话 13033191509
地址 安庆西湖绿洲城 影竹圆 1栋5单元401
回复 支持 反对

使用道具 举报

您需要登录后才可以回帖 登录 | 注册

本版积分规则

联系合作|手机版|手机APP|Archiver|

GMT+8, 2025-12-18 10:20 Powered by Discuz! X3.4

安庆E网生活网站 © 2001-2013 Comsenz Inc. ( 皖ICP备05012696号 )

QQ

安庆瑞易文化 地址:华茂1958-C7栋 联系电话:0556-5306667 联系邮箱:17779721@qq.com 互联网违法和不良信息举报电话和邮箱:0556-5306667 17779721@qq.com

皖公网安备 34080002000101号

    
快速回复 返回顶部 返回列表