安庆E网

搜索
查看: 11367|回复: 66

[样板间] 【面对面装饰】中国著名国画家韦老的"简中风''家装

  [复制链接]

11

收听

5

听众

2246

帖子

认证商家

注册时间
2008-6-9
精华
0
QQ
发表于 2013-4-29 10:41:58 | 显示全部楼层 |阅读模式
本帖最后由 安庆面对面装饰 于 2013-4-29 11:19 编辑

      成立于2004年的南京面对面装饰有限公司是专业提供完整家居服务的全国连锁机构,总部位于江苏南京,目前拥有南京、合肥、安庆、武汉、镇江、扬州、盐城、重庆、成都、长沙、南昌、淮安、常州、无锡、泰州、芜湖、南通、昆明、贵阳、 郑州、 青岛等二十多个分公司。“做负责的企业,担起社会的责任”是公司在初创时就建立起的理念,作为公司的座右铭,责任二字一直贯穿于公司发展的始终,正是在这种理念的坚持下,面对面从一个20多人的小公司发展到现在的规模。

      这次推出的案例是简中风,大部分情况下,简中风比较适合中老年人居住,主色调以朱红色为主,家具尽量不要太过于现代化,老人都比较怀旧,建议装修不要太奢华,尽量简单些,中式装修风格基本上是以内圆外方理念为主,家里地面尽量用地板,房间的墙壁最好用白色或者米黄色,相对比较温馨。话不多说,看图~

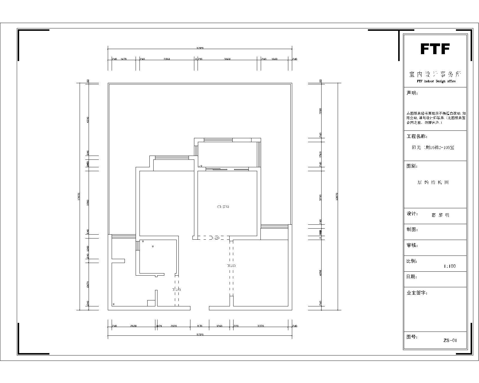
原始图:
韦老雅居原始图.jpg
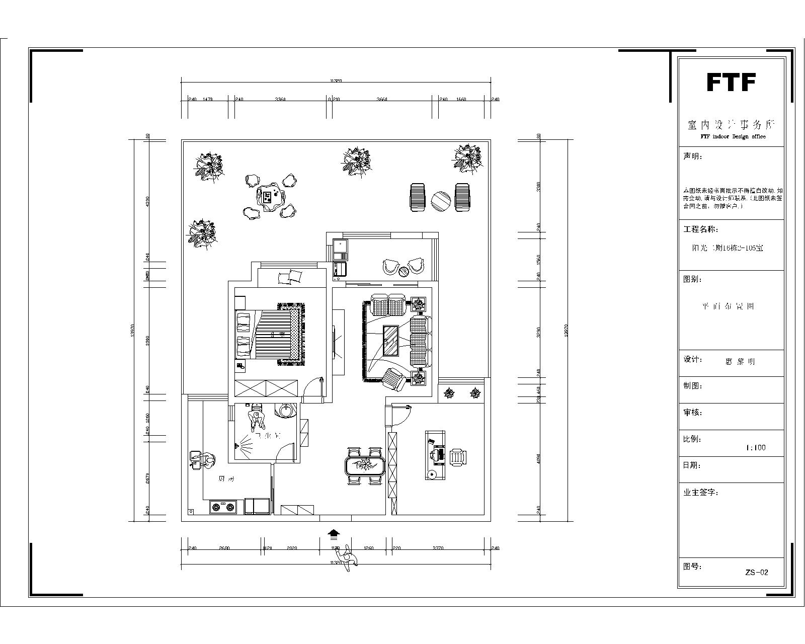
平面图:
韦老雅居平面方案.jpg
客餐厅原始效果图:
客1.jpg

餐1副本.jpg (个人感觉餐厅里的灯偏欧式古典了些,地板颜色偏暗了些,)

大概是韦老比较喜欢简单点的装修,不愿多加修饰,根据韦老的要求,我们的惠工重新改了一下方案,一切从简,但是感觉上亮了许多~

修改后客餐厅效果图:
客2副本.jpg

餐2.jpg




回复

使用道具 举报

头像被屏蔽

0

收听

0

听众

13

帖子

禁止访问

注册时间
2011-6-23
精华
0
发表于 2013-4-29 10:58:00 | 显示全部楼层
提示: 作者被禁止或删除 内容自动屏蔽
回复 支持 反对

使用道具 举报

11

收听

5

听众

2246

帖子

认证商家

注册时间
2008-6-9
精华
0
QQ
 楼主| 发表于 2013-4-29 11:04:59 | 显示全部楼层
上传一下韦老的中国画作品,嘿嘿,大家一饱眼福吧~本想上传他的代表作《九华百岁宫》的,但是没找到··· 韦1.jpg

韦2.jpg
回复 支持 反对

使用道具 举报

11

收听

5

听众

2246

帖子

认证商家

注册时间
2008-6-9
精华
0
QQ
 楼主| 发表于 2013-4-29 11:07:13 | 显示全部楼层
hlm501 发表于 2013-4-29 10:58
轻装修,重装饰,色彩用的很到位,适合老年人居住,不错,

谢谢,我们的设计师都会陪客户一起去选材料、配颜色~
回复 支持 反对

使用道具 举报

2

收听

23

听众

1951

帖子

E粉明星

注册时间
2010-8-8
精华
0
发表于 2013-4-29 14:09:18 | 显示全部楼层
ppp.jpg
回复 支持 反对

使用道具 举报

2

收听

23

听众

1951

帖子

E粉明星

注册时间
2010-8-8
精华
0
发表于 2013-4-29 14:12:56 | 显示全部楼层
本帖最后由 竞叫战士 于 2013-4-29 14:24 编辑

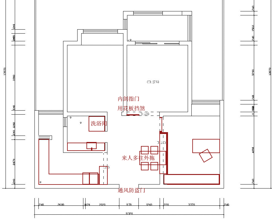
能把烟道拆除的一定是1F

虽然卫生间可以用抽风机将厕所浊气排除室外,这个房子毕竟南北、东西通风不畅。你不可能将厕所的窗户常年关闭,祛湿、排浊再好的排风机也没有窗户好使。


把一些棱角消化掉吧,特别是客厅电视墙……
回复 支持 反对

使用道具 举报

2

收听

23

听众

1951

帖子

E粉明星

注册时间
2010-8-8
精华
0
发表于 2013-4-29 14:14:32 | 显示全部楼层
本帖最后由 竞叫战士 于 2013-4-29 14:16 编辑

这么大的厨房不够用?

一定要把采光通风的共享空间 --生活阳台咔嚓掉?

主卧和书房最好选择和壁面颜色相同的门,否则入户后以为到了门的专卖店。
回复 支持 反对

使用道具 举报

2

收听

23

听众

1951

帖子

E粉明星

注册时间
2010-8-8
精华
0
发表于 2013-4-29 14:22:16 | 显示全部楼层
户型分析:

1、通风不佳
2、入户大煞不挡
3、厕所不合理
4、入户们太多



请教设计师,你解决了什么问题?
回复 支持 反对

使用道具 举报

2

收听

23

听众

1951

帖子

E粉明星

注册时间
2010-8-8
精华
0
发表于 2013-4-29 14:25:24 | 显示全部楼层
引我上钩,我来了……

点评

点评的碉堡了···  发表于 2013-4-29 16:06
恩,你俩还有一腿?嘿嘿  发表于 2013-4-29 16:03
回复 支持 反对

使用道具 举报

2

收听

23

听众

1951

帖子

E粉明星

注册时间
2010-8-8
精华
0
发表于 2013-4-29 14:27:19 | 显示全部楼层
入墙柜,很有利润的。为什么把这杯羹让给成品家私?

点评

呵呵,好热闹啊,你要是做生意的,也是个奸商,  发表于 2013-4-29 16:01
回复 支持 反对

使用道具 举报

头像被屏蔽

0

收听

0

听众

57

帖子

禁止访问

注册时间
2012-12-28
精华
0
发表于 2013-4-29 14:52:53 | 显示全部楼层
提示: 作者被禁止或删除 内容自动屏蔽
回复 支持 反对

使用道具 举报

11

收听

5

听众

2246

帖子

认证商家

注册时间
2008-6-9
精华
0
QQ
 楼主| 发表于 2013-4-29 15:47:38 | 显示全部楼层
竞叫战士 发表于 2013-4-29 14:09

你说遮煞的问题,我们的设计师有考虑过,我们去实地测量和业主沟通后决定不加花板,由于户型影响,加花板会导致进出客厅很不方便,如果居室实用不方便,还谈什么风水!

点评

你觉得挡住了么?不便利了么?2m多的通道不便利?你怎么不觉得你的厕所门绕吗?哈哈哈  发表于 2013-4-29 16:10
回复 支持 反对

使用道具 举报

11

收听

5

听众

2246

帖子

认证商家

注册时间
2008-6-9
精华
0
QQ
 楼主| 发表于 2013-4-29 15:48:53 | 显示全部楼层
竞叫战士 发表于 2013-4-29 14:12
能把烟道拆除的一定是1F

虽然卫生间可以用抽风机将厕所浊气排除室外,这个房子毕竟南北、东西通风不畅。 ...

一个老艺术家在家吃饭的几率太少,厨房基本是个摆设。

点评

不怎么在家吃饭,你把别人的厨房拓展到不能拓展的位置了。  发表于 2013-4-29 16:11
回复 支持 反对

使用道具 举报

11

收听

5

听众

2246

帖子

认证商家

注册时间
2008-6-9
精华
0
QQ
 楼主| 发表于 2013-4-29 15:50:40 | 显示全部楼层
竞叫战士 发表于 2013-4-29 14:14
这么大的厨房不够用?

一定要把采光通风的共享空间 --生活阳台咔嚓掉?

你可以把居住人群的年龄和喜欢的风格考虑进去吗?我们是根据客户的要求来设计的~

点评

有客人来,上厕,正好是做饭时间段,谁不恶心。关闭窗户,慢慢排臭气吧。说不定排风设备还没有设计进去。  发表于 2013-4-29 16:15
回复 支持 反对

使用道具 举报

11

收听

5

听众

2246

帖子

认证商家

注册时间
2008-6-9
精华
0
QQ
 楼主| 发表于 2013-4-29 15:54:44 | 显示全部楼层
竞叫战士 发表于 2013-4-29 14:27
入墙柜,很有利润的。为什么把这杯羹让给成品家私?

一味的注重利润,而不为业主考虑效果,是不可取的。请注意设计风格~

点评

谢谢分享: 4.0
利润和便捷。对客户来说,同样要指出,这部分钱让木匠完成,不是更便捷?也就是说中式风格的入墙柜,面对面完成不了……  发表于 2013-4-29 16:17
谢谢分享: 4
楼主说的也有道理  发表于 2013-4-29 16:07
回复 支持 反对

使用道具 举报

4

收听

4

听众

1318

帖子

E粉明星

注册时间
2013-3-21
精华
0
发表于 2013-4-29 16:06:42 | 显示全部楼层
五行缺男人 发表于 2013-4-29 14:52
这种古色古香的颜色的确受父母喜爱呢,我婶子家当时装修也用的这种颜色,她觉得很耐脏~

年纪大点的都比较喜欢
装房子,买家具,就上一号家居网-yes!TEL:18605565320 QQ:806416356  诚信为本!!!
回复 支持 反对

使用道具 举报

11

收听

5

听众

2246

帖子

认证商家

注册时间
2008-6-9
精华
0
QQ
 楼主| 发表于 2013-4-29 16:17:57 | 显示全部楼层
安庆面对面装饰 发表于 2013-4-29 15:48
一个老艺术家在家吃饭的几率太少,厨房基本是个摆设。

你也看出来是一楼,有个大花园就够了,如果不把小阳台拓展出去,留着干嘛呢?难道憋在里面洗衣服?

点评

那个小阳台是厨房和厕所的通风采光的共享空间。原开发商和将来住进来客户比你周全多了。  发表于 2013-4-29 18:58
回复 支持 反对

使用道具 举报

2

收听

23

听众

1951

帖子

E粉明星

注册时间
2010-8-8
精华
0
发表于 2013-4-29 16:19:50 | 显示全部楼层
方案先全部摆出来,然后再注明业主选择了那种方案。

要不然,你可以说,你出来的东西都是我们不拿正眼瞧的丢到废纸篓的东西。
回复 支持 反对

使用道具 举报

11

收听

5

听众

2246

帖子

认证商家

注册时间
2008-6-9
精华
0
QQ
 楼主| 发表于 2013-4-29 16:27:22 | 显示全部楼层
安庆面对面装饰 发表于 2013-4-29 15:47
你说遮煞的问题,我们的设计师有考虑过,我们去实地测量和业主沟通后决定不加花板,由于户型影响,加花板 ...

你觉得2米的空间要做多宽的花板效果才比较好呢?800的?还是600的?除掉这两个尺寸,你认为进客厅的空间还有多大呢?注意,是客厅!如果是卧室的话900就行了。

点评

最好正好挡住大门,至少要挡住大半开入户门大概45CM  发表于 2013-4-29 16:45
回复 支持 反对

使用道具 举报

11

收听

5

听众

2246

帖子

认证商家

注册时间
2008-6-9
精华
0
QQ
 楼主| 发表于 2013-4-29 16:32:32 | 显示全部楼层
安庆面对面装饰 发表于 2013-4-29 15:50
你可以把居住人群的年龄和喜欢的风格考虑进去吗?我们是根据客户的要求来设计的~

总比一开厕所门就见到餐桌要好的多吧。不专业的设计师才考虑不到排气扇的问题!

点评

一个连厕所浊气污染厨房都不在乎的设计师,突然讲究出了厕所门看到了餐台。你要知道你原厕所门,开门见灶台的。  发表于 2013-4-30 13:09
你真会绕,你谈风水,你风水不了转到便捷,让你理解了便捷后,你绕到美观,美观不是问题了,你开始找茬出了厕所你看见餐台……  发表于 2013-4-30 13:06
回复 支持 反对

使用道具 举报

11

收听

5

听众

2246

帖子

认证商家

注册时间
2008-6-9
精华
0
QQ
 楼主| 发表于 2013-4-29 16:34:17 | 显示全部楼层
安庆面对面装饰 发表于 2013-4-29 15:54
一味的注重利润,而不为业主考虑效果,是不可取的。请注意设计风格~

不是完成不了,手工永远无法和机器相比,要因地制宜。

点评

中式就是注重手工,你们的木匠手工连你们自己都没有自信?!  发表于 2013-4-29 16:47
回复 支持 反对

使用道具 举报

11

收听

5

听众

2246

帖子

认证商家

注册时间
2008-6-9
精华
0
QQ
 楼主| 发表于 2013-4-29 16:37:07 | 显示全部楼层
竞叫战士 发表于 2013-4-29 16:19
方案先全部摆出来,然后再注明业主选择了那种方案。

要不然,你可以说,你出来的东西都是我们不拿正眼瞧 ...

一个户型平面方案有好多种,如果你自己住可以随意设计。

点评

一个设计师必须面面俱到地把各种方案放到桌面上来,该申明和说面的都提前摊牌。剩下的让客户选择。  发表于 2013-4-29 19:01
回复 支持 反对

使用道具 举报

0

收听

0

听众

13

帖子

E粉新人

注册时间
2013-4-26
精华
0
QQ
发表于 2013-4-29 16:46:03 | 显示全部楼层
不错 很好
回复 支持 反对

使用道具 举报

2

收听

23

听众

1951

帖子

E粉明星

注册时间
2010-8-8
精华
0
发表于 2013-4-29 19:25:17 | 显示全部楼层
根据客户进行设计,可能嘴上说说而已……


就这位书画家而言,精彩的图应该在书房:

落地的大型荷叶莲花砚台,书桌背后的柜体内一个单元用花梨杆儿陈列让人震撼的毛笔……
回复 支持 反对

使用道具 举报

2

收听

23

听众

1951

帖子

E粉明星

注册时间
2010-8-8
精华
0
发表于 2013-4-29 19:31:26 | 显示全部楼层
书桌可能尺寸也不够

要2MX 0.9M的,上面垫上羊毛毡子……

点评

是墙面铺羊毛毡子可好,墙面怎么铺羊毛毡子你懂吗?  发表于 2013-4-30 12:43
回复 支持 反对

使用道具 举报

您需要登录后才可以回帖 登录 | 注册

本版积分规则

联系合作|手机版|手机APP|Archiver|

GMT+8, 2025-10-26 21:07 Powered by Discuz! X3.4

安庆E网生活网站 © 2001-2013 Comsenz Inc. ( 皖ICP备05012696号 )

QQ

安庆瑞易文化 地址:华茂1958-C7栋 联系电话:0556-5306667 联系邮箱:17779721@qq.com 互联网违法和不良信息举报电话和邮箱:0556-5306667 17779721@qq.com

皖公网安备 34080002000101号

    
快速回复 返回顶部 返回列表