安庆E网

搜索
查看: 4008|回复: 4

[样板间] 【面对面装饰】恭喜绿地张先生家完工大吉~

[复制链接]

11

收听

6

听众

2246

帖子

认证商家

注册时间
2008-6-9
精华
0
QQ
发表于 2013-5-8 10:18:50 | 显示全部楼层 |阅读模式
本帖最后由 安庆面对面装饰 于 2013-5-8 10:23 编辑

恭喜张先生家完工大吉啦~家里的房子装修很漂亮哦~

过几个月等通风好了,就可以搬进去住啦~要记得买点植物小盆栽清新一下空气哦~

相信踏进新房的那一刻是所有业主朋友都期待已久的了~让我们一起来晒晒小窝吧!


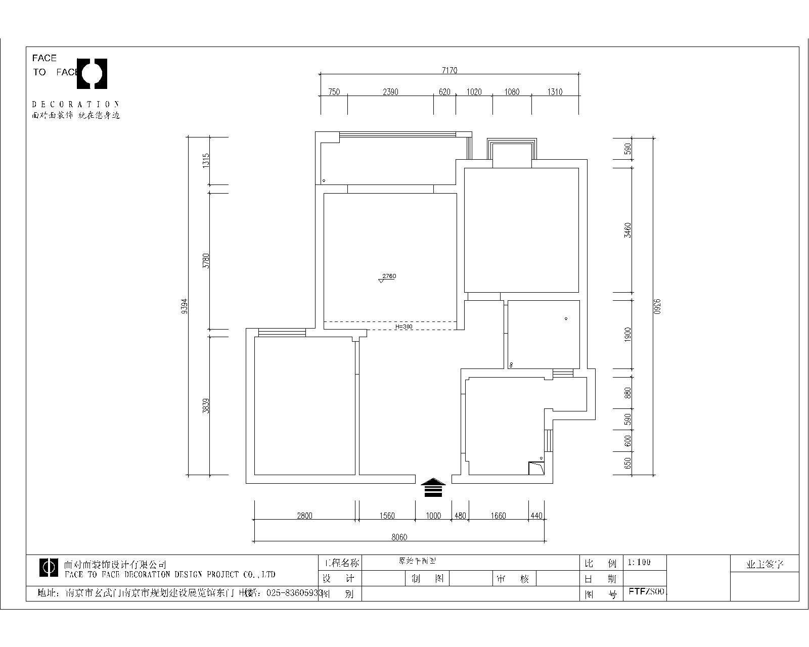
原始平面图:
原始平面图.jpg

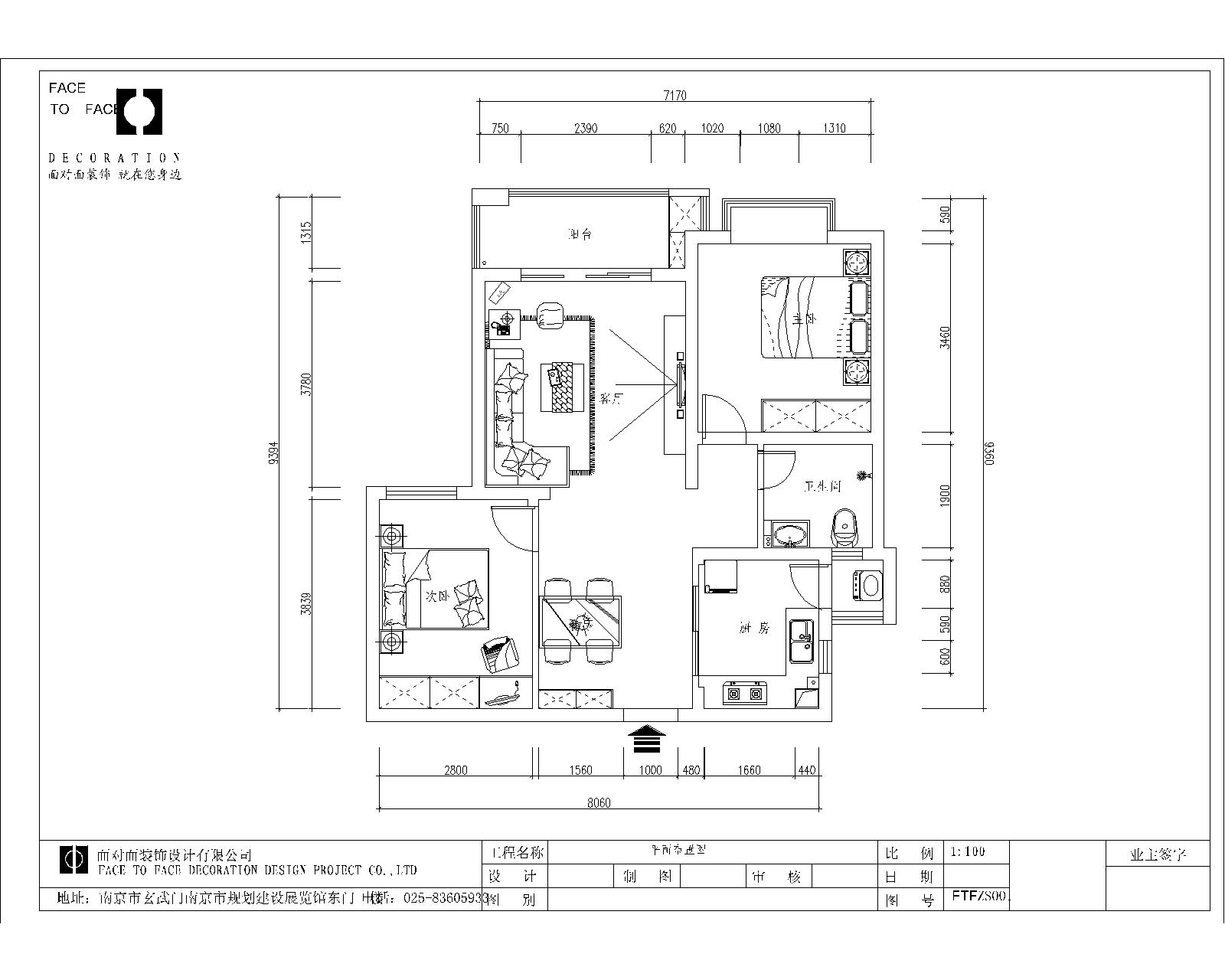
平面布置图:
平面布置图.jpg

效果图:

效果图_meitu_1副本.jpg





回复

使用道具 举报

11

收听

6

听众

2246

帖子

认证商家

注册时间
2008-6-9
精华
0
QQ
 楼主| 发表于 2013-5-8 11:38:50 | 显示全部楼层
完工后的图片大集合了~一饱眼福了,嘿嘿~

先上几张客厅的实图,不是专业的,可能拍的不够好哦~

aa.jpg

bb.jpg

ee.jpg

电视背景墙,个人很喜欢这样的墙纸~
cc.jpg

kk.jpg

厕所的瓷砖整体搭配和颜色是我最喜欢的地方,以后装修值得借鉴!
ff.jpg

gg.jpg

hh.jpg

jj.jpg

ii.jpg

dd.jpg
回复 支持 反对

使用道具 举报

0

收听

2

听众

189

帖子

E粉新星

注册时间
2010-1-8
精华
0
发表于 2013-5-21 00:08:14 | 显示全部楼层
有谐水湾二期的图吗
人人为我,我为人人
回复 支持 反对

使用道具 举报

11

收听

6

听众

2246

帖子

认证商家

注册时间
2008-6-9
精华
0
QQ
 楼主| 发表于 2013-5-22 10:02:30 | 显示全部楼层
您好,我手上的图不是齐全的,不过可以发几张给您看看,给您做一下参考~您要是觉得面对面设计风格各方面都不错,可以过来看看~和我们的设计师沟通一下装修方面的知识~

阳光_meitu_2.jpg

1副本_meitu_1.jpg
回复 支持 反对

使用道具 举报

0

收听

2

听众

72

帖子

未认证商家

注册时间
2013-3-17
精华
0
QQ
发表于 2013-5-28 11:14:25 | 显示全部楼层
蓝色灯带不好看  艳
回复 支持 反对

使用道具 举报

您需要登录后才可以回帖 登录 | 注册

本版积分规则

联系合作|手机版|手机APP|Archiver|

GMT+8, 2025-12-13 21:43 Powered by Discuz! X3.4

安庆E网生活网站 © 2001-2013 Comsenz Inc. ( 皖ICP备05012696号 )

QQ

安庆瑞易文化 地址:华茂1958-C7栋 联系电话:0556-5306667 联系邮箱:17779721@qq.com 互联网违法和不良信息举报电话和邮箱:0556-5306667 17779721@qq.com

皖公网安备 34080002000101号

    
快速回复 返回顶部 返回列表