安庆E网

搜索
查看: 53342|回复: 264

[装修日记] 书生的现代中式风格装修日记+最后的冲刺

  [复制链接]

0

收听

2

听众

476

帖子

E粉明星

注册时间
2010-3-21
精华
0
发表于 2013-5-10 00:21:03 | 显示全部楼层 |阅读模式
本帖最后由 箫剑书生 于 2013-11-30 23:22 编辑

装潢公司:时顺装饰公司   (5566337)                     
设计师:程工
施工经理:吴经理
      
      今年过完年后,准备开始装修。第一个问题是找不找装饰公司,想了二天没有为这个问题找到答案,但还是决定先接触一下装修公司。于是在E网的主流装饰公司中,联系了几家。大家来量房很积极,也非常感谢大家提的意见和建议,甚至耽误了一些设计师宝贵的时间。但是自己总感觉还缺了点什么,或者说自己的想法和专业设计师有差距,但不多。那我还要不要找装饰公司呢?
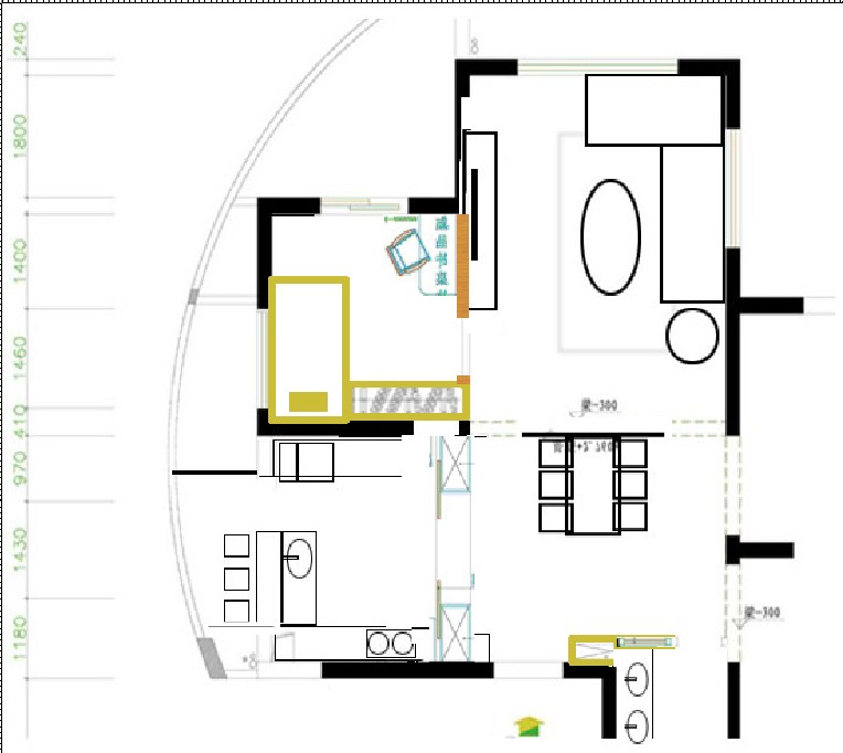
      带着这个疑问,最后在朋友的推荐下,找到了时顺装饰公司,推荐了设计部的程工进行设计。这次终于感觉到自己和专业人员的区别了。因为我只知道砸墙,专业人员还会设计补墙。当然,专业的设计人员不止会补墙,还会根据你家的人员居住情况设计适合你的房屋,让我感觉不再是千篇一律。具体请看下面的原始图和平面位置图,也请E网的朋友批评指正。
电梯(正在不断完善中):1、开工日;  2、效果图;   
3、橱柜基本配置表;   
4、装修前的原始实景照片;   
5、新房空鼓修理;  
6、强电箱和弱电箱
7、墙体改造后的实景照片;   
8、水电施工;   
9、弱电的材料选择 ;  
10、家庭背景音乐;   
11、燃气表改造
12、橱柜效果图
13、有框阳台的选择
14、瓷砖效果图;


原始平面图

原始平面图

平面位置图

平面位置图
回复

使用道具 举报

2

收听

24

听众

1951

帖子

E粉明星

注册时间
2010-8-8
精华
0
发表于 2013-5-10 06:54:10 | 显示全部楼层
002923s8zjsnis88snssj0.jpg
回复 支持 反对

使用道具 举报

3

收听

71

听众

1万

帖子

超级版主

注册时间
2004-12-8
精华
287

情多累美人

公益义工

QQ
发表于 2013-5-10 08:15:23 | 显示全部楼层
期待早点看到效果图

曾因酒醉鞭名马,生怕情多累美人……℡易随飞ooO…………18955600753
回复 支持 反对

使用道具 举报

1

收听

1

听众

447

帖子

未认证商家

注册时间
2013-5-7
精华
0
QQ
发表于 2013-5-10 08:21:04 | 显示全部楼层
同样期待中,不知道您可考虑地暖和中央空调。如果有需要可以咨询我小邱:18355606187.谢谢
尚美尚家冷暖工程有限公司
专业做地暖、中央空调、中央净水等等舒适家居系统
业务联系小邱:18355606187
回复 支持 反对

使用道具 举报

4

收听

4

听众

240

帖子

E粉新星

注册时间
2012-2-16
精华
1
QQ
发表于 2013-5-10 08:53:03 | 显示全部楼层
效果图期待中,,,,,,
地址:安庆市光彩二期(7路公交车终点站斜对面)忆佳装饰 TEL:18056910669(小胡)
回复 支持 反对

使用道具 举报

0

收听

2

听众

476

帖子

E粉明星

注册时间
2010-3-21
精华
0
 楼主| 发表于 2013-5-10 09:44:33 | 显示全部楼层
竞叫战士 发表于 2013-5-10 06:54

能不能请战士兄指教一下啊?
回复 支持 反对

使用道具 举报

0

收听

1

听众

420

帖子

未认证商家

注册时间
2009-3-9
精华
0
QQ
发表于 2013-5-10 11:41:05 | 显示全部楼层
欢迎咨询
11111111111111112222.jpg
公司地址:安庆市湖心北路6号香樟里后大门斜对过
联系电话:5225035,13866090429  QQ1826424285
回复 支持 反对

使用道具 举报

0

收听

2

听众

476

帖子

E粉明星

注册时间
2010-3-21
精华
0
 楼主| 发表于 2013-5-10 13:48:29 | 显示全部楼层
本帖最后由 箫剑书生 于 2013-9-2 21:41 编辑

今天早晨08:00左右,时顺公司的领导、项目经理、设计师和我们的工程监理都到场了,8:18分点燃了爆竹,开始砸墙了。然后就把我家的门、阳台的玻璃都做了保护。现场也做了功能区的区分,让人感觉还是很专业的。

nEO_IMG_IMG_5671.jpg
nEO_IMG_IMG_5672.jpg
nEO_IMG_IMG_5673.jpg
nEO_IMG_IMG_5674.jpg
回复 支持 反对

使用道具 举报

0

收听

2

听众

2877

帖子

未认证商家

注册时间
2010-7-27
精华
0
QQ
发表于 2013-5-10 13:53:12 | 显示全部楼层
恭喜楼主。
QQ 27284524 电话 13033191509
地址 安庆西湖绿洲城 影竹圆 1栋5单元401
回复 支持 反对

使用道具 举报

0

收听

1

听众

420

帖子

未认证商家

注册时间
2009-3-9
精华
0
QQ
发表于 2013-5-10 13:57:16 | 显示全部楼层
箫剑书生 发表于 2013-5-10 13:48
今天早晨08:00左右,时顺公司的领导、项目经理、设计师和我们的工程监理都到场了,8:18分点燃了爆竹,开始砸 ...

祝贺楼主装修顺利,提个建议,从风水角度考虑进门必须做玄关。
公司地址:安庆市湖心北路6号香樟里后大门斜对过
联系电话:5225035,13866090429  QQ1826424285
回复 支持 反对

使用道具 举报

0

收听

1

听众

285

帖子

E粉新星

注册时间
2011-10-4
精华
1
QQ
发表于 2013-5-10 15:06:57 | 显示全部楼层
恭祝楼主装修顺利!
用生活的理念诠释门的艺术
地址:光彩四期D区6栋7号
电话:0556-8733775  13855669703
回复 支持 反对

使用道具 举报

0

收听

2

听众

476

帖子

E粉明星

注册时间
2010-3-21
精华
0
 楼主| 发表于 2013-5-10 16:37:17 | 显示全部楼层
弘扬装饰1 发表于 2013-5-10 13:57
祝贺楼主装修顺利,提个建议,从风水角度考虑进门必须做玄关。

非常好的提议,目前的问题是那个地方要放个圆形的饭桌。想等饭桌放好了,再找那种活动的屏风,作为玄关。不知妥否,请各位网友指正。
回复 支持 反对

使用道具 举报

0

收听

5

听众

841

帖子

未认证商家

注册时间
2011-10-14
精华
0
QQ
发表于 2013-5-10 18:44:32 | 显示全部楼层
这房子装好了肯定很漂亮  配上我家的门就更漂亮了哈  祝装修顺利
更多有品位的家庭选择雷拓
一店:南翔博览中心二楼 8882133
二店:百年家居一期 5848688[/
回复 支持 反对

使用道具 举报

0

收听

2

听众

476

帖子

E粉明星

注册时间
2010-3-21
精华
0
 楼主| 发表于 2013-5-10 18:51:26 | 显示全部楼层
德国雷拓滑门 发表于 2013-5-10 18:44
这房子装好了肯定很漂亮  配上我家的门就更漂亮了哈  祝装修顺利

呵呵!被您说中了,真的要定您家的门。
回复 支持 反对

使用道具 举报

0

收听

2

听众

476

帖子

E粉明星

注册时间
2010-3-21
精华
0
 楼主| 发表于 2013-5-10 18:59:49 | 显示全部楼层
本帖最后由 箫剑书生 于 2013-5-10 19:13 编辑

腾讯曾经作出了一个非常艰难的决定,而对我们来说装修就是一个艰难的选择过程。比如刚开始说的找不找装修公司。后来这个问题终于解决了,一边是因为我还是相信专业的设计人员,另外一边是由于工作太忙,实在没有时间忙装修。由于从准备之初到选择好装修公司,有好几个月的时间,这段时间咱也没闲着,辗转于开发区。周末休闲哪里去,南翔博览中心欢迎你。天天走路7-8个小时,精神真好啊!
回复 支持 反对

使用道具 举报

0

收听

2

听众

476

帖子

E粉明星

注册时间
2010-3-21
精华
0
 楼主| 发表于 2013-5-10 19:00:18 | 显示全部楼层
本帖最后由 箫剑书生 于 2013-5-10 19:12 编辑

唯一的副作用就是吃完饭就想睡觉,睡着了就不想起来。怎么都感觉自己像是被军训了。
回复 支持 反对

使用道具 举报

0

收听

5

听众

841

帖子

未认证商家

注册时间
2011-10-14
精华
0
QQ
发表于 2013-5-11 13:30:30 | 显示全部楼层
箫剑书生 发表于 2013-5-10 18:51
呵呵!被您说中了,真的要定您家的门。

非常感谢对雷拓的眷顾,来订的时候表明一下楼主身份,会有礼品相赠,欢迎光临!
更多有品位的家庭选择雷拓
一店:南翔博览中心二楼 8882133
二店:百年家居一期 5848688[/
回复 支持 反对

使用道具 举报

0

收听

1

听众

61

帖子

E粉新人

注册时间
2013-5-11
精华
0
发表于 2013-5-11 15:06:55 | 显示全部楼层
玄关是根据户型来设定,不一定所有的都非得加个玄关,很多设计师有个误区,把功能跟玄关主次不分。风水懂皮毛,然后大肆鼓吹风水,其实根本不懂什么是风水。
回复 支持 反对

使用道具 举报

头像被屏蔽

0

收听

1

听众

54

帖子

禁止访问

注册时间
2010-3-16
精华
0
QQ
发表于 2013-5-11 15:56:10 | 显示全部楼层
提示: 作者被禁止或删除 内容自动屏蔽
签名被屏蔽
回复 支持 反对

使用道具 举报

0

收听

1

听众

420

帖子

未认证商家

注册时间
2009-3-9
精华
0
QQ
发表于 2013-5-11 16:06:30 | 显示全部楼层
留一手 发表于 2013-5-11 15:06
玄关是根据户型来设定,不一定所有的都非得加个玄关,很多设计师有个误区,把功能跟玄关主次不分。风水懂皮 ...

歇菜吧、
解决.jpg
公司地址:安庆市湖心北路6号香樟里后大门斜对过
联系电话:5225035,13866090429  QQ1826424285
回复 支持 反对

使用道具 举报

0

收听

1

听众

420

帖子

未认证商家

注册时间
2009-3-9
精华
0
QQ
发表于 2013-5-11 16:12:27 | 显示全部楼层
可及 发表于 2013-5-11 15:56
顶起18楼
个人也很反感那些只知道ABC就说自己英语四六级的人。
真有能力就说出所以然,让楼主及看帖的TX都 ...

可以看看下面,了解一下。希望对你有帮助。
公司地址:安庆市湖心北路6号香樟里后大门斜对过
联系电话:5225035,13866090429  QQ1826424285
回复 支持 反对

使用道具 举报

头像被屏蔽

0

收听

1

听众

54

帖子

禁止访问

注册时间
2010-3-16
精华
0
QQ
发表于 2013-5-11 16:15:02 | 显示全部楼层
提示: 作者被禁止或删除 内容自动屏蔽
签名被屏蔽
回复 支持 反对

使用道具 举报

0

收听

1

听众

420

帖子

未认证商家

注册时间
2009-3-9
精华
0
QQ
发表于 2013-5-11 16:17:23 | 显示全部楼层
可及 发表于 2013-5-11 16:15
哥们百度来的吧,风水不是百度就可以解决的哦。
还有个人认为兄弟精神可嘉,但是貌似言语有带冲击性,言 ...

本人方言口头禅 莫见怪
公司地址:安庆市湖心北路6号香樟里后大门斜对过
联系电话:5225035,13866090429  QQ1826424285
回复 支持 反对

使用道具 举报

0

收听

1

听众

61

帖子

E粉新人

注册时间
2013-5-11
精华
0
发表于 2013-5-11 16:23:52 | 显示全部楼层
可及 发表于 2013-5-11 15:56
顶起18楼
个人也很反感那些只知道ABC就说自己英语四六级的人。
真有能力就说出所以然,让楼主及看帖的TX都 ...

英雄所见略同
回复 支持 反对

使用道具 举报

2

收听

24

听众

1951

帖子

E粉明星

注册时间
2010-8-8
精华
0
发表于 2013-5-11 19:09:13 | 显示全部楼层
本帖最后由 竞叫战士 于 2013-5-11 19:31 编辑

玄关是一个功能区,有时候是一种意念。

就这个屋子而言,玄关是成立的,恰到好处的处理会使整个屋子增辉。



就这个屋子,玄关对景一个坐高(大约1.3M左右),材质为不通透实木四单元 四君子浮雕。

不想沉闷,颜色就以银粉为基色配上活鲜的图案。
回复 支持 反对

使用道具 举报

您需要登录后才可以回帖 登录 | 注册

本版积分规则

联系合作|手机版|手机APP|Archiver|

GMT+8, 2025-12-10 14:30 Powered by Discuz! X3.4

安庆E网生活网站 © 2001-2013 Comsenz Inc. ( 皖ICP备05012696号 )

QQ

安庆瑞易文化 地址:华茂1958-C7栋 联系电话:0556-5306667 联系邮箱:17779721@qq.com 互联网违法和不良信息举报电话和邮箱:0556-5306667 17779721@qq.com

皖公网安备 34080002000101号

    
快速回复 返回顶部 返回列表