安庆E网

搜索
查看: 16271|回复: 64

[我晒我家] 玄关背景画哪有啊

[复制链接]

2

收听

2

听众

750

帖子

E粉明星

注册时间
2012-12-3
精华
0
发表于 2013-5-31 22:06:34 | 显示全部楼层 |阅读模式
本帖最后由 ycyycy520 于 2013-8-7 22:14 编辑

这是我家的设计图,大家给参谋一下!!
回复

使用道具 举报

1

收听

5

听众

1437

帖子

E粉明星

注册时间
2013-2-3
精华
1
发表于 2013-5-31 22:09:48 | 显示全部楼层
沙发坐坐
回复

使用道具 举报

1

收听

2

听众

414

帖子

E粉明星

注册时间
2011-2-2
精华
0
发表于 2013-5-31 22:34:41 | 显示全部楼层
还是出效果图看着简单明了
回复 支持 反对

使用道具 举报

头像被屏蔽

0

收听

10

听众

1769

帖子

禁止访问

注册时间
2005-9-20
精华
1

发表于 2013-5-31 23:20:31 | 显示全部楼层
提示: 作者被禁止或删除 内容自动屏蔽
回复 支持 反对

使用道具 举报

2

收听

24

听众

1951

帖子

E粉明星

注册时间
2010-8-8
精华
0
发表于 2013-6-1 03:28:25 | 显示全部楼层
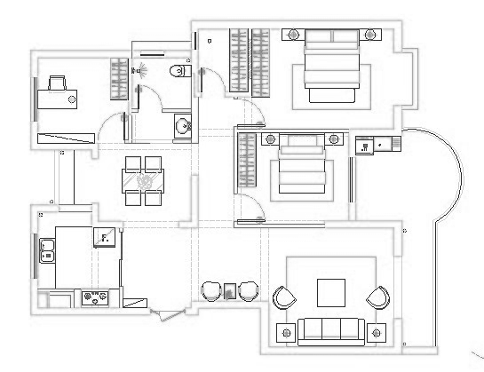
花了我90分钟 33333.jpg

点评

过道全没了  发表于 2013-6-5 22:31
此方案太好了  发表于 2013-6-5 22:29
原设计进户门,餐厅,卫生间在一条线  发表于 2013-6-2 23:28
这种设计比较好  发表于 2013-6-2 16:53
回复 支持 反对

使用道具 举报

2

收听

24

听众

1951

帖子

E粉明星

注册时间
2010-8-8
精华
0
发表于 2013-6-1 03:31:55 | 显示全部楼层
本帖最后由 竞叫战士 于 2013-6-1 03:50 编辑

次卧为客卧。


回复 支持 反对

使用道具 举报

头像被屏蔽

0

收听

1

听众

74

帖子

禁止发言

注册时间
2013-5-7
精华
0
QQ
发表于 2013-6-1 09:22:20 | 显示全部楼层
提示: 作者被禁止或删除 内容自动屏蔽
签名被屏蔽
回复 支持 反对

使用道具 举报

0

收听

2

听众

189

帖子

E粉新星

注册时间
2010-1-8
精华
0
发表于 2013-6-1 11:17:29 | 显示全部楼层
楼主是谐水湾的房子吧
人人为我,我为人人
回复 支持 反对

使用道具 举报

头像被屏蔽

0

收听

1

听众

54

帖子

禁止访问

注册时间
2013-5-19
精华
0
发表于 2013-6-1 11:31:48 | 显示全部楼层
提示: 作者被禁止或删除 内容自动屏蔽
签名被屏蔽
回复

使用道具 举报

1

收听

1

听众

447

帖子

未认证商家

注册时间
2013-5-7
精华
0
QQ
发表于 2013-6-1 11:49:35 | 显示全部楼层
业主马上装修了吧,不知是否有考虑地暖这中央空调,呵呵有需要,、想了解可以咨询我。小邱:18355606187
尚美尚家冷暖工程有限公司
专业做地暖、中央空调、中央净水等等舒适家居系统
业务联系小邱:18355606187
回复 支持 反对

使用道具 举报

2

收听

24

听众

1951

帖子

E粉明星

注册时间
2010-8-8
精华
0
发表于 2013-6-1 12:43:03 | 显示全部楼层
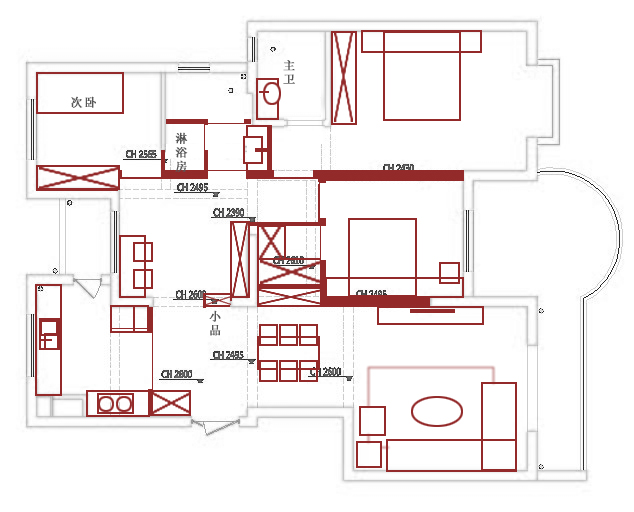
这是楼主原设计:
未标题-1.jpg
回复 支持 反对

使用道具 举报

2

收听

24

听众

1951

帖子

E粉明星

注册时间
2010-8-8
精华
0
发表于 2013-6-1 12:45:54 | 显示全部楼层
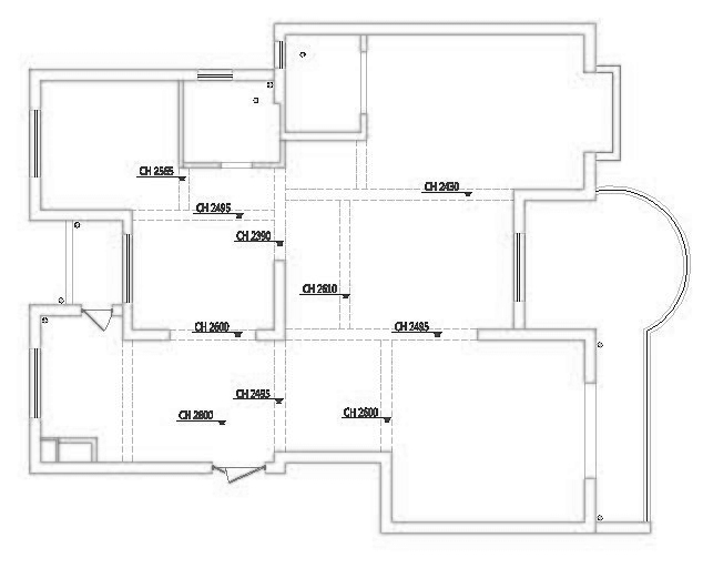
原户型图:
未标题-1.jpg
回复 支持 反对

使用道具 举报

2

收听

24

听众

1951

帖子

E粉明星

注册时间
2010-8-8
精华
0
发表于 2013-6-1 12:46:51 | 显示全部楼层
我现在有成就感了。
回复 支持 反对

使用道具 举报

0

收听

6

听众

587

帖子

E粉明星

注册时间
2010-9-20
精华
1
QQ
发表于 2013-6-1 14:52:51 | 显示全部楼层
新天地装饰公司恭喜楼主
勿加广告图,否则封号
回复 支持 反对

使用道具 举报

2

收听

24

听众

1951

帖子

E粉明星

注册时间
2010-8-8
精华
0
发表于 2013-6-1 16:34:54 | 显示全部楼层
楼主人呢?

暴殄天物哦,但愿没有开工。
回复 支持 反对

使用道具 举报

2

收听

2

听众

750

帖子

E粉明星

注册时间
2012-12-3
精华
0
 楼主| 发表于 2013-6-1 21:24:22 | 显示全部楼层
怎么啦??请指教!!
回复 支持 反对

使用道具 举报

2

收听

2

听众

750

帖子

E粉明星

注册时间
2012-12-3
精华
0
 楼主| 发表于 2013-6-1 21:46:55 | 显示全部楼层

准备好就开工了.
回复 支持 反对

使用道具 举报

2

收听

2

听众

750

帖子

E粉明星

注册时间
2012-12-3
精华
0
 楼主| 发表于 2013-6-1 21:50:33 | 显示全部楼层

谢谢战士的设计.让我的视野又开阔了一些.可进出各个房间都从那一个小洞进出可方便啊!!
回复 支持 反对

使用道具 举报

2

收听

2

听众

750

帖子

E粉明星

注册时间
2012-12-3
精华
0
 楼主| 发表于 2013-6-1 21:52:16 | 显示全部楼层
我家就三口人.想设计得尽量开阔些.
回复 支持 反对

使用道具 举报

2

收听

2

听众

750

帖子

E粉明星

注册时间
2012-12-3
精华
0
 楼主| 发表于 2013-6-1 21:54:45 | 显示全部楼层
wlpch 发表于 2013-6-1 11:17
楼主是谐水湾的房子吧

呵呵~给你猜出来了.你家也是吗?
回复 支持 反对

使用道具 举报

2

收听

24

听众

1951

帖子

E粉明星

注册时间
2010-8-8
精华
0
发表于 2013-6-1 22:01:40 | 显示全部楼层
呵呵,我的动线很合理。

你觉得你的设计,进出厕所、书房便利么?

客卧还是需要的。主卫也还是需要的。

哈哈,我很自豪。
回复 支持 反对

使用道具 举报

2

收听

24

听众

1951

帖子

E粉明星

注册时间
2010-8-8
精华
0
发表于 2013-6-1 22:04:31 | 显示全部楼层
不管入户还是坐在沙发上,视觉都比原设计好很多。

我的这个方案如果80分的话,原先的方案只能15分。

这15分是劳务分。仅此而已,谈不上设计。
回复 支持 反对

使用道具 举报

2

收听

24

听众

1951

帖子

E粉明星

注册时间
2010-8-8
精华
0
发表于 2013-6-1 22:18:14 | 显示全部楼层
主卫多方便,你住宾馆带不带厕所,价格都不一样。 想降低成本,瓷砖洁具稍微扣一些就下来了。

客卧,除了家里来人以外,男人在外面喝多了,脸不洗牙不刷到客卧呼呼,多方便。
回复 支持 反对

使用道具 举报

2

收听

2

听众

750

帖子

E粉明星

注册时间
2012-12-3
精华
0
 楼主| 发表于 2013-6-1 22:21:08 | 显示全部楼层
我也很想保留主卫.可这样一来,储物空间就小了.
回复 支持 反对

使用道具 举报

2

收听

24

听众

1951

帖子

E粉明星

注册时间
2010-8-8
精华
0
发表于 2013-6-1 22:30:29 | 显示全部楼层
本帖最后由 竞叫战士 于 2013-6-1 22:32 编辑

你原设计8米的柜体。

我的设计:除了有8米的衣柜,另外还有1.5M的助餐柜体以及2M的书柜。
回复 支持 反对

使用道具 举报

您需要登录后才可以回帖 登录 | 注册

本版积分规则

联系合作|手机版|手机APP|Archiver|

GMT+8, 2025-12-10 16:30 Powered by Discuz! X3.4

安庆E网生活网站 © 2001-2013 Comsenz Inc. ( 皖ICP备05012696号 )

QQ

安庆瑞易文化 地址:华茂1958-C7栋 联系电话:0556-5306667 联系邮箱:17779721@qq.com 互联网违法和不良信息举报电话和邮箱:0556-5306667 17779721@qq.com

皖公网安备 34080002000101号

    
快速回复 返回顶部 返回列表