安庆E网

搜索
查看: 4758|回复: 19

[装修日记] 求设计

[复制链接]

3

收听

1

听众

79

帖子

E粉新星

注册时间
2012-1-4
精华
0
发表于 2013-6-17 14:32:25 | 显示全部楼层 |阅读模式
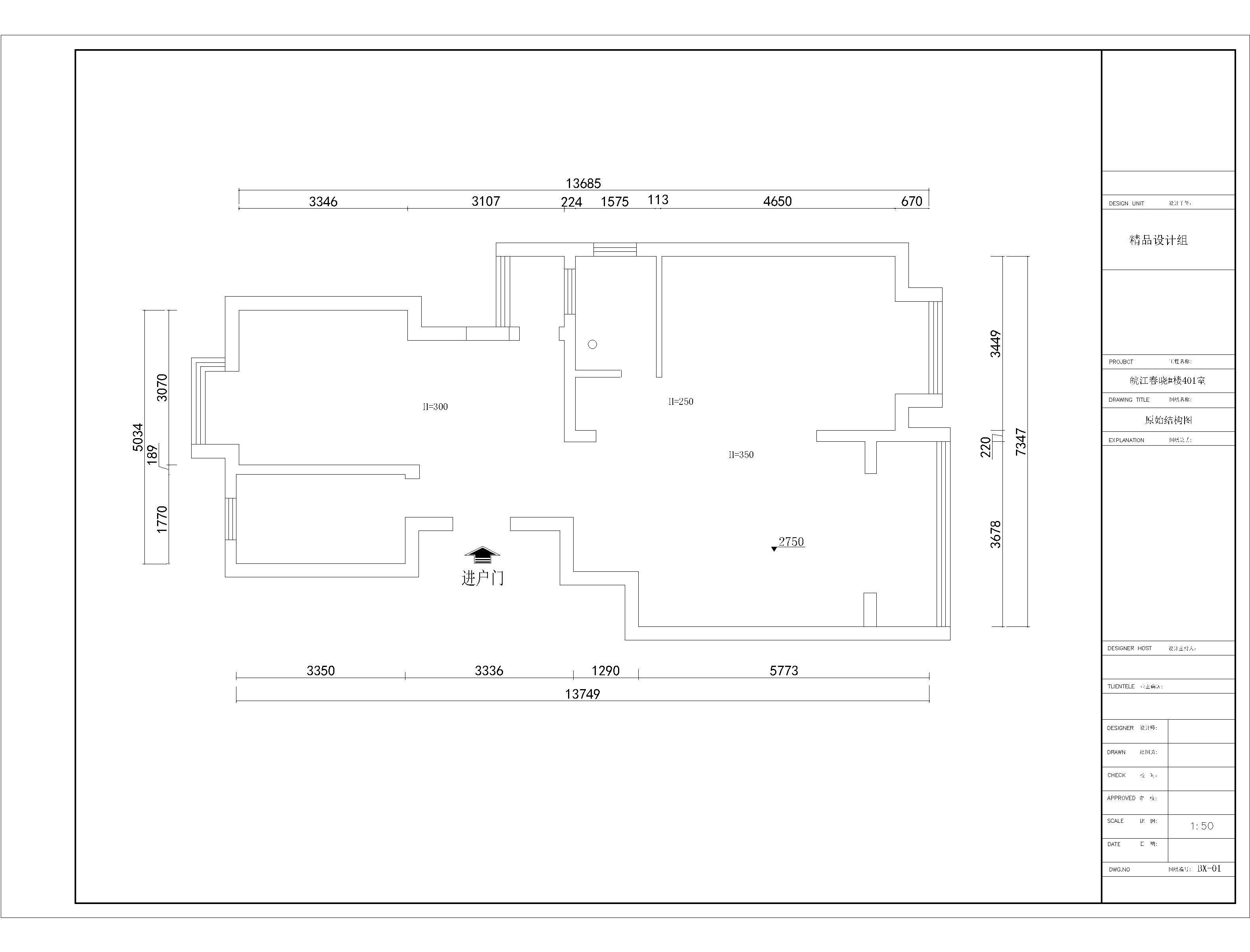
房屋结构图
要求改成2个卫生间 一个外卫 一个内卫 内卫划到卧室去 求好心人 邮箱413598537@qq.com
回复

使用道具 举报

3

收听

1

听众

79

帖子

E粉新星

注册时间
2012-1-4
精华
0
 楼主| 发表于 2013-6-17 14:33:44 | 显示全部楼层
结构图在这里
皖江春晓401宅 (1)-结构.jpg

点评

你愿意楼上的厕所正好在你餐台上方吗?  发表于 2013-6-26 21:00
回复 支持 反对

使用道具 举报

0

收听

5

听众

401

帖子

未认证商家

注册时间
2013-1-9
精华
1
QQ
发表于 2013-6-17 15:26:27 | 显示全部楼层
您好,我是广东星艺装饰集团(安庆分公司)的设计师小周,有装修的需要可以跟我聊系,有装修问题可以咨询我!QQ:1115924565

021615pvr0q8rbfcfcrgug.jpg
设计源于生活,生活是设计出来的!
回复 支持 反对

使用道具 举报

头像被屏蔽

0

收听

1

听众

160

帖子

禁止访问

注册时间
2011-2-16
精华
0
发表于 2013-6-17 22:35:36 | 显示全部楼层
提示: 作者被禁止或删除 内容自动屏蔽
回复 支持 反对

使用道具 举报

头像被屏蔽

0

收听

1

听众

160

帖子

禁止访问

注册时间
2011-2-16
精华
0
发表于 2013-6-17 22:35:52 | 显示全部楼层
提示: 作者被禁止或删除 内容自动屏蔽
回复 支持 反对

使用道具 举报

1

收听

1

听众

447

帖子

未认证商家

注册时间
2013-5-7
精华
0
QQ
发表于 2013-6-18 08:42:26 | 显示全部楼层

你好,楼主,您房子装修这块对于家庭冷暖设计不知道是作何考虑的,我们是安庆专业做舒适家居系统的,专业做家庭供暖和制冷(地暖和中央空调),想进一步了解可以咨询我,小邱:18355606187.QQ:845070282
尚美尚家冷暖工程有限公司
专业做地暖、中央空调、中央净水等等舒适家居系统
业务联系小邱:18355606187
回复 支持 反对

使用道具 举报

头像被屏蔽

0

收听

2

听众

25

帖子

禁止访问

注册时间
2013-5-28
精华
0
发表于 2013-6-18 08:48:19 | 显示全部楼层
提示: 作者被禁止或删除 内容自动屏蔽
签名被屏蔽
回复 支持 反对

使用道具 举报

6

收听

4

听众

921

帖子

认证商家

注册时间
2013-5-23
精华
0
QQ
发表于 2013-6-18 08:59:52 | 显示全部楼层
楼主你好 对于阳台这块不知道您是怎么计划的   皖江春晓2号楼1401就是做我们家的阳台 楼主想去了解 可以联系我  电话5011785  手机 13625672532操龙祥
回复 支持 反对

使用道具 举报

头像被屏蔽

0

收听

2

听众

289

帖子

禁止发言

注册时间
2013-5-15
精华
0
QQ
发表于 2013-6-18 09:08:48 | 显示全部楼层
提示: 作者被禁止或删除 内容自动屏蔽
签名被屏蔽
回复 支持 反对

使用道具 举报

0

收听

3

听众

451

帖子

未认证商家

注册时间
2011-9-20
精华
0
QQ
发表于 2013-6-18 20:07:15 | 显示全部楼层


【惠民装饰工程队】专业承接各种装饰、装修以及维修工程,单包双包皆可;有意向的朋友请致电——13955609468  5350019   张斌     地址:安庆市天宝教师楼105*     诚实守信、价格最优惠,您的满意是我们最大地追求 !
回复 支持 反对

使用道具 举报

0

收听

6

听众

587

帖子

E粉明星

注册时间
2010-9-20
精华
1
QQ
发表于 2013-6-21 17:36:10 | 显示全部楼层
新天地装饰公司免费量房、设计、报价,欢迎来公司咨询了解
勿加广告图,否则封号
回复 支持 反对

使用道具 举报

0

收听

1

听众

285

帖子

E粉新星

注册时间
2011-10-4
精华
1
QQ
发表于 2013-6-24 10:30:58 | 显示全部楼层
檀香世家名门推出特价款,欢迎您的光临
用生活的理念诠释门的艺术
地址:光彩四期D区6栋7号
电话:0556-8733775  13855669703
回复 支持 反对

使用道具 举报

头像被屏蔽

4

收听

1

听众

51

帖子

禁止访问

注册时间
2013-2-28
精华
0
发表于 2013-6-24 22:20:07 | 显示全部楼层
提示: 作者被禁止或删除 内容自动屏蔽
签名被屏蔽
回复 支持 反对

使用道具 举报

头像被屏蔽

0

收听

3

听众

554

帖子

禁止访问

注册时间
2013-6-25
精华
0
发表于 2013-6-25 13:39:18 | 显示全部楼层
提示: 作者被禁止或删除 内容自动屏蔽
签名被屏蔽
回复 支持 反对

使用道具 举报

2

收听

8

听众

3219

帖子

E粉明星

注册时间
2009-10-21
精华
0
QQ
发表于 2013-6-25 17:45:21 | 显示全部楼层
爱家装饰欢迎您的咨询。可以设计,咨询,参观工地
低 调 奢 华,品 味 生 活
爱家装饰地址:吾悦广场B-1801-1802室
爱家装饰电话: 15856537787微信
回复 支持 反对

使用道具 举报

头像被屏蔽

0

收听

1

听众

47

帖子

禁止访问

注册时间
2013-1-28
精华
0
发表于 2013-6-26 17:21:31 | 显示全部楼层
提示: 作者被禁止或删除 内容自动屏蔽
回复 支持 反对

使用道具 举报

2

收听

24

听众

1951

帖子

E粉明星

注册时间
2010-8-8
精华
0
发表于 2013-6-26 20:59:49 | 显示全部楼层
外卫的位置 就在楼下餐台的位置,人品还是要的。
回复 支持 反对

使用道具 举报

0

收听

1

听众

21

帖子

E粉新人

注册时间
2013-6-2
精华
0
QQ
发表于 2013-6-27 08:42:28 | 显示全部楼层
奥森装饰欢迎您的咨询(品质保证,价格满意):18133002077   0556-5521779   qq:631573224
回复 支持 反对

使用道具 举报

头像被屏蔽

0

收听

1

听众

171

帖子

禁止访问

注册时间
2013-2-26
精华
0
发表于 2013-7-18 14:45:26 | 显示全部楼层
提示: 作者被禁止或删除 内容自动屏蔽
签名被屏蔽
回复 支持 反对

使用道具 举报

您需要登录后才可以回帖 登录 | 注册

本版积分规则

联系合作|手机版|手机APP|Archiver|

GMT+8, 2025-12-10 16:11 Powered by Discuz! X3.4

安庆E网生活网站 © 2001-2013 Comsenz Inc. ( 皖ICP备05012696号 )

QQ

安庆瑞易文化 地址:华茂1958-C7栋 联系电话:0556-5306667 联系邮箱:17779721@qq.com 互联网违法和不良信息举报电话和邮箱:0556-5306667 17779721@qq.com

皖公网安备 34080002000101号

    
快速回复 返回顶部 返回列表