安庆E网

搜索
查看: 8602|回复: 42

[装修学堂] 婚房求设计

  [复制链接]

0

收听

2

听众

32

帖子

E粉新星

注册时间
2010-3-8
精华
0
发表于 2013-6-18 11:38:14 | 显示全部楼层 |阅读模式
11.png
06-jpg.jpg
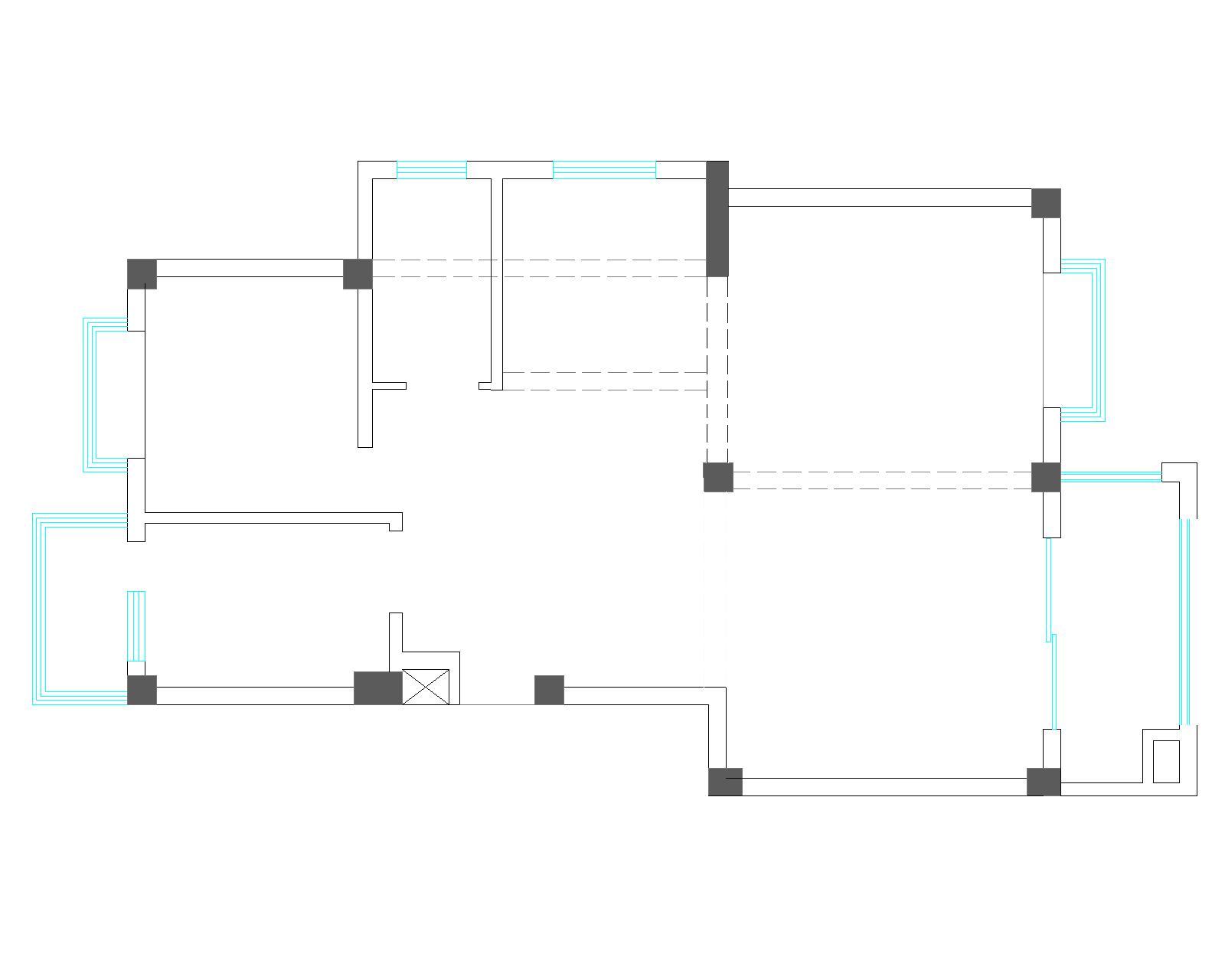
这个图是自己画的,画得不是很好

这个户型卫生间对着大门的~都讲这样风水不好,求大神给点建议啊~

这个整体的格局不是很满意~书房想做个开放式的休闲区~


回复

使用道具 举报

1

收听

4

听众

684

帖子

未认证商家

注册时间
2012-2-12
精华
0
发表于 2013-6-18 11:51:08 | 显示全部楼层
锦致橱柜欢迎您的实地考察!
锦致橱柜,做最适合中国人的厨房
展厅地址:南翔光彩国际家居博览中心一层61号
品鉴热线:8882250
服务热
回复 支持 反对

使用道具 举报

1

收听

3

听众

195

帖子

E粉新星

注册时间
2010-8-26
精华
0
QQ
发表于 2013-6-18 11:51:43 | 显示全部楼层
海棠花园的房子?
住着舒服就行,没有什么风水不风水的。需要设计施工联系我18955604698.QQ348971834
回复 支持 反对

使用道具 举报

头像被屏蔽

0

收听

2

听众

289

帖子

禁止发言

注册时间
2013-5-15
精华
0
QQ
发表于 2013-6-18 12:01:27 | 显示全部楼层
提示: 作者被禁止或删除 内容自动屏蔽
签名被屏蔽
回复 支持 反对

使用道具 举报

0

收听

1

听众

66

帖子

E粉新人

注册时间
2013-4-16
精华
0
发表于 2013-6-18 14:01:10 | 显示全部楼层
业主你好   我们大维装饰公司专业做家装   你们那边的户型图我们都有  业主可否抽个时间来我们公司面谈  我们公司前期免费为你量房  出设计方案


业务联系小曹 :18365113250
回复 支持 反对

使用道具 举报

1

收听

4

听众

605

帖子

未认证商家

注册时间
2010-8-26
精华
0
QQ
发表于 2013-6-18 14:06:11 | 显示全部楼层
您好,安庆千色花装饰欢迎您的咨询!您上传的这个图没有具体的尺寸不好操作。不知道您最近可有时间,我们可以安排设计师去您家实地测量一下,这样更加精确,也可以在现场和您交流一下你的装修想法和需求,然后我们会为您量身出方案和报价。前期都是免费为您服务的,您可以多了解比较一下的![qq]540244659[/qq](可直接点击与我们交流)


联系电话:15856532987(刘)


公司地址:人民路203—207号(谐水湾二期售楼部旁)


公司网址:www.aqqsh.com
标准工程     一就不同
地址:棋盘山路与沿江路交叉口1-2号门面  
电话:5570733
回复 支持 反对

使用道具 举报

2

收听

8

听众

3219

帖子

E粉明星

注册时间
2009-10-21
精华
0
QQ
发表于 2013-6-18 14:37:35 | 显示全部楼层
爱家装饰欢迎您的咨询,可以为您设计,施工。
低 调 奢 华,品 味 生 活
爱家装饰地址:吾悦广场B-1801-1802室
爱家装饰电话: 15856537787微信
回复 支持 反对

使用道具 举报

头像被屏蔽

0

收听

2

听众

45

帖子

禁止访问

注册时间
2013-5-30
精华
0
发表于 2013-6-18 14:42:48 | 显示全部楼层
提示: 作者被禁止或删除 内容自动屏蔽
签名被屏蔽
回复 支持 反对

使用道具 举报

0

收听

1

听众

420

帖子

未认证商家

注册时间
2009-3-9
精华
0
QQ
发表于 2013-6-18 16:11:45 | 显示全部楼层
楼主您好,您家户型我之前设计过是3-3-506户型。公司有专业平面图及作品效果图。弘扬装饰欢迎您来看看。
公司地址:安庆市湖心北路6号香樟里后大门斜对过
联系电话:5225035,13866090429  QQ1826424285
回复 支持 反对

使用道具 举报

0

收听

2

听众

32

帖子

E粉新星

注册时间
2010-3-8
精华
0
 楼主| 发表于 2013-6-18 16:18:39 | 显示全部楼层
锦致橱柜客服1 发表于 2013-6-18 11:51
锦致橱柜欢迎您的实地考察!

橱柜定了新派,你们一家的~呵呵~~
回复 支持 反对

使用道具 举报

1

收听

2

听众

414

帖子

E粉明星

注册时间
2011-2-2
精华
0
发表于 2013-6-18 18:14:25 | 显示全部楼层
金饰窗帘墙纸 发表于 2013-6-18 12:01
楼主好 如需要窗帘墙纸一定要来金饰看看 货比三家不吃亏

欢迎楼主前来体验本店的窗帘墙纸  本店已开通淘 ...

老板最近生意不错啊  呵呵
回复 支持 反对

使用道具 举报

头像被屏蔽

0

收听

2

听众

289

帖子

禁止发言

注册时间
2013-5-15
精华
0
QQ
发表于 2013-6-18 19:05:33 | 显示全部楼层
提示: 作者被禁止或删除 内容自动屏蔽
签名被屏蔽
回复 支持 反对

使用道具 举报

头像被屏蔽

0

收听

1

听众

15

帖子

禁止访问

注册时间
2013-5-25
精华
0
发表于 2013-6-19 10:18:50 | 显示全部楼层
提示: 作者被禁止或删除 内容自动屏蔽
签名被屏蔽
回复 支持 反对

使用道具 举报

3

收听

8

听众

858

帖子

E粉明星

注册时间
2008-12-31
精华
1
QQ
发表于 2013-6-19 10:24:40 | 显示全部楼层
有时间来我们三优实创看下吧。我自己也在装修婚房。希望能给你合理的建议
三优实创装饰带您定位高品质家装生活!
地址:安庆菱湖南路110号奇家居体验馆2F
18715411930
回复 支持 反对

使用道具 举报

6

收听

4

听众

921

帖子

认证商家

注册时间
2013-5-23
精华
0
QQ
发表于 2013-6-19 10:48:25 | 显示全部楼层
  顶顶贴 不知道楼主家的阳台是怎么设计  要是想封阳台露台欢迎来 上海绿娃门窗看看  地址 光彩4期C区7栋西4号 电话 5011785  手机13625672532  操龙祥
回复 支持 反对

使用道具 举报

0

收听

1

听众

420

帖子

未认证商家

注册时间
2009-3-9
精华
0
QQ
发表于 2013-6-19 16:03:46 | 显示全部楼层
弘扬装饰欢迎您的咨询,户型已做过,有时间可以来我们公司看看。
公司地址:安庆市湖心北路6号香樟里后大门斜对过
联系电话:5225035,13866090429  QQ1826424285
回复 支持 反对

使用道具 举报

0

收听

1

听众

79

帖子

E粉新星

注册时间
2010-10-28
精华
0
发表于 2013-6-20 08:14:33 | 显示全部楼层
     星耀装饰6月1日-6月20日开展“缤纷六月,夏不为利”活动,
          1付定金即抵4000元装修款
          2免设计费管理费
          3签单送3000元主材代金卷
          4价值2280元品牌卫浴
          5免费延长质保至3年
      详情咨询:5531817或15655666613 手机联系人:张先生 地址:湖心中路1号二楼
回复 支持 反对

使用道具 举报

3

收听

3

听众

153

帖子

E粉新星

注册时间
2013-4-11
精华
0
QQ
发表于 2013-6-20 08:58:36 | 显示全部楼层
楼主有时间来我们百度家装看看
回复 支持 反对

使用道具 举报

6

收听

4

听众

921

帖子

认证商家

注册时间
2013-5-23
精华
0
QQ
发表于 2013-6-20 12:28:37 | 显示全部楼层
顶顶贴
回复

使用道具 举报

0

收听

3

听众

451

帖子

未认证商家

注册时间
2011-9-20
精华
0
QQ
发表于 2013-6-20 21:32:17 | 显示全部楼层


【惠民装饰工程队】专业承接各种装饰、装修以及维修工程,单包双包皆可;有意向的朋友请致电——13955609468  5350019   张斌     地址:安庆市开发区天宝教师楼105*     诚实守信、价格最优惠,您的满意是我们最大地追求 !
回复 支持 反对

使用道具 举报

9

收听

7

听众

1349

帖子

认证商家

注册时间
2011-11-6
精华
0
发表于 2013-6-20 23:30:41 | 显示全部楼层
进户门对卫生间风水上是不可取,如果书房改为开发式的,门可以朝书房这边开。
展厅地址:光彩国际家居博览中心一层61号
销售热线:8882250
客服热线:8882251
品鉴热线:13905569197   qq:2502490242
做适合中国人的厨房,您的满意是我们最高的荣誉[
回复 支持 反对

使用道具 举报

1

收听

29

听众

5108

帖子

E粉明星

注册时间
2011-6-11
精华
2
QQ
发表于 2013-6-21 08:03:02 | 显示全部楼层
你可以找竞叫战士给你平面布局一下。
公司地址:菱湖南路汽运公司大院内(原汽车二连);联系电话:13855665657;QQ:876338500。
回复 支持 反对

使用道具 举报

头像被屏蔽

0

收听

1

听众

8

帖子

禁止访问

注册时间
2013-5-27
精华
0
发表于 2013-6-21 09:53:41 | 显示全部楼层
提示: 作者被禁止或删除 内容自动屏蔽
回复 支持 反对

使用道具 举报

6

收听

3

听众

2846

帖子

认证商家

注册时间
2008-5-12
精华
1

我的原则是今天的客户,明天的朋友,走自己的路让别人说去吧。

QQ
发表于 2013-6-21 13:20:16 | 显示全部楼层
笨得无可救药 发表于 2013-6-18 16:18
橱柜定了新派,你们一家的~呵呵~~

感谢信任和支持,您的满意是我们最高的荣誉!
美多集成灶地址:南翔光彩博览中心一楼南厅61号  电话:8882250    13905569197
回复 支持 反对

使用道具 举报

0

收听

6

听众

587

帖子

E粉明星

注册时间
2010-9-20
精华
1
QQ
发表于 2013-6-21 17:28:54 | 显示全部楼层
新天地装饰公司免费量房、设计、报价,欢迎来公司咨询了解
勿加广告图,否则封号
回复 支持 反对

使用道具 举报

您需要登录后才可以回帖 登录 | 注册

本版积分规则

联系合作|手机版|手机APP|Archiver|

GMT+8, 2025-12-15 14:49 Powered by Discuz! X3.4

安庆E网生活网站 © 2001-2013 Comsenz Inc. ( 皖ICP备05012696号 )

QQ

安庆瑞易文化 地址:华茂1958-C7栋 联系电话:0556-5306667 联系邮箱:17779721@qq.com 互联网违法和不良信息举报电话和邮箱:0556-5306667 17779721@qq.com

皖公网安备 34080002000101号

    
快速回复 返回顶部 返回列表