安庆E网

搜索
楼主: 文弱书生

[装修日记] 文弱书生的现代简约装修小记——久未更新,这次是普吉尼移门啦

  [复制链接]

0

收听

2

听众

156

帖子

未认证商家

注册时间
2013-5-12
精华
0
发表于 2013-7-11 14:36:45 | 显示全部楼层
祝楼主装修顺利!顶一个!
大匠实木橱柜
电话0556-5218279 13365568735
QQ:414951789
地址:百年家居B5
大匠橱柜 实木专家
回复 支持 反对

使用道具 举报

6

收听

3

听众

2846

帖子

认证商家

注册时间
2008-5-12
精华
1

我的原则是今天的客户,明天的朋友,走自己的路让别人说去吧。

QQ
发表于 2013-7-11 23:17:47 | 显示全部楼层
文弱书生 发表于 2013-7-11 12:14
真的晕了,现在到装潢材料市场就跟女同志到商场大减价一样晕

呵呵,橱柜图纸什么时候出来呀,帮你把把关{:soso_e113:}
美多集成灶地址:南翔光彩博览中心一楼南厅61号  电话:8882250    13905569197
回复 支持 反对

使用道具 举报

0

收听

6

听众

1329

帖子

贵宾E粉

注册时间
2003-2-20
精华
0

国家主席

QQ
 楼主| 发表于 2013-7-12 12:22:59 | 显示全部楼层
新派橱柜 发表于 2013-7-11 23:17
呵呵,橱柜图纸什么时候出来呀,帮你把把关

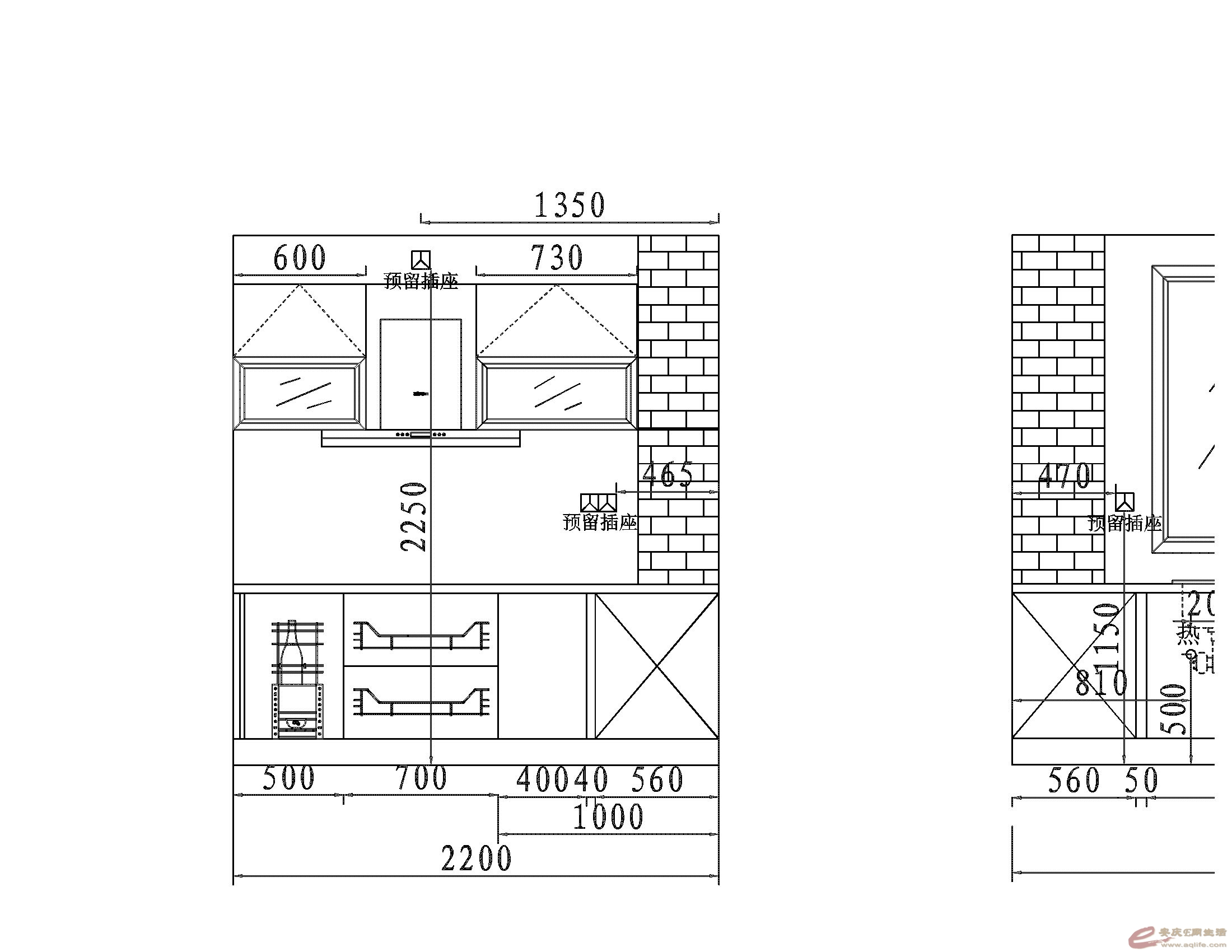
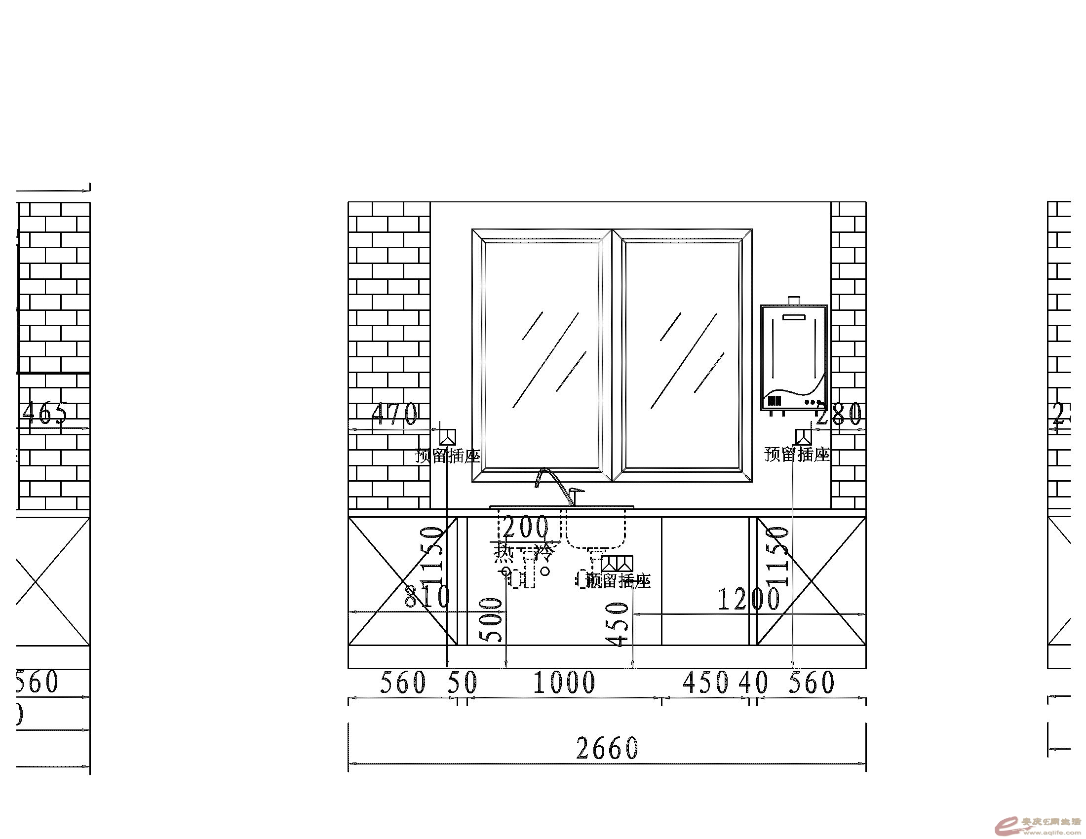
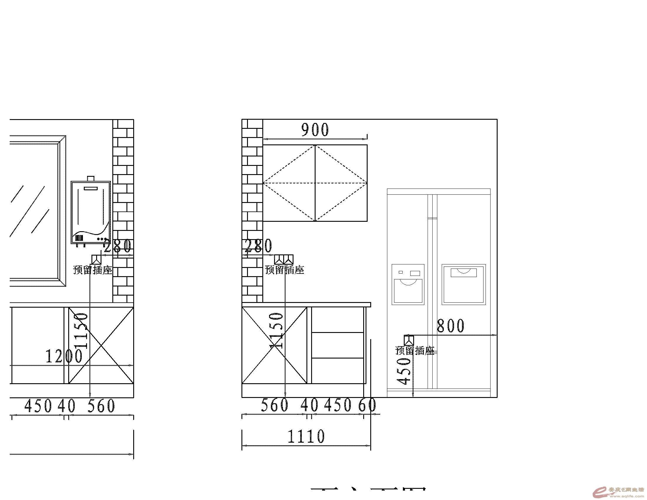
已经出来了啊,帮忙看看哈,谢谢
橱柜立面1.jpg
橱柜立面2.jpg
橱柜立面3.jpg
平面图.jpg
应该利用虚拟网络带来的方便给自己的真实生活提供帮助才是网络存在的真谛!
回复 支持 反对

使用道具 举报

0

收听

2

听众

156

帖子

未认证商家

注册时间
2013-5-12
精华
0
发表于 2013-7-12 15:53:06 | 显示全部楼层
楼主您好!
    按照您的橱柜图纸如果您做一套实木橱柜的话也不过才9580元(地柜4.7米吊柜2.2米)——实木门板 露水河柜体 中迅石英石台面  配进口百隆铰链 海蒂诗滑轨,而且还有精美礼品赠送哦!大匠实木橱柜专卖店活动火热进行中........
      欢迎楼主来选购!
大匠实木橱柜
电话0556-5218279 13365568735
QQ:414951789
地址:百年家居B5
大匠橱柜 实木专家
回复 支持 反对

使用道具 举报

6

收听

3

听众

2846

帖子

认证商家

注册时间
2008-5-12
精华
1

我的原则是今天的客户,明天的朋友,走自己的路让别人说去吧。

QQ
发表于 2013-7-12 21:29:07 | 显示全部楼层
文弱书生 发表于 2013-7-12 12:22
已经出来了啊,帮忙看看哈,谢谢

设计的比较合理,细节处把握的不是很好

QQ截图20130712211239.png 500宽内安装调味拉篮有点浪费空间,建议700改为750或者800,调味拉篮柜门宽度在400左右,吊柜这么设计是利用空间,但不可忽略烟机与吊柜之间缝隙卫生不好搞。


QQ截图20130712211340.png 两边调整条子尺寸不对称,不知你家水槽有多长的尺寸,1米的水槽柜浪费储存空间。




QQ截图20130712211430.png 900的要分450独立柜体。

以上是本人一些小建议,互相探讨,互相学习。







美多集成灶地址:南翔光彩博览中心一楼南厅61号  电话:8882250    13905569197
回复 支持 反对

使用道具 举报

0

收听

2

听众

29

帖子

未认证商家

注册时间
2013-4-25
精华
0
QQ
发表于 2013-7-13 10:46:02 | 显示全部楼层
新派橱柜 发表于 2013-7-12 21:29
设计的比较合理,细节处把握的不是很好

500宽内安装调味拉篮有点浪费空间,建议700改为750或者800,调 ...

非常感谢您提的宝贵建议!
电话:0556-8882318  13855669648 13866635220
  地址:南翔博览中心一楼55号  扬子橱柜
回复 支持 反对

使用道具 举报

0

收听

6

听众

1329

帖子

贵宾E粉

注册时间
2003-2-20
精华
0

国家主席

QQ
 楼主| 发表于 2013-7-13 22:33:50 | 显示全部楼层
新派橱柜 发表于 2013-7-12 21:29
设计的比较合理,细节处把握的不是很好

500宽内安装调味拉篮有点浪费空间,建议700改为750或者800,调 ...

非常感谢您提的宝贵建议
应该利用虚拟网络带来的方便给自己的真实生活提供帮助才是网络存在的真谛!
回复 支持 反对

使用道具 举报

头像被屏蔽

0

收听

10

听众

1769

帖子

禁止访问

注册时间
2005-9-20
精华
1

发表于 2013-7-13 22:46:02 | 显示全部楼层
提示: 作者被禁止或删除 内容自动屏蔽
回复 支持 反对

使用道具 举报

0

收听

6

听众

1329

帖子

贵宾E粉

注册时间
2003-2-20
精华
0

国家主席

QQ
 楼主| 发表于 2013-7-14 22:29:38 | 显示全部楼层
轻烟如梦 发表于 2013-7-13 22:46
双休日都不跑工地啊?今天看你家电工师傅夫妻俩在干活。

昨天还在上班,今天去了哦,我来的时候好像看你带着口罩离开,是你吧?呵呵。今天水电验收,验收时我又增加了几个插座,省得以后想加不能加到处拉插线板
应该利用虚拟网络带来的方便给自己的真实生活提供帮助才是网络存在的真谛!
回复 支持 反对

使用道具 举报

6

收听

3

听众

2846

帖子

认证商家

注册时间
2008-5-12
精华
1

我的原则是今天的客户,明天的朋友,走自己的路让别人说去吧。

QQ
发表于 2013-7-14 23:24:17 | 显示全部楼层
文弱书生 发表于 2013-7-13 22:33
非常感谢您提的宝贵建议

互相探讨学习
美多集成灶地址:南翔光彩博览中心一楼南厅61号  电话:8882250    13905569197
回复 支持 反对

使用道具 举报

0

收听

2

听众

476

帖子

E粉明星

注册时间
2010-3-21
精华
0
发表于 2013-8-19 23:58:05 | 显示全部楼层
同是书生,祝楼主装修顺利!
回复 支持 反对

使用道具 举报

0

收听

2

听众

2877

帖子

未认证商家

注册时间
2010-7-27
精华
0
QQ
发表于 2013-8-25 16:13:19 | 显示全部楼层
祝楼主装修顺利{:soso_e121:}
QQ 27284524 电话 13033191509
地址 安庆西湖绿洲城 影竹圆 1栋5单元401
回复 支持 反对

使用道具 举报

11

收听

6

听众

2246

帖子

认证商家

注册时间
2008-6-9
精华
0
QQ
发表于 2013-8-31 09:47:25 | 显示全部楼层
恭贺楼主。。。
回复

使用道具 举报

2

收听

2

听众

750

帖子

E粉明星

注册时间
2012-12-3
精华
0
发表于 2013-9-10 17:49:52 | 显示全部楼层
文弱书生 发表于 2013-7-14 22:29
昨天还在上班,今天去了哦,我来的时候好像看你带着口罩离开,是你吧?呵呵。今天水电验收,验收时我又增 ...

期待水电上图!!{:soso_e100:}
回复 支持 反对

使用道具 举报

头像被屏蔽

0

收听

10

听众

1769

帖子

禁止访问

注册时间
2005-9-20
精华
1

发表于 2013-9-10 19:48:08 | 显示全部楼层
提示: 作者被禁止或删除 内容自动屏蔽
回复 支持 反对

使用道具 举报

0

收听

6

听众

1329

帖子

贵宾E粉

注册时间
2003-2-20
精华
0

国家主席

QQ
 楼主| 发表于 2013-9-11 19:59:20 | 显示全部楼层
轻烟如梦 发表于 2013-9-10 19:48
楼主偷懒哦,木工瓦工都快结束了还不更新。

唉,我也没法子哦,十几个项目压在肩膀上,老婆单位有要接受卫生系统检查,哪儿有时间去,停工快一周了
应该利用虚拟网络带来的方便给自己的真实生活提供帮助才是网络存在的真谛!
回复 支持 反对

使用道具 举报

0

收听

2

听众

2877

帖子

未认证商家

注册时间
2010-7-27
精华
0
QQ
发表于 2013-9-12 16:55:44 | 显示全部楼层
{:soso_e121:}{:soso_e121:}
QQ 27284524 电话 13033191509
地址 安庆西湖绿洲城 影竹圆 1栋5单元401
回复 支持 反对

使用道具 举报

头像被屏蔽

0

收听

1

听众

149

帖子

禁止发言

注册时间
2013-9-13
精华
0
QQ
发表于 2013-10-1 09:32:46 | 显示全部楼层
提示: 作者被禁止或删除 内容自动屏蔽
签名被屏蔽
回复 支持 反对

使用道具 举报

0

收听

6

听众

1329

帖子

贵宾E粉

注册时间
2003-2-20
精华
0

国家主席

QQ
 楼主| 发表于 2013-10-7 21:16:25 | 显示全部楼层
前段时间确实工作太忙,一周只去一次房子看看进度,很多东西都没定,国庆期间抓紧时间把改定的东西订了:普吉尼的移门(性价比不错),心海加蓝的浴室柜(因为能够订制的品牌只有他了),箭牌的马桶,九牧的花洒,具体质量如何安装后再更新啦,O(∩_∩)O~

厨房推拉门

厨房推拉门

主卧移门

主卧移门




应该利用虚拟网络带来的方便给自己的真实生活提供帮助才是网络存在的真谛!
回复 支持 反对

使用道具 举报

0

收听

2

听众

1348

帖子

E粉明星

注册时间
2008-1-13
精华
0
发表于 2013-10-7 21:26:11 | 显示全部楼层
楼主消失已久,终于回来了
回复 支持 反对

使用道具 举报

头像被屏蔽

0

收听

10

听众

1769

帖子

禁止访问

注册时间
2005-9-20
精华
1

发表于 2013-10-22 23:23:15 | 显示全部楼层
提示: 作者被禁止或删除 内容自动屏蔽
回复 支持 反对

使用道具 举报

0

收听

2

听众

320

帖子

E粉新星

注册时间
2012-4-30
精华
0
QQ
发表于 2013-11-14 12:46:11 | 显示全部楼层
楼主上图太少了
回复 支持 反对

使用道具 举报

0

收听

6

听众

1329

帖子

贵宾E粉

注册时间
2003-2-20
精华
0

国家主席

QQ
 楼主| 发表于 2013-11-14 20:58:11 | 显示全部楼层
马上上哈
应该利用虚拟网络带来的方便给自己的真实生活提供帮助才是网络存在的真谛!
回复

使用道具 举报

0

收听

6

听众

1329

帖子

贵宾E粉

注册时间
2003-2-20
精华
0

国家主席

QQ
 楼主| 发表于 2013-11-14 21:11:38 | 显示全部楼层
本帖最后由 文弱书生 于 2013-11-14 21:25 编辑

10月22日抢购的乐视超级电视S50

10月22日抢购的乐视超级电视S50

网购的乐视超级电视S50,放的是爸爸去哪儿

看上的壁灯

看上的壁灯

看上的配套吊灯

阳台的江南洗衣柜和不知名拖把池

阳台的江南洗衣柜和不知名拖把池

阳台安装了江南洗衣柜和拖把池

箭牌马桶

箭牌马桶

箭牌马桶
应该利用虚拟网络带来的方便给自己的真实生活提供帮助才是网络存在的真谛!
回复 支持 反对

使用道具 举报

0

收听

6

听众

1329

帖子

贵宾E粉

注册时间
2003-2-20
精华
0

国家主席

QQ
 楼主| 发表于 2013-11-14 21:23:07 | 显示全部楼层

扬子橱柜安装好了柜体

扬子橱柜安装好了柜体

扬子橱柜柜体

容声吊顶挺不错的

容声吊顶挺不错的

容声吊顶

扬子橱柜柜体安装结束

扬子橱柜柜体安装结束

扬子橱柜柜体装好了

个人最喜欢的华泰的水晶灯

个人最喜欢的华泰的水晶灯

和爱人都非常满意的华泰水晶灯

华泰的水晶灯

华泰的水晶灯

华泰水晶灯

扬子橱柜和方太油烟机

扬子橱柜和方太油烟机

扬子橱柜和方太油烟机

扬子橱柜台面安装好了

扬子橱柜台面安装好了

扬子橱柜台面

扬子橱柜热水器

扬子橱柜热水器

扬子橱柜台面

客厅的雷士T5灯带和网购的华艺吊灯

客厅的雷士T5灯带和网购的华艺吊灯

网购的华艺水晶灯
应该利用虚拟网络带来的方便给自己的真实生活提供帮助才是网络存在的真谛!
回复 支持 反对

使用道具 举报

您需要登录后才可以回帖 登录 | 注册

本版积分规则

联系合作|手机版|手机APP|Archiver|

GMT+8, 2025-12-10 22:33 Powered by Discuz! X3.4

安庆E网生活网站 © 2001-2013 Comsenz Inc. ( 皖ICP备05012696号 )

QQ

安庆瑞易文化 地址:华茂1958-C7栋 联系电话:0556-5306667 联系邮箱:17779721@qq.com 互联网违法和不良信息举报电话和邮箱:0556-5306667 17779721@qq.com

皖公网安备 34080002000101号

    
快速回复 返回顶部 返回列表