安庆E网

搜索
查看: 34639|回复: 183

[装修日记] 第三次更新

  [复制链接]

1

收听

2

听众

383

帖子

E粉明星

注册时间
2011-9-16
精华
0
发表于 2013-9-22 01:02:00 | 显示全部楼层 |阅读模式
本帖最后由 PSP1234 于 2013-11-23 05:18 编辑

【小区名称】:百花亭佳苑
【楼型】:小高层
【风格】:简约
【户型】:三室两厅一厨一卫一衣帽间
【装修公司】:安庆市宏达装饰公司
【材料负责人】:吴经理
【设计师】:毛毛
【工程监理】:朱经理

序篇:
    楼主自6月1日拿到百花亭新房钥匙后,每天顶着炎炎烈日,奔波与各大装饰公司,约谈、量房、出图、预算。然后就是这样或那样的原因没能顺利签定合同。(在这里对前期接触过的各公司表示深深的歉意,耽误你们宝贵的时间了。)时光荏苒,不知不觉已过三个月。
    一向好脾气的老婆终于发话了:“我和小宝还准备过年搬新房呢。你办事效率也太低了,一天到晚也不知道在折腾啥。”{:soso_e127:}
    老婆同事也正告楼主:“赶紧把钱花出去,装饰公司赚你钱太难了。”




     {:soso_e113:}
回复

使用道具 举报

1

收听

2

听众

383

帖子

E粉明星

注册时间
2011-9-16
精华
0
 楼主| 发表于 2013-9-22 01:02:21 | 显示全部楼层
本帖最后由 PSP1234 于 2013-11-23 05:16 编辑

       免责声明,本日记所有素材均出自网络或亲身经历,请广大网友仔细甑别,慎重选择,本人不承担任何法律责任及连带责任。{:soso_e112:}



电梯:。。。

一、2013.9.8日开工大吉
二、关于装饰公司的选择
三、建筑工程图、平面图布置图及水电改造建议                              
四、电路开关图、吊顶图、电视背景墙、效果图
五、前情提要
六、水电材料及10月2日水电验收
七、地面找平
八、瓷砖、门槛石、飘窗石
九、吊顶

回复 支持 反对

使用道具 举报

1

收听

2

听众

383

帖子

E粉明星

注册时间
2011-9-16
精华
0
 楼主| 发表于 2013-9-22 01:54:47 | 显示全部楼层
本帖最后由 PSP1234 于 2013-10-10 21:23 编辑

开工大吉

      9月8日清晨,约好宏达公司甘总一干人等,在一阵清脆的鞭炮声中,终于新房开工了。
感觉自己如同一只雄心万丈,摇摇晃晃的企鹅,被拥挤着加入了浩浩荡荡的装修大军。

8.jpg









回复 支持 反对

使用道具 举报

1

收听

2

听众

383

帖子

E粉明星

注册时间
2011-9-16
精华
0
 楼主| 发表于 2013-9-22 02:04:50 | 显示全部楼层
本帖最后由 PSP1234 于 2013-10-10 21:24 编辑

本想让家中小子拿个锤子比划下,不曾想他不肯充当我的群众演员,只好贴张他早期闲庭信步的背影了。

旋转 背影.jpg
回复 支持 反对

使用道具 举报

0

收听

7

听众

1049

帖子

E粉明星

注册时间
2005-8-22
精华
1
发表于 2013-9-22 02:32:09 | 显示全部楼层
恭喜楼主开工大吉!
回复 支持 反对

使用道具 举报

1

收听

2

听众

383

帖子

E粉明星

注册时间
2011-9-16
精华
0
 楼主| 发表于 2013-9-22 03:00:52 | 显示全部楼层
本帖最后由 PSP1234 于 2013-10-10 21:27 编辑

关于装饰公司的选择:

我想大多数网友都和楼主一样是初次接触家装,都急于寻找合适的装饰公司而往往忽视了对自身的一个准确定位。
自身定位包括:
1、选择半包还是清包,闲暇时间是否充裕。
2、预算资金是否充足,建材市场是否熟悉。
3、家装知识是否丰富,社交能力的强弱等。
     清晰定位后,楼主认为前期充分的准备工作是必不可少的。只有这样,你才会在后期的诸多选择中作出较准确的判断,才会买到质优价廉的商品,才会看清预算而不至于云里雾里。另一方面装饰公司也分一二三级资质,也分为面对一般消费者和追求品味的高端客户,还分为本地公司和外地公司。个人认为选择适合自己或者性价比高的才是最重要的。
     楼主通过对小区施工现场的考察,基于宏达装饰公司甘总水电出身,施工材料统一由公司采购,并且工程管理实行项目监理制,而非发包等因素的考量。与同学陈总一起选择了宏达装饰公司,并于同一天签订了装修合同。


回复 支持 反对

使用道具 举报

1

收听

2

听众

383

帖子

E粉明星

注册时间
2011-9-16
精华
0
 楼主| 发表于 2013-9-22 03:05:46 | 显示全部楼层
本帖最后由 PSP1234 于 2013-10-10 21:28 编辑
大森林 发表于 2013-9-22 02:32
恭喜楼主开工大吉!


谢谢大森林装友。沙发被你抢到了,第一个回帖真让我感动啊。象我们白天心力憔悴搞装修,夜晚绞尽脑汁写日记,伤不起啊。。。{:soso_e109:}

回复 支持 反对

使用道具 举报

1

收听

2

听众

383

帖子

E粉明星

注册时间
2011-9-16
精华
0
 楼主| 发表于 2013-9-22 03:25:42 | 显示全部楼层
本帖最后由 PSP1234 于 2013-10-10 21:35 编辑

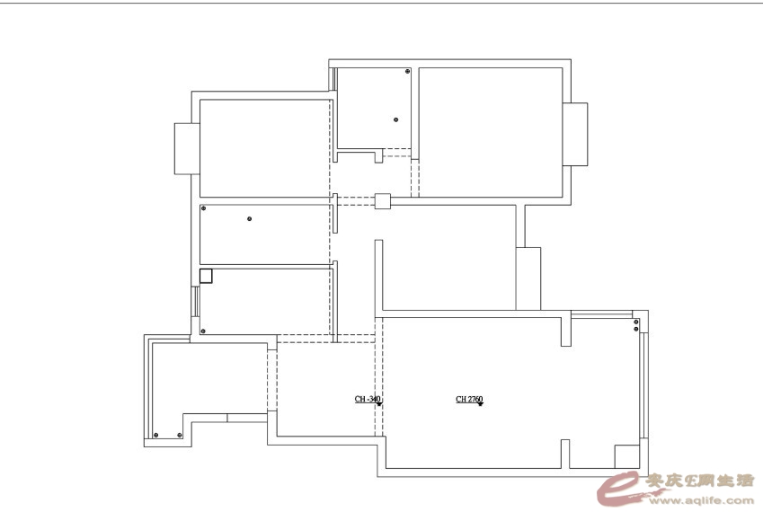
建筑工程图、平面图
建筑工程图.jpg
工程图1.jpg

工程图2.jpg

第一张图是03户型的原始工程图,大家需要了解剪力墙的位置及长宽。以便为日后新房内部改造提供参考,不过具体还是以现场勘测为准。
第二张图是初始框架图,方便了解楼层净空及横梁位置。
第三张图是楼主家平面布置图
布局图每人生活习惯各不相同,反正适合自己的就是最好的。分享下我的布局构思和想法,欢迎拍砖:

1、地板的选择
     客、餐厅及过道由于老房子是瓷砖,而且老婆怕冷,这次想换个环境。所以铺设强化地板。三个房铺实木地板,虽然实木地板难于打理及维护。但是实木地板环保性能较优越,所以选用。衣帽间用了600*600的瓷砖,既可以让狭小的空间光线充足,也节省实木地板的开支。

2、入户花园移门的处理
     入户花园和餐厅间断桥铝双层玻璃移门,LZ家选择保留,理由是入户花园最北面的玻璃是单层,而双层玻璃移门能起到隔热保温的作用。阴雨天,在入户花园换鞋再进入客餐厅,不会污染到餐厅的强化地板。并且入户花园作为一个不错的休闲区域,破坏了也挺可惜。若取消移门或前移,夏天72空调带动近40平米的空间有些吃力。其次客、餐厅比例失调。
凡事均有利弊,取消移门的优点是光线充足,通透性好,也免去了进第二道门的繁琐,如何选择看个人喜好吧。

3、狭长过道的处理。
过道2.jpg 过道1.jpg

1)、敲掉主卧室的入户门墙体,次卧正对卫生间的入户门洞封上,记得加上钢丝网。在靠次卧室剪力墙位置重新开门。从而使次卧门正对飘窗,通风性能优越,同时也避开了正对卫生间的尴尬。
2)、楼主家次卫门洞宽780mm,包套后更显狭小。LZ准备两边修去几公分,方便进出,增加通风和采光。
3)、今天请教了千川木门师傅,一般标准门洞尺寸宽880mm-900mm,高2100mm,有些较标准的门洞免去了装钉木门基础的工序。看来提前沟通还是有必要的。
4)、采纳毛设计师建议,过道设置低瓦数声控夜灯,否则半夜起来会让过道灯闪的睡意全无。

关于阳台:
1、阳台走单冷水管,理由正如我供电局同学说的那样,水路走的越少,风险越小。其次当天气很冷的时候你会选择室内洗衣物而很少用到阳台的热水,所以楼主在南阳台只敷设了单冷水管。

2、阳台靠西面和大家一样打些落地储物柜:要注意的是3点:
1)贯穿客厅柜机的墙壁管道口径,一般是75mm。
2)考虑储物柜的防晒和防潮,建议选用晶钢门或三聚氰胺板。
3)储物柜下面要用水泥做个基础,避免木质柜体受潮。

3、阳台洗衣池和拖把池的放置,楼主家洗衣池紧靠东头剪力墙位置,具体看平面布置图。理由是免去了另外砌墙,稳固性优良,冷水管不易冻坏。陈总笑称,奥哥,没有哪家像你这样放的,你不按套路出牌啊!

4、洗衣池下水需接阳台110主排水管道,直接接地漏会有返水的风险。拖把池水管路线,宏达的丁工做的不错。从阳台两个管道中间穿出,我觉得设计的很合理。

关于厨房:
1、4平方电线接入,建议多留插座,原因是厨房电器最多。燃气热水器安置必须要请商家过来定位。一般要分清冷热水管位置,之间的间距是22厘米,一级能效热水器要定位好燃气进气管和冷凝水排水管。燃气PVC管径一般45--50,上下管口与墙体成45度夹角。冷凝水管径25mm左右,插座位置居于旁边包好的管道和燃气热水器间。
2、油烟机插座在集成吊顶的下方,一般是距离地面220CM,并且在油烟机排气管正背后,从而隐藏烟机的电线。
3、插座位置一般留在橱柜石英石上方30CM,宜同一水平并不宜集中,适当分开。
4、厨房一般使用燃气热水器居多,CO一般是无色无味,建议安装燃气报警器,由于CO气体比较轻,建议安置集成吊顶附近。
5、厨房瓷砖的选择,墙面建议选择亮光瓷片,缝隙小,价格低,易于打理。地面建议选择亚光砖或釉面砖 ,但是要考虑防滑和防油污。

关于卫生间:
1、由于楼主卫生间居于过道中间位置,出于对光线的考虑。墙砖和地砖均采用800*800全抛釉瓷砖切割、打磨V字缝后拼贴。
2、干区地面要略高于湿区地面,利于排水,浴霸开关面板建议放置干区,若各位装友已安置于湿区,防溅盒必不可少。
3、水电定位时,厨房,卫生间商品商家最好都能到场。很多东西还是当面交接清楚比较好。
4、卫生间防水完成后,及时做48小时闭水试验。地面瓷砖铺好后,及时做排水实验。渗水或排水不畅的,督促装修公司及时整改。
5、湿区两个地漏相距很近并共用排水管,楼主建议封闭一个。封闭时做好地漏与PVC管口处的防水,切不可掉以轻心。
地漏下方排水管已有存水弯,所以楼主没有选用防臭芯的。推荐九牧304不锈钢地漏及洗衣机专用地漏。










回复 支持 反对

使用道具 举报

头像被屏蔽

0

收听

10

听众

1769

帖子

禁止访问

注册时间
2005-9-20
精华
1

发表于 2013-9-22 08:34:59 | 显示全部楼层
提示: 作者被禁止或删除 内容自动屏蔽
回复 支持 反对

使用道具 举报

6

收听

7

听众

660

帖子

未认证商家

注册时间
2012-9-16
精华
1
QQ
发表于 2013-9-22 09:09:00 | 显示全部楼层
百度家装恭祝楼主开工大吉,装修愉快!
小应 18055654578  5670195
QQ:1123106629
私家定制,打造绿色温馨环保家园!
[/c
回复 支持 反对

使用道具 举报

0

收听

2

听众

1348

帖子

E粉明星

注册时间
2008-1-13
精华
0
发表于 2013-9-22 09:16:18 www.aqlife.com | 显示全部楼层
恭喜楼主~开工大吉
回复 支持 反对

使用道具 举报

1

收听

4

听众

684

帖子

未认证商家

注册时间
2012-2-12
精华
0
发表于 2013-9-22 09:50:57 | 显示全部楼层
装修一切顺利!
锦致橱柜,做最适合中国人的厨房
展厅地址:南翔光彩国际家居博览中心一层61号
品鉴热线:8882250
服务热
回复 支持 反对

使用道具 举报

1

收听

2

听众

383

帖子

E粉明星

注册时间
2011-9-16
精华
0
 楼主| 发表于 2013-9-22 10:00:30 | 显示全部楼层
轻烟如梦 发表于 2013-9-22 08:34
恭喜楼主装修一切顺利!

谢谢。刚开始啊,长路漫漫。。。
回复 支持 反对

使用道具 举报

1

收听

2

听众

383

帖子

E粉明星

注册时间
2011-9-16
精华
0
 楼主| 发表于 2013-9-22 10:01:05 | 显示全部楼层
艺术生活家 发表于 2013-9-22 09:09
百度家装恭祝楼主开工大吉,装修愉快!

谢谢。抱歉没有去你家看看。下次有机会再合作。
回复 支持 反对

使用道具 举报

1

收听

2

听众

383

帖子

E粉明星

注册时间
2011-9-16
精华
0
 楼主| 发表于 2013-9-22 10:01:34 | 显示全部楼层
乔乔 发表于 2013-9-22 09:16
恭喜楼主~开工大吉

谢谢乔妹。。。{:soso_e112:}
回复 支持 反对

使用道具 举报

1

收听

2

听众

383

帖子

E粉明星

注册时间
2011-9-16
精华
0
 楼主| 发表于 2013-9-22 10:02:39 | 显示全部楼层

谢谢支持!
回复 支持 反对

使用道具 举报

头像被屏蔽

1

收听

10

听众

1798

帖子

禁止访问

注册时间
2011-11-1
精华
1
发表于 2013-9-22 10:04:05 | 显示全部楼层
提示: 作者被禁止或删除 内容自动屏蔽
回复

使用道具 举报

头像被屏蔽

1

收听

2

听众

13

帖子

禁止访问

注册时间
2012-12-27
精华
0
发表于 2013-9-22 10:07:57 | 显示全部楼层
提示: 作者被禁止或删除 内容自动屏蔽
回复 支持 反对

使用道具 举报

1

收听

2

听众

383

帖子

E粉明星

注册时间
2011-9-16
精华
0
 楼主| 发表于 2013-9-22 10:10:21 | 显示全部楼层

哇。日记大神来顶贴了。谢谢。。
回复 支持 反对

使用道具 举报

1

收听

2

听众

383

帖子

E粉明星

注册时间
2011-9-16
精华
0
 楼主| 发表于 2013-9-22 10:10:43 | 显示全部楼层
奥田橱柜 发表于 2013-9-22 10:07
奥田环保灶恭祝您开工大吉

谢谢。。。。
回复 支持 反对

使用道具 举报

3

收听

71

听众

1万

帖子

超级版主

注册时间
2004-12-8
精华
287

情多累美人

公益义工

QQ
发表于 2013-9-22 10:58:40 | 显示全部楼层
恭喜有一篇网友百花亭的装修日记。祝装修顺利

曾因酒醉鞭名马,生怕情多累美人……℡易随飞ooO…………18955600753
回复 支持 反对

使用道具 举报

头像被屏蔽

0

收听

1

听众

149

帖子

禁止发言

注册时间
2013-9-13
精华
0
QQ
发表于 2013-9-22 11:02:01 | 显示全部楼层
提示: 作者被禁止或删除 内容自动屏蔽
签名被屏蔽
回复 支持 反对

使用道具 举报

6

收听

7

听众

660

帖子

未认证商家

注册时间
2012-9-16
精华
1
QQ
发表于 2013-9-22 13:41:26 | 显示全部楼层
PSP1234 发表于 2013-9-22 10:01
谢谢。抱歉没有去你家看看。下次有机会再合作。

{:soso_e113:}好的。
小应 18055654578  5670195
QQ:1123106629
私家定制,打造绿色温馨环保家园!
[/c
回复 支持 反对

使用道具 举报

1

收听

2

听众

383

帖子

E粉明星

注册时间
2011-9-16
精华
0
 楼主| 发表于 2013-9-22 14:02:28 | 显示全部楼层
易随飞 发表于 2013-9-22 10:58
恭喜有一篇网友百花亭的装修日记。祝装修顺利

谢谢帅哥E版主。。。{:soso_e112:}
回复 支持 反对

使用道具 举报

1

收听

2

听众

383

帖子

E粉明星

注册时间
2011-9-16
精华
0
 楼主| 发表于 2013-9-22 14:04:26 | 显示全部楼层

{:soso_e179:}谢谢支持。。。。。
回复 支持 反对

使用道具 举报

您需要登录后才可以回帖 登录 | 注册

本版积分规则

联系合作|手机版|手机APP|Archiver|

GMT+8, 2025-12-10 17:51 Powered by Discuz! X3.4

安庆E网生活网站 © 2001-2013 Comsenz Inc. ( 皖ICP备05012696号 )

QQ

安庆瑞易文化 地址:华茂1958-C7栋 联系电话:0556-5306667 联系邮箱:17779721@qq.com 互联网违法和不良信息举报电话和邮箱:0556-5306667 17779721@qq.com

皖公网安备 34080002000101号

    
快速回复 返回顶部 返回列表