安庆E网

搜索
查看: 3642|回复: 10

[设计交流] 平面布置图,大家看看还有什么高招?

[复制链接]
头像被屏蔽

0

收听

1

听众

56

帖子

禁止访问

注册时间
2013-6-1
精华
0
发表于 2013-9-26 10:47:03 | 显示全部楼层 |阅读模式
提示: 作者被禁止或删除 内容自动屏蔽
回复

使用道具 举报

头像被屏蔽

0

收听

1

听众

56

帖子

禁止访问

注册时间
2013-6-1
精华
0
 楼主| 发表于 2013-9-26 11:25:00 | 显示全部楼层
提示: 作者被禁止或删除 内容自动屏蔽
回复 支持 反对

使用道具 举报

5

收听

8

听众

534

帖子

未认证商家

注册时间
2012-9-16
精华
0
QQ
发表于 2013-9-26 15:30:55 | 显示全部楼层
百度家装欢迎您的咨询!
北京百度家装安庆分公司
地址:安庆市湖心北路19号
咨询热线: 15855657537
QQ:361470412
回复 支持 反对

使用道具 举报

头像被屏蔽

0

收听

1

听众

42

帖子

禁止访问

注册时间
2013-7-9
精华
0
发表于 2013-9-26 16:03:44 | 显示全部楼层
提示: 作者被禁止或删除 内容自动屏蔽
回复 支持 反对

使用道具 举报

1

收听

1

听众

447

帖子

未认证商家

注册时间
2013-5-7
精华
0
QQ
发表于 2013-9-26 16:42:12 | 显示全部楼层
楼主可以找几家比较比较,楼主装修不知可考虑地暖和中央空调,咨询了解可以联系我:18355606187
尚美尚家冷暖工程有限公司
专业做地暖、中央空调、中央净水等等舒适家居系统
业务联系小邱:18355606187
回复 支持 反对

使用道具 举报

头像被屏蔽

0

收听

1

听众

56

帖子

禁止访问

注册时间
2013-6-1
精华
0
 楼主| 发表于 2013-9-26 18:22:28 | 显示全部楼层
提示: 作者被禁止或删除 内容自动屏蔽
回复 支持 反对

使用道具 举报

头像被屏蔽

4

收听

3

听众

427

帖子

禁止发言

注册时间
2012-6-4
精华
0
QQ
发表于 2013-9-26 21:26:30 | 显示全部楼层
提示: 作者被禁止或删除 内容自动屏蔽
签名被屏蔽
回复 支持 反对

使用道具 举报

2

收听

24

听众

1951

帖子

E粉明星

注册时间
2010-8-8
精华
0
发表于 2013-9-26 21:29:42 | 显示全部楼层
本帖最后由 竞叫战士 于 2013-9-26 21:33 编辑

未标题-1.jpg
回复 支持 反对

使用道具 举报

2

收听

24

听众

1951

帖子

E粉明星

注册时间
2010-8-8
精华
0
发表于 2013-9-26 21:54:47 | 显示全部楼层
本帖最后由 竞叫战士 于 2013-9-26 22:09 编辑

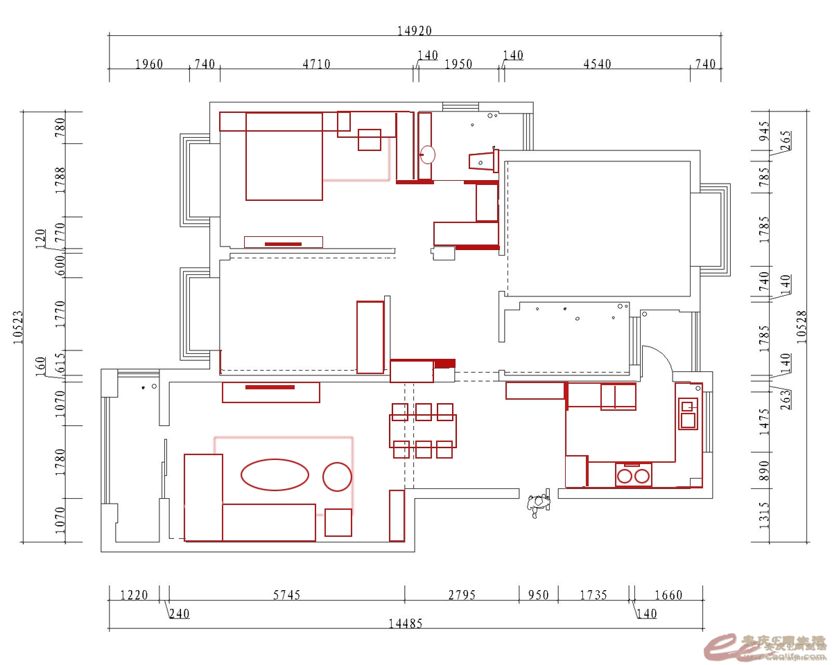
1、助餐柜做成矮柜背后的墙体可以用半通透材料,想实用就用中部镂空的通顶高餐边柜,餐边柜的背后可以在安置通顶的多功能柜体。(柱体用与助餐柜体同种材质)
2、餐厅上方的梁用平顶遮掩。若觉得较矮,在顶部使用方的 磨边的镜片(0.4X0.4的镜片贴16片)
3、入户门右侧是60X80通顶鞋柜,中部敞开放包 放钥匙……上面是衣柜
4、大冰箱旁边是通顶的柜体可以放许多厨房用品。
5、孩子如果小 就买一架钢琴放在客厅的右下角,家人若好一点红酒的,也可以在那里设置吧台  提升品位。
6、建议用1.6X0.8的大餐台。
7、家里的厨房用品 越用越多   这部分收纳比衣柜还要重要。


房型很好  很好用
还有什么疑问 请提出 我尽力答复你。
祝你好运 早日装修乔迁!


回复 支持 反对

使用道具 举报

头像被屏蔽

0

收听

1

听众

56

帖子

禁止访问

注册时间
2013-6-1
精华
0
 楼主| 发表于 2013-9-27 09:09:23 | 显示全部楼层
提示: 作者被禁止或删除 内容自动屏蔽
回复 支持 反对

使用道具 举报

头像被屏蔽

0

收听

1

听众

149

帖子

禁止发言

注册时间
2013-9-13
精华
0
QQ
发表于 2013-9-27 09:49:41 | 显示全部楼层
提示: 作者被禁止或删除 内容自动屏蔽
签名被屏蔽
回复 支持 反对

使用道具 举报

您需要登录后才可以回帖 登录 | 注册

本版积分规则

联系合作|手机版|手机APP|Archiver|

GMT+8, 2025-12-18 09:37 Powered by Discuz! X3.4

安庆E网生活网站 © 2001-2013 Comsenz Inc. ( 皖ICP备05012696号 )

QQ

安庆瑞易文化 地址:华茂1958-C7栋 联系电话:0556-5306667 联系邮箱:17779721@qq.com 互联网违法和不良信息举报电话和邮箱:0556-5306667 17779721@qq.com

皖公网安备 34080002000101号

    
快速回复 返回顶部 返回列表