安庆E网

搜索
楼主: 秀丫

[装修日记] 我的地盘我做主——(*^_棒棒糖_^*)的温馨小屋毕业啦!(一路走来,感谢亲们)

  [复制链接]

1

收听

11

听众

1872

帖子

E粉明星

注册时间
2007-7-19
精华
0
 楼主| 发表于 2014-2-17 11:07:44 | 显示全部楼层
51bb 发表于 2014-2-17 10:29
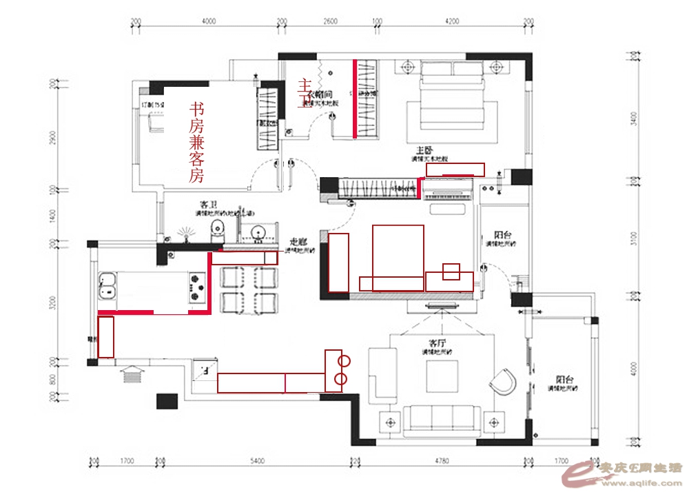
图纸中的书房是朝南的吧?入若朝南,建议和北面的小卧室互换。

谢谢你的建议,书房是朝南,主要是考虑晒衣服在书房的小阳台,怕走来走去影响孩子的学习,而且我听说卫生间对着房门不太好,所以把小孩卧室放在北边的房间。
阵阵春风吹过大地,大地变绿了;吹过大树,树叶轻轻摇动,好像在跳舞;吹过小河,河水在欢腾地歌唱。
回复 支持 反对

使用道具 举报

1

收听

11

听众

1872

帖子

E粉明星

注册时间
2007-7-19
精华
0
 楼主| 发表于 2014-2-17 14:25:45 | 显示全部楼层
本帖最后由 秀丫 于 2014-2-17 14:37 编辑

效果图(我家王设计师和宏达毛毛设计师的共同作品)
西湖三期01_副本.jpg
西湖三期02_副本.jpg
西湖三期03_副本.jpg
西湖三期04_副本.jpg
西湖三期05_副本.jpg
西湖三期06_副本.jpg

阵阵春风吹过大地,大地变绿了;吹过大树,树叶轻轻摇动,好像在跳舞;吹过小河,河水在欢腾地歌唱。
回复 支持 1 反对 0

使用道具 举报

0

收听

1

听众

56

帖子

E粉新人

注册时间
2012-12-15
精华
0
发表于 2014-2-17 15:05:53 | 显示全部楼层
现代派   效果图不错
回复 支持 反对

使用道具 举报

0

收听

5

听众

841

帖子

未认证商家

注册时间
2011-10-14
精华
0
QQ
发表于 2014-2-17 15:14:29 | 显示全部楼层
西湖绿洲城离我们店很近的 看移门的话到我家来看看哈  祝装修顺利
更多有品位的家庭选择雷拓
一店:南翔博览中心二楼 8882133
二店:百年家居一期 5848688[/
回复 支持 反对

使用道具 举报

1

收听

11

听众

1872

帖子

E粉明星

注册时间
2007-7-19
精华
0
 楼主| 发表于 2014-2-17 16:19:01 | 显示全部楼层
本帖最后由 秀丫 于 2014-2-24 08:37 编辑
2013.11.10日,我们的新家开工啦!甘总、毛毛和家人一共六人见证了新房的开工仪式,六六六,顺顺顺!8.18分,鞭炮响起来了!
IMG_4282_副本.jpg
甜甜的糕,红红的苹果,寓意着我们的日子红红火火,步步高升!
IMG_4287_副本.jpg
老公敲开了具有历史意义的第一锤
IMG_4293_副本.jpg

阵阵春风吹过大地,大地变绿了;吹过大树,树叶轻轻摇动,好像在跳舞;吹过小河,河水在欢腾地歌唱。
回复 支持 反对

使用道具 举报

1

收听

11

听众

1872

帖子

E粉明星

注册时间
2007-7-19
精华
0
 楼主| 发表于 2014-2-17 16:58:51 | 显示全部楼层
  简单的开工仪式后,毛毛把装饰施工栏贴在了大门背后,甘总亲自用工具把房子的墙面边边拐拐都认真的敲了一遍,查找空鼓现象,并画出记号让我们找物业维修,让他们及时整改。据我所知,许多业主根本就不知道空鼓这一问题,包括我自己也是个小小白,细节决定品质,能看得出甘总是个做事很认真,比较务实的人。希望这种能处处为客户着想的理念能一直延续下去哟!
IMG_4305_副本.jpg

阵阵春风吹过大地,大地变绿了;吹过大树,树叶轻轻摇动,好像在跳舞;吹过小河,河水在欢腾地歌唱。
回复 支持 反对

使用道具 举报

0

收听

1

听众

133

帖子

E粉新星

注册时间
2010-3-14
精华
0
发表于 2014-2-17 17:01:28 | 显示全部楼层
王总拿的这个小小锤好卡哇伊啊
所谓美女三分长相七分打扮;
   所谓气质三分才气七分装蒜;
      所谓温柔三分忍让七分压抑。
回复 支持 反对

使用道具 举报

1

收听

11

听众

1872

帖子

E粉明星

注册时间
2007-7-19
精华
0
 楼主| 发表于 2014-2-17 17:12:54 | 显示全部楼层
berwin 发表于 2014-2-17 17:01
王总拿的这个小小锤好卡哇伊啊

锤子太小,胚子太大!
阵阵春风吹过大地,大地变绿了;吹过大树,树叶轻轻摇动,好像在跳舞;吹过小河,河水在欢腾地歌唱。
回复 支持 反对

使用道具 举报

9

收听

7

听众

1349

帖子

认证商家

注册时间
2011-11-6
精华
0
发表于 2014-2-17 19:44:45 | 显示全部楼层
秀丫 发表于 2014-2-16 09:38
谢谢锦致橱柜的汪总,也祝你马年生意红红火火!

谢谢你的祝福。知道我姓汪,那我们一定很熟,有时间来店里坐坐。
展厅地址:光彩国际家居博览中心一层61号
销售热线:8882250
客服热线:8882251
品鉴热线:13905569197   qq:2502490242
做适合中国人的厨房,您的满意是我们最高的荣誉[
回复 支持 反对

使用道具 举报

1

收听

11

听众

1872

帖子

E粉明星

注册时间
2007-7-19
精华
0
 楼主| 发表于 2014-2-18 10:49:02 | 显示全部楼层
德国雷拓滑门 发表于 2014-2-17 15:14
西湖绿洲城离我们店很近的 看移门的话到我家来看看哈  祝装修顺利

确实挺近的,有空去坐坐。
阵阵春风吹过大地,大地变绿了;吹过大树,树叶轻轻摇动,好像在跳舞;吹过小河,河水在欢腾地歌唱。
回复 支持 反对

使用道具 举报

1

收听

11

听众

1872

帖子

E粉明星

注册时间
2007-7-19
精华
0
 楼主| 发表于 2014-2-18 11:51:00 | 显示全部楼层
本帖最后由 秀丫 于 2014-2-18 14:29 编辑

房子毛坯图(图上的字写的太丑了,涂鸦笔真不太好写,亲们请忽略丑字哦)
IMG_20131027_153908_副本_副本_副本.jpg IMG_20131027_153917_副本_副本.jpg IMG_20131027_153925_副本_副本.jpg IMG_20131027_153942_副本_副本_副本.jpg
IMG_20131027_153954_副本_副本.jpg



阵阵春风吹过大地,大地变绿了;吹过大树,树叶轻轻摇动,好像在跳舞;吹过小河,河水在欢腾地歌唱。
回复 支持 反对

使用道具 举报

2

收听

24

听众

1951

帖子

E粉明星

注册时间
2010-8-8
精华
0
发表于 2014-2-18 13:08:56 | 显示全部楼层
未标题-1.jpg
回复 支持 反对

使用道具 举报

0

收听

1

听众

133

帖子

E粉新星

注册时间
2010-3-14
精华
0
发表于 2014-2-18 13:38:47 | 显示全部楼层
秀丫 发表于 2014-2-17 17:12
锤子太小,胚子太大!

看来过年又没亏着自己
所谓美女三分长相七分打扮;
   所谓气质三分才气七分装蒜;
      所谓温柔三分忍让七分压抑。
回复 支持 反对

使用道具 举报

1

收听

11

听众

1872

帖子

E粉明星

注册时间
2007-7-19
精华
0
 楼主| 发表于 2014-2-18 14:15:56 | 显示全部楼层
本帖最后由 秀丫 于 2014-2-19 09:17 编辑


入户花园改一半做厨房?这样空间的确大一些,谢谢你这么用心,我家的水电都已走好,所以都按原来的方案进行下去哦,欢迎有空来指导!
阵阵春风吹过大地,大地变绿了;吹过大树,树叶轻轻摇动,好像在跳舞;吹过小河,河水在欢腾地歌唱。
回复 支持 反对

使用道具 举报

1

收听

11

听众

1872

帖子

E粉明星

注册时间
2007-7-19
精华
0
 楼主| 发表于 2014-2-18 14:16:52 | 显示全部楼层
berwin 发表于 2014-2-18 13:38
看来过年又没亏着自己

他一直都善待自己!
阵阵春风吹过大地,大地变绿了;吹过大树,树叶轻轻摇动,好像在跳舞;吹过小河,河水在欢腾地歌唱。
回复 支持 反对

使用道具 举报

18

收听

2

听众

30

帖子

E粉新人

注册时间
2014-2-16
精华
0
QQ
发表于 2014-2-18 14:26:20 | 显示全部楼层
长兴家居饰品生活馆 恭喜楼主乔迁之喜!我们期待您的新房装修后带来的喜悦分享哦!
美家热线:8729698
新房装修完 后期软装:装饰画、工艺品、家居用品一站购齐!
旗舰店:菱湖南路295号御景国际一楼
回复 支持 反对

使用道具 举报

1

收听

11

听众

1872

帖子

E粉明星

注册时间
2007-7-19
精华
0
 楼主| 发表于 2014-2-18 14:41:31 | 显示全部楼层
继续上房子原型,希望数月后大把大把的钞票为它添砖加瓦后,能达到我预期的效果,在这里拜托各位啦!
IMG_20131027_154004_副本_副本.jpg IMG_20131027_154011_副本_副本.jpg IMG_20131027_154020_副本_副本.jpg IMG_20131027_154031_副本_副本.jpg IMG_20131027_154037_副本_副本.jpg IMG_20131027_154137_副本_副本.jpg
阵阵春风吹过大地,大地变绿了;吹过大树,树叶轻轻摇动,好像在跳舞;吹过小河,河水在欢腾地歌唱。
回复 支持 反对

使用道具 举报

18

收听

2

听众

30

帖子

E粉新人

注册时间
2014-2-16
精华
0
QQ
发表于 2014-2-18 15:02:04 | 显示全部楼层
长兴家居饰品生活馆 恭喜楼主乔迁之喜!我们期待您的新房装修后带来的喜悦分享哦!
美家热线:8729698  qq2991176046(空间有产品图片)
新房装修完 后期软装:装饰画、工艺品、家居用品一站购齐!
旗舰店:菱湖南路295号御景国际一楼
回复 支持 反对

使用道具 举报

1

收听

11

听众

1872

帖子

E粉明星

注册时间
2007-7-19
精华
0
 楼主| 发表于 2014-2-18 15:38:13 | 显示全部楼层
长兴软装馆 发表于 2014-2-18 15:02
长兴家居饰品生活馆 恭喜楼主乔迁之喜!我们期待您的新房装修后带来的喜悦分享哦!美家热线:8729698  qq: ...

房子的软装的确也很重要,有空去看看,给我优惠哈!
阵阵春风吹过大地,大地变绿了;吹过大树,树叶轻轻摇动,好像在跳舞;吹过小河,河水在欢腾地歌唱。
回复 支持 反对

使用道具 举报

2

收听

2

听众

661

帖子

E粉明星

注册时间
2005-8-18
精华
2

轻舞飞扬

发表于 2014-2-19 09:37:50 | 显示全部楼层
效果图非常好,期待MM早日如愿以偿!
回复 支持 反对

使用道具 举报

1

收听

11

听众

1872

帖子

E粉明星

注册时间
2007-7-19
精华
0
 楼主| 发表于 2014-2-19 10:13:58 | 显示全部楼层
本帖最后由 秀丫 于 2014-2-19 10:20 编辑

开工第二天,开始砸墙,上图!
厨房的半边墙(在这里说明一下,一开始的方案是搞开放式厨房,主要是考虑到厨房面积太小,而且靠餐厅的拐弯处做一个L型的卡座,视觉上感觉开阔些,可是跑了好多地方,找不到做卡座所需的软包商家,即使做,也达不到预期的效果,所以只有放弃。{小小的窃喜:本来我就对开放式厨房有异议,这下又合了我意,开心!}但是墙体已砸掉,老公找了毛毛和小杨商量,就用水泥砌十公分的墙体,上面安装玻璃,想想效果应该也还不错!温馨提示一下后面的童鞋们一定要对装修的每一个方案都深思熟虑,多沟通,多了解。
IMG_20131116_163150_副本_副本.jpg
主卧的飘窗
复件 IMG_4312_副本_副本.jpg
次卧的飘窗
IMG_20131116_163058_副本_副本.jpg
客卫的墙体
IMG_20131116_163051_副本_副本.jpg
阵阵春风吹过大地,大地变绿了;吹过大树,树叶轻轻摇动,好像在跳舞;吹过小河,河水在欢腾地歌唱。
回复 支持 反对

使用道具 举报

1

收听

11

听众

1872

帖子

E粉明星

注册时间
2007-7-19
精华
0
 楼主| 发表于 2014-2-19 10:22:53 | 显示全部楼层
匆匆匆过客 发表于 2014-2-19 09:37
效果图非常好,期待MM早日如愿以偿!

谢谢来捧场,有空来串门哈!
阵阵春风吹过大地,大地变绿了;吹过大树,树叶轻轻摇动,好像在跳舞;吹过小河,河水在欢腾地歌唱。
回复 支持 反对

使用道具 举报

头像被屏蔽

0

收听

1

听众

19

帖子

禁止访问

注册时间
2013-9-3
精华
0
发表于 2014-2-19 13:35:12 | 显示全部楼层
提示: 作者被禁止或删除 内容自动屏蔽
回复 支持 反对

使用道具 举报

1

收听

11

听众

1872

帖子

E粉明星

注册时间
2007-7-19
精华
0
 楼主| 发表于 2014-2-19 13:38:03 | 显示全部楼层
锦致橱柜 发表于 2014-2-17 19:44
谢谢你的祝福。知道我姓汪,那我们一定很熟,有时间来店里坐坐。

呵呵,知道,錦致和新派都是你代理滴吧。
阵阵春风吹过大地,大地变绿了;吹过大树,树叶轻轻摇动,好像在跳舞;吹过小河,河水在欢腾地歌唱。
回复 支持 反对

使用道具 举报

1

收听

11

听众

1872

帖子

E粉明星

注册时间
2007-7-19
精华
0
 楼主| 发表于 2014-2-19 13:45:30 | 显示全部楼层
小亦 发表于 2014-2-19 13:35
恭喜楼主啊 楼主需要个性手绘墙吗,咨询电话15855651151

谢谢,如果需要个性手绘墙,会联系你。
阵阵春风吹过大地,大地变绿了;吹过大树,树叶轻轻摇动,好像在跳舞;吹过小河,河水在欢腾地歌唱。
回复 支持 反对

使用道具 举报

您需要登录后才可以回帖 登录 | 注册

本版积分规则

联系合作|手机版|手机APP|Archiver|

GMT+8, 2025-12-11 15:38 Powered by Discuz! X3.4

安庆E网生活网站 © 2001-2013 Comsenz Inc. ( 皖ICP备05012696号 )

QQ

安庆瑞易文化 地址:华茂1958-C7栋 联系电话:0556-5306667 联系邮箱:17779721@qq.com 互联网违法和不良信息举报电话和邮箱:0556-5306667 17779721@qq.com

皖公网安备 34080002000101号

    
快速回复 返回顶部 返回列表