安庆E网

搜索
查看: 8507|回复: 37

[设计交流] 大家来帮我看看这个户型怎么样,到时该怎么设计装修

  [复制链接]

0

收听

0

听众

3

帖子

E粉新人

注册时间
2014-3-15
精华
0
发表于 2014-3-15 14:17:22 | 显示全部楼层 |阅读模式
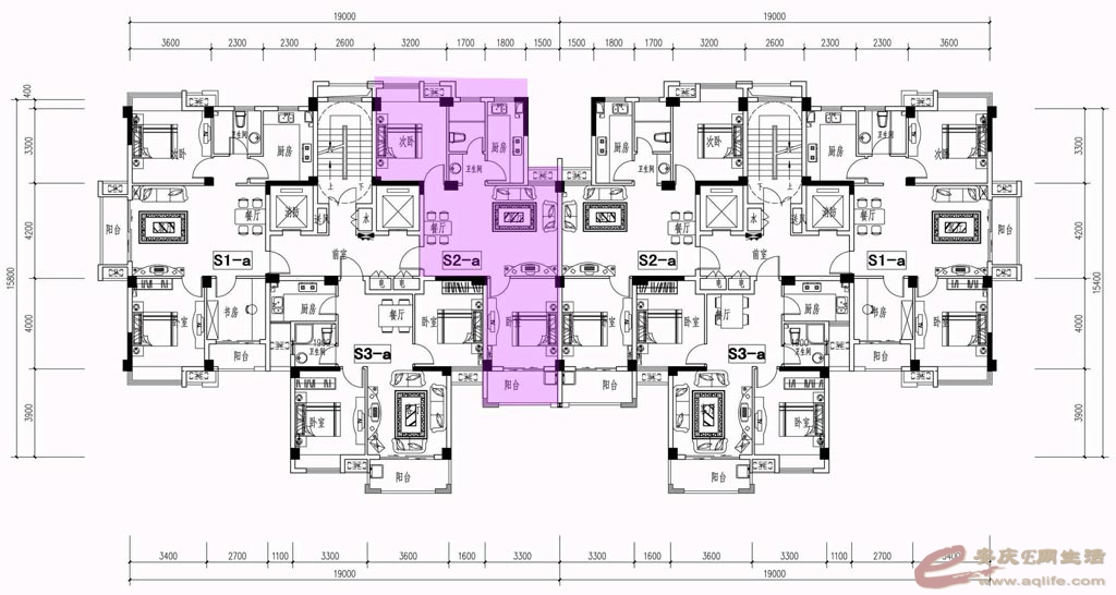
大家来帮我看看这个户型怎么样,到时该怎么设计装修{:soso_e112:}
B1#楼S户型平立剖面图.jpg
回复

使用道具 举报

0

收听

0

听众

3

帖子

E粉新人

注册时间
2014-3-15
精华
0
 楼主| 发表于 2014-3-15 14:18:49 | 显示全部楼层
这个户型算不算南北通透呀
回复 支持 反对

使用道具 举报

头像被屏蔽

0

收听

3

听众

349

帖子

禁止访问

注册时间
2011-6-28
精华
0
QQ
发表于 2014-3-15 15:40:35 | 显示全部楼层
提示: 作者被禁止或删除 内容自动屏蔽
回复 支持 反对

使用道具 举报

头像被屏蔽

4

收听

3

听众

427

帖子

禁止发言

注册时间
2012-6-4
精华
0
QQ
发表于 2014-3-15 15:48:25 | 显示全部楼层
提示: 作者被禁止或删除 内容自动屏蔽
签名被屏蔽
回复 支持 反对

使用道具 举报

头像被屏蔽

0

收听

3

听众

349

帖子

禁止访问

注册时间
2011-6-28
精华
0
QQ
发表于 2014-3-15 15:52:42 | 显示全部楼层
提示: 作者被禁止或删除 内容自动屏蔽
回复 支持 反对

使用道具 举报

0

收听

6

听众

587

帖子

E粉明星

注册时间
2010-9-20
精华
1
QQ
发表于 2014-3-15 16:44:05 | 显示全部楼层
你好,楼主,多看几家装修公司,集思广益,总是不会错的,有空到我们新天地看看,设计我们总设计师有30多年的经验,施工我们公司是国家二级资质公司,软件,硬件都还不错。欢迎你有空来我们新天地次次!
勿加广告图,否则封号
回复 支持 反对

使用道具 举报

13

收听

8

听众

352

帖子

未认证商家

注册时间
2012-9-17
精华
0
QQ
发表于 2014-3-15 17:15:39 | 显示全部楼层
楼主,您好!有时间可以来我们公司看看,公司在做优惠活动
百度家装欢迎您的咨询!
地址:安庆市迎江区宜城路御景国际4#3层,皖源国际对面
咨询电话18755628012
回复 支持 反对

使用道具 举报

2

收听

8

听众

3219

帖子

E粉明星

注册时间
2009-10-21
精华
0
QQ
发表于 2014-3-15 17:20:46 | 显示全部楼层
爱家装饰也来报个名 {:soso_e100:}
低 调 奢 华,品 味 生 活
爱家装饰地址:吾悦广场B-1801-1802室
爱家装饰电话: 15856537787微信
回复 支持 反对

使用道具 举报

11

收听

6

听众

2246

帖子

认证商家

注册时间
2008-6-9
精华
0
QQ
发表于 2014-3-15 17:26:53 | 显示全部楼层
本帖最后由 安庆面对面装饰 于 2014-3-15 17:41 编辑

楼主好,先回答您的问题:【您的户型不算南北通透,户型还好,不过客厅采光要差些!】南京面对面装饰&安庆分公司来报个道,值此3·15来临之际,公司正在进行大型的优惠活动,顺便透露部分:基础优惠(免费验房、量房、出几套方案供您选择)+来就有礼+优惠打折礼+免费抽奖礼+送主材券+···,您来了就知道有多实惠!你可以加下我的QQ:2773830838[qq]2773830838[/qq]
服务热线:13966990744
公司地址:安庆市开发区中兴大道14号(晶海花园对面,市内乘3 7 26路舒巷商城站下,向南100米)
“面对面”,期待与您面对面!





回复 支持 1 反对 0

使用道具 举报

头像被屏蔽

0

收听

3

听众

554

帖子

禁止访问

注册时间
2013-6-25
精华
0
发表于 2014-3-15 17:53:49 | 显示全部楼层
提示: 作者被禁止或删除 内容自动屏蔽
签名被屏蔽
回复 支持 反对

使用道具 举报

0

收听

5

听众

1574

帖子

未认证商家

注册时间
2007-5-31
精华
0
发表于 2014-3-16 08:30:56 | 显示全部楼层
这种户型算不上南北通透。建筑房屋户型设计不是很好。装饰设计要动点脑筋。
装修格言:踏踏实实做人 认认真真做事
联系人:   胡广峰   电话: 13063275823    5191201    QQ:534679318
回复 支持 反对

使用道具 举报

0

收听

2

听众

2011

帖子

E粉明星

注册时间
2005-9-1
精华
1
发表于 2014-3-16 09:30:01 | 显示全部楼层
小户型里面应该算是不错的~通风跟客厅采光略差`
不过好在蛮完整~没有什么多余的浪费面积~
回复 支持 反对

使用道具 举报

1

收听

4

听众

605

帖子

未认证商家

注册时间
2010-8-26
精华
0
QQ
发表于 2014-3-16 09:38:53 | 显示全部楼层
您好,安庆千色花装饰欢迎您的咨询。我们前期可以先去您房子现场看一下,实地交流沟通一下,然后根据您的实际装修需求为您出设计方案。前期免费服务,您可以多了解比较一下![qq]540244659[/qq](可直接点击与我们交流)


联系电话:15856532987(刘)
网址:www.aqqshzs.com
标准工程     一就不同
地址:棋盘山路与沿江路交叉口1-2号门面  
电话:5570733
回复 支持 反对

使用道具 举报

0

收听

4

听众

127

帖子

未认证商家

注册时间
2013-8-15
精华
0
QQ
发表于 2014-3-16 10:05:01 | 显示全部楼层
安庆嘉豪装饰欢迎您的咨询
咨询电话:18175339189
回复 支持 反对

使用道具 举报

头像被屏蔽

0

收听

1

听众

132

帖子

禁止访问

注册时间
2013-7-21
精华
0
QQ
发表于 2014-3-16 11:49:01 | 显示全部楼层
提示: 作者被禁止或删除 内容自动屏蔽
回复 支持 反对

使用道具 举报

0

收听

9

听众

742

帖子

未认证商家

注册时间
2010-5-19
精华
0
发表于 2014-3-16 14:04:43 | 显示全部楼层
户型不错,宏达装饰欢迎您有空来公司坐坐。
公司地址:新河路与文苑路交汇处新河湾商业A#
电话:0556-5197333  
监督电话:13955683080
回复 支持 反对

使用道具 举报

0

收听

2

听众

102

帖子

未认证商家

注册时间
2012-4-4
精华
0
QQ
发表于 2014-3-16 16:03:49 | 显示全部楼层
从图纸看S2-a户型设计的不是很好,不通透,是南北通风,房屋60%部分采光略差,建议楼主设计时以暖色系为主
冬天北面能不能晒到太阳呢?
蒙娜丽莎卫浴—品味艺术人生
旗舰店:安庆市光彩大市场四期D区8栋2号
Call:0556-5363922  QQ:434482655
回复 支持 反对

使用道具 举报

0

收听

5

听众

841

帖子

未认证商家

注册时间
2011-10-14
精华
0
QQ
发表于 2014-3-16 20:41:08 | 显示全部楼层
客厅没有阳台 光线估计不是太好
更多有品位的家庭选择雷拓
一店:南翔博览中心二楼 8882133
二店:百年家居一期 5848688[/
回复 支持 反对

使用道具 举报

1

收听

1

听众

447

帖子

未认证商家

注册时间
2013-5-7
精华
0
QQ
发表于 2014-3-18 15:24:01 | 显示全部楼层
楼主可以几家比较比较
尚美尚家冷暖工程有限公司
专业做地暖、中央空调、中央净水等等舒适家居系统
业务联系小邱:18355606187
回复 支持 反对

使用道具 举报

头像被屏蔽

0

收听

1

听众

47

帖子

禁止访问

注册时间
2013-1-28
精华
0
发表于 2014-3-18 21:18:44 | 显示全部楼层
提示: 作者被禁止或删除 内容自动屏蔽
回复 支持 反对

使用道具 举报

头像被屏蔽

0

收听

2

听众

48

帖子

禁止访问

注册时间
2014-2-18
精华
0
发表于 2014-3-20 09:09:07 | 显示全部楼层
提示: 作者被禁止或删除 内容自动屏蔽
签名被屏蔽
回复 支持 反对

使用道具 举报

头像被屏蔽

0

收听

2

听众

48

帖子

禁止访问

注册时间
2014-2-18
精华
0
发表于 2014-3-20 09:12:28 | 显示全部楼层
提示: 作者被禁止或删除 内容自动屏蔽
签名被屏蔽
回复 支持 反对

使用道具 举报

6

收听

3

听众

2846

帖子

认证商家

注册时间
2008-5-12
精华
1

我的原则是今天的客户,明天的朋友,走自己的路让别人说去吧。

QQ
发表于 2014-3-20 10:20:27 | 显示全部楼层
祝楼主早日找到适合自己的装饰公司
美多集成灶地址:南翔光彩博览中心一楼南厅61号  电话:8882250    13905569197
回复 支持 反对

使用道具 举报

0

收听

5

听众

401

帖子

未认证商家

注册时间
2013-1-9
精华
1
QQ
发表于 2014-3-20 16:29:59 | 显示全部楼层
您好,我是广东星艺装饰集团(安庆分公司)的设计师小周,有装修的需要可以跟我聊系,有装修问题可以咨询我!QQ:1115924565
设计源于生活,生活是设计出来的!
回复 支持 反对

使用道具 举报

1

收听

0

听众

3

帖子

E粉新人

注册时间
2014-3-13
精华
0
发表于 2014-3-23 09:53:51 | 显示全部楼层
您好!有时间可以来我们皖鑫装饰看看。
地址:安庆市西湖绿洲城双峰阁门面C8号
回复 支持 反对

使用道具 举报

您需要登录后才可以回帖 登录 | 注册

本版积分规则

联系合作|手机版|手机APP|Archiver|

GMT+8, 2025-12-11 04:59 Powered by Discuz! X3.4

安庆E网生活网站 © 2001-2013 Comsenz Inc. ( 皖ICP备05012696号 )

QQ

安庆瑞易文化 地址:华茂1958-C7栋 联系电话:0556-5306667 联系邮箱:17779721@qq.com 互联网违法和不良信息举报电话和邮箱:0556-5306667 17779721@qq.com

皖公网安备 34080002000101号

    
快速回复 返回顶部 返回列表