安庆E网

搜索
楼主: 黑色曙光

[装修日记] 【绿地】环保舒适小家装修工程即将结束(林氏木业沙发到货)

  [复制链接]
头像被屏蔽

0

收听

1

听众

15

帖子

禁止访问

注册时间
2007-10-4
精华
0
发表于 2014-6-29 23:10:13 | 显示全部楼层
提示: 作者被禁止或删除 内容自动屏蔽
回复 支持 反对

使用道具 举报

9

收听

7

听众

1349

帖子

认证商家

注册时间
2011-11-6
精华
0
发表于 2014-6-29 23:41:02 | 显示全部楼层
恭喜恭喜,祝开工大吉大利!
展厅地址:光彩国际家居博览中心一层61号
销售热线:8882250
客服热线:8882251
品鉴热线:13905569197   qq:2502490242
做适合中国人的厨房,您的满意是我们最高的荣誉[
回复 支持 反对

使用道具 举报

40

收听

5

听众

105

帖子

未认证商家

注册时间
2014-6-10
精华
0
发表于 2014-6-30 11:47:32 | 显示全部楼层
预祝楼主装修圆满成功,早日搬进新家!
回复 支持 反对

使用道具 举报

头像被屏蔽

0

收听

2

听众

317

帖子

禁止访问

注册时间
2007-7-26
精华
0
发表于 2014-6-30 22:06:49 | 显示全部楼层
提示: 作者被禁止或删除 内容自动屏蔽
回复 支持 反对

使用道具 举报

0

收听

5

听众

439

帖子

E粉明星

注册时间
2014-3-17
精华
0
 楼主| 发表于 2014-6-30 22:07:59 | 显示全部楼层
kidjian 发表于 2014-6-29 23:10
楼主加油呀,我们紧跟其后!

朋友也是邻居吗?{:soso_e113:}祝大家装修都顺利~
欢迎访问绿地小家装修日记

http://www.aqlife.com/forum.php?mod=viewthread&tid=1841949&extra=page%3D
回复 支持 反对

使用道具 举报

0

收听

5

听众

439

帖子

E粉明星

注册时间
2014-3-17
精华
0
 楼主| 发表于 2014-6-30 22:08:42 | 显示全部楼层
锦致橱柜 发表于 2014-6-29 23:41
恭喜恭喜,祝开工大吉大利!

多谢多谢,汪总安排的效率很高,确实服务不一般。

欢迎访问绿地小家装修日记

http://www.aqlife.com/forum.php?mod=viewthread&tid=1841949&extra=page%3D
回复 支持 反对

使用道具 举报

0

收听

5

听众

439

帖子

E粉明星

注册时间
2014-3-17
精华
0
 楼主| 发表于 2014-6-30 22:08:59 | 显示全部楼层
zxdn15556608977 发表于 2014-6-30 11:47
预祝楼主装修圆满成功,早日搬进新家!

多谢,祝生意兴隆啊
欢迎访问绿地小家装修日记

http://www.aqlife.com/forum.php?mod=viewthread&tid=1841949&extra=page%3D
回复 支持 反对

使用道具 举报

0

收听

5

听众

439

帖子

E粉明星

注册时间
2014-3-17
精华
0
 楼主| 发表于 2014-6-30 22:09:22 | 显示全部楼层

有难度说明有挑战,这样搞出来更有成就感啊
欢迎访问绿地小家装修日记

http://www.aqlife.com/forum.php?mod=viewthread&tid=1841949&extra=page%3D
回复 支持 反对

使用道具 举报

0

收听

5

听众

439

帖子

E粉明星

注册时间
2014-3-17
精华
0
 楼主| 发表于 2014-6-30 22:20:30 | 显示全部楼层
为了保证装修工程的顺利进行,楼主在忙碌一上午后急忙联系绿地物业,协商一致后,楼主电话通知了飞龙周经理带上相关材料一起到物业公司办手续。周经理接到电话很意外,因为临近中午下班时间,担心物业公司无法办理手续,楼主告知已沟通好可以立即办手续,请他尽快赶到绿地和我会和。(因楼主下午工作比较多,所以只能抽在中午休息时间办理)
十五分钟后,楼主刚到绿地门口就已接到周经理的电话,说已经到了物业管理处门口,这个效率让楼主汗颜啊。
物业工作人员服务态度很好,审查一系列证件和图纸后,楼主和周经理把该签字的东西全部签字,物业正式发放《装修   书》(名字一时忘记了{:soso_e127:}),全部手续办完已经接近12点50分了,再次为周经理和物业公司工作人员的敬业工作态度点赞!
欢迎访问绿地小家装修日记

http://www.aqlife.com/forum.php?mod=viewthread&tid=1841949&extra=page%3D
回复 支持 反对

使用道具 举报

0

收听

5

听众

439

帖子

E粉明星

注册时间
2014-3-17
精华
0
 楼主| 发表于 2014-6-30 22:25:57 | 显示全部楼层
本帖最后由 黑色曙光 于 2014-7-2 19:57 编辑

谈谈新派橱柜的服务
      楼主27号收房,28号提前约了新派老板汪总(现在主要做锦致橱柜,大老板啊,一人代理多个品牌)现场测量。
      29号楼主开工了,装修公司效率很高,现场就把水电大部分定位做好了,这就牵涉到了厨房的水电定位问题,楼主本来想着还早呢,这下又急了,赶快找到汪总说明了情况,汪总二话不说就答应了下来,果然,30号一早设计师就给楼主打电话说图纸做好了,楼主看过后觉得挺满意,交夫人审核后,同样表示满意,一个比较麻烦的问题就此解决,为锦致新派橱柜点个赞哦。

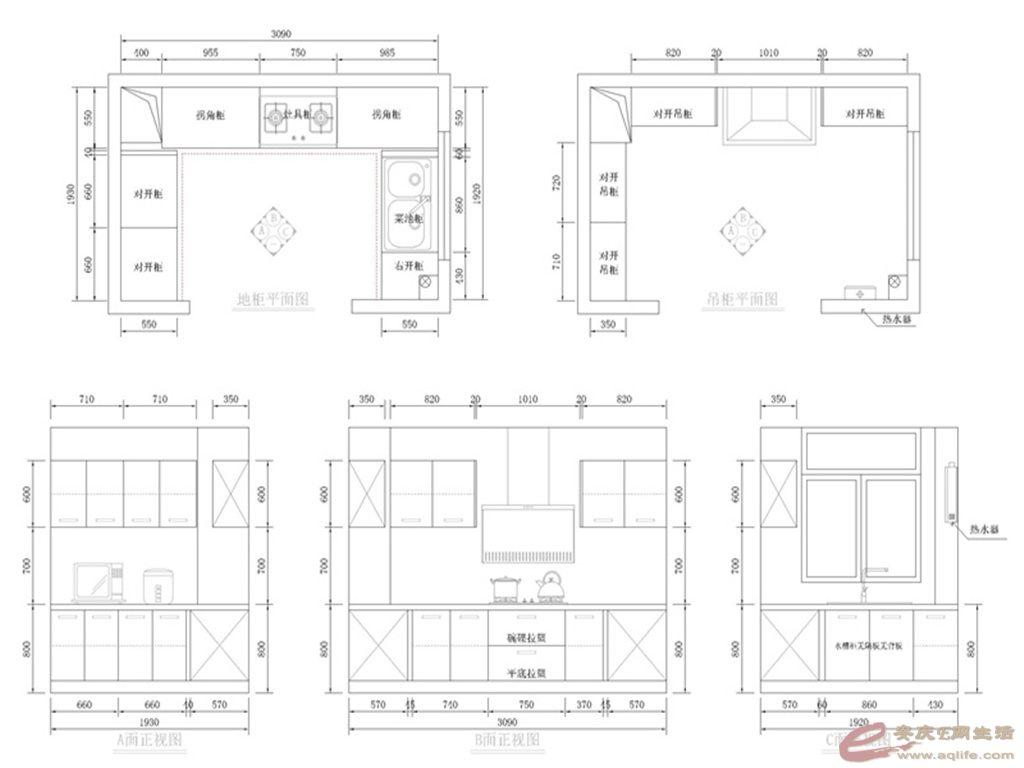
想上个平面图请大家点评指导一下的,不知道为什么一直不成功……

大家说合理吗?

大家说合理吗?
欢迎访问绿地小家装修日记

http://www.aqlife.com/forum.php?mod=viewthread&tid=1841949&extra=page%3D
回复 支持 反对

使用道具 举报

0

收听

5

听众

841

帖子

未认证商家

注册时间
2011-10-14
精华
0
QQ
发表于 2014-6-30 23:13:57 | 显示全部楼层
您家搞的好快哈  雷拓滑门小施祝装修顺利
更多有品位的家庭选择雷拓
一店:南翔博览中心二楼 8882133
二店:百年家居一期 5848688[/
回复 支持 反对

使用道具 举报

0

收听

2

听众

952

帖子

认证商家

注册时间
2007-7-14
精华
0

容声集成吊顶“晒历程 得666元现金返现”大型感恩全面启动

QQ
发表于 2014-7-1 15:01:36 | 显示全部楼层
容声集成吊顶恭祝楼主开工大吉!有时间来我们店面坐坐.
一店:光彩国际家居博览中心一楼 48-49 电话:0556-8882558
二店:康熙河百年家居C区5号  电话:0556-5218
回复 支持 反对

使用道具 举报

头像被屏蔽

0

收听

4

听众

342

帖子

禁止访问

注册时间
2013-12-16
精华
0
发表于 2014-7-1 15:42:38 | 显示全部楼层
提示: 作者被禁止或删除 内容自动屏蔽
回复 支持 反对

使用道具 举报

头像被屏蔽

0

收听

1

听众

13

帖子

禁止访问

注册时间
2014-7-2
精华
0
发表于 2014-7-2 09:54:44 | 显示全部楼层
提示: 作者被禁止或删除 内容自动屏蔽
回复 支持 反对

使用道具 举报

5

收听

2

听众

483

帖子

E粉新星

注册时间
2013-10-31
精华
0
发表于 2014-7-2 19:02:28 | 显示全部楼层
新贴顶一个。我家年底拿房,正在学习中,密切关注楼主的步骤。另:飞龙装饰联系方式?半包价格?包哪些辅材?可站内短信。
回复 支持 反对

使用道具 举报

0

收听

5

听众

439

帖子

E粉明星

注册时间
2014-3-17
精华
0
 楼主| 发表于 2014-7-2 19:36:48 | 显示全部楼层
德国雷拓滑门 发表于 2014-6-30 23:13
您家搞的好快哈  雷拓滑门小施祝装修顺利

多谢支持哦,祝生意兴隆{:soso_e179:}
欢迎访问绿地小家装修日记

http://www.aqlife.com/forum.php?mod=viewthread&tid=1841949&extra=page%3D
回复 支持 反对

使用道具 举报

0

收听

5

听众

439

帖子

E粉明星

注册时间
2014-3-17
精华
0
 楼主| 发表于 2014-7-2 19:37:16 | 显示全部楼层
容声集成吊顶 发表于 2014-7-1 15:01
容声集成吊顶恭祝楼主开工大吉!有时间来我们店面坐坐.

多谢支持哈。
欢迎访问绿地小家装修日记

http://www.aqlife.com/forum.php?mod=viewthread&tid=1841949&extra=page%3D
回复 支持 反对

使用道具 举报

0

收听

5

听众

439

帖子

E粉明星

注册时间
2014-3-17
精华
0
 楼主| 发表于 2014-7-2 19:38:38 | 显示全部楼层
zhxh1210 发表于 2014-7-1 15:42
恭喜楼主顺利开工

绿地的邻居你好啊~~~祝你装修顺利~
欢迎访问绿地小家装修日记

http://www.aqlife.com/forum.php?mod=viewthread&tid=1841949&extra=page%3D
回复 支持 反对

使用道具 举报

0

收听

5

听众

439

帖子

E粉明星

注册时间
2014-3-17
精华
0
 楼主| 发表于 2014-7-2 19:39:17 | 显示全部楼层
ヤ佑寳._____ 发表于 2014-7-2 09:54
恭喜恭喜哦,邻居,猜猜我是谁

一猜就知道{:soso_e113:}
欢迎访问绿地小家装修日记

http://www.aqlife.com/forum.php?mod=viewthread&tid=1841949&extra=page%3D
回复 支持 反对

使用道具 举报

0

收听

5

听众

439

帖子

E粉明星

注册时间
2014-3-17
精华
0
 楼主| 发表于 2014-7-2 19:40:12 | 显示全部楼层
风竹风影 发表于 2014-7-2 19:02
新贴顶一个。我家年底拿房,正在学习中,密切关注楼主的步骤。另:飞龙装饰联系方式?半包价格?包哪些辅材 ...

是绿地的邻居吗?希望楼主的装修过程能给你提供些参考啊。其他的站内信给你吧。
欢迎访问绿地小家装修日记

http://www.aqlife.com/forum.php?mod=viewthread&tid=1841949&extra=page%3D
回复 支持 反对

使用道具 举报

5

收听

2

听众

483

帖子

E粉新星

注册时间
2013-10-31
精华
0
发表于 2014-7-2 20:53:01 | 显示全部楼层
黑色曙光 发表于 2014-7-2 19:40
是绿地的邻居吗?希望楼主的装修过程能给你提供些参考啊。其他的站内信给你吧。

不是绿地,在格林镇。报价我看到了,价钱算中等,集成吊顶什么牌子?包电器吧?估计十二万预算有点玄?
回复 支持 反对

使用道具 举报

0

收听

5

听众

439

帖子

E粉明星

注册时间
2014-3-17
精华
0
 楼主| 发表于 2014-7-2 21:33:32 | 显示全部楼层
风竹风影 发表于 2014-7-2 20:53
不是绿地,在格林镇。报价我看到了,价钱算中等,集成吊顶什么牌子?包电器吧?估计十二万预算有点玄?

格林镇的多层和小高层都非常不错,可惜楼主买房的时候还没有开盘啊。

集成吊顶没有包含在内的,这项从价格质量等方面综合来说可高可低,楼主准备订个普通的吊顶搭配好点的电器,目前还没有确定。


十二万预算我感觉应该还可以,因为楼主不追求高端,凡事都以家用实用为主,追求性价比{:soso_e113:},没办法,荷包不鼓啊。


欢迎访问绿地小家装修日记

http://www.aqlife.com/forum.php?mod=viewthread&tid=1841949&extra=page%3D
回复 支持 反对

使用道具 举报

5

收听

2

听众

483

帖子

E粉新星

注册时间
2013-10-31
精华
0
发表于 2014-7-2 21:42:33 | 显示全部楼层
期待中。集成吊项我看了不少家,最经济的要算吉詳街欧普吊顶,100-130元左右一平方,电器网购。
回复 支持 反对

使用道具 举报

头像被屏蔽

0

收听

1

听众

13

帖子

禁止访问

注册时间
2014-7-2
精华
0
发表于 2014-7-3 10:29:28 | 显示全部楼层
提示: 作者被禁止或删除 内容自动屏蔽
回复 支持 反对

使用道具 举报

0

收听

5

听众

439

帖子

E粉明星

注册时间
2014-3-17
精华
0
 楼主| 发表于 2014-7-3 11:35:41 | 显示全部楼层

看id就猜到了{:soso_e113:}
欢迎访问绿地小家装修日记

http://www.aqlife.com/forum.php?mod=viewthread&tid=1841949&extra=page%3D
回复 支持 反对

使用道具 举报

您需要登录后才可以回帖 登录 | 注册

本版积分规则

联系合作|手机版|手机APP|Archiver|

GMT+8, 2025-12-10 16:29 Powered by Discuz! X3.4

安庆E网生活网站 © 2001-2013 Comsenz Inc. ( 皖ICP备05012696号 )

QQ

安庆瑞易文化 地址:华茂1958-C7栋 联系电话:0556-5306667 联系邮箱:17779721@qq.com 互联网违法和不良信息举报电话和邮箱:0556-5306667 17779721@qq.com

皖公网安备 34080002000101号

    
快速回复 返回顶部 返回列表