安庆E网

搜索
查看: 3182|回复: 4

[装修公司] 安庆大发宜景城“四房两厅”装修效果图-安庆十大装修公司

[复制链接]

3

收听

3

听众

997

帖子

E粉明星

注册时间
2014-5-6
精华
0
QQ
发表于 2014-7-31 14:40:55 | 显示全部楼层 |阅读模式
本帖最后由 鸿鹄之志 于 2014-7-31 15:17 编辑

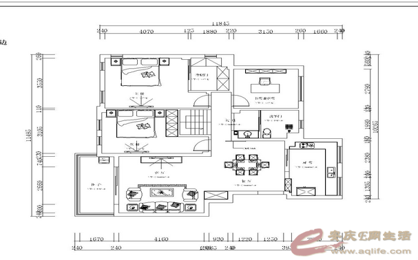
aa.png
  小区:大发宜景城
户型:四房两厅
面积:134平米
风格:现代欧式
设计师:王叶飞
参考报价:8.8 万

客厅、餐厅
q.jpg

w.jpg

案例说明

过道过长,且楼上空间可以利用为储纳空间,所以利用过道的小衣帽间可以做一个楼梯的形式通往楼上。这样每个空间都四方四正,且利用率高。

客厅

业主为40,50岁的成功人士,喜欢欧式的富丽堂皇和居家的温馨简约,结合这两点将欧式的经典造型和现代的金属感融合在一起,使得空间天衣无缝

特大喜讯

为了迎接中国传统的七夕,特推出“取消装修人工费,来就【油】礼的活动”只要您来,

就送 1.8升福临门调和油一桶】且征集【88套样板房

把您的雅居打造成宜城最美之家!!!且家且珍惜



装房子、买家具,就上一号家居网!
电话:15056664983   QQ:1285353854
回复

使用道具 举报

3

收听

3

听众

997

帖子

E粉明星

注册时间
2014-5-6
精华
0
QQ
 楼主| 发表于 2014-8-1 11:04:20 | 显示全部楼层
{:soso__10169062262133571330_1:}


装房子、买家具,就上一号家居网!
电话:15056664983   QQ:1285353854
回复 支持 反对

使用道具 举报

3

收听

3

听众

997

帖子

E粉明星

注册时间
2014-5-6
精华
0
QQ
 楼主| 发表于 2014-8-2 08:28:46 | 显示全部楼层
{:soso__10169062262133571330_1:}


装房子、买家具,就上一号家居网!
电话:15056664983   QQ:1285353854
回复 支持 反对

使用道具 举报

3

收听

3

听众

997

帖子

E粉明星

注册时间
2014-5-6
精华
0
QQ
 楼主| 发表于 2014-8-3 11:00:05 | 显示全部楼层
{:soso__10169062262133571330_1:}
装房子、买家具,就上一号家居网!
电话:15056664983   QQ:1285353854
回复 支持 反对

使用道具 举报

3

收听

3

听众

997

帖子

E粉明星

注册时间
2014-5-6
精华
0
QQ
 楼主| 发表于 2014-9-29 09:22:15 | 显示全部楼层
装房子、买家具,就上一号家居网!
装房子、买家具,就上一号家居网!
电话:15056664983   QQ:1285353854
回复 支持 反对

使用道具 举报

您需要登录后才可以回帖 登录 | 注册

本版积分规则

联系合作|手机版|手机APP|Archiver|

GMT+8, 2025-12-16 15:17 Powered by Discuz! X3.4

安庆E网生活网站 © 2001-2013 Comsenz Inc. ( 皖ICP备05012696号 )

QQ

安庆瑞易文化 地址:华茂1958-C7栋 联系电话:0556-5306667 联系邮箱:17779721@qq.com 互联网违法和不良信息举报电话和邮箱:0556-5306667 17779721@qq.com

皖公网安备 34080002000101号

    
快速回复 返回顶部 返回列表