安庆E网

搜索
查看: 10780|回复: 42

[设计交流] “寸草心”蜗居有3D效果图拜求能人贤士赐教

  [复制链接]

1

收听

1

听众

150

帖子

E粉新星

注册时间
2007-9-6
精华
0
发表于 2014-9-17 23:13:08 | 显示全部楼层 |阅读模式
本帖最后由 宛如一叶碧荷 于 2014-9-25 21:58 编辑

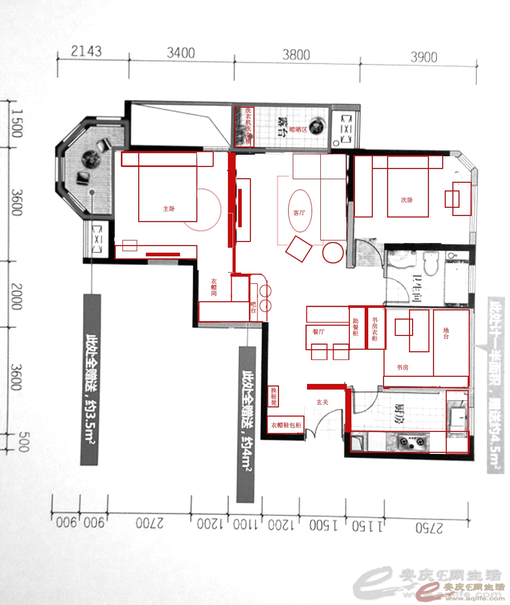
今天接到售楼处通知,交房时间确定为11月。蛮失望的,比预期又延期了一个月。届时天气会很冷了吧。繁星一点大德建议愚写出拜赐的具体内容。有幸得到太平洋家居网家居特约设计师谢法新出了3D效果图为父母改善居77平养老小宅给E网能者贤士一观,简单说明一下:一.愚的家人都是佛陀教育的俗门弟子,每日遵守在家居士朝暮课诵需专辟一处净台作为供奉佛像礼佛的。
二.入户小储藏室墙顶已安装了一个入户用电箱。售楼小姐说储藏室可以敲掉的。
三.户型图中书房在购买时称为空中花园的,现场已经安装了一个与厨房连接的小塑钢门,很多设计师都建议将这个侧门给封闭起来。
四.主卧赠送的八角飘窗为3.5㎡,或因高层安全考虑被施工方加建成一个水泥台,父亲希望将之作为阅读角。
五.通往主卧的位置是一个约2㎡的小过道,顶部最高处有2.88米,且天花板是裸露的。原先愚想在这里建一个小衣帽间,设计师建议将过道与沙发角拉平,将主卧房门改建。
愚将设计师设计好的彩图和原来的户型对比图放上来,礼请众位能者贤士不吝赐教。
户型图.JPG
平面彩图.jpg






[img][http://9415.mailu.cn/3.g][/img]
回复

使用道具 举报

2

收听

24

听众

1951

帖子

E粉明星

注册时间
2010-8-8
精华
0
发表于 2014-9-18 06:34:13 | 显示全部楼层
00667788.jpg
回复 支持 反对

使用道具 举报

2

收听

24

听众

1951

帖子

E粉明星

注册时间
2010-8-8
精华
0
发表于 2014-9-18 06:45:19 | 显示全部楼层
005588.jpg
回复 支持 反对

使用道具 举报

2

收听

24

听众

1951

帖子

E粉明星

注册时间
2010-8-8
精华
0
发表于 2014-9-18 06:48:22 | 显示全部楼层
本帖最后由 竞叫战士 于 2014-9-18 07:04 编辑

助餐柜 餐台高度以下一半用抽屉朝厨房方向抽拉
回复 支持 反对

使用道具 举报

头像被屏蔽

1

收听

4

听众

684

帖子

未认证商家

注册时间
2012-2-12
精华
0
发表于 2014-9-18 09:31:49 | 显示全部楼层
提示: 该帖被管理员或版主屏蔽
签名被屏蔽
回复 支持 反对

使用道具 举报

1

收听

1

听众

447

帖子

未认证商家

注册时间
2013-5-7
精华
0
QQ
发表于 2014-9-18 09:38:18 | 显示全部楼层
装修是要多多花心思了
尚美尚家冷暖工程有限公司
专业做地暖、中央空调、中央净水等等舒适家居系统
业务联系小邱:18355606187
回复 支持 反对

使用道具 举报

1

收听

1

听众

150

帖子

E粉新星

注册时间
2007-9-6
精华
0
 楼主| 发表于 2014-9-18 09:58:50 | 显示全部楼层

竞叫战士大德居然清晨06:34就已经画好了您的宝贵构思并上传赐教,太令愚感动了!深深向您作揖,祈愿您六时吉祥!另外,有几处不明白,您图上所示,进门的玄关位置、厨房、主卧走廊是都要重新砌墙吗?那样装修费用就又上去了很多呢……

还有,这屋子准备给父母住,父母素日节俭,人年纪大了比较念旧,还有半新的家具都不舍得扔,还喜欢在家里招待至亲好友,餐厅边的柜子罗列那么多,餐桌就没挪移的地方了。


点评

想大 还是有办法的 见图  发表于 2014-9-18 11:48
呵呵 我的餐厅跟你的是一样大 你不识数么  发表于 2014-9-18 11:43
[img][http://9415.mailu.cn/3.g][/img]
回复 支持 反对

使用道具 举报

1

收听

1

听众

150

帖子

E粉新星

注册时间
2007-9-6
精华
0
 楼主| 发表于 2014-9-18 10:01:40 | 显示全部楼层
韩坤_L73rx 发表于 2014-9-18 09:13
楼主您好,您这边也是大发的房子吗?我也准备11月拿钥匙装修的,希望可以一起探讨一下。我是美平方装饰公司 ...

韩设计师幸会,感谢您的关注,您也是11月拿钥匙的邻居?业主群里面哪位是您呢?
[img][http://9415.mailu.cn/3.g][/img]
回复 支持 反对

使用道具 举报

1

收听

1

听众

150

帖子

E粉新星

注册时间
2007-9-6
精华
0
 楼主| 发表于 2014-9-18 10:05:21 | 显示全部楼层
寒蝉 发表于 2014-9-18 09:19
楼主有时间可以来我们百度家装看看,目前我们公司也正在装一户绿地的业主,她家也是要供奉佛像。可以让设计 ...

请问寒蝉大德您所说的这家业主的佛堂位置的装修效果图能先放上来共享一下吗?上回随e网看房团去了绿地,没见到您。好像那次参观是面对面公司的装修团队。
[img][http://9415.mailu.cn/3.g][/img]
回复 支持 反对

使用道具 举报

0

收听

9

听众

112

帖子

E粉明星

注册时间
2014-2-15
精华
1
发表于 2014-9-18 10:28:54 | 显示全部楼层
宛如一叶碧荷 发表于 2014-9-18 09:58
竞叫战士大德居然清晨06:34就已经画好了您的宝贵构思并上传赐教,太令愚感动了!深深向您作揖,祈愿您六 ...


看了竞叫战士的设计,应该说比较合理,玄关不一定要砌墙的,这个费用一般不会太高,个人觉得厨房门能不能开在原来的位置,书房和厨房门紧邻会不会有点吵,个人意见。
祝您及全家装修顺利,万事如意!

点评

你把你相对合理的东西拿出来 我的高度绝对凌驾于你 不是一个平台的 我的东西你是看不懂的-------因为你目前还木有具备看懂的素养  发表于 2014-9-18 12:35
谢谢点评  发表于 2014-9-18 11:32
回复 支持 反对

使用道具 举报

0

收听

1

听众

23

帖子

E粉新人

注册时间
2014-9-3
精华
0
QQ
发表于 2014-9-18 11:01:29 | 显示全部楼层
本帖最后由 韩坤_L73rx 于 2014-9-18 11:17 编辑
宛如一叶碧荷 发表于 2014-9-18 10:01
韩设计师幸会,感谢您的关注,您也是11月拿钥匙的邻居?业主群里面哪位是您呢?

在群里找钱多多就可以了
安庆美平方装饰公司——白领健康家装第一品牌
手机:15655605652
QQ:287712480
地址:正奇家居2楼
回复 支持 反对

使用道具 举报

0

收听

1

听众

23

帖子

E粉新人

注册时间
2014-9-3
精华
0
QQ
发表于 2014-9-18 11:06:08 | 显示全部楼层
宛如一叶碧荷 发表于 2014-9-18 10:01
韩设计师幸会,感谢您的关注,您也是11月拿钥匙的邻居?业主群里面哪位是您呢?

您加我QQ287712480吧,我在群里找你
安庆美平方装饰公司——白领健康家装第一品牌
手机:15655605652
QQ:287712480
地址:正奇家居2楼
回复 支持 反对

使用道具 举报

2

收听

24

听众

1951

帖子

E粉明星

注册时间
2010-8-8
精华
0
发表于 2014-9-18 11:26:43 | 显示全部楼层
本帖最后由 竞叫战士 于 2014-9-18 11:32 编辑

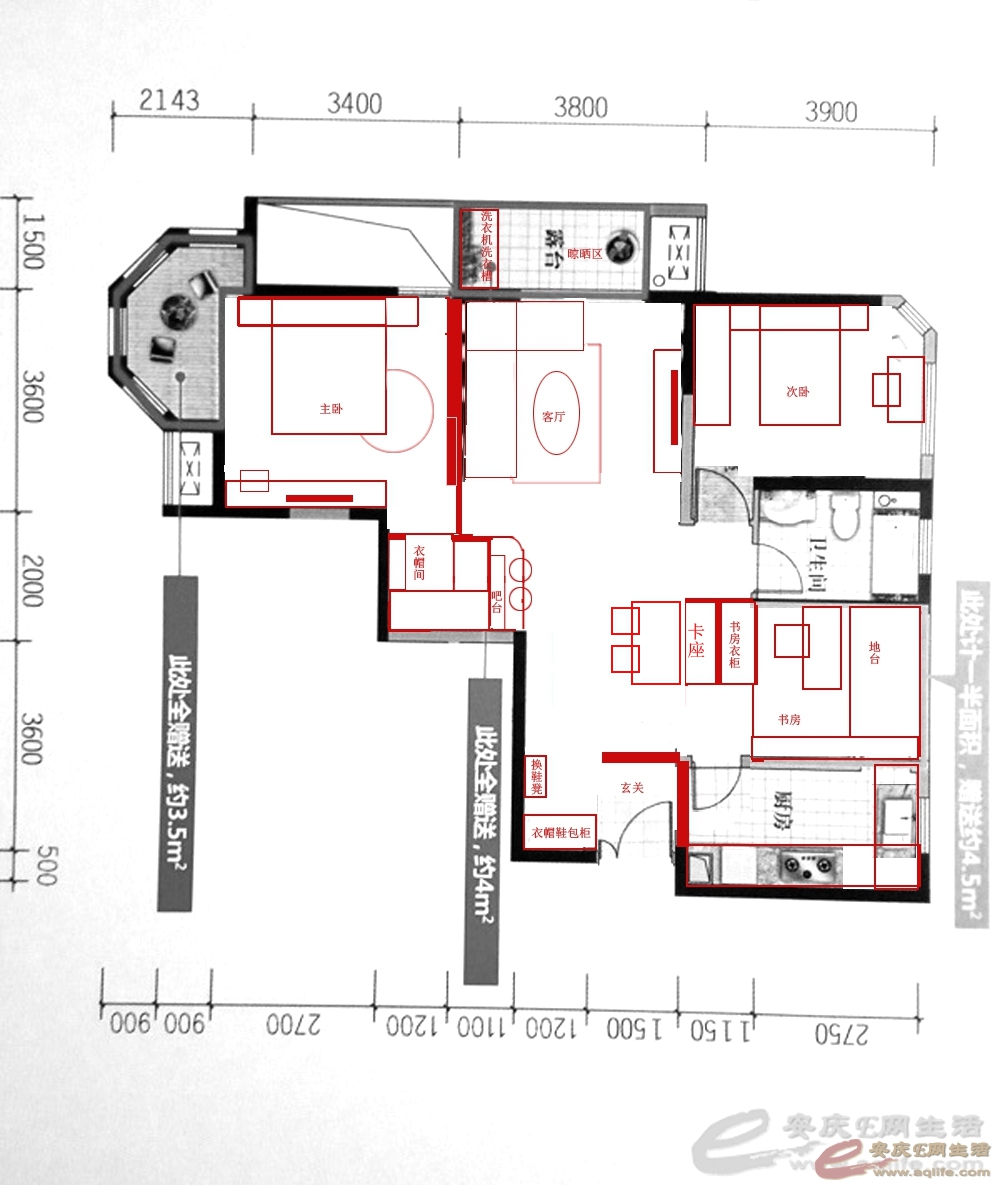
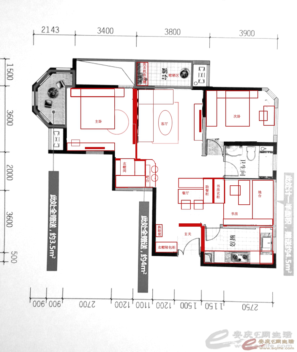
呵呵    这套方案我只动了原书房的一堵墙   重新开了 厨房 主卧和书房的门洞   

入口玄关对景  根据自己的爱好选择材质    选择对景玄关有几个目的

1、挡穿堂煞    2、餐厅玄关空间不共享 (就餐环境避免看到“一地”的鞋子)3、入户看到餐台不聚财……


至于新旧家具  我个人观点 尽可能集中摆放在一个空间  能扔的就扔了吧  扔之前多拍些相片  挂起来以便忆旧

入户原厨房门不要全部封上 留一个采光通风口  也便于买菜回家一进玄关就可以从采光窗将菜放进厨房

柜体这么多 不能再少了  东西越用越多  餐台边的助餐高柜以及吧台的除了品位  还有就餐前将餐桌上的摆设很便捷地收理    那个吧台除了消除主卧门口的阳角 还可以起到餐客厅的衔接  使空间活鲜一些



我不是吹牛  我的平面方案虽不是十全十美  在安庆 在天涯论坛 几乎找不到超越我的东西  嫩花多少钱都未必赶超


装修的目的就是提升生活质量和品位   省钱要省对地方  地砖800X800的有400元一片左右的也有几十元一片的  柜子能省么  哈哈哈哈……

祝你好运!
回复 支持 反对

使用道具 举报

2

收听

24

听众

1951

帖子

E粉明星

注册时间
2010-8-8
精华
0
发表于 2014-9-18 12:15:57 | 显示全部楼层
0099.jpg
回复 支持 反对

使用道具 举报

头像被屏蔽

0

收听

1

听众

84

帖子

禁止访问

注册时间
2014-7-21
精华
0
发表于 2014-9-18 13:46:59 | 显示全部楼层
提示: 作者被禁止或删除 内容自动屏蔽
回复 支持 反对

使用道具 举报

1

收听

1

听众

150

帖子

E粉新星

注册时间
2007-9-6
精华
0
 楼主| 发表于 2014-9-18 16:40:48 | 显示全部楼层
本帖最后由 宛如一叶碧荷 于 2014-9-19 10:02 编辑
竞叫战士 发表于 2014-9-18 11:26
呵呵    这套方案我只动了原书房的一堵墙   重新开了 厨房 主卧和书房的门洞   

入口玄关对景  根据自己 ...


非常感谢竞叫战士您费心画出这些设计并将巧妙构思予以讲解。如您所言,愚文化水平低是不太识数,特别是数学白痴,哈哈~希望您别介意~对于砸墙的事情愚要仔细斟酌,毕竟这不是纸上谈兵,真动手的时候不光是银钱耗费,还有整体的实用性。父母年纪大了,住的舒服才是第一要考虑的,吧台这个装饰可能更适合年轻人的情调。另外卫浴间的干湿分区也是大问题,卫浴可需要改向?露台处没有房顶,洗衣机台放那里日晒雨淋的合适吗

点评

你就让你父亲舒适去吧 一个家收纳不足就舒适? 吧台不适合老年,估计你的心理年龄已经不小了?我没有见过没有封顶的阳台 你确认你家在顶楼且没有封顶!?  发表于 2014-9-18 21:24
[img][http://9415.mailu.cn/3.g][/img]
回复 支持 反对

使用道具 举报

1

收听

1

听众

150

帖子

E粉新星

注册时间
2007-9-6
精华
0
 楼主| 发表于 2014-9-19 10:09:49 | 显示全部楼层

竞叫战士大德您一定很忙,没仔细看愚之前的求教贴。因买的高层奇数层,而楼上偶数层的阳台却在主卧位置,导致这屋的露台顶是上上层的阳台才是我家露台的房顶。另外,愚年纪是不小了,也不敢跟您这样的年轻人扮嫩,望见谅。
[img][http://9415.mailu.cn/3.g][/img]
回复 支持 反对

使用道具 举报

0

收听

9

听众

112

帖子

E粉明星

注册时间
2014-2-15
精华
1
发表于 2014-9-19 10:31:44 | 显示全部楼层
宛如一叶碧荷 发表于 2014-9-19 10:09
竞叫战士大德您一定很忙,没仔细看愚之前的求教贴。因买的高层奇数层,而楼上偶数层的阳台却在主卧位置, ...

好像香樟里也有这种奇偶层的阳台,我觉得可以装个阳光棚挡雨,至于洗衣机日晒也是没有办法的了,算起来洗衣机比较便宜。卫生间宽度2米75应该干湿分区够了,不过浴室柜要买小号的。
回复 支持 反对

使用道具 举报

头像被屏蔽

0

收听

8

听众

464

帖子

禁止访问

注册时间
2010-10-20
精华
0
发表于 2014-9-19 22:21:48 | 显示全部楼层
提示: 作者被禁止或删除 内容自动屏蔽
回复 支持 1 反对 0

使用道具 举报

头像被屏蔽

0

收听

1

听众

84

帖子

禁止访问

注册时间
2014-7-21
精华
0
发表于 2014-9-20 12:33:52 | 显示全部楼层
提示: 作者被禁止或删除 内容自动屏蔽
回复 支持 反对

使用道具 举报

头像被屏蔽

0

收听

1

听众

1

帖子

禁止访问

注册时间
2014-9-5
精华
0
发表于 2014-9-20 22:34:59 | 显示全部楼层
提示: 作者被禁止或删除 内容自动屏蔽
回复 支持 反对

使用道具 举报

3

收听

3

听众

153

帖子

E粉新星

注册时间
2013-4-11
精华
0
QQ
发表于 2014-9-24 15:42:30 | 显示全部楼层
宛如一叶碧荷 发表于 2014-9-18 10:05
请问寒蝉大德您所说的这家业主的佛堂位置的装修效果图能先放上来共享一下吗?上回随e网看房团去了绿地, ...

不好意思那个供奉佛像的房间没有出效果图,因为这是有讲究的,佛像是神灵出效果图是不敬重的表现。目前这户正在做木工,等完工了我可以带您去业主的家里看
回复 支持 反对

使用道具 举报

1

收听

1

听众

150

帖子

E粉新星

注册时间
2007-9-6
精华
0
 楼主| 发表于 2014-9-24 16:31:10 | 显示全部楼层
寒蝉 发表于 2014-9-24 15:42
不好意思那个供奉佛像的房间没有出效果图,因为这是有讲究的,佛像是神灵出效果图是不敬重的表现。目前这 ...

感谢寒蝉大德提醒。佛堂没出效果图没关系的,不过也不必遮遮掩掩,您所说的“讲究”对大乘佛法而言似乎没甚必要,因至今还留有如敦煌壁画这样的宝贵佛陀教育文化遗产就是证明。
愚线下坐等您的邀约拜访通知了。
[img][http://9415.mailu.cn/3.g][/img]
回复 支持 反对

使用道具 举报

1

收听

1

听众

150

帖子

E粉新星

注册时间
2007-9-6
精华
0
 楼主| 发表于 2014-9-24 16:35:55 | 显示全部楼层
繁星一点 发表于 2014-9-19 22:21
要是给父母住,可以保留两个房间,把厨房边上的房间与厨房连起来,组成半开放厨房,就是餐厅厨房一体,餐厅 ...

感恩繁星一点大德的宝贵提议,看得出您颇花了一番脑力才想到这样的设计理念。可是,又有个困扰了,因半封闭厨房连接餐厅这样一来,原先生活阳台那里,父母亲需要供奉的佛堂位置就没有了。
[img][http://9415.mailu.cn/3.g][/img]
回复 支持 反对

使用道具 举报

0

收听

9

听众

742

帖子

未认证商家

注册时间
2010-5-19
精华
0
发表于 2014-9-25 17:23:16 | 显示全部楼层

顶顶,宏达装饰欢迎您有空来坐坐。{:soso_e160:}
公司地址:新河路与文苑路交汇处新河湾商业A#
电话:0556-5197333  
监督电话:13955683080
回复 支持 反对

使用道具 举报

您需要登录后才可以回帖 登录 | 注册

本版积分规则

联系合作|手机版|手机APP|Archiver|

GMT+8, 2025-12-10 16:40 Powered by Discuz! X3.4

安庆E网生活网站 © 2001-2013 Comsenz Inc. ( 皖ICP备05012696号 )

QQ

安庆瑞易文化 地址:华茂1958-C7栋 联系电话:0556-5306667 联系邮箱:17779721@qq.com 互联网违法和不良信息举报电话和邮箱:0556-5306667 17779721@qq.com

皖公网安备 34080002000101号

    
快速回复 返回顶部 返回列表