安庆E网

搜索
查看: 2961|回复: 0

[装修公司] 中央新城 混搭风格

[复制链接]

0

收听

1

听众

29

帖子

E粉新人

注册时间
2014-8-18
精华
0
QQ
发表于 2014-10-4 16:12:16 | 显示全部楼层 |阅读模式
本帖最后由 阔达千色花装饰 于 2014-10-4 16:13 编辑

个人简介:
【设计师姓名】:魏东鸿
【设计师职位】:设计总监
【主要作品】:绿地 谐水湾二期 碧桂园迎江御墅  阳光二期 杭派滟澜香堤 千和花园 东方天韵 御景国际 中央新城   .........
【作品名称】:中央新城
【设计风格】:混搭风格
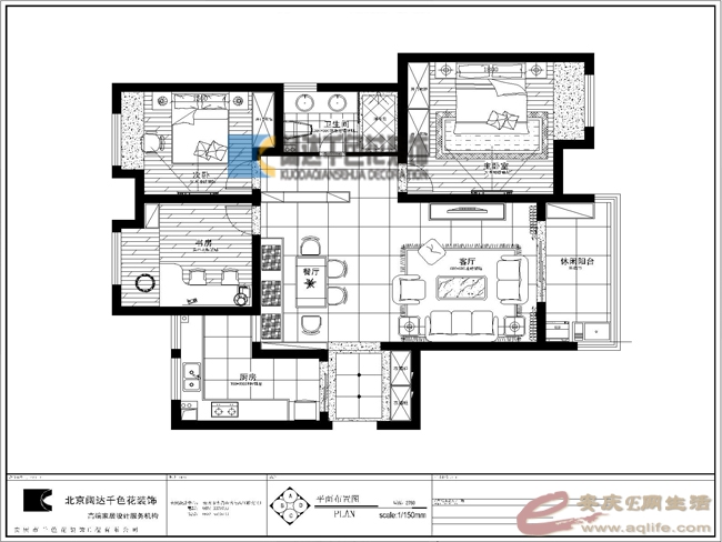
【建筑面积】:111平方
【户型】:两室两厅一卫
【设计公司】:安庆阔达装饰
【设计理念】:设计源于生活,科技回归人性,文化融入自然。“因设计而生活,为生活而设计”。
平面布局图:
原始图.jpg
平面图.jpg
效果图展示:
混搭客厅-end2.jpg
以上方案是设计师部分作品,欲了解更多,关注安庆阔达千色花装饰哦!欣赏更多精彩,安庆阔达千色花装饰真诚为您服务!
联系电话:15856532987(刘盈盈)


640 (1).jpg
标准工程 一就不同
地址:棋盘山路与沿江路交叉口1-2号门面
QQ:980236770
回复

使用道具 举报

您需要登录后才可以回帖 登录 | 注册

本版积分规则

联系合作|手机版|手机APP|Archiver|

GMT+8, 2025-12-10 19:34 Powered by Discuz! X3.4

安庆E网生活网站 © 2001-2013 Comsenz Inc. ( 皖ICP备05012696号 )

QQ

安庆瑞易文化 地址:华茂1958-C7栋 联系电话:0556-5306667 联系邮箱:17779721@qq.com 互联网违法和不良信息举报电话和邮箱:0556-5306667 17779721@qq.com

皖公网安备 34080002000101号

    
快速回复 返回顶部 返回列表