安庆E网

搜索
楼主: 井底青蛙

[装修日记] 别人晒成果,我来晒思路(毕业照出现,海量实景图)

  [复制链接]

0

收听

3

听众

94

帖子

E粉新星

注册时间
2014-6-19
精华
0
 楼主| 发表于 2014-10-27 14:39:21 | 显示全部楼层
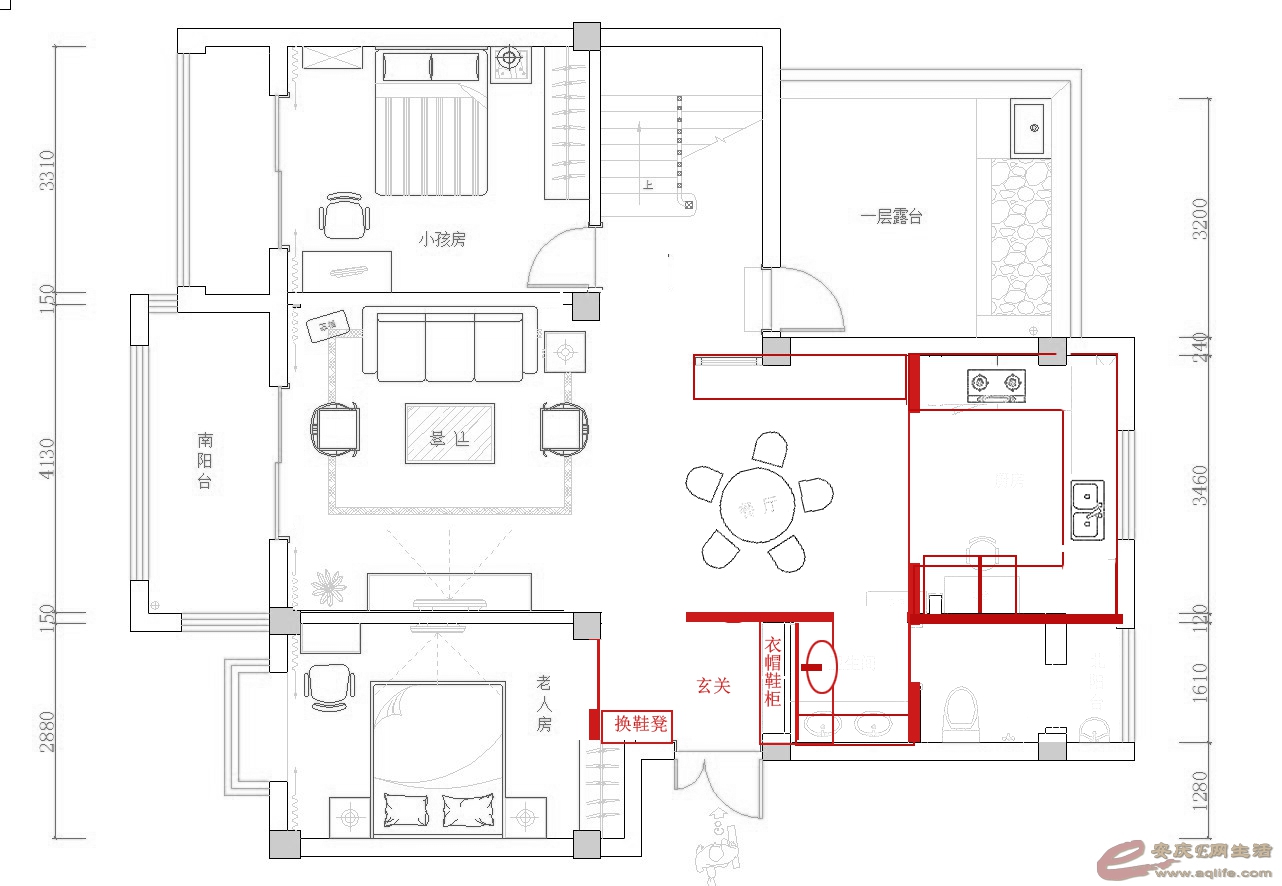
客厅、餐厅、卧室都是中规中矩的,真正考验设计师和我的功底的,应该是接下来登场的书房、厨房、卫生间以及家里的阳台、一号露台、二号露台、三号露台、阳光房以及储物间了
感谢大家捧场,我将继续努力更新下去,直到家装结束
回复 支持 反对

使用道具 举报

0

收听

1

听众

911

帖子

E粉明星

注册时间
2010-12-16
精华
1
QQ
发表于 2014-10-27 15:20:55 | 显示全部楼层
希望继续分享
就算沐浴在阳光下,也会有阴影
回复 支持 反对

使用道具 举报

头像被屏蔽

3

收听

4

听众

507

帖子

禁止访问

注册时间
2013-12-8
精华
0
发表于 2014-10-27 19:22:02 | 显示全部楼层
提示: 作者被禁止或删除 内容自动屏蔽
回复 支持 反对

使用道具 举报

0

收听

1

听众

203

帖子

未认证商家

注册时间
2014-2-11
精华
0
发表于 2014-10-28 09:36:03 | 显示全部楼层
楼主写得很详细哦,会继续关注...
宝仕龙全景顶安庆专卖店
服务热线:0556-5261588  18055603799
地址:安庆市光彩四期C区7栋一层3-2号
回复 支持 反对

使用道具 举报

1

收听

3

听众

73

帖子

E粉新星

注册时间
2009-8-9
精华
0
发表于 2014-10-28 10:21:27 | 显示全部楼层
赞一个!不一样的装修风!弱弱得问一句,得花多少银子?
回复 支持 反对

使用道具 举报

0

收听

3

听众

94

帖子

E粉新星

注册时间
2014-6-19
精华
0
 楼主| 发表于 2014-10-28 10:23:12 | 显示全部楼层
宝仕龙全景顶 发表于 2014-10-28 09:36
楼主写得很详细哦,会继续关注...

谢谢,我也会关注你们的{:soso_e113:}
回复 支持 反对

使用道具 举报

0

收听

3

听众

94

帖子

E粉新星

注册时间
2014-6-19
精华
0
 楼主| 发表于 2014-10-28 10:26:40 | 显示全部楼层
clark92909 发表于 2014-10-28 10:21
赞一个!不一样的装修风!弱弱得问一句,得花多少银子?

半包工钱大概8万,门窗瓷砖地板一共预定是6万,厨房楼梯卫浴窗帘灯5万,阳光房4万,地暖空调5万,家具11万,家电3万,前期根据各项装修报价预算是42万,估计到时候只多不少。。。。。
回复 支持 反对

使用道具 举报

0

收听

1

听众

173

帖子

E粉新星

注册时间
2008-8-26
精华
1
发表于 2014-10-28 15:24:31 | 显示全部楼层
房间的壁纸选二种花色,那会不会感觉花了一点啊
回复 支持 反对

使用道具 举报

0

收听

2

听众

139

帖子

E粉新星

注册时间
2012-6-23
精华
0
发表于 2014-10-28 19:48:45 | 显示全部楼层
LZ你太另类了,我彻底被你打败了
回复 支持 反对

使用道具 举报

头像被屏蔽

0

收听

1

听众

116

帖子

禁止访问

注册时间
2007-7-29
精华
0
发表于 2014-10-28 23:26:55 | 显示全部楼层
提示: 作者被禁止或删除 内容自动屏蔽
回复 支持 反对

使用道具 举报

3

收听

12

听众

2040

帖子

认证商家

注册时间
2009-5-5
精华
0
发表于 2014-10-29 08:33:05 | 显示全部楼层
井底青蛙 发表于 2014-10-22 14:58
先是客厅和餐厅的设计布置,客厅最重要的是宽敞明亮,花里胡哨的电视背景墙一律不要,所以选择了一个最简单 ...

橡木纹好看大气!
地址:一店:光彩四期E区13栋56号 服务热线:5309299;二店:光彩博览中心2楼37号电话:5299809
回复 支持 反对

使用道具 举报

0

收听

3

听众

94

帖子

E粉新星

注册时间
2014-6-19
精华
0
 楼主| 发表于 2014-10-29 08:53:12 | 显示全部楼层
涵冰 发表于 2014-10-28 15:24
房间的壁纸选二种花色,那会不会感觉花了一点啊

{:soso_e113:}壁纸有几种铺法,大家习惯的全铺同一种壁纸,容易造成视觉上失去重心,产生眼花缭乱的感觉,才有AB法铺贴,利用三面墙的素色壁纸突出主背景墙的花色,是现在比较流行也比较容易出效果的铺法
回复 支持 反对

使用道具 举报

0

收听

3

听众

94

帖子

E粉新星

注册时间
2014-6-19
精华
0
 楼主| 发表于 2014-10-29 08:54:05 | 显示全部楼层
雨莫寒 发表于 2014-10-28 19:48
LZ你太另类了,我彻底被你打败了

{:soso_e113:}是的,我的人生前三十年基本上比较传奇,思路决定命运
回复 支持 反对

使用道具 举报

0

收听

3

听众

94

帖子

E粉新星

注册时间
2014-6-19
精华
0
 楼主| 发表于 2014-10-29 08:54:37 | 显示全部楼层
甜瓜 发表于 2014-10-28 23:26
装修风格很有个性哦,非常喜欢,欣赏中,会持续关注,

感谢您的关注,一定不计成本,给大家奉献一个装修小户型的典范
回复 支持 反对

使用道具 举报

0

收听

3

听众

94

帖子

E粉新星

注册时间
2014-6-19
精华
0
 楼主| 发表于 2014-10-29 08:55:22 | 显示全部楼层

我前几天在你们北京旗舰店看到一款美国山核桃的复合宽板,安庆报价如何?
回复 支持 反对

使用道具 举报

3

收听

12

听众

2040

帖子

认证商家

注册时间
2009-5-5
精华
0
发表于 2014-10-29 14:09:52 | 显示全部楼层
抽时间面谈好了.我的手机:13866002280
地址:一店:光彩四期E区13栋56号 服务热线:5309299;二店:光彩博览中心2楼37号电话:5299809
回复 支持 反对

使用道具 举报

0

收听

1

听众

137

帖子

E粉新星

注册时间
2007-8-3
精华
0
QQ
发表于 2014-10-29 16:59:17 | 显示全部楼层
楼主加油,我也准备装潢,我的装潢思路就是和别人不一样,希望以后多沟通。
回复 支持 反对

使用道具 举报

1

收听

9

听众

5117

帖子

E粉明星

注册时间
2009-11-24
精华
0

室内装饰设计QQ243160571

QQ
发表于 2014-10-31 11:52:21 | 显示全部楼层
井底青蛙 发表于 2014-10-29 08:54
是的,我的人生前三十年基本上比较传奇,思路决定命运

{:soso_e120:}顶起
东盛装饰  您身边的装修专家!
地址:光彩四期烩街公寓6楼(光彩大舞台隔壁)
电话:13625565176   5200845
回复 支持 反对

使用道具 举报

2

收听

1

听众

211

帖子

认证商家

注册时间
2013-7-24
精华
0
发表于 2014-11-21 11:12:32 | 显示全部楼层
{:soso_e179:}
回复 支持 反对

使用道具 举报

头像被屏蔽

0

收听

1

听众

35

帖子

禁止访问

注册时间
2014-8-2
精华
0
发表于 2014-12-7 14:49:32 | 显示全部楼层
提示: 作者被禁止或删除 内容自动屏蔽
回复 支持 反对

使用道具 举报

2

收听

24

听众

1951

帖子

E粉明星

注册时间
2010-8-8
精华
0
发表于 2014-12-7 16:05:34 | 显示全部楼层

010.jpg
回复 支持 反对

使用道具 举报

0

收听

3

听众

94

帖子

E粉新星

注册时间
2014-6-19
精华
0
 楼主| 发表于 2014-12-8 16:30:43 | 显示全部楼层
DDKD智能家居 发表于 2014-12-7 14:49
亲,怎么不考虑装套智能家居系统呢?   安庆 大德科道 智能家居,装修 首选!

说说,有些啥好东西
回复 支持 反对

使用道具 举报

1

收听

9

听众

5117

帖子

E粉明星

注册时间
2009-11-24
精华
0

室内装饰设计QQ243160571

QQ
发表于 2015-1-20 19:00:55 | 显示全部楼层
此贴必火
东盛装饰  您身边的装修专家!
地址:光彩四期烩街公寓6楼(光彩大舞台隔壁)
电话:13625565176   5200845
回复

使用道具 举报

4

收听

2

听众

199

帖子

E粉新星

注册时间
2012-2-1
精华
0
QQ
发表于 2015-1-21 10:03:07 | 显示全部楼层
祝装修快乐!
回复 支持 反对

使用道具 举报

头像被屏蔽

0

收听

1

听众

149

帖子

禁止访问

注册时间
2012-9-22
精华
0
发表于 2015-1-21 12:53:26 | 显示全部楼层
提示: 作者被禁止或删除 内容自动屏蔽
回复 支持 反对

使用道具 举报

您需要登录后才可以回帖 登录 | 注册

本版积分规则

联系合作|手机版|手机APP|Archiver|

GMT+8, 2025-12-10 23:14 Powered by Discuz! X3.4

安庆E网生活网站 © 2001-2013 Comsenz Inc. ( 皖ICP备05012696号 )

QQ

安庆瑞易文化 地址:华茂1958-C7栋 联系电话:0556-5306667 联系邮箱:17779721@qq.com 互联网违法和不良信息举报电话和邮箱:0556-5306667 17779721@qq.com

皖公网安备 34080002000101号

    
快速回复 返回顶部 返回列表