安庆E网

搜索
查看: 3700|回复: 3

[设计交流] 【一号家居】年轻小夫妻5万元改造北京50平清新风格小户型

[复制链接]

4

收听

5

听众

1318

帖子

E粉明星

注册时间
2013-3-21
精华
0
发表于 2014-12-19 10:34:48 | 显示全部楼层 |阅读模式

风格:清新

户型:一居

面积:50.0平米

预算:5.0万元

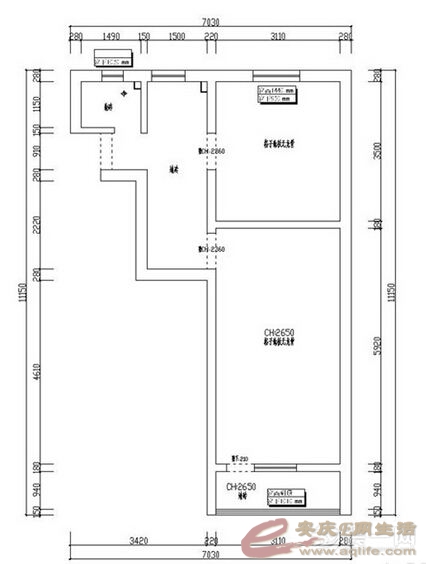
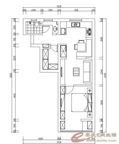
1b.jpg 2b.jpg

五万元改造清新风格50平一居小户型:这是一些墙体改造。小户型就是“矫情”,一定要仔细设计斟酌,做到麻雀小五脏要俱全啊。

N3~OJ2$W8TMN$}BVSQT)S~U.jpg

5N{056F)T0LTGR%MI8.jpg

1[UQCT~0REGV3WHR(EI8[P7.jpg

(5G$MI[6]JU3BP9FE)2Y5R7.jpg

五万元改造清新风格50平一居小户型:紧挨着就餐区的就是会客区。由于面积不大,又要满足亲朋好友的聚会,这样的设计恰到好处。深浅不一的蓝色,如大海般,清新迷人。

U{7I0`5{}Y3I)M}BCA[Q9B6.jpg

35@]QKUIF6W}0O4ZF])$[.jpg

(_QWROTEZYAXT@69[06GHEO.jpg




装房子,买家具,就上一号家居网-yes!TEL:18605565320 QQ:806416356  诚信为本!!!
回复

使用道具 举报

头像被屏蔽

0

收听

1

听众

79

帖子

禁止访问

注册时间
2014-11-28
精华
0
发表于 2014-12-20 16:10:01 | 显示全部楼层
提示: 作者被禁止或删除 内容自动屏蔽
签名被屏蔽
回复 支持 反对

使用道具 举报

1

收听

1

听众

268

帖子

E粉新星

注册时间
2014-10-11
精华
0
QQ
发表于 2014-12-21 08:43:08 | 显示全部楼层
{:soso_e128:}
装房子,买家具,就上一号家居网-Yes!
T:13074087595  QQ:1072440304
回复 支持 反对

使用道具 举报

0

收听

1

听众

244

帖子

未认证商家

注册时间
2014-3-15
精华
0
QQ
发表于 2014-12-26 13:26:17 www.aqlife.com | 显示全部楼层
很实惠
回复

使用道具 举报

您需要登录后才可以回帖 登录 | 注册

本版积分规则

联系合作|手机版|手机APP|Archiver|

GMT+8, 2025-12-16 13:22 Powered by Discuz! X3.4

安庆E网生活网站 © 2001-2013 Comsenz Inc. ( 皖ICP备05012696号 )

QQ

安庆瑞易文化 地址:华茂1958-C7栋 联系电话:0556-5306667 联系邮箱:17779721@qq.com 互联网违法和不良信息举报电话和邮箱:0556-5306667 17779721@qq.com

皖公网安备 34080002000101号

    
快速回复 返回顶部 返回列表