安庆E网

搜索
查看: 3987|回复: 0

[设计交流] 【一号家居】小户型装修案例必看 3万搞定48平基础装修

[复制链接]

4

收听

5

听众

1318

帖子

E粉明星

注册时间
2013-3-21
精华
0
发表于 2014-12-30 09:33:02 | 显示全部楼层 |阅读模式
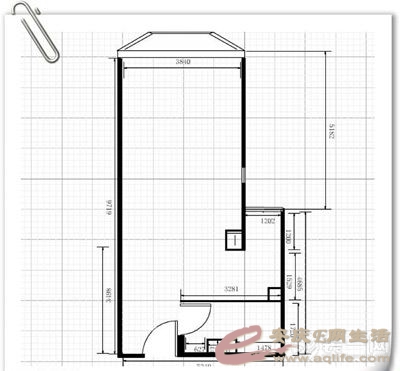
48平米小户型装修:户型图
1.jpg
刚刚装修好的样子,全局看一下,让大家有个概念。


2.jpg
进门左手的鞋柜,made by 史丹利;柜门上的挂钩来自宜家,实用。
3.jpg
门厅,这个地砖曾被批评说太老气,显脏!实践证明:很藏脏,省事。


48平米小户型装修:门厅
4.jpg
5.jpg

48平米小户型装修:卫生间全景
6.jpg
7.jpg
宜家的小三角桌


48平米小户型装修:厨房
8.jpg
9.jpg

48平米小户型装修:客厅
10.jpg
11.jpg

装房子,买家具,就上一号家居网-yes!TEL:18605565320 QQ:806416356  诚信为本!!!
回复

使用道具 举报

您需要登录后才可以回帖 登录 | 注册

本版积分规则

联系合作|手机版|手机APP|Archiver|

GMT+8, 2025-12-16 13:22 Powered by Discuz! X3.4

安庆E网生活网站 © 2001-2013 Comsenz Inc. ( 皖ICP备05012696号 )

QQ

安庆瑞易文化 地址:华茂1958-C7栋 联系电话:0556-5306667 联系邮箱:17779721@qq.com 互联网违法和不良信息举报电话和邮箱:0556-5306667 17779721@qq.com

皖公网安备 34080002000101号

    
快速回复 返回顶部 返回列表