安庆E网

搜索
123
返回列表 发新帖
楼主: wzzhn

[装修日记] 面朝大湖,春暖花开-东湖一品装修记

  [复制链接]

0

收听

1

听众

32

帖子

E粉新人

注册时间
2015-2-27
精华
0
 楼主| 发表于 2015-4-28 22:33:53 | 显示全部楼层
阳台一景
IMG_2702.JPG
回复

使用道具 举报

0

收听

1

听众

32

帖子

E粉新人

注册时间
2015-2-27
精华
0
 楼主| 发表于 2015-4-28 22:36:29 | 显示全部楼层
4.26开工啦!
IMG_2696.JPG
回复

使用道具 举报

0

收听

1

听众

32

帖子

E粉新人

注册时间
2015-2-27
精华
0
 楼主| 发表于 2015-4-28 22:50:34 | 显示全部楼层
满地鞭炮!
mmexport1430067106909.jpg
回复

使用道具 举报

0

收听

1

听众

32

帖子

E粉新人

注册时间
2015-2-27
精华
0
 楼主| 发表于 2015-4-28 22:51:34 | 显示全部楼层
远眺外景
mmexport1430067140060.jpg
回复

使用道具 举报

0

收听

1

听众

32

帖子

E粉新人

注册时间
2015-2-27
精华
0
 楼主| 发表于 2015-4-28 22:53:49 | 显示全部楼层
业之峰装修公司做的门和地面防护
mmexport1430232282148.jpg
回复 支持 反对

使用道具 举报

0

收听

1

听众

32

帖子

E粉新人

注册时间
2015-2-27
精华
0
 楼主| 发表于 2015-4-28 22:55:07 | 显示全部楼层
部分拆砌墙材料
mmexport1430232296355.jpg
回复 支持 反对

使用道具 举报

0

收听

1

听众

19

帖子

未认证商家

注册时间
2015-4-28
精华
0
发表于 2015-5-3 21:02:02 | 显示全部楼层
瑞嘉地板小杨祝楼主装修愉快
回复 支持 反对

使用道具 举报

0

收听

1

听众

32

帖子

E粉新人

注册时间
2015-2-27
精华
0
 楼主| 发表于 2015-5-5 22:15:23 | 显示全部楼层
客餐厅效果图
DH1.jpg
DH2.jpg
回复 支持 反对

使用道具 举报

0

收听

1

听众

32

帖子

E粉新人

注册时间
2015-2-27
精华
0
 楼主| 发表于 2015-5-5 22:27:58 | 显示全部楼层
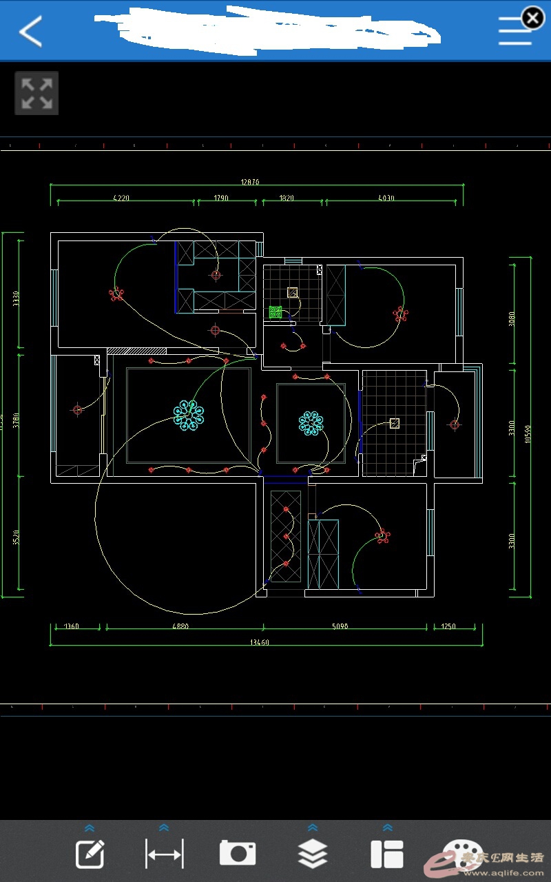
照明及插座图附上

照明图

照明图
S50505-054537.jpg
回复 支持 反对

使用道具 举报

0

收听

1

听众

32

帖子

E粉新人

注册时间
2015-2-27
精华
0
 楼主| 发表于 2015-5-5 22:46:50 | 显示全部楼层
4.28-5.5日,汪师傅的砌墙工作已完成。监理汪总在微信群告知我项目进度及上传施工图片。晾干两天后将刷墙宝,计划5月10日左右做水电

砌墙材料

砌墙材料
2.JPG

钻墙打孔穿钢筋

钻墙打孔穿钢筋

继续垒砌,新旧墙交界处挂钢丝网

继续垒砌,新旧墙交界处挂钢丝网
7.JPG
回复 支持 反对

使用道具 举报

1

收听

3

听众

151

帖子

未认证商家

注册时间
2012-10-15
精华
0
QQ
发表于 2015-5-5 23:01:07 | 显示全部楼层
楼主有空来我店里看看。
顶固五金安庆总代理(安庆百佳五金)顶固铰链、滑道、拉手,顶固指纹锁,淘宝网店“潜水艇地漏安庆店”潜水艇花洒,潜水艇洗菜盆,水龙头,潜水艇烟道止味阀,三角筏,潜水艇马桶防臭圈,5年质量保证,值得信赖.抽屉滑道,固特弹簧液压合页,精品拉手,保险柜,裤架,穿衣镜,好太太晾衣架,卡贝浴室挂件,家装五金,卫浴五金一站式采购.地
回复 支持 反对

使用道具 举报

头像被屏蔽

1

收听

1

听众

32

帖子

禁止访问

注册时间
2015-6-25
精华
0
发表于 2015-7-3 13:37:15 | 显示全部楼层
提示: 作者被禁止或删除 内容自动屏蔽
签名被屏蔽
回复

使用道具 举报

0

收听

1

听众

473

帖子

认证商家

注册时间
2015-7-21
精华
0
发表于 2015-12-5 12:52:20 | 显示全部楼层
又到年底了,楼主橱柜用的咋样呀?有问题打电话
地址:光彩四期C区10栋东5号  服务热线:18297747092、13063281601;
回复 支持 反对

使用道具 举报

0

收听

1

听众

32

帖子

E粉新人

注册时间
2015-2-27
精华
0
 楼主| 发表于 2016-1-17 09:48:01 www.aqlife.com | 显示全部楼层
满不错!谢了!
回复 支持 反对

使用道具 举报

0

收听

1

听众

19

帖子

E粉新人

注册时间
2015-11-29
精华
0
发表于 2016-1-21 10:38:10 | 显示全部楼层
有是新的一年
http://www.yigaojiaju.com易高定制
回复 支持 反对

使用道具 举报

0

收听

1

听众

381

帖子

E粉新星

注册时间
2015-5-25
精华
1
发表于 2016-2-1 14:16:09 | 显示全部楼层
回复

使用道具 举报

头像被屏蔽

1

收听

1

听众

70

帖子

禁止发言

注册时间
2017-4-22
精华
0
发表于 2017-5-3 15:52:05 | 显示全部楼层
提示: 作者被禁止或删除 内容自动屏蔽
回复 支持 反对

使用道具 举报

0

收听

1

听众

473

帖子

认证商家

注册时间
2015-7-21
精华
0
发表于 2017-5-27 15:24:22 | 显示全部楼层
地址:光彩四期C区10栋东5号  服务热线:18297747092、13063281601;
回复

使用道具 举报

0

收听

1

听众

473

帖子

认证商家

注册时间
2015-7-21
精华
0
发表于 2017-7-22 11:10:16 | 显示全部楼层
巧夫人橱柜巧夫人橱柜,奥田集成灶,庆祝十周年店庆,为感谢安庆e网的客户,店内有活动,望相互转告,谢谢合作
地址:光彩四期C区10栋东5号  服务热线:18297747092、13063281601;
回复 支持 反对

使用道具 举报

0

收听

1

听众

473

帖子

认证商家

注册时间
2015-7-21
精华
0
发表于 2017-11-6 15:17:26 | 显示全部楼层
巧夫人橱柜,奥田环保灶,年未大放送,i厂家直销,E网朋友可以带看看
地址:光彩四期C区10栋东5号  服务热线:18297747092、13063281601;
回复 支持 反对

使用道具 举报

0

收听

1

听众

473

帖子

认证商家

注册时间
2015-7-21
精华
0
发表于 2017-11-30 11:08:50 | 显示全部楼层
地址:光彩四期C区10栋东5号  服务热线:18297747092、13063281601;
回复

使用道具 举报

0

收听

1

听众

473

帖子

认证商家

注册时间
2015-7-21
精华
0
发表于 2018-4-26 14:45:37 | 显示全部楼层
巧夫人橱柜巧夫人橱柜,奥田集成灶,庆祝12周年店庆,为感谢安庆e网的客户,店内有活动,望相互转告,谢谢
地址:光彩四期C区10栋东5号  服务热线:18297747092、13063281601;
回复 支持 反对

使用道具 举报

您需要登录后才可以回帖 登录 | 注册

本版积分规则

联系合作|手机版|手机APP|Archiver|

GMT+8, 2025-12-11 05:59 Powered by Discuz! X3.4

安庆E网生活网站 © 2001-2013 Comsenz Inc. ( 皖ICP备05012696号 )

QQ

安庆瑞易文化 地址:华茂1958-C7栋 联系电话:0556-5306667 联系邮箱:17779721@qq.com 互联网违法和不良信息举报电话和邮箱:0556-5306667 17779721@qq.com

皖公网安备 34080002000101号

    
快速回复 返回顶部 返回列表