安庆E网

搜索
查看: 15408|回复: 53

[装修招标] 我家老房子想重新装修。没有头绪啊···

  [复制链接]

0

收听

5

听众

2080

帖子

E粉明星

注册时间
2008-9-17
精华
2
发表于 2015-3-3 16:39:57 | 显示全部楼层 |阅读模式
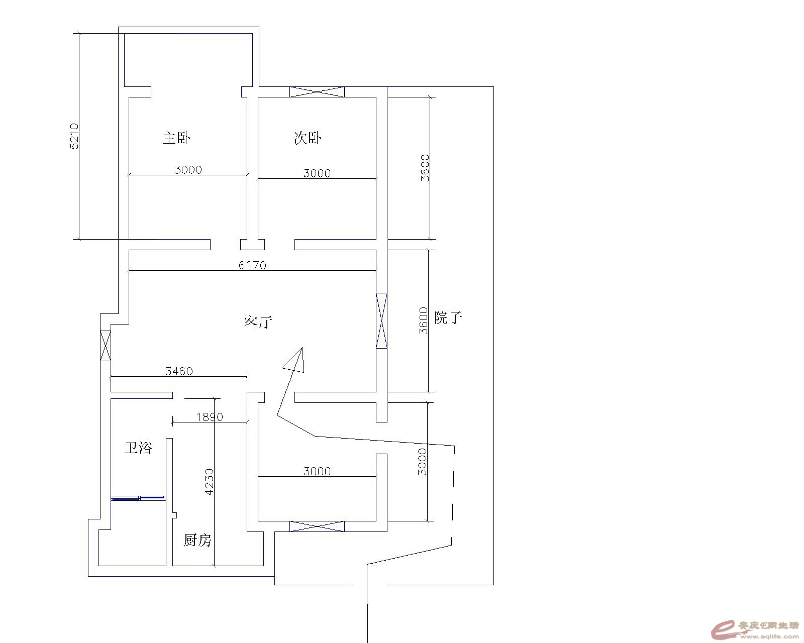
123-Model.jpg
这个是我自己测量画的图。问题现在客厅门太多。
有哪位设计师有好的建议啊。我喜欢简约现代的风格。
还有这个需要多少费用。现在的装潢是10年前的了。
墙厚270
静若瘫痪``动若癫痫``
回复

使用道具 举报

头像被屏蔽

0

收听

1

听众

25

帖子

禁止访问

注册时间
2013-4-3
精华
0
发表于 2015-3-3 16:42:53 | 显示全部楼层
提示: 作者被禁止或删除 内容自动屏蔽
回复 支持 反对

使用道具 举报

头像被屏蔽

0

收听

1

听众

42

帖子

禁止访问

注册时间
2013-7-9
精华
0
发表于 2015-3-3 17:27:46 | 显示全部楼层
提示: 作者被禁止或删除 内容自动屏蔽
回复 支持 反对

使用道具 举报

0

收听

1

听众

19

帖子

E粉新人

注册时间
2015-2-27
精华
0
发表于 2015-3-3 17:33:52 | 显示全部楼层
{:soso_e113:}楼主你好、弘润装饰欢迎你来咨询、老房装修比新房装修更要费把劲啊,有空来坐坐{:soso_e160:}
安庆弘润装饰
手机:18055695418
电话:0556-5525418
QQ:1543769110
地址:龙眠山路66号原山城集团七楼
回复 支持 反对

使用道具 举报

9

收听

7

听众

1349

帖子

认证商家

注册时间
2011-11-6
精华
0
发表于 2015-3-3 18:40:07 | 显示全部楼层
楼主您好,首先要想好自己需要房子提供哪些功能,其次根据功能来配合自己的生活习惯,然后把需要的功能与生活习惯与设计师沟通,最大化利用空间。
下一步趁315期间选购主材。同时欢迎您参加我们3月14日上午的E网团购会。本次团购会的商家都是E网口碑相当好的一些商家。可以提前到各个商家展厅实地考察一下,做到心里有数。
祝装修顺利!
展厅地址:光彩国际家居博览中心一层61号
销售热线:8882250
客服热线:8882251
品鉴热线:13905569197   qq:2502490242
做适合中国人的厨房,您的满意是我们最高的荣誉[
回复 支持 反对

使用道具 举报

0

收听

3

听众

451

帖子

未认证商家

注册时间
2011-9-20
精华
0
QQ
发表于 2015-3-3 19:19:30 | 显示全部楼层
【惠民装饰工程队】专业承接各种装饰、装修以及维修工程,单包双包皆可;有意向的朋友请致电——13955609468、5350019张斌 诚实守信、价格最优惠,您的满意是我们最大地追求!安庆市开发区天宝教师楼105号QQ1356093996 .让实惠真正回馈于广大装修消费者!!
回复 支持 反对

使用道具 举报

0

收听

1

听众

116

帖子

未认证商家

注册时间
2014-4-16
精华
0
QQ
发表于 2015-3-4 09:00:23 | 显示全部楼层
金博供暖,给你舒适的家{:soso_e100:},地暖,墙暖,中央空调需要的可以联系  18154060148  {:soso_e100:}
博世锅炉、开利中央空调总代理。
地址:天柱山东路润城尚郡大门口(凯旋尊邸正对面)
电话:0556-5286588
回复 支持 反对

使用道具 举报

0

收听

5

听众

1574

帖子

未认证商家

注册时间
2007-5-31
精华
0
发表于 2015-3-4 10:11:43 | 显示全部楼层
恒亮装饰欢迎你~~~~
       老房子装修我们还是很有经验的。
装修格言:踏踏实实做人 认认真真做事
联系人:   胡广峰   电话: 13063275823    5191201    QQ:534679318
回复 支持 反对

使用道具 举报

0

收听

2

听众

229

帖子

认证商家

注册时间
2013-12-10
精华
0
发表于 2015-3-4 11:22:10 | 显示全部楼层
旧房翻新价格都不便宜,首先那些瓷砖什么的要拆掉,这些需要不少的人工,具体的怎么设计还要去房子看,那些墙体能动,你自己需要那些功能,都要现场沟通的,装修没那么容易的
回复 支持 反对

使用道具 举报

0

收听

1

听众

99

帖子

未认证商家

注册时间
2013-7-28
精华
0
QQ
发表于 2015-3-4 11:43:03 | 显示全部楼层
您好!楼主,您的老房子改造产生的费用可比新房装修费用要多,这也是您头痛的事情把!您可要多找几家装修公司多比较,心里有底一点。  介绍一下我自己,我是安庆大维装饰公司的家装顾问徐青,您现在有印象想了解装修,那天不妨碍您工作可以联系我们上门给您量个房的话。(电话:15212911458      QQ:1148414262)
我们公司去年在绿地、华茂1958、大发、等各个小区,都有在建工地和快完工的施工工地。您哪天方便或空闲我们带您去我们的工地看看,公司也有各个小区的部分户型方案以及效果图可一对一的和您讲解。
公司地址:迎江区湖心中路菱湖牌坊隔壁(正奇家居馆二楼  大维装饰公司  ) 交通指挥中心斜对面
回复 支持 反对

使用道具 举报

2

收听

24

听众

1951

帖子

E粉明星

注册时间
2010-8-8
精华
0
发表于 2015-3-4 12:22:33 | 显示全部楼层
1、把方向(东西南北)标注一下
2、楼主应该在一楼  请标注所有有可能开入户门的位置
3、一楼的墙体基本没有拆除的可能性 开一个门洞的成本都很高
4、客厅窗前的院子是独家享受么  可以完成洗晒功能么
回复 支持 反对

使用道具 举报

3

收听

1

听众

34

帖子

未认证商家

注册时间
2013-3-4
精华
0
发表于 2015-3-4 12:43:04 | 显示全部楼层
创馨装饰设计工作室欢迎咨询QQ:1758552240
回复 支持 反对

使用道具 举报

0

收听

5

听众

2080

帖子

E粉明星

注册时间
2008-9-17
精华
2
 楼主| 发表于 2015-3-4 13:12:15 | 显示全部楼层
竞叫战士 发表于 2015-3-4 12:22
1、把方向(东西南北)标注一下
2、楼主应该在一楼  请标注所有有可能开入户门的位置
3、一楼的墙体基本 ...

谢谢你的回答,图的上面是南。我家在二楼。院子单独使用的,门就是那样。
请问一下开门洞成本多高·?

点评

老房子没有剪力墙,都是砖混结构的。现在的建筑取消了砖混结构,都是框架、框剪结构。  发表于 2015-3-5 10:30
要是碰到剪力墙 也是无奈  发表于 2015-3-4 13:29
静若瘫痪``动若癫痫``
回复 支持 反对

使用道具 举报

2

收听

24

听众

1951

帖子

E粉明星

注册时间
2010-8-8
精华
0
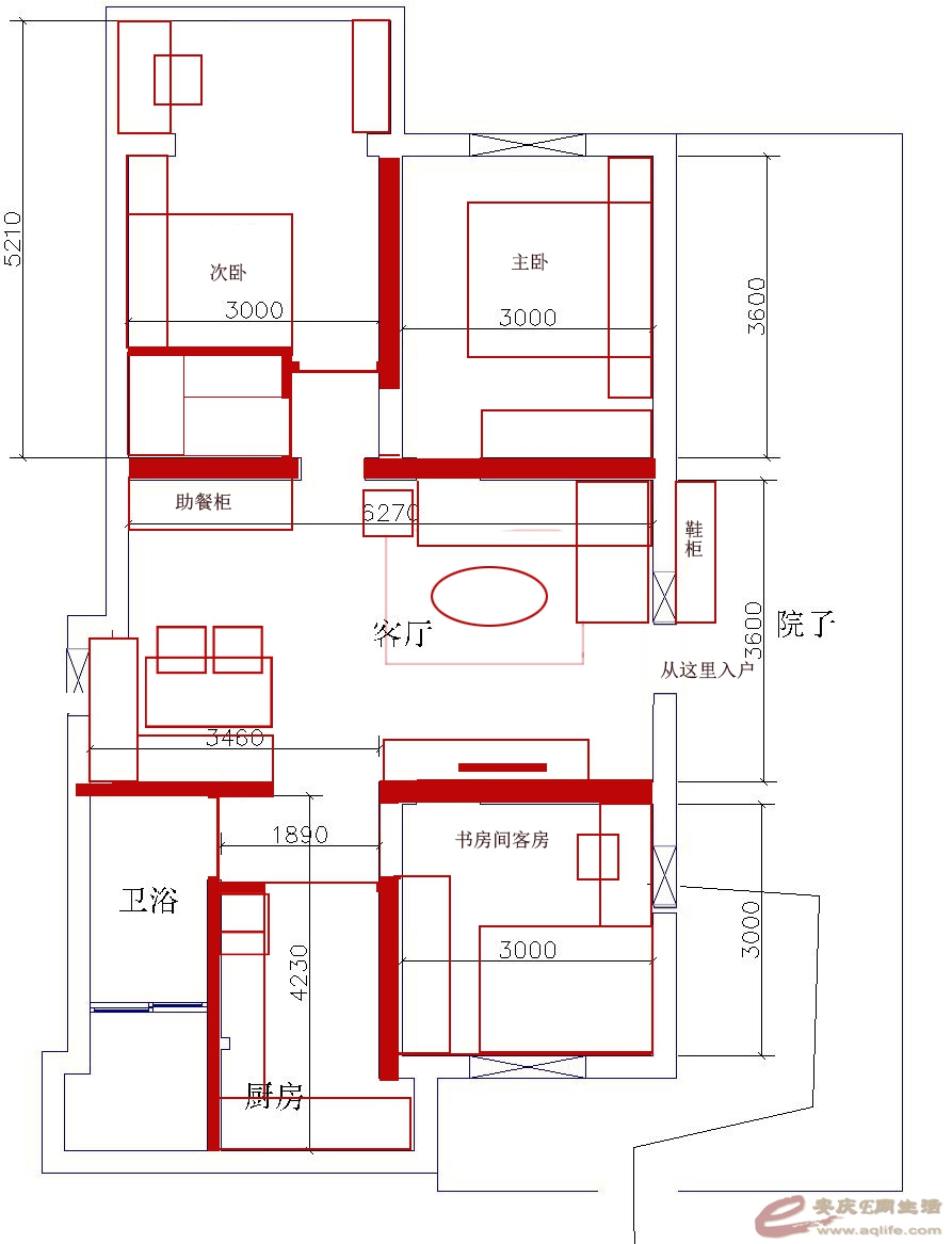
发表于 2015-3-4 13:18:28 | 显示全部楼层
本帖最后由 竞叫战士 于 2015-3-4 13:28 编辑

011.jpg
回复 支持 反对

使用道具 举报

0

收听

5

听众

2080

帖子

E粉明星

注册时间
2008-9-17
精华
2
 楼主| 发表于 2015-3-4 13:38:06 | 显示全部楼层

非常感谢你···两种方案都非常棒,请你是做什么的?有联系方式吗?我以后有需要可能会找你··

点评

我是体育教师 有需要就在这里联系  发表于 2015-3-4 15:13
静若瘫痪``动若癫痫``
回复 支持 反对

使用道具 举报

1

收听

4

听众

605

帖子

未认证商家

注册时间
2010-8-26
精华
0
QQ
发表于 2015-3-4 14:19:27 | 显示全部楼层
北京阔达装饰安庆分公司欢迎您   电话0556-5570733
标准工程     一就不同
地址:棋盘山路与沿江路交叉口1-2号门面  
电话:5570733
回复 支持 反对

使用道具 举报

2

收听

24

听众

1951

帖子

E粉明星

注册时间
2010-8-8
精华
0
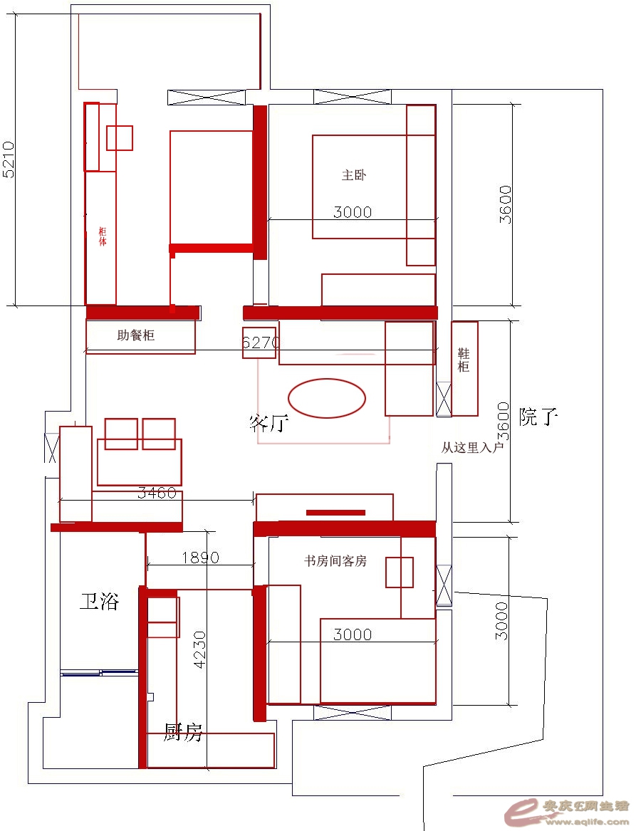
发表于 2015-3-4 15:11:59 | 显示全部楼层
花样小草 发表于 2015-3-4 13:38
非常感谢你···两种方案都非常棒,请你是做什么的?有联系方式吗?我以后有需要可能会找你··

如果介意厨房门对上次卧门:

009.jpg

回复 支持 反对

使用道具 举报

0

收听

5

听众

2080

帖子

E粉明星

注册时间
2008-9-17
精华
2
 楼主| 发表于 2015-3-4 15:57:16 | 显示全部楼层
竞叫战士 发表于 2015-3-4 15:11
如果介意厨房门对上次卧门:

非常感谢你··体育老师现在都这么厉害了·?图片都保存了··以后作为参考···
静若瘫痪``动若癫痫``
回复 支持 反对

使用道具 举报

0

收听

2

听众

99

帖子

未认证商家

注册时间
2014-2-9
精华
0
发表于 2015-3-4 16:11:14 | 显示全部楼层
诺亚方舟装饰施工队自成立以来,一直秉承“质量第一、信誉至上”的经营理念,通过服务创新,来满足我们所服务的客户潜在需求;通过技术创新来改变原始施工模式;通过工艺创新来提高施工质量,通过不断创新的经营思路,使我们逐步走向规范化、精致化、流程化、科学化。
面对快速发展的装饰行业,我们将继往开来,发扬“与时俱进,追求卓越”的元隆精神,凭借优质的工程质量、完善的服务体系,以市场化、多元化的经营理念开拓发展,创造出更加辉煌灿烂的明天
设计施工一体化服务  业务电话:15695563763   QQ:2239561047
回复 支持 反对

使用道具 举报

1

收听

1

听众

447

帖子

未认证商家

注册时间
2013-5-7
精华
0
QQ
发表于 2015-3-4 16:59:15 | 显示全部楼层
e网高手很多,楼主会找到自己想要的答案的,也可以找装饰公司多多咨询一下
尚美尚家冷暖工程有限公司
专业做地暖、中央空调、中央净水等等舒适家居系统
业务联系小邱:18355606187
回复 支持 反对

使用道具 举报

0

收听

1

听众

264

帖子

未认证商家

注册时间
2014-3-20
精华
0
QQ
发表于 2015-3-4 19:21:02 | 显示全部楼层
业主你好,我们是安庆明岳装饰,集木工,瓦工,水电工,油漆工,电焊工,砸墙,运渣于一体的一站式的装修服务,前期我们将免费量房,设计图纸,材料清单,精湛的施工技术,良好的施工素质,一流的科学管理,为您打造一个舒适的家。 联系人; 周师傅  联系电话; 13645564629    18055695575
回复 支持 反对

使用道具 举报

头像被屏蔽

3

收听

1

听众

12

帖子

禁止访问

注册时间
2015-3-4
精华
0
发表于 2015-3-5 09:57:32 | 显示全部楼层
提示: 作者被禁止或删除 内容自动屏蔽
回复 支持 反对

使用道具 举报

0

收听

1

听众

264

帖子

未认证商家

注册时间
2014-3-20
精华
0
QQ
发表于 2015-3-5 21:22:05 | 显示全部楼层
业主你好,我们是安庆明岳装饰,集木工,瓦工,水电工,油漆工,电焊工,砸墙,运渣于一体的一站式的装修服务,前期我们将免费量房,设计图纸,材料清单,精湛的施工技术,良好的施工素质,一流的科学管理,为您打造一个舒适的家。 联系人; 周师傅  联系电话; 13645564629    18055695575
回复 支持 反对

使用道具 举报

0

收听

0

听众

4

帖子

E粉新人

注册时间
2015-3-2
精华
0
发表于 2015-3-5 22:35:30 www.aqlife.com | 显示全部楼层
理想是美好的,现实是残酷的,看房子得看构造。有些墙是不能拆的
回复 支持 反对

使用道具 举报

3

收听

12

听众

2040

帖子

认证商家

注册时间
2009-5-5
精华
0
发表于 2015-3-6 08:24:30 | 显示全部楼层
热烈欢迎楼主参加3月14号上午团购会!
地址:一店:光彩四期E区13栋56号 服务热线:5309299;二店:光彩博览中心2楼37号电话:5299809
回复 支持 反对

使用道具 举报

您需要登录后才可以回帖 登录 | 注册

本版积分规则

联系合作|手机版|手机APP|Archiver|

GMT+8, 2025-12-10 20:49 Powered by Discuz! X3.4

安庆E网生活网站 © 2001-2013 Comsenz Inc. ( 皖ICP备05012696号 )

QQ

安庆瑞易文化 地址:华茂1958-C7栋 联系电话:0556-5306667 联系邮箱:17779721@qq.com 互联网违法和不良信息举报电话和邮箱:0556-5306667 17779721@qq.com

皖公网安备 34080002000101号

    
快速回复 返回顶部 返回列表