安庆E网

搜索
查看: 21820|回复: 40

[装修公司] [装修日记] 格林小镇里的海精灵

  [复制链接]

4

收听

2

听众

1414

帖子

未认证商家

注册时间
2011-5-4
精华
0
QQ
发表于 2015-3-11 09:57:55 | 显示全部楼层 |阅读模式
本帖最后由 yaya6287 于 2016-9-27 16:29 编辑


第一次写装修日记,如有不足请多包涵啦~~~{:soso_e112:}先说说买房那些事吧。
      O(∩_∩)O~买房那是在2013年7月份边上,楼主和楼主老公也谈了4年的时间了,家里催着结婚,结婚就必须要买房呀~~~那段时间我们就四处跑,主要集中在东部新城,因为楼主家在西门,深受石化厂的毒害,就想买房离得远远的~~~第一个去的是书香一品,可惜那时候已经没有小点的户型,都是120平米以上的,没办法没有银子就没订成。接着看了东方天韵,凯旋尊邸~~楼层都太高,觉得高处不胜寒那~~~往绿地那边跑,发现一个小区,宜海格林镇,楼层都不高,就是楼盘不靠马路,价格在安庆算比较低的,性价比比较高,在老爹的促成下,2013年7月底订了格林镇的16楼,订于2014年底交房。当时连样板间都没看就这样订了。








11 (4).jpg
青年装饰
地址:江畔尚城大门西侧
联系电话:18297709288   QQ:641125232
回复

使用道具 举报

0

收听

2

听众

236

帖子

未认证商家

注册时间
2008-11-9
精华
0
QQ
发表于 2015-3-11 10:03:09 | 显示全部楼层
{:soso_e100:}{:soso_e100:}{:soso_e100:}
诚实做人、认真做事!!!相信我们会做得更好!!!
电话:0556-5192480
手机:13696626909
qq:36478946
回复 支持 反对

使用道具 举报

4

收听

2

听众

1414

帖子

未认证商家

注册时间
2011-5-4
精华
0
QQ
 楼主| 发表于 2015-3-11 10:07:18 | 显示全部楼层
本帖最后由 yaya6287 于 2015-3-11 10:24 编辑

    接下来就是漫长的等待过程~~很多小区都晚交房,格林镇还是可以的,按时交房~~交房的时候跑了3趟,不是这个没带就是那个没带,呵呵,终于交房啦,开发商还给了工具箱验房用的,大体没什么太大问题,窗子滑道,厨房那锁锁不起来,阳台楼顶有水迹,把装潢钥匙丢了把给物业,修理下咯~~因为有房子住,没有太急着装潢咯~~ ~~
上图片,因为是16楼,在小区中间地方,视线还是可以的~~就是没什么景色,呵呵~~阳台比较暗,因为大概开发商考虑安全等问题,把我们上面几层的都封起来了,省的我们自己封了~~


20150310_132717_meitu_1.jpg
20150310_132721_meitu_2.jpg
20150310_132724_meitu_3.jpg
20150115_123710.jpg
IMG_0522_meitu_6.jpg
青年装饰
地址:江畔尚城大门西侧
联系电话:18297709288   QQ:641125232
回复 支持 反对

使用道具 举报

4

收听

2

听众

1414

帖子

未认证商家

注册时间
2011-5-4
精华
0
QQ
 楼主| 发表于 2015-3-11 10:16:03 | 显示全部楼层
上两张小区大门,觉得大门还可以,就是格林镇三个大字太反光了~~

IMG_0533_meitu_4.jpg
IMG_0534_meitu_5.jpg
青年装饰
地址:江畔尚城大门西侧
联系电话:18297709288   QQ:641125232
回复 支持 反对

使用道具 举报

4

收听

2

听众

1414

帖子

未认证商家

注册时间
2011-5-4
精华
0
QQ
 楼主| 发表于 2015-3-11 10:45:08 | 显示全部楼层
本帖最后由 yaya6287 于 2015-3-11 10:54 编辑

进入正题,开始装修啦~~
    区:格林镇
建筑面积:113.98平米(本来签合同是114.5平米的,交房时还少了一点,呵呵)
装修预算:11万(不含家电,纯装修)
装修公司:安庆青年装饰
装修风格:地中海
本人比较喜欢大海,蜜月都是去的青岛,那是第一次见到大海,真的很广阔,看着心情就很舒畅~~


青年装饰
地址:江畔尚城大门西侧
联系电话:18297709288   QQ:641125232
回复 支持 反对

使用道具 举报

4

收听

2

听众

1414

帖子

未认证商家

注册时间
2011-5-4
精华
0
QQ
 楼主| 发表于 2015-3-11 10:56:32 | 显示全部楼层
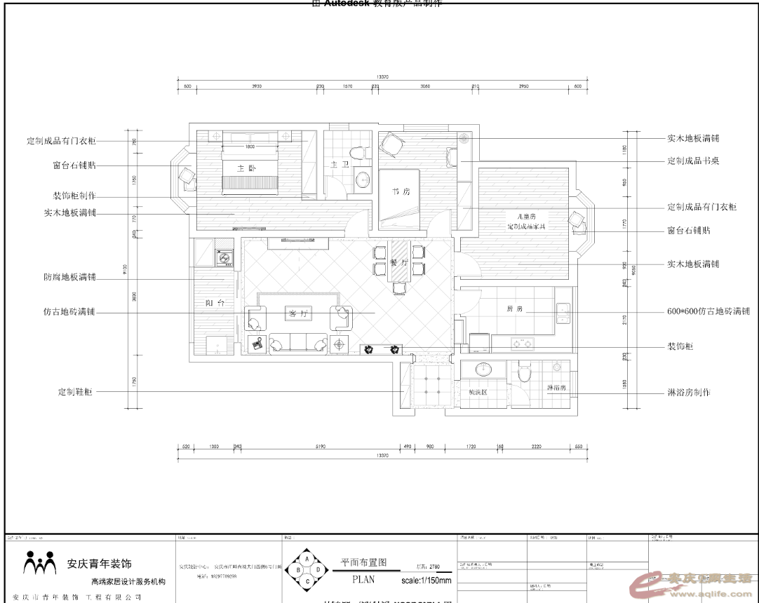
本帖最后由 yaya6287 于 2015-3-11 11:20 编辑

上个平面图和效果图~~

20150311111001.png                          3_meitu_25.jpg                   2_meitu_24.jpg                 1_meitu_23.jpg
青年装饰
地址:江畔尚城大门西侧
联系电话:18297709288   QQ:641125232
回复 支持 反对

使用道具 举报

0

收听

5

听众

401

帖子

未认证商家

注册时间
2013-1-9
精华
1
QQ
发表于 2015-3-11 11:01:56 | 显示全部楼层
您好,我是广东星艺装饰集团(安庆分公司)的设计师小周,有装修的需要可以跟我聊系,有装修问题可以咨询我!QQ:1115924565
设计源于生活,生活是设计出来的!
回复 支持 反对

使用道具 举报

4

收听

2

听众

1414

帖子

未认证商家

注册时间
2011-5-4
精华
0
QQ
 楼主| 发表于 2015-3-11 11:14:00 | 显示全部楼层
星艺装饰小周 发表于 2015-3-11 11:01
您好,我是广东星艺装饰集团(安庆分公司)的设计师小周,有装修的需要可以跟我聊系,有装修问题可以咨询我 ...

谢谢,不用了,呵呵
青年装饰
地址:江畔尚城大门西侧
联系电话:18297709288   QQ:641125232
回复 支持 反对

使用道具 举报

0

收听

1

听众

99

帖子

未认证商家

注册时间
2013-7-28
精华
0
QQ
发表于 2015-3-11 12:20:20 | 显示全部楼层
效果图很漂亮
回复 支持 反对

使用道具 举报

4

收听

2

听众

1414

帖子

未认证商家

注册时间
2011-5-4
精华
0
QQ
 楼主| 发表于 2015-3-11 12:28:24 | 显示全部楼层

谢谢哈~~
青年装饰
地址:江畔尚城大门西侧
联系电话:18297709288   QQ:641125232
回复 支持 反对

使用道具 举报

4

收听

2

听众

1414

帖子

未认证商家

注册时间
2011-5-4
精华
0
QQ
 楼主| 发表于 2015-3-11 12:50:34 | 显示全部楼层
接下来就是开工了,比较忙,晚点传~
青年装饰
地址:江畔尚城大门西侧
联系电话:18297709288   QQ:641125232
回复 支持 反对

使用道具 举报

0

收听

1

听众

43

帖子

未认证商家

注册时间
2014-6-4
精华
0
QQ
发表于 2015-3-11 14:18:41 | 显示全部楼层
的确,开工大吉。 我是双木林硅藻泥的小刘。  喜欢海  哪肯定会喜欢硅藻泥 它是海的一部分,如想了解 电话 18654069376 qq 517881326
地址;南翔光彩国际家居博览中心2楼33号
电话;18654068376
0556-888168
回复 支持 反对

使用道具 举报

0

收听

1

听众

335

帖子

未认证商家

注册时间
2014-3-24
精华
1
QQ
发表于 2015-3-11 16:03:08 | 显示全部楼层
我是A7的。恭祝楼主装修顺利啊!{:soso_e192:}
展厅地址:舒怡家居精品馆2楼
销售热线:568 1918/139 6693 3753/189 0556 6920
淘宝搜索:大米橱柜
回复 支持 反对

使用道具 举报

4

收听

2

听众

1414

帖子

未认证商家

注册时间
2011-5-4
精华
0
QQ
 楼主| 发表于 2015-3-11 16:24:38 | 显示全部楼层
大米橱柜 发表于 2015-3-11 16:03
我是A7的。恭祝楼主装修顺利啊!

我也是~~几楼啊
青年装饰
地址:江畔尚城大门西侧
联系电话:18297709288   QQ:641125232
回复 支持 反对

使用道具 举报

9

收听

7

听众

1349

帖子

认证商家

注册时间
2011-11-6
精华
0
发表于 2015-3-11 19:18:00 | 显示全部楼层
3月14日E网团购会欢迎您参加,请到南翔光彩国际家居博览中心南厅一层61号锦致橱柜领取入场卷。
展厅地址:光彩国际家居博览中心一层61号
销售热线:8882250
客服热线:8882251
品鉴热线:13905569197   qq:2502490242
做适合中国人的厨房,您的满意是我们最高的荣誉[
回复 支持 反对

使用道具 举报

头像被屏蔽

0

收听

1

听众

42

帖子

禁止访问

注册时间
2013-12-5
精华
0
发表于 2015-3-11 20:05:09 | 显示全部楼层
提示: 作者被禁止或删除 内容自动屏蔽
回复 支持 反对

使用道具 举报

1

收听

1

听众

962

帖子

认证商家

注册时间
2010-10-6
精华
0
发表于 2015-3-12 09:37:31 | 显示全部楼层
{:soso_e181:}祝装修顺利!欢迎参加3月14日上午8点30分的E网大型团购活动!
1:旗舰店舒怡国际家居城2楼B区8028号

电话:13966907991
回复 支持 反对

使用道具 举报

4

收听

2

听众

1414

帖子

未认证商家

注册时间
2011-5-4
精华
0
QQ
 楼主| 发表于 2015-3-12 10:46:15 | 显示全部楼层
我们可以把格林镇的购房合同晒给大家看看!希望大家看看!
青年装饰
地址:江畔尚城大门西侧
联系电话:18297709288   QQ:641125232
回复 支持 反对

使用道具 举报

0

收听

1

听众

335

帖子

未认证商家

注册时间
2014-3-24
精华
1
QQ
发表于 2015-3-12 15:07:13 | 显示全部楼层

我2楼的。下个月动工了。{:soso_e181:}
展厅地址:舒怡家居精品馆2楼
销售热线:568 1918/139 6693 3753/189 0556 6920
淘宝搜索:大米橱柜
回复 支持 反对

使用道具 举报

0

收听

1

听众

183

帖子

未认证商家

注册时间
2015-1-28
精华
0
QQ
发表于 2015-3-13 07:30:14 | 显示全部楼层
yaya6287 发表于 2015-3-12 10:46
我们可以把格林镇的购房合同晒给大家看看!希望大家看看!

同行,顶顶,希望大家以后互相学习,我们在格林镇有现场办公室和展厅,相信你早已知道了吧,不过由业主跟我说过你们哦,希望大家互相交流,共同进步,同行不是敌人哦!同时恭祝装修快乐!生意兴隆!
爱ta就给ta . 馨福家
馨福家装饰--与您共同打造温馨幸福之家
电话:0556-5533123
回复 支持 反对

使用道具 举报

3

收听

12

听众

2040

帖子

认证商家

注册时间
2009-5-5
精华
0
发表于 2015-3-13 07:41:20 | 显示全部楼层
本帖最后由 安庆久盛地板 于 2015-3-13 07:46 编辑

请问楼主地板了没有?
地址:一店:光彩四期E区13栋56号 服务热线:5309299;二店:光彩博览中心2楼37号电话:5299809
回复 支持 反对

使用道具 举报

0

收听

1

听众

99

帖子

未认证商家

注册时间
2013-7-28
精华
0
QQ
发表于 2015-3-13 09:18:36 | 显示全部楼层
我好像认识你  你以前在兴业银行办兴业贷款的吗?
回复 支持 反对

使用道具 举报

4

收听

2

听众

1414

帖子

未认证商家

注册时间
2011-5-4
精华
0
QQ
 楼主| 发表于 2015-3-13 10:16:52 | 显示全部楼层

咋啦?啥子意思
青年装饰
地址:江畔尚城大门西侧
联系电话:18297709288   QQ:641125232
回复 支持 反对

使用道具 举报

4

收听

2

听众

1414

帖子

未认证商家

注册时间
2011-5-4
精华
0
QQ
 楼主| 发表于 2015-3-13 10:17:37 | 显示全部楼层
你的背包 发表于 2015-3-13 09:18
我好像认识你  你以前在兴业银行办兴业贷款的吗?

没有,以前在担保公司的~~不过不做业务的~~
青年装饰
地址:江畔尚城大门西侧
联系电话:18297709288   QQ:641125232
回复 支持 反对

使用道具 举报

4

收听

2

听众

1414

帖子

未认证商家

注册时间
2011-5-4
精华
0
QQ
 楼主| 发表于 2015-3-13 10:18:10 | 显示全部楼层
安庆久盛地板 发表于 2015-3-13 07:41
请问楼主地板了没有?

暂时没有,还早呢~~
青年装饰
地址:江畔尚城大门西侧
联系电话:18297709288   QQ:641125232
回复 支持 反对

使用道具 举报

您需要登录后才可以回帖 登录 | 注册

本版积分规则

联系合作|手机版|手机APP|Archiver|

GMT+8, 2025-12-10 21:55 Powered by Discuz! X3.4

安庆E网生活网站 © 2001-2013 Comsenz Inc. ( 皖ICP备05012696号 )

QQ

安庆瑞易文化 地址:华茂1958-C7栋 联系电话:0556-5306667 联系邮箱:17779721@qq.com 互联网违法和不良信息举报电话和邮箱:0556-5306667 17779721@qq.com

皖公网安备 34080002000101号

    
快速回复 返回顶部 返回列表