安庆E网

搜索
查看: 26979|回复: 72

[装修招标] 诚心求装修,全包或半包。

  [复制链接]

0

收听

1

听众

11

帖子

E粉新人

注册时间
2015-3-18
精华
0
发表于 2015-3-19 14:34:30 | 显示全部楼层 |阅读模式
本帖最后由 笑三少的春天 于 2015-3-19 14:35 编辑

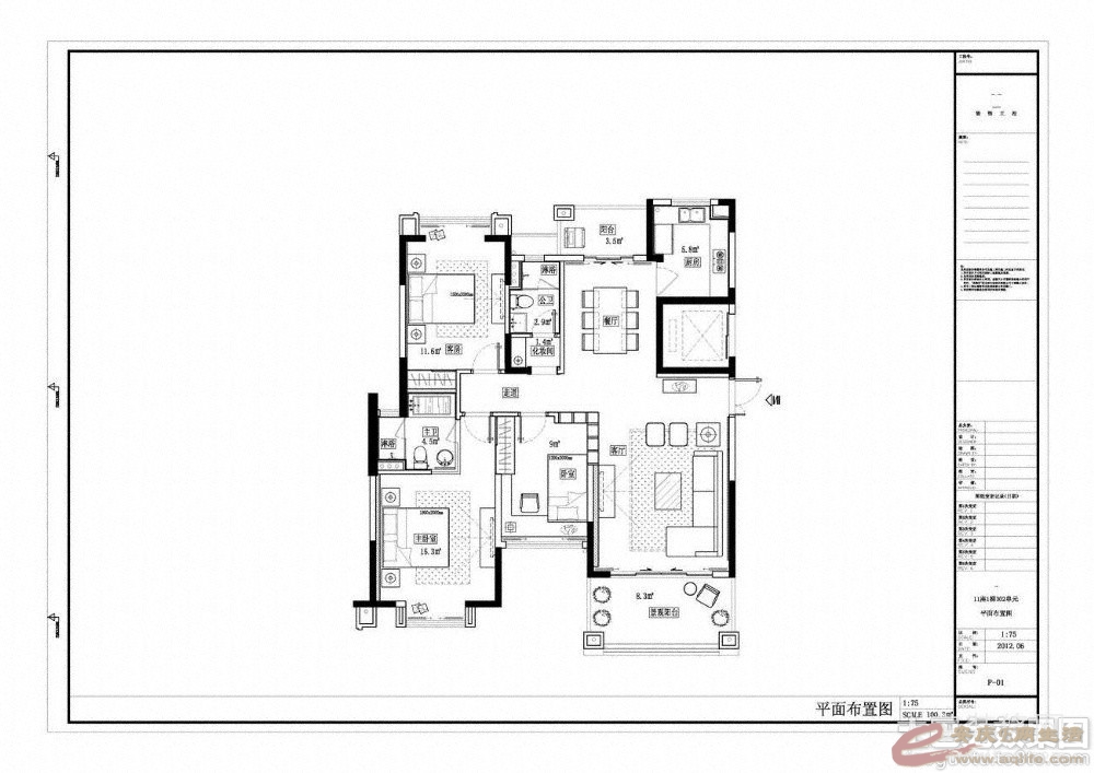
1.120平米多层三室两厅两卫房子,即南边客厅+卧室+卧室,北面厨房+卫生间+卧室的传统户型;
2.水电需用一线品牌,油漆多乐士,其余和一般用的差不多即可。没有拆墙、做墙的活;除客厅吊顶外没有木匠活;
3.其余没有要求,您是大公司也好,个体户也好,只要做人诚心,做事诚实。均期待与你合作。全包或半包的报价、联系方式及能给予的图形请发邮件至:2014950534@qq.com。具体电话联系方式,小生工作较忙,暂不敢透露。请理解!

1.jpg
回复

使用道具 举报

0

收听

0

听众

3

帖子

未认证商家

注册时间
2015-3-14
精华
0
QQ
发表于 2015-3-19 14:58:08 | 显示全部楼层
你好,{:soso_e100:}灿煌装饰给您最贴心的服务,客服电话13655567720
放下要强的性格,过自己闲适的生活。
回复 支持 反对

使用道具 举报

1

收听

9

听众

5117

帖子

E粉明星

注册时间
2009-11-24
精华
0

室内装饰设计QQ243160571

QQ
发表于 2015-3-19 15:14:49 | 显示全部楼层
楼主,您好,我是安庆东盛装饰,我们可以约个时间去现场量房,然后再根据你的需求做好方案及预算,诚心对待每一位业主,可以加我QQ,243160571。
东盛装饰  您身边的装修专家!
地址:光彩四期烩街公寓6楼(光彩大舞台隔壁)
电话:13625565176   5200845
回复 支持 反对

使用道具 举报

1

收听

9

听众

5117

帖子

E粉明星

注册时间
2009-11-24
精华
0

室内装饰设计QQ243160571

QQ
发表于 2015-3-19 15:15:11 | 显示全部楼层
我的手机13625565176,汪设计师
东盛装饰  您身边的装修专家!
地址:光彩四期烩街公寓6楼(光彩大舞台隔壁)
电话:13625565176   5200845
回复 支持 反对

使用道具 举报

0

收听

1

听众

109

帖子

未认证商家

注册时间
2012-5-9
精华
0
QQ
发表于 2015-3-19 15:28:21 | 显示全部楼层
您好,楼主!我是安庆万家装饰公司,你那图纸上没有尺寸。可以约个时间去现场量房,然后再根据你的需求做好方案及预算!联系电话:13855636817 QQ:284233356
安庆恒美万家装饰有限公司            
电话:13855636817  QQ:284233356
地址:绿地写字楼(1402)
回复 支持 反对

使用道具 举报

头像被屏蔽

0

收听

1

听众

175

帖子

禁止发言

注册时间
2014-8-7
精华
0
QQ
发表于 2015-3-19 16:06:08 | 显示全部楼层
提示: 作者被禁止或删除 内容自动屏蔽
签名被屏蔽
回复 支持 反对

使用道具 举报

6

收听

7

听众

660

帖子

未认证商家

注册时间
2012-9-16
精华
1
QQ
发表于 2015-3-19 16:07:08 | 显示全部楼层
楼主,您好!我是百度家装小应。有时间可以到我们百度家装坐坐,有什么家装咨询请电:18055654578
小应 18055654578  5670195
QQ:1123106629
私家定制,打造绿色温馨环保家园!
[/c
回复 支持 反对

使用道具 举报

0

收听

1

听众

359

帖子

未认证商家

注册时间
2007-5-30
精华
0

QQ
发表于 2015-3-19 16:12:23 | 显示全部楼层
安庆唯诺装饰公司是国家叁级企业资质,在安庆广告投入的很少,一直靠着优良的口碑成长和发展。欢迎您有空亲往或来电咨询。
公司地址:安庆人民路296号(金凤凰大酒店对面)二楼
咨询电话:5558618/15922368108
公司地址:安庆市人民路296号(金凤凰大酒店对面)二楼
咨询电话:0556-5558618     18956901313
回复 支持 反对

使用道具 举报

0

收听

2

听众

99

帖子

未认证商家

注册时间
2014-2-9
精华
0
发表于 2015-3-19 17:01:43 | 显示全部楼层
汉方整体家装 工装
    本装饰设计施工团队有专业施工队伍,多年现场施工经验,专业设计经验!在外地有十余年装饰设计,施工实践!团队中木,瓦,油,水电,工种齐全!质量保证!价格公道!从事过家庭,酒店,别墅,家装工装各类装饰业务。设计,施工,管理,整体服务!装饰承包施工类型:包清工  【半包  全包(免费设计)】
    整体效果-----现场施工----造价控制----质量监督----施工结束,设计全程跟踪!您的满意是我们最大的成就!
    设计施工一体化服务  
    业务电话:15695563763   QQ:2239561047
回复 支持 反对

使用道具 举报

0

收听

9

听众

742

帖子

未认证商家

注册时间
2010-5-19
精华
0
发表于 2015-3-19 19:05:10 | 显示全部楼层
顶顶,宏达装饰欢迎您有空来坐坐。{:soso_e160:}电话:13955683080吴经理。
公司地址:新河路与文苑路交汇处新河湾商业A#
电话:0556-5197333  
监督电话:13955683080
回复 支持 反对

使用道具 举报

9

收听

7

听众

1349

帖子

认证商家

注册时间
2011-11-6
精华
0
发表于 2015-3-19 20:20:02 | 显示全部楼层
锦致橱柜欢迎您抽空来坐坐。联系电话:8882250     13905569197    13966931992
展厅地址:光彩国际家居博览中心一层61号
销售热线:8882250
客服热线:8882251
品鉴热线:13905569197   qq:2502490242
做适合中国人的厨房,您的满意是我们最高的荣誉[
回复 支持 反对

使用道具 举报

3

收听

12

听众

2040

帖子

认证商家

注册时间
2009-5-5
精华
0
发表于 2015-3-20 08:14:02 | 显示全部楼层
欢迎楼主参加久盛地板3月22号下午团购惠!报名已超50户,厂家对这次活动特别重视,当天派人来现场给优惠价。
地址:一店:光彩四期E区13栋56号 服务热线:5309299;二店:光彩博览中心2楼37号电话:5299809
回复 支持 反对

使用道具 举报

0

收听

1

听众

47

帖子

认证商家

注册时间
2015-3-14
精华
0
发表于 2015-3-20 08:58:52 | 显示全部楼层
楼主您好,我是大维装饰公司的汪怡萍,我们公司主打半包,但也做全包,在装修的基础上,半包适合有双休的客户,可以自己选购材料,自己也放心。全包呢,平时比较忙,没有什么假期的,考虑全包可能会好点,省时省力省心。而且,我们最注重的是工地,诚信为本,服务好客户。如果有空,我们也可以带您看看我们的工地。如果有需要可以打我电话:15855555474   QQ:1054497054
   公司地址:正奇家居馆二楼右手边(交通指挥中心对面 菱湖牌坊旁边)
回复 支持 反对

使用道具 举报

0

收听

3

听众

451

帖子

未认证商家

注册时间
2011-9-20
精华
0
QQ
发表于 2015-3-20 09:06:07 | 显示全部楼层
【惠民装饰工程队】专业承接各种装饰、装修以及维修工程,单包双包皆可;有意向的朋友请致电——13955609468、5350019张斌 诚实守信、价格最优惠,您的满意是我们最大地追求!安庆市开发区天宝教师楼105号QQ1356093996 .让实惠真正回馈于广大装修消费者!
回复 支持 反对

使用道具 举报

7

收听

3

听众

130

帖子

未认证商家

注册时间
2013-6-24
精华
0
发表于 2015-3-20 09:25:12 | 显示全部楼层
楼主上午好,我们是安徽名门装饰。名门装饰,完美主义!一个温馨家庭的装修{:soso_e176:}一定离不开好几家装饰公司的参考比较。

我们以精品装修工程赢客户口碑!我们愿意纳入你的参考范围内。如果有需要,可以直接打我们 朱总监电话:15375466955。{:soso_e100:}

有任何装修咨询都为你一一解答!

回复 支持 反对

使用道具 举报

0

收听

3

听众

68

帖子

认证商家

注册时间
2015-3-9
精华
0
QQ
发表于 2015-3-20 10:06:53 | 显示全部楼层
安庆馨忆家装饰有限公司 是一家集设计、施工、服务为一体的装饰有限公司。秉承“认真做事、用心为人”的服务理念,倾力为宜城广大业主打造理想的家居生活品质。公司定期有样板间征集活动,详情请进店面咨询!
安庆馨忆家装饰有限公司            
电话:15856548786    5059268
QQ:3217881925
地址:皖江大道绿地写字楼2-1503室                                          

用 品 质 缔 造 美 好 生 活
回复 支持 反对

使用道具 举报

0

收听

1

听众

483

帖子

认证商家

注册时间
2015-2-26
精华
0
QQ
发表于 2015-3-20 10:41:01 | 显示全部楼层
青年装饰欢迎您,有空来坐坐。青年装饰--保姆式家装倡导者。
青年装饰
地址:安庆江畔尚城大门西侧人民东路144号
联系电话:18297709288
回复 支持 反对

使用道具 举报

0

收听

1

听众

42

帖子

未认证商家

注册时间
2015-3-17
精华
0
发表于 2015-3-22 10:06:37 | 显示全部楼层

净卫士硅藻泥希望可以为楼主创建一个健康美好家园提供到净化空气的本能帮助!
回复 支持 反对

使用道具 举报

6

收听

4

听众

921

帖子

认证商家

注册时间
2013-5-23
精华
0
QQ
发表于 2015-3-23 15:57:03 | 显示全部楼层
绿娃阳台门窗预祝楼主找到自己满意的装修公司
回复 支持 反对

使用道具 举报

0

收听

1

听众

11

帖子

E粉新人

注册时间
2015-3-18
精华
0
 楼主| 发表于 2015-3-23 17:12:30 | 显示全部楼层
谢谢各位的回复!暂时还在外地,等回安庆市一定登门拜访。
回复 支持 反对

使用道具 举报

3

收听

12

听众

2040

帖子

认证商家

注册时间
2009-5-5
精华
0
发表于 2015-3-23 17:23:52 | 显示全部楼层
期待您来久盛地板喝茶呗!
地址:一店:光彩四期E区13栋56号 服务热线:5309299;二店:光彩博览中心2楼37号电话:5299809
回复 支持 反对

使用道具 举报

0

收听

1

听众

183

帖子

未认证商家

注册时间
2015-1-28
精华
0
QQ
发表于 2015-3-23 19:25:09 | 显示全部楼层
爱ta就给ta . 馨福家
安庆馨福家装饰欢迎您!

公司自成立以来,一直以小区登点现场办公为出发点,以团购价、重质量、重服务赢得客户的好评,现在登点小区有:印象江南小区、青年新村小区,格林镇小区、碧桂园二期门面、余桥新村,欢迎您的咨询。前期我们免费量房、设计、预算。

电话:139-6660-5185,QQ:1280-250-148
爱ta就给ta . 馨福家
馨福家装饰--与您共同打造温馨幸福之家
电话:0556-5533123
回复 支持 反对

使用道具 举报

头像被屏蔽

0

收听

1

听众

37

帖子

禁止访问

注册时间
2013-4-10
精华
0
发表于 2015-3-24 09:30:10 | 显示全部楼层
提示: 作者被禁止或删除 内容自动屏蔽
回复 支持 反对

使用道具 举报

0

收听

4

听众

127

帖子

未认证商家

注册时间
2013-8-15
精华
0
QQ
发表于 2015-3-24 10:12:03 | 显示全部楼层


安庆嘉豪装饰欢迎您的咨询

电话18175338189,qq:2726046096
回复 支持 反对

使用道具 举报

0

收听

1

听众

183

帖子

未认证商家

注册时间
2015-1-28
精华
0
QQ
发表于 2015-3-24 20:06:14 | 显示全部楼层
爱ta就给ta . 馨福家
安庆馨福家装饰欢迎您!
公司自成立以来,一直以小区登点现场办公为出发点,以团购价、重质量、重服务赢得客户的好评,馨福家装饰奉行价格透明——主要服务于广大的中高端装修群体:使用材料环保——为您提供绿色的健康装修:四重服务保障,专业的设计团队,标准化施工管理,完善的服务流程,最大程序节省装修成本。现在登点小区有:印象江南小区、青年新村小区,格林镇小区、碧桂园二期门面、余桥新村,欢迎您的咨询。前期我们免费量房、设计、预算。

电话:139-6660-5185,QQ:1280-250-148
爱ta就给ta . 馨福家
馨福家装饰--与您共同打造温馨幸福之家
电话:0556-5533123
回复 支持 反对

使用道具 举报

您需要登录后才可以回帖 登录 | 注册

本版积分规则

联系合作|手机版|手机APP|Archiver|

GMT+8, 2025-12-10 19:26 Powered by Discuz! X3.4

安庆E网生活网站 © 2001-2013 Comsenz Inc. ( 皖ICP备05012696号 )

QQ

安庆瑞易文化 地址:华茂1958-C7栋 联系电话:0556-5306667 联系邮箱:17779721@qq.com 互联网违法和不良信息举报电话和邮箱:0556-5306667 17779721@qq.com

皖公网安备 34080002000101号

    
快速回复 返回顶部 返回列表