安庆E网

搜索
查看: 4197|回复: 1

[设计案列] 何敏室内设计工作室-彩印小区现代风

[复制链接]

0

收听

2

听众

107

帖子

认证商家

注册时间
2014-8-6
精华
0
发表于 2015-3-23 22:33:38 | 显示全部楼层 |阅读模式
本帖最后由 何工设计工作室 于 2015-3-23 23:48 编辑

工程地点:安庆市彩印小区面积:118平方
风格:现代美式
设计收费:25元/平方  工程造价:10W  联系方式:QQ:359808145 电话: 18055667977何 18055667978李
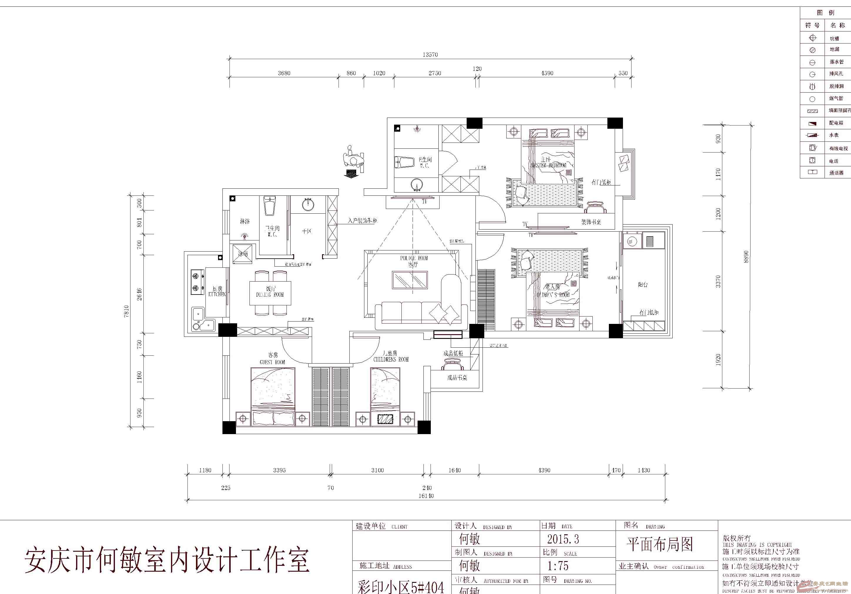
       设计说明:业主小夫妻带小孩带老人居住,家居三世同堂接到设计量房时室内墙体都一改造好,第一印象就是特别想把他房型来一大改造,因为看到业主自己想象的户型改造真是非常不合理.交流后业主主观不愿意动,没办法只能在业主改造好的房型上做装饰效果了,空间上只做了些小改动,入户把业主新砌的墙体拆去了加了一组实用性很强的鞋帽柜,将客房与小孩房的门洞改了方向,这地方主要考虑到气流流通再加上避免太多的房门对着客厅,把这两点跟业主交流后,业主轻松的接受了,原来北边阳台业主一定要做厨房,做为设计师从此处看实在是不好呀,厨房做为家里使用频繁的一个重要空间实在是太小了,但整体户型业主也已经是改造好了实在是没有办法再做更改了,那我们将冰箱放在餐厅同时把原公共卫生间里面淋浴处划出一小块放置了冰箱,再考虑到餐厅收纳空间我们又将餐厅与客房之间的墙体拆除做成了一组大的酒柜。这么改造后总算能够补充下厨房空间太小没有收纳的地方.原主卧室跟主卫生间很大但实用性差比如说大衣柜很好摆放,如果按照原房型我们将一组衣柜放在靠主卫生间墙那边,这样摆放只能放一个1.3米的小衣柜收纳大衣柜太小不好用,放在跟老人房隔壁的体上我们电视只能放在衣柜里这样对电视的散热是非常不好的,而且最重要是把床一放后,我们的床尾跟大衣柜中间只有五六十公分太挤了.所以最终设计我们是把原主卫生间改小将卫生间隔出的空间一边放了一组衣柜,两组衣柜加在一起共有2.6米长这样就增加我们的收纳空间,而且让我们的主卧室更加大了.综合以上都是我们的一些对于空间的改造。小年轻夫妻从色彩上两人都特别喜欢亮色彩的空间,结合业主喜爱设计上色彩用的比较跳跃。
       原始平面图

原始户型图

原始户型图

平面布局图

平面布局图


     何敏设计工作室力求打造的“第三种装修方式”是一种“设计+施工跟踪+后期配饰” 而不同于装饰公司以及“马路游击队”的全新装修方式!
工作室理念 1我们坚持收费设计,不做没有价值的设计。室内设计是一个复杂且环节众多的脑力劳动,构思和沟通时间较长,所以我们也不做几天就匆忙赶出来的设计,因为我们不是草率的应付您,而是对自己的设计作品负责,同时也是对您的设计费负责。
2设计是专业理论和创造思维的结晶,我们需要大量时间和精力投入到每个设计当中,我们不把设计当作量产的流水线制作,而是每个作品尽心尽力去雕琢。我们做设计的专业化和责任感,让越来越多的人了解认同我们的工作方式。  

我们与装饰公司的区别:
装饰公司:比较规范的管理,承诺质保,比较省心,“免费设计”这是装修公司最大的优点。但较高昂的半包费用,千篇一律流水线式的设计,与设计师沟涌中绝大部分时间都浪费在价格活动上面,最后因为造价的原因忽略装饰质量与效果,这点是永远不可调和的矛盾。因为设计师站在的角度是公司角度出发。最后设计就成为了牺牲品。
我们与“马路游击队”区别:
有很大一部分业主是之所选择最大原因归于较低的价格,或许是对装饰公司的不信任与高高在上的费用,这部分人会选择找朋友或邻居介绍干活好信誉好的施工队做“半包”或“散工”。无疑这种装修方式省钱,环保指标敏感的辅料还可以自己亲自去买,这样可以踏实放心。但同时,这种方式装修的业主对自己的家通常没有一个系统的设计思路,往往是套用邻居或朋友家的装饰样式,毫无设计效果而言。又或者本身对装修的想法很多,但就是不知道怎么整合到自己的家中。这里面有整体协调、取舍搭配的欠缺,有施工实现经验的欠缺,有材料采购渠道和经验的欠缺等,特别是整体协调和施工实现经验,对于非专业人士来说,仅凭手中的一些图片和几本杂志几乎是不可能做好的。
我们提倡的装修方式:针对上述两种装修方式的利弊,我们整合出一种更为科学更贴近需求的装修方式--收费设计+自找施工队(或由我们推荐)。我们的“收费设计”绝非是交了图纸工程开工了我们就拍屁股走人的“卖图纸式设计”,设计定稿到工程开工只是我们工作进程的1/3,接下来的“施工跟踪”+“后期配饰”才是您体验这种装修方式的开始……我们一对一式的服务就相当于您花很少的钱请了一位属于您的“私家设计师”……
我们的特色:
1、我们主要面对的是时尚、追求个性,对装修效果及生活品质有较高追求的客户群体;
2、我们要通过我们的努力,让客户真正参与并体会到建设自己小家的过程和乐趣;
3、我们主张用最环保最合适的材料而非昂贵的材料;
4、我们主张DIY;
5、我们有大量不同风格的家具及配饰的选购渠道供您选择; 
6、我们全程陪同但坚持不做施工;
7、我们与客户的沟通是贯穿整个设计、施工甚至入住后不限次数的,有别于装饰公司的那种两三次业务类的沟通(大部分都是在谈报价!);
8、我们定位我们的客户群,只做适合我们的客户,我们不像装饰公司进门拉住就是客户,我们只想把装饰公司的那种前期拉单的无效劳动集中到有效客户身上,给他们最好的服务!
我们的服务流程:
1、QQ或E-mail或电话等方式的前期沟通;期间您可以找一些图片给我们,让我们直观的了解您喜欢什么样的家;
2、约定时间量房,签订设计协议,交50% 设计定金。期间与您进一步阐述、沟通设计思想;
3、多次的各种方式的沟通,直至确定方案。绘制图纸。为业主编制施工材料单以及主材提供进度单。为业主推荐施工班组(业主需要的前提下)。交付图纸,收取50% 设计费;
4、水电瓦木油各工种的现场交底,确保每项工人完全领会,按图施工,并对工地的工艺材料把关。施工期间针对材料或工艺等疑难问题去现场解决;
5、主材陪同选购或详细、针对性的建议;
6、家具、配饰陪同选购或详细、针对性的建议;
7、辅助业主施工验收。
设计内容包括:
1、            空间平面规划布局设计;
2、空间墙、顶、地各立面深化方案设计;
3、空间色彩配制设计;
4、详细的施工图纸绘制,包括“原始结构图”、“改造结构图”、“平面布局图”、“天花吊顶图”、“特别造型详图”;
5、手绘透视图或电脑效果图(主要造型部分,不少于4张);
6、主材陪同选购或详细、针对性的建议;
7、软装饰设计及陪同选购或详细、针对性的建议;
8、家具陪同选购或详细、针对性的建议。




客厅

客厅

背景墙

背景墙

餐厅

餐厅
回复

使用道具 举报

0

收听

1

听众

14

帖子

未认证商家

注册时间
2015-3-26
精华
0
发表于 2015-3-26 13:25:06 | 显示全部楼层
本帖最后由 娜姐 于 2015-3-26 13:26 编辑

楼主你好,你家的地砖需要做美缝吗?需要的话,联系我。服务好,价格优!18255613528
亮万家瓷砖美缝专家
联系电话:18255613528
QQ:448607158
联系人:何女士
一次施工,终生享用!
回复 支持 反对

使用道具 举报

您需要登录后才可以回帖 登录 | 注册

本版积分规则

联系合作|手机版|手机APP|Archiver|

GMT+8, 2025-12-10 15:31 Powered by Discuz! X3.4

安庆E网生活网站 © 2001-2013 Comsenz Inc. ( 皖ICP备05012696号 )

QQ

安庆瑞易文化 地址:华茂1958-C7栋 联系电话:0556-5306667 联系邮箱:17779721@qq.com 互联网违法和不良信息举报电话和邮箱:0556-5306667 17779721@qq.com

皖公网安备 34080002000101号

    
快速回复 返回顶部 返回列表