安庆E网

搜索
查看: 3587|回复: 2

[设计交流] 浪漫地中海风情

[复制链接]

4

收听

2

听众

1414

帖子

未认证商家

注册时间
2011-5-4
精华
0
QQ
发表于 2015-3-25 13:20:40 | 显示全部楼层 |阅读模式
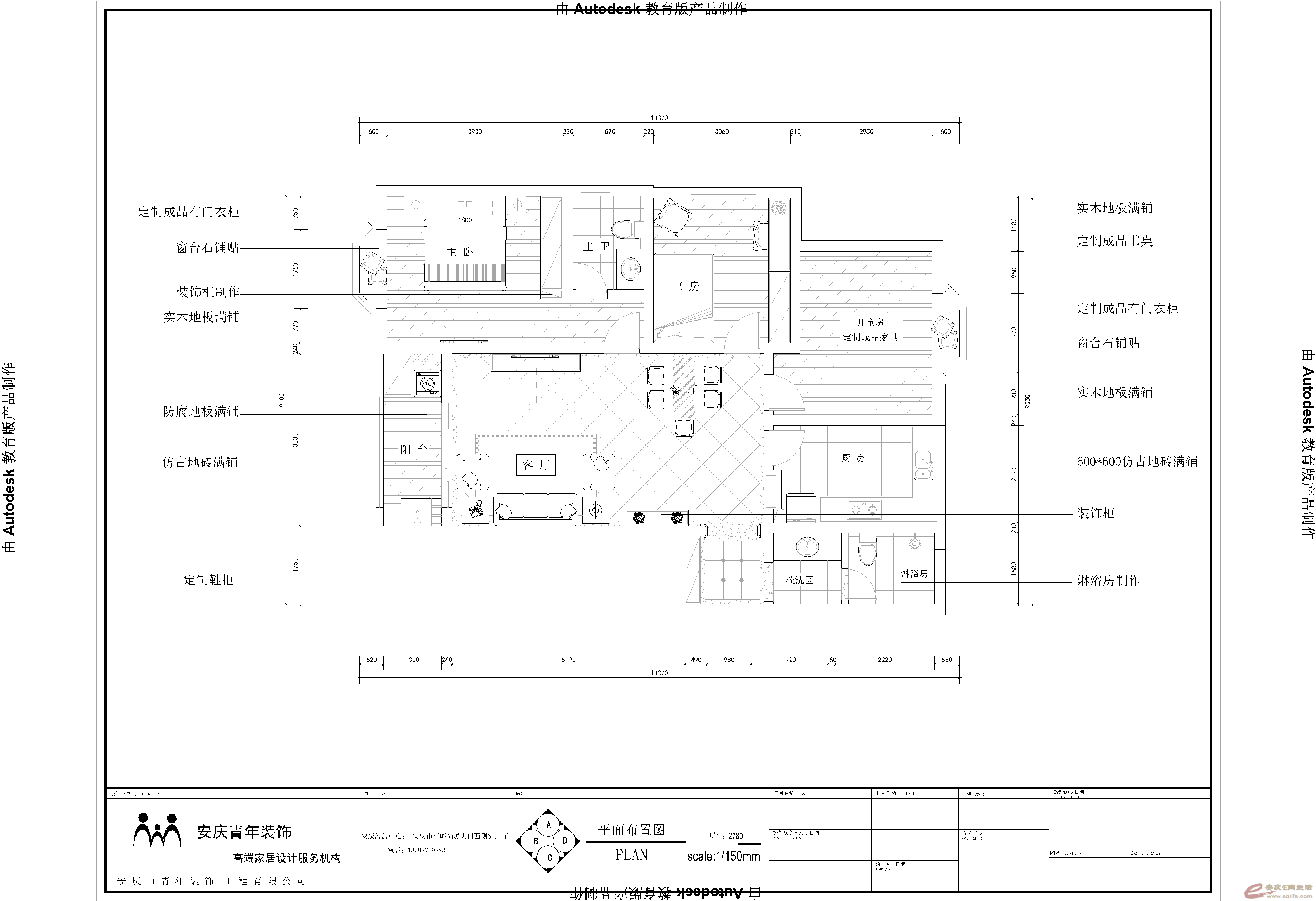
小区:格林镇
面积:114.5平方
风格:地中海风情
上平面图效果图,陆续上实景图~~

图纸_recover-Model.png


1_meitu_16.jpg


2_meitu_24.jpg


3_meitu_25.jpg

青年装饰
地址:江畔尚城大门西侧
联系电话:18297709288   QQ:641125232
回复

使用道具 举报

0

收听

14

听众

6162

帖子

E网小编

注册时间
2014-10-14
精华
208
发表于 2015-3-25 15:52:47 | 显示全部楼层
底色要是黄色就更好看了~~不过也不错,很海洋风。看着舒爽~~~{:soso_e163:}
回复 支持 反对

使用道具 举报

头像被屏蔽

0

收听

1

听众

35

帖子

禁止访问

注册时间
2013-12-6
精华
1
发表于 2015-3-25 16:00:40 | 显示全部楼层
提示: 作者被禁止或删除 内容自动屏蔽
回复 支持 反对

使用道具 举报

您需要登录后才可以回帖 登录 | 注册

本版积分规则

联系合作|手机版|手机APP|Archiver|

GMT+8, 2025-12-10 18:01 Powered by Discuz! X3.4

安庆E网生活网站 © 2001-2013 Comsenz Inc. ( 皖ICP备05012696号 )

QQ

安庆瑞易文化 地址:华茂1958-C7栋 联系电话:0556-5306667 联系邮箱:17779721@qq.com 互联网违法和不良信息举报电话和邮箱:0556-5306667 17779721@qq.com

皖公网安备 34080002000101号

    
快速回复 返回顶部 返回列表