安庆E网

搜索
楼主: 释—然

[装修日记] 装修录实 - 4月6日动工在即(东盛,姐看好你哦)

  [复制链接]

0

收听

1

听众

14

帖子

未认证商家

注册时间
2015-3-26
精华
0
发表于 2015-4-9 10:49:38 | 显示全部楼层

我是专业做瓷砖美缝的,后期有需要可以联系我!  何  18255613528,QQ:448607158


亮万家瓷砖美缝专家
联系电话:18255613528
QQ:448607158
联系人:何女士
一次施工,终生享用!
回复 支持 反对

使用道具 举报

4

收听

2

听众

1414

帖子

未认证商家

注册时间
2011-5-4
精华
0
QQ
发表于 2015-4-9 17:43:22 | 显示全部楼层
释—然 发表于 2015-4-8 20:26
你也接了不少家了吧,哈哈,生意兴隆哦

O(∩_∩)O谢谢~~
回复 支持 反对

使用道具 举报

头像被屏蔽

0

收听

1

听众

109

帖子

禁止访问

注册时间
2014-10-28
精华
0
发表于 2015-4-10 09:51:07 | 显示全部楼层
提示: 作者被禁止或删除 内容自动屏蔽
回复 支持 反对

使用道具 举报

0

收听

6

听众

440

帖子

E粉明星

注册时间
2015-3-15
精华
0
 楼主| 发表于 2015-4-10 15:44:18 | 显示全部楼层

呵呵。。。
回复 支持 反对

使用道具 举报

0

收听

6

听众

440

帖子

E粉明星

注册时间
2015-3-15
精华
0
 楼主| 发表于 2015-4-11 13:32:22 | 显示全部楼层
本帖最后由 释—然 于 2015-4-17 21:30 编辑

    这两天钻光彩四期,下班的间隙都在跑,身心疲惫,茫无目的的在里面瞎找,也没找到什么好东西,头都看昏了,在南翔博览中心买了箭牌的马桶和花洒的两张盛典卡, 趁着活动,在国美买了老板油灶8307+30B5,水槽还没搞定,在金牌看的一个水槽特价1100多,感觉一般。。。
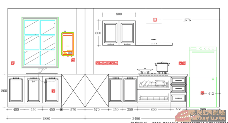
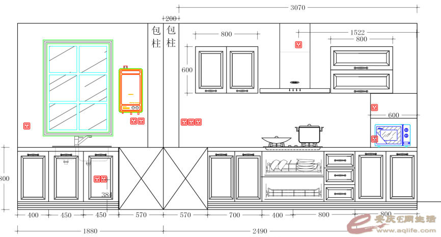
    等了好多天,邻居终于把橱柜平面图发来了,效果图之前说好没有,还能理解,怎么感觉就搞个平面图还很粗糙的说,不像我在百度上看到的平面图还有立侧图,上面说好的两边的吊柜也变成了一边,隔板也没有画出来,也没周围细致的尺寸说明,插头也觉得少的可怜,这是我一个外行人看的,不知道谁能给我解惑,是不是姐这3000定金下的太急了{:soso_e141:}~~~ QQ图片20150411142933.png
QQ图片20150411134350.png PS: 能沟通的设计师就是还不错的设计师,后续改动图,可能还要改。。。 QQ图片20150411151653.png 2.png 3.png 再次修改。。。
1.png
反复修改,终极版平面图,最右边台面的口字型小隔板是我想出来的:
定稿。.png







定稿.png
回复 支持 反对

使用道具 举报

0

收听

1

听众

335

帖子

未认证商家

注册时间
2014-3-24
精华
1
QQ
发表于 2015-4-11 14:52:04 | 显示全部楼层
释—然 发表于 2015-4-11 13:32
这两天钻光彩四期,下班的间隙都在跑,身心疲惫,茫无目的的在里面瞎找,也没找到什么好东西,头都看昏 ...

姐,这是插座的位置。不是橱柜的尺寸图~~~一堆尺寸数据,不就糊了嘛。。
回复 支持 反对

使用道具 举报

1

收听

9

听众

5117

帖子

E粉明星

注册时间
2009-11-24
精华
0

室内装饰设计QQ243160571

QQ
发表于 2015-4-11 15:31:45 | 显示全部楼层
大米橱柜 发表于 2015-4-11 14:52
姐,这是插座的位置。不是橱柜的尺寸图~~~一堆尺寸数据,不就糊了嘛。。

{:soso_e113:}大米呀,下次去你店里看看去
回复 支持 反对

使用道具 举报

0

收听

1

听众

335

帖子

未认证商家

注册时间
2014-3-24
精华
1
QQ
发表于 2015-4-11 16:55:30 | 显示全部楼层
wjj11192226 发表于 2015-4-11 15:31
大米呀,下次去你店里看看去

嗯,好呀。欢迎{:soso_e192:}
回复 支持 反对

使用道具 举报

0

收听

6

听众

440

帖子

E粉明星

注册时间
2015-3-15
精华
0
 楼主| 发表于 2015-4-12 15:12:49 | 显示全部楼层
本帖最后由 释—然 于 2015-4-12 15:21 编辑

    没有钥匙真的很恼火,反映了一个星期的空鼓终于修好了,钥匙还在地产那里,前几天补好的镂空阳台怕施工弄坏了,特地跟项目负责人交代了下,今天才开始,还没看我家的图纸,后期还是要好好沟通的,每个人的想法都是不一样的,所以今天也没什么事,就是运了黄沙,砖。。。兜了一圈后,去看看地产商有没有还钥匙,顺便去房子看看材料运完了没有,一个小伙子还在运砖,没什么东西,顺道拍几张照片就走人,可惜了这好天气了,明天好像又有雨了。。。 QQ图片20150412152011.jpg QQ图片20150412151554.jpg QQ图片20150412151559.jpg QQ图片20150412151602.jpg QQ图片20150412151606.jpg QQ图片20150412151610.jpg QQ图片20150412151614.jpg
回复 支持 反对

使用道具 举报

头像被屏蔽

0

收听

1

听众

109

帖子

禁止访问

注册时间
2014-10-28
精华
0
发表于 2015-4-14 09:11:47 | 显示全部楼层
提示: 作者被禁止或删除 内容自动屏蔽
回复 支持 反对

使用道具 举报

0

收听

6

听众

440

帖子

E粉明星

注册时间
2015-3-15
精华
0
 楼主| 发表于 2015-4-14 20:42:22 | 显示全部楼层
本帖最后由 释—然 于 2015-4-14 20:45 编辑
欧阳飞儿 发表于 2015-4-14 09:11
楼主能把大米橱柜价格短我?

我这个价格还没最终敲定,因为又想加柜子了,敲定了短给你,不过对于我预算不多,又不想做的丑,性价比还是很高的,看了我另一个邻居在那里定的简欧板子,还不错,不丑{:soso_e121:}所以才打定主意定下来的
回复 支持 反对

使用道具 举报

0

收听

6

听众

440

帖子

E粉明星

注册时间
2015-3-15
精华
0
 楼主| 发表于 2015-4-14 23:06:17 | 显示全部楼层
本帖最后由 释—然 于 2015-5-6 12:38 编辑

4.14  
    老板烟机昨天到货了,我以为放工地方便,谁知道那么一大坨,好像会影响施工,明天还是去借个三轮车踩回家吧,这两天要走水电,今天定位了,啥都没买,也是给人增加难度了,外婆下午来看房子,坚决要求冰箱不要放在厨房(之前考虑地方太小,实在没地方塞),好吧,这一挪,橱柜要加了,银子要涨了,明天就确定水电了,下午又去找设计师沟通改方案,估计也是被我搞晕了,插座安多少都感觉不够,好没安全感,阳台的设计也需要改下,好在人家很有耐心,认真听我的各种合理的不合理的要求,有人懂,这种感觉特别好,差点忘了,发图给我的美女设计师了,估计睡了,发邮箱吧{:soso_e192:}晚上又找邻居大米QQ会谈合计了下改动方案,大致的说了我的要求,提出的方案要求得到认可,然后姐亲自动手勾画出了改动方案,好有成就感,来看看我画的两种幼稚方案~~~附上老板油灶链接:http://item.gome.com.cn/9132460218-1121270256.html
ps:五月三日 买了将近快一个月的时间,上国美发现降价了一百,联系客服,费了点周折,强势要求退100,成功
QQ图片20150414222812.jpg QQ图片20150414224823.png QQ图片20150414230731.png



回复 支持 反对

使用道具 举报

0

收听

1

听众

25

帖子

未认证商家

注册时间
2015-3-23
精华
0
发表于 2015-4-15 16:12:41 | 显示全部楼层
恭喜楼主{:soso_e179:}
万家装饰 ALL FAMILIES
地址:绿地写字楼2号楼1402室
电话:0556-5206667、5206697
手机:18905566612
回复 支持 反对

使用道具 举报

头像被屏蔽

0

收听

1

听众

14

帖子

禁止访问

注册时间
2015-2-10
精华
0
发表于 2015-4-17 11:09:33 | 显示全部楼层
提示: 作者被禁止或删除 内容自动屏蔽
签名被屏蔽
回复 支持 反对

使用道具 举报

0

收听

6

听众

440

帖子

E粉明星

注册时间
2015-3-15
精华
0
 楼主| 发表于 2015-4-17 21:10:44 | 显示全部楼层
本帖最后由 释—然 于 2015-4-30 20:37 编辑

4月16日  晴
     由于不能开槽,所以在砌墙之前先准备水电布线,一大早过来,墙上开了槽,水电线路都已经先在我之前进来在施工了,好吧,已经施工了,之前准备的线路管路验收都派不上用场了,照明1.5,插座2.5,柜机4,挂机2.5,在我的坚持下,地线改到2.5方,卫生间改到4方,厨房改到6方,三个房间每个房间插座和照明合一路,空调冰箱单独配线到电箱,水电师傅是一对夫妻,打孔的是两个小伙子,也挺辛苦,我在里面呆着耳朵受不了,就早早撤了。。。
4月17日   晴
     今天继续布线,想想我也看不懂,就特地去百年家居找邻居海尔,把吊顶定了下来,风暖五合一,三盏300*300的LED灯,一台厨房的冷气扇,,,预算预料中的再次超标了,真是头疼,好在是邻居,想想以后有保障心里就舒服了。中午接到爸爸电话说是书房的空调在哪打孔的问题,想了想不放心,赶紧杀回去解决问题,书房的空调外机,物业只准放到大门外面进门的旁边,怎么的都得在厨房插过去,貌似要接很长的管子,好在邻居海尔正好赶来,我们一起商量了两个备用方案,虽然其中一个方案也要绕很多路,感觉还算满意,海尔还提出厨房要多走两根线,因为我要分开装两个小LED灯,不是单独的300*600灯,送走邻居,我就在琢磨我的施耐德16位强电箱上怎么就安了十一个管子口,问了李工,说应该还有三路漏电保护,然后我问问我们家的水电师傅,水电师傅说哪有什么漏电保护,就只有一个总开关,其他的都是单片,看着电线走势,怎么感觉也跟平时网上看到的不一样,地上都没什么线,客厅还没走线,主卧的强弱电距离好近,突然心里就有点不安了。。。还有就是热水管孔打小了点,墙壁里的保温棉塞不进去,可是管子已经安好了,好像也只能这样了。明天好像就结束试压了。。。
     下午去光彩看了看瓷砖,卫浴,看箭牌卫浴的时候,一顾客气冲冲的进来问我是不是也要定他们家的特价产品,然后说千万不能定他们家的,她11月份的特价商品到现在半年了还没给他装,总是说没货,今天好容易给她装,居然还是破的,本来热情劝我交定金的导购员悄悄匿了,唉,马桶买箭牌在我脑海里根深蒂固,明天要做活动,此刻我又拿不定主意了,上几张图大家看看吧 QQ图片20150417205112.jpg QQ图片20150417205138.jpg QQ图片20150417204908.jpg ] QQ图片20150417203537.jpg QQ图片20150417203308.jpg QQ图片20150417212317.jpg
PS: 4月19日水电完结,满意签字画押。。。想来想去,之前的担心都是多余的,生性谨慎的我,可能急躁了点,遇事不够冷静,还好有晶晶设计师的耐心,徐经理的细心,昝师傅的精湛手艺,,之前纠结担心的水电圆满结束了,忍不住把图发到群里秀了下,很多人看了都夸这个线管走的漂亮,,,希望下一个环节能继续精彩。。。
QQ图片20150419182600.png 1.jpg QQ图片20150419181604.png 5.jpg QQ图片20150419181823.jpg


QQ图片20150417203133.png
QQ图片20150417203153.png
QQ图片20150417203234.jpg
2.jpg

点评

有一个奇葩的下水管有四个九十度,LZ啊,一旦堵了神仙也通不过哦。嘿嘿。。。。。。  发表于 2015-5-31 10:24
回复 支持 反对

使用道具 举报

0

收听

2

听众

56

帖子

E粉新人

注册时间
2015-4-4
精华
0
发表于 2015-4-17 22:26:48 | 显示全部楼层
楼主,加油!
回复

使用道具 举报

0

收听

2

听众

56

帖子

E粉新人

注册时间
2015-4-4
精华
0
发表于 2015-4-17 22:27:06 | 显示全部楼层
我会一直关注的!
回复 支持 反对

使用道具 举报

0

收听

6

听众

440

帖子

E粉明星

注册时间
2015-3-15
精华
0
 楼主| 发表于 2015-4-17 22:32:34 | 显示全部楼层
rerlly2018 发表于 2015-4-17 22:27
我会一直关注的!

彬?{:soso_e103:}
回复 支持 反对

使用道具 举报

1

收听

2

听众

312

帖子

E粉新星

注册时间
2010-11-9
精华
0
QQ
发表于 2015-4-18 08:15:10 | 显示全部楼层
释—然 发表于 2015-4-12 15:12
没有钥匙真的很恼火,反映了一个星期的空鼓终于修好了,钥匙还在地产那里,前几天补好的镂空阳台怕施工 ...

那图上一块一块的都是空鼓???那么多???
因为在乎才觉得寂寞,因为在乎才觉得难过
回复 支持 反对

使用道具 举报

0

收听

2

听众

56

帖子

E粉新人

注册时间
2015-4-4
精华
0
发表于 2015-4-18 09:32:46 | 显示全部楼层

是的哦!
.

回复 支持 反对

使用道具 举报

6

收听

4

听众

563

帖子

E粉明星

注册时间
2014-12-4
精华
0
发表于 2015-4-18 09:49:06 | 显示全部楼层
水电还在施工中你是看不出来有多少内容的,只有水电完工了,所有线路全部OK才能看到的。强弱电的距离也是看实际情况,墙面上的距离若是离的远肯定与暗盒要偏差很大,有利有弊。
情不知所起,而一往情深

恨不知所终,而纠结流离
回复 支持 反对

使用道具 举报

6

收听

4

听众

563

帖子

E粉明星

注册时间
2014-12-4
精华
0
发表于 2015-4-18 09:51:55 | 显示全部楼层
强电箱里面按你拍摄的时间都还没有布管,等水电完工就能看到具体是多少路了,楼主太操之过急了{:soso_e113:}
情不知所起,而一往情深

恨不知所终,而纠结流离
回复 支持 反对

使用道具 举报

0

收听

6

听众

440

帖子

E粉明星

注册时间
2015-3-15
精华
0
 楼主| 发表于 2015-4-18 12:22:16 | 显示全部楼层
可怜小白兔 发表于 2015-4-18 09:51
强电箱里面按你拍摄的时间都还没有布管,等水电完工就能看到具体是多少路了,楼主太操之过急了{:soso_e113: ...

水电这块我是最担心的,之前看到他们的几个工地,水电都做的不错,才下定决心在他家做的,老板夫妇人都还不错,有求必应,可能是我太急了,等全部搞好,再上图给你们看{:soso_e100:}
回复 支持 反对

使用道具 举报

0

收听

6

听众

440

帖子

E粉明星

注册时间
2015-3-15
精华
0
 楼主| 发表于 2015-4-18 12:23:17 | 显示全部楼层
本帖最后由 释—然 于 2015-4-18 12:27 编辑
ellenwanghan 发表于 2015-4-18 08:15
那图上一块一块的都是空鼓???那么多???

是啊。大发的房子质量就这样了{:soso_e103:}还有一块物业没修好
回复 支持 反对

使用道具 举报

0

收听

6

听众

440

帖子

E粉明星

注册时间
2015-3-15
精华
0
 楼主| 发表于 2015-4-18 12:37:30 | 显示全部楼层
4月18日  晴
   天气闷热,今天很忙,没有去工地,早上忙完事情,直接去了箭牌,一分钟搞定特价马桶花洒,抽奖什么的就忽略不计了,向来抽奖不行,下午还得南征北战,养精蓄锐会
回复 支持 反对

使用道具 举报

您需要登录后才可以回帖 登录 | 注册

本版积分规则

联系合作|手机版|手机APP|Archiver|

GMT+8, 2025-12-10 23:22 Powered by Discuz! X3.4

安庆E网生活网站 © 2001-2013 Comsenz Inc. ( 皖ICP备05012696号 )

QQ

安庆瑞易文化 地址:华茂1958-C7栋 联系电话:0556-5306667 联系邮箱:17779721@qq.com 互联网违法和不良信息举报电话和邮箱:0556-5306667 17779721@qq.com

皖公网安备 34080002000101号

    
快速回复 返回顶部 返回列表