安庆E网

搜索
查看: 164032|回复: 408

[装修日记] 向婚房迈进~乱七八糟的意见拧成一股绳(即将入住,各商家产品和质量的点评)

  [复制链接]

0

收听

3

听众

271

帖子

E粉明星

注册时间
2015-5-22
精华
1
发表于 2015-6-15 13:40:11 | 显示全部楼层 |阅读模式
本帖最后由 暴走的羊先森 于 2016-4-21 10:54 编辑

一入装修深似海,从此钱包成路人----题记。

原来E网账户密码给忘了,新注册一个来发帖。

先写写基本信息,留坑待填

小区:御景国际小区

房型:三方两厅一厨两卫

建筑面积:137平,室内面积110平左右

装修公司:青年装饰

设计师:潮金元

风格:目前看来是美式混搭。

装修预算:尽量的....预算,还是要捂紧钱包。目前争取不带家具家电16万左右。


    本身家里买了江畔尚城的小户型,后来考虑到离家里老人比较近,上班方便等原因,我和老婆两家合力买了御景的做婚房(其实原来也没打算买单价这么高的房子,正好今年二三月房价低迷,价格有了一定的优惠),三月份签的购房合同,六月份办好手续拿钥匙,正赶上装修旺季,就此踏上了茫茫装修路。刚拿到房子时,本想考虑装修现代简约风格的,但是考虑到整体因素时,觉得还是美式比较合适,现代风格会显得太空了,不好看,不能体现家的温暖。所以,最后我们选择了美式风范。考虑到自己没有有足够多的空闲时间和充沛的精力,也不是对装修的工艺和工序了如指掌,也不想过于拖累双方父母,自认没有做清包的能力,装修方式还是选择了比较流行的半包,可以抓大放小。

   

    既然决定了选择半包,那么问题来了:如何选择装修公司?百度和E网上也有也很多科普的帖子可以给我们以参考。
    目前装修市场主要是三分天下,大致分为以下三个选择:
  1、正规装饰公司。
  这里指正规注册的装饰公司,每个城市都有很多,差别也有很大,有大有小,小的可能就是租个写字楼请上些工作人员、设计师就成立个公司,大的非常大,甚至是上市公司,全国很多地方都有分公司。价格的话一般是和公司规模和知名度成正比的。
    装饰公司一般较正规,管理程序化,能做得到位。公司的模式一般是请大量的设计师和业务员,都只发基本工资,拿签单提成,业务做得多,收入也会多,这就是为什么你还没拿到房就能收到大量的信息和电话的原因了。签单成功后,公司提成后会交给项目经理做,提成一般在三十到四十个点左右,这部分除去业务员和设计师的提成后就是公司的利润了。项目经理挂靠公司,交保证金,由公司负责管理。很多公司为了自己的品牌和声誉其实对项目经理管理还是非常严的,大点的公司都会要求材料都由公司统一配给,这样做的话既能防止项目经理在材料上搞名堂,也能在材料上得些利润,一举两得。这样做对业主也是有好处的,至少材料不会假。
    大装饰公司的优势是放心、安全,能给你很强的安全感,但价格会稍高,特别是那种装修豪华的办公场所,你进去后根本不好意思讨价还价,会认为理所当然。

  2、小型工作室。
  这种工作室每个城市也有很多,可能就是一个小办公室几个人,明显会感觉寒酸很多。
    其实工作室分为两种情况,一种是接单类的,比如有些设计师自己开的,公司里面有些单可能因为价格原因谈不下来,就把客户带到这种工作室自己做,俗称接私单。还有些就是项目经理开的,便于接单用。这类工作室因为运营成本等原因,价格相对来说会低很多,但相比之下给人的感觉不是很可靠放心。找这种工作室的做装修主要是两类人,一是熟人朋友介绍,觉得可靠,二是价格非常低,有很大吸引诱惑力。
    还有一种工作室是设计类的,设计为主,服务于高端客户,打造精品,很多NB的设计师脱离公司自行创办,做品质为主,一对一服务,每个项目做成作品,形成良性循环。其实在一些大城市这种工作室非常受欢迎,只做高端,收费也高,客户也非常满意,收入是原来的好几倍。随着网络发达在某宝上也能找到很多主打家装设计的工作室。
    这种工作室收费不便宜,只在一线城市受欢迎,在我们这样内地小城市目前一般还不会被人接受,这是消费理念差异造成的,因为他们会觉得如果花差不多或甚至更高的价钱,还不如找本地大装饰公司来得更有面子。


    3、个人施工队。
  这个俗称游击队,由一些工人组成,一人为头,俗称工头,工头也做事,可能是木工或泥工,接了活之后叫上其它工种朋友一起做。这种价格就较低,一般来说就赚点工钱和差价。他们全部来自熟人介绍,有的业务也很好,开始家里介绍个漆工,姓张,带上几个工人和一个儿子从年头做到年底,生意很好,工艺也不错,态度也好,全是客户互相介绍。但房子基本上没什么设计,该做的都会做,但基本上千篇一律,程式化了,相当于我们去吃蒸菜,价格不贵,端上来就可以吃,但要变变花样就不能了。
 这种适合于对设计要求不高的业主,但安全系数不是很高,运气好的话可能碰到老实本份的工头,运气不好的话碰上个奸滑似鬼的肯定就有报价狮子大开口,欺负客户什么都不懂。还有一种担心就是怕工程进行时出问题直接不来撒手不管,来个直接找人不到。虽然事先可以采取登记身份证和在做完部分事付部分款的方法来进行风险规避,但出现纠纷还是挺麻烦的。

     

    可以说以上选择各有利弊,完全看个人的需求和选择,以自己的实际情况,我决定还是选择由装饰公司进行施工。两个月大大小小公司都去过不少,我个人属于意见比较多要求比较细的,自己有自己的一套想法,所以和设计师的沟通就显得特别重要。既然决定了要装修,各方面的准备工作肯定是有的,网上能找到很多各种风格的效果图集,希望得到的是设计师对自己想法的合理规划和建议,而不是像一些装修公司的某些设计师“我这么设计自有我的道理,你不中意是你不专业,你要听我的。”,这种只为签单率只为施工方便做最小的改动,业务水平不敢恭维。万事都躲不过一个“比”,那就多找几家比较一下,找设计师就和相亲一样,缘分很重要,设计师如果在和你沟通时不能用自己的专业知识、设计理念、创意想法对你产生一种强烈的冲击感和认可感的话,那就换一个,无需降低标准。相亲也有很多次才成功的....在寻找的过程中,几家E网上比较热门的装修公司都找过,涉及有些该说有些不该说的,就不详细说了。   

   

    找到青年装饰也是很偶然的机会,正好去江畔房子那儿办事的时候看见店面招牌,想起前一阵子E网小刘美女的帖子就是找的他家,就进去看了看。刚创业的夫妻店小公司,可能是同为年轻人的缘故,和身兼设计、老板、接待、监工一体的潮总交流的比较顺畅,他们小夫妻俩的热情也是很感染我的,看了一下他们的设计和主材清单(后面有附),采用的也是安庆市面上比较流行口碑较好的品牌。因为是创业期,报价和态度都比较诚恳。当天就去量了房,出了平面设计和预算,可能也是缘分的原因,装饰公司就这么定了下来。

评分

参与人数 3鲜花 +3 收起 理由
夏去秋来。 + 1
wx_rQ8r2l2O + 1 很给力
macoyang + 1 很给力

查看全部评分

回复

使用道具 举报

0

收听

3

听众

271

帖子

E粉明星

注册时间
2015-5-22
精华
1
 楼主| 发表于 2015-6-15 13:40:12 | 显示全部楼层
本帖最后由 暴走的羊先森 于 2015-12-19 23:03 编辑

半包主材清单
黄沙红砖:小区沙霸购买
电线:华鑫
PVC穿线管、暗盒:16MM伟星穿线管、86伟星暗盒
水管:伟星D25 PPR热熔管
电视线:日月
网线:安普网通 六类?
板材:莫干山(没打柜子基本没用上)
石膏板:泰山
防水:俊高防水材料绿浆
自选主材清单
强弱电箱:德力西 鸿雁
开关面板:德力西 公牛   空开:德力西
瓷砖:  欧神诺爱丁堡(厨房) 云石OM5208P(卫生间) 梵蒂冈ELF202(地砖)
地板:  瑞嘉榆木实木地板
衣柜 酒柜 鞋柜:  百得胜定制(带移门五金)
马桶 淋浴房: 箭牌AB1282
浴室柜: 璐辉
橱柜: 巧夫人橡木实木橱柜         烟机灶具:华帝 i11021+i10002B烟灶套装
集成吊顶:光彩美菱吊顶
移门: 卧室圣保罗百叶  厨房光彩雅美轩
壁纸: 天丽墙纸
室内门:超凡木门 圣保罗平开
窗帘:完美空间
====我是分割线====
电梯楼。
0#户型图,装修要多少钱?
1#效果图
2#砌墙问题及整改
3#水电材料
4#水电篇
5#风管机安装
6#木工吊顶
7#地砖的铺贴     8#封阳台和贴背景墙
9#定制衣柜安装
10#欲罢不能的美式实木家具
11#衣柜安装完毕
12#安装石膏线     
13#对定制衣柜和木工衣柜一点自己的看法      13#-1  定制柜体尺寸数量列表
14#关于橱柜及巧夫人橱柜的安装      
15#吊顶以及橱柜安装之二
16#室内门的安装
17#周末周庄小窥
18#厨房卫生间衣帽间门   
19#个人观点来BB壁纸乳胶漆硅藻泥
20#贴壁纸
21#灯具进场
22#一点硬装照   23#HH风部分家具
24#完美空间窗帘安装         
25#目前装修开支列表
26#最后一个门,硬装算结束了吧   
27#有惊无险的搞定沙发进门
28#自己动手美缝
29#铝合金花架防盗网安装          30#入选投票,半完成版毕业照小图伺候
31#淘宝极有家首页,不小心做了个大广告
找了点功课贴在下面,我家工序也没有安排的非常合理,导致进度偏慢。




装修材料购买顺序

1. 装修材料设计师、业主、施工员进场交底,水电工划线定位、开线槽;在水电工开线槽期间,业主需要联系橱柜公司到现场确认橱柜的位置,并开始订购灶、抽油烟机、热水器、淘菜盆,蹲便器,马桶,洗漱盆,地漏,强弱电箱;(即橱柜、灶、抽油烟机、热水器、淘菜盆,蹲便器,马桶,洗漱盆,地漏,强弱电箱)

2. 水电工开线槽完工后(一般开线槽的时间为2-3天即可),开始布水电线路,业主开始着手定购墙、地砖(数量参考装修报价单,也可由商家提供)并把蹲便器拉到现场工地。(墙砖、地砖)

3. 水电完工后(一般水电安装的时间为一个星期),水电完工后泥工进场基础改造,此时业主需要把墙地砖拉到现场并预定套装门和门套(主要是让套装门到现场制作门的尺寸);(门和门套)

4. 在泥工进场的时候,施工方视现场情况可以同时安排木工进场开始吊顶工程或其他木工制作工程;(业主需要联系专业打孔开空调洞、热水器排气孔)。(安排吊顶工程制作)

5. 装修材料在木工和泥工贴砖工程,防水工程等完工后,如果卫生间需要做隔断或者淋浴房,业主此时可以通知他们进场量尺寸并开始制作;施工方则将安排油漆工进场,在油漆工进场时如果您是选择贴墙纸可以在此时开始预定墙纸(因为墙纸一般都是从外地发货无现货一般有10天左右的周期)。(隔断玻璃、墙纸、多乐士)

6. 在油漆工墙面腻子刮完后,业主购买铝扣板、浴霸、厨房吸顶灯、排气扇和通知厨房三件套拉到工地(灶,抽油烟,热水器)并通知他们上门安装。(铝扣板、浴霸、厨房吸顶灯、排气扇; 通知厨房三件套拉到工地)

7. 在油漆工第一遍底漆完工后,业主需要通知安装套装门和门套(在安装套装门时业主需要购买五金件。比如:锁,合叶,拉手等)如果厨房或卫生间是滑门,那么门套安装好后就需要让滑门量尺寸并开始制作。(锁,合叶,拉手)

8. 门安装好以后业主则需要开始选择墙面乳胶漆颜色。

9. 门安装好后,油漆工在进行基层完全处理并待干后开始乳胶漆上漆(如果是全墙纸则通知油漆工进行墙纸基层处理),在上漆期间(或贴墙纸期间)业主需要着手购买预定木地板,灯具、窗帘、挂件等,洁具,开关面板。(灯具、窗帘、挂件等,洁具,开关面板)

10. 油漆工完工后,业主需要把灯具、挂件等,灯具,洁具,开关面板拉到工地安装。
11. 灯具和具安装完后,主通知木地板进场安装,木地板安装完后,行开荒清,清完工后,最后一道工序主可以通知窗帘,家具等进场(窗帘,家具)







回复 支持 反对

使用道具 举报

0

收听

3

听众

271

帖子

E粉明星

注册时间
2015-5-22
精华
1
 楼主| 发表于 2015-6-15 13:50:59 | 显示全部楼层
本帖最后由 暴走的羊先森 于 2015-8-13 14:55 编辑

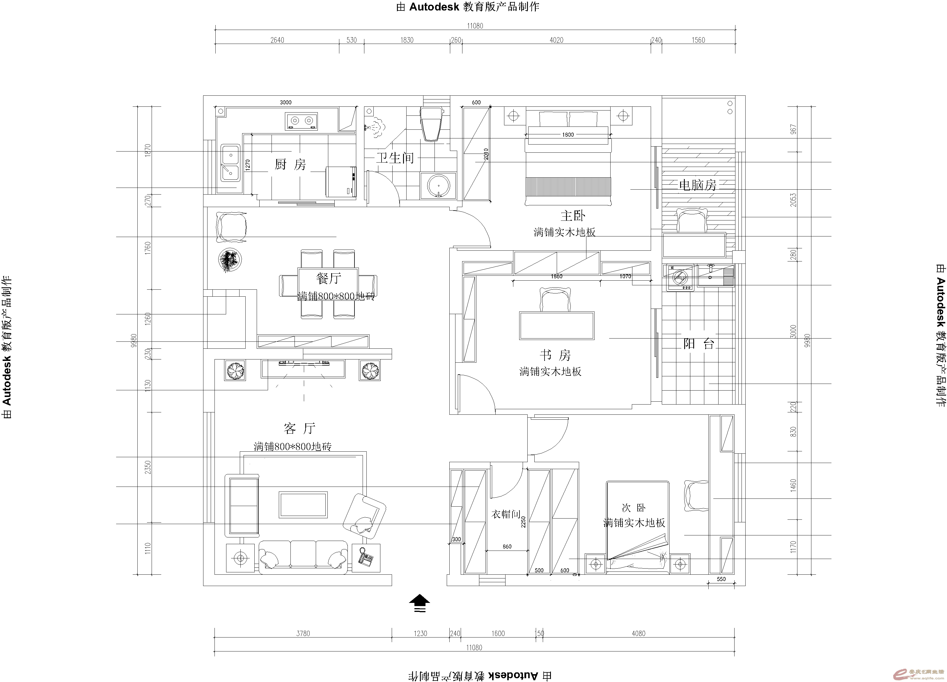
先上原始户型图,和E网网友邻居小风的户型是一样的,就用一下他的图,省的拍照了:

原始.jpg

   原始户型倒是非常方正,当时也就看上了这点。三房朝南,采光不错。缺点是不属于通透户型,各个房间单看都不大,厨房卫生间较小,入户门对着卫生间。但是无论选择什么风格, 功能分区是最重要的, 如果开始不把功能分区设计好, 后期是弥补不了的, 所以在这次装修中, 前期的结构设计, 用了很长的时间,天天在家2个人按自己的生活方式来考虑自己的需求. 原始户型不错, 但是不能完全满足我们的要求, 所以,一定要改,综合自己、设计师还有网友各位大神的想法,设计方案如下:

平面.jpg


  1、老婆需要一个衣帽间,在房间各有功能的前提下只能舍弃一个卫生间来进行改造,两人甚至后来的三口之家一个卫生间也可以了。在考虑改造哪一个的时候费了些神,因为这个户型设计的一个大缺陷就是客卫竟然是对着大门的,这个布局也一度让我相当之纠结。主卫的卫生间窗子对着天井,采光通风不如客卫,另外离厨房比较远,热水使用不方便,考虑到以上因素就改造了主卧卫生间。同时为了扩大衣帽间的范围往卧室里扩充了一部分空间。

   2、因为改造衣帽间的缘由干脆把主次卧对调,为了弥补些次卧变主卧面积较小的缺陷,加上南边阳台比较大,就封了一半做了主卧套间做小书房,将卧室改成一个小套间。

   3、原来的户型包括很多给我的设计都是对着客厅开门,不喜欢坐在客厅沙发里看过去都是门的感觉。就将书房和次卧、衣帽间的入口改动了一下方向,用一个小过道包括。

   4、三房里竟然书房面!积!最!大!,坑啊!原来也考虑过中间房间做卧室,但是想到阳台进出方便和离厕所远近等原因放弃了。主卧室设计的衣柜做了嵌入,加上书柜储物柜压榨书房空间。

   5、柜子、柜子,老婆要茫茫多的柜子....在合理的布局方面多考虑了很多柜子的空间,进门要个大鞋柜,储物间越多越好。



       说了这么多,看见一个很有意思的话题,分享一下:装修需要多少钱?

  房价这么高,很多朋友省衣结食咬紧牙关把房子供下来了,又面临装修这个无底洞,房子装修咱不能太差吧,为了健康,材料必须要用好的吧,全用好的吧,咱兜里预算又只这么多,搞下来到底要用到多少钱,这是很多朋友最关心的问题。装修公司报价也是乱七八糟,有低得离谱的,288元一平全包,是不是有什么猫腻?有高得离谱的,是不是在高举着大刀?

  其实装修费用就分硬装和软装部分。硬装部分就是基础装修部分,软装部分就是家具电器和一些后期装饰部分。

  细分一下,硬装部分其实就是人工工资部分和基材部分。人工的话这些年涨了不少,大概在200元至300元一平左右,为什么差距这么多?第一是因为地域差异。第二是因为师傅间的差异。这个很容易理解,装修工人市场其实也是由市场进行调节,手艺好态度好的师傅活多,请的人也多,工价也会高,相反手艺差的师傅请的人少,也会自降身价揽活,还有些学徒更不待说,能给个活做就不错了。工价是这种情况的话,288元一平拎包入住的诱惑广告你还会信不?

  硬装基材部分主要是水泥沙子、水电材料、木工材料和油漆墙漆材料等等,当然还有一些乱七八糟的东西,这些就和材料品牌和所用的多少有关系了。

  这两个部分加上主材,比如瓷砖、木地板、房门、铝合金阳台、厨柜、灯具卫浴等等,硬装就全完成了。根椐经验,在保证质量保证材料的情况下一般来说装修价格会在800-1200元一平之间。

  装修是个无底洞,这句话一点没错,有人花几万就很漂亮,有人花几百万也是那个样,这是因为主材档次不同,价格相差巨大。所以装修中预算一定要划算好,很多东西并不是越贵越好,预算为什么会超?因为攀比心理,到市场上一转,总是会发现原计划要买的东西或多或少总有些毛病,越看越不满意,还不如增加点费用一次到位,所以东西越买越贵。

  我一个朋友刚考了驾照,准备花5万买个比亚迪练练手,结果比来比去买了个20多万的途观。

回复 支持 反对

使用道具 举报

0

收听

3

听众

271

帖子

E粉明星

注册时间
2015-5-22
精华
1
 楼主| 发表于 2015-6-15 14:03:40 | 显示全部楼层
本帖最后由 暴走的羊先森 于 2015-6-15 14:10 编辑

    关于装修风格,我们还算不太苛刻的,但是潮总也被磨的差不多了,用他自己的话说“死了不少的脑细胞”。当时和青年装饰合作也是觉得年轻人在一起比较有想法{:soso_e151:}。我个人其实比较偏爱美式,更喜欢复古一点甚至带点loft的。但是羊太大人虽然是骨子里是摇滚女青年,表面上还是要做软妹子的{:soso_e141:},不喜欢太灰暗的格调,要比较清新的田园风。潮总做了几套效果图他自己都不是太满意,最后还是杂糅了他自己家的地中海元素做了一套效果图,配色方面还是非常大胆的,活脱脱的把我的美式复古从市中心拽到了乡村公路上....整个一套美式田园风格.....



    效果4.jpg 效果.jpg 效果3.jpg 效果5.jpg
   虽然客厅的配色十分大胆,但是我个人不是很喜欢绿色油漆,也容易显旧。考虑还是换成暖色调。沙发也不一定用这种,谁叫羊太不喜欢呢,人家一定要有贵妃榻...

   在羊太的淫威和一番篡改下,我喜欢的元素在图上只剩假梁、地图和文化石了.....哦,还有那个钟。

   装修原则就是:两人意见没冲突的,以羊太意见为准;意见有冲突的,还以羊太意见为准。男人是不能和老婆争执的,因为吵输了挨骂,吵赢了挨打......{:soso_e149:}
回复 支持 反对

使用道具 举报

0

收听

3

听众

271

帖子

E粉明星

注册时间
2015-5-22
精华
1
 楼主| 发表于 2015-6-15 14:26:54 | 显示全部楼层
买房子手续很多,办理公积金贷款手续更多,签了合同后漫漫长长两个月,终于在6月11日接到通知全部搞定了。当天正好在家,就去拿了钥匙。电话叫来潮总一起验房。吐槽一下御景国际的物业,交钱拿钥匙时候才被告知只收现金!这么多小区的物业费我是头一次看见只收现金的!!你们丫是有多不愿意去银行!!!快中午了还要我顶着大太阳去银行取钱,一万个差评!
全部弄好,带上潮总,带上小锤晃晃悠悠去验房。
2.jpg 1.jpg

房子质量真的一般,敲敲打打发现了不下20处墙面空鼓,还有个窗子开合也不严实,全部给物业登记要求整修。但是目前还没看见人影{:soso_e111:}



回复 支持 反对

使用道具 举报

0

收听

3

听众

271

帖子

E粉明星

注册时间
2015-5-22
精华
1
 楼主| 发表于 2015-6-15 14:35:05 | 显示全部楼层
    验房完毕,记录好各种问题之后,潮总顺嘴问了我句什么时候开工。我看看手机:“明天吧。” “......”从他无语的状态我相信潮总此时心中有一万头草泥马呼啸而过,以致于当天晚上他还打了个电话给我再次确认是不是明天开工.....

    6.12开工

    3.jpg 4.jpg

   听说开工按惯例要放鞭炮,既然是惯例那放就放吧,带了6个苹果和步步糕,磨磨蹭蹭到九点。潮总已经等在门口了,9点8分点炮,赶快布置好。


5.jpg

   在房子里炸鞭炮那真叫一个震耳欲聋啊,象征性敲了三锤子结束开工仪式后,去物业办完装修手续,物业的人还说今天是什么好日子,算上我已经是第三家开始装修了,看看很无语的潮总,我这完全是撞日子的啊...总之,祝愿自己装修顺利吧。{:soso_e142:}
回复 支持 1 反对 0

使用道具 举报

4

收听

2

听众

1414

帖子

未认证商家

注册时间
2011-5-4
精华
0
QQ
发表于 2015-6-15 15:31:27 | 显示全部楼层
暴走的羊先森 发表于 2015-6-15 14:03
关于装修风格,我们还算不太苛刻的,但是潮总也被磨的差不多了,用他自己的话说“死了不少的脑细胞”。 ...

太快了呀,还要改的呀{:soso_e103:}嘿嘿
青年装饰
地址:江畔尚城大门西侧
联系电话:18297709288   QQ:641125232
回复 支持 反对

使用道具 举报

4

收听

2

听众

1414

帖子

未认证商家

注册时间
2011-5-4
精华
0
QQ
发表于 2015-6-15 15:45:49 | 显示全部楼层
{:soso_e176:}顶顶更健康~~
青年装饰
地址:江畔尚城大门西侧
联系电话:18297709288   QQ:641125232
回复 支持 反对

使用道具 举报

9

收听

7

听众

1349

帖子

认证商家

注册时间
2011-11-6
精华
0
发表于 2015-6-15 19:00:27 | 显示全部楼层
恭喜恭喜,开工大吉大利!抽时间来我们锦致橱柜坐坐。
展厅地址:光彩国际家居博览中心一层61号
销售热线:8882250
客服热线:8882251
品鉴热线:13905569197   qq:2502490242
做适合中国人的厨房,您的满意是我们最高的荣誉[
回复 支持 反对

使用道具 举报

头像被屏蔽

2

收听

2

听众

458

帖子

禁止访问

注册时间
2015-1-26
精华
0
发表于 2015-6-15 22:20:41 | 显示全部楼层
比较好奇楼层整体布局了,两梯两户还是两题四户?
回复 支持 反对

使用道具 举报

0

收听

3

听众

271

帖子

E粉明星

注册时间
2015-5-22
精华
1
 楼主| 发表于 2015-6-15 22:39:34 | 显示全部楼层
江边人 发表于 2015-6-15 22:20
比较好奇楼层整体布局了,两梯两户还是两题四户?

两梯四户。
回复 支持 反对

使用道具 举报

头像被屏蔽

3

收听

2

听众

205

帖子

禁止访问

注册时间
2014-5-25
精华
0
发表于 2015-6-16 09:01:53 | 显示全部楼层
祝楼主开工大吉!{:soso_e100:}
签名被屏蔽
回复 支持 反对

使用道具 举报

头像被屏蔽

0

收听

1

听众

109

帖子

禁止访问

注册时间
2014-10-28
精华
0
发表于 2015-6-16 09:52:23 | 显示全部楼层
祝楼主装修大吉
回复 支持 反对

使用道具 举报

头像被屏蔽

0

收听

1

听众

109

帖子

禁止访问

注册时间
2014-10-28
精华
0
发表于 2015-6-16 09:52:35 | 显示全部楼层
祝楼主装修大吉
回复 支持 反对

使用道具 举报

0

收听

3

听众

271

帖子

E粉明星

注册时间
2015-5-22
精华
1
 楼主| 发表于 2015-6-16 11:39:43 | 显示全部楼层
    6.16半晴半阴要下雨    今天去房子看了一下,主体拆改已经结束了,瓦工开始砌墙,砌了一小半请假了。转来转去发现了一点小问题:瓦工砌墙没有用挤浆法,虽然横平竖直没有问题但是水泥砂浆不匀,有的砖缝还透光,已经通知潮总要求整改。另外是砌新墙,新旧结合面除了挂网之外还应该用钢筋拉筋,回头要让瓦工师傅指引一下插筋位置,
      2.jpg webwxgetmsgimg.jpg
   水泥砂浆不均匀,有明显透光的砖缝。

工地目前没什么好看的,趁着今天没下雨,拍两张阳台的照片,高层虽然公摊大,倒是还有点神清气爽。
   3.jpg 4.jpg
和1958遥遥相望

5.jpg
楼缝中的长江宝塔。

回复 支持 反对

使用道具 举报

5

收听

1

听众

16

帖子

未认证商家

注册时间
2015-6-16
精华
0
QQ
发表于 2015-6-16 16:01:44 | 显示全部楼层
羊先森,恭喜了。这几天天气不是很好。出行要注意安全以及携带雨具。看您今天的帖子,说主体拆装已经完成了。那接下来就是水电工了。这个阶段一些关于需要水电定位的产品,如橱柜、卫浴这块儿请抓紧选购了。我们是紫韩不锈钢整体橱柜,请务必到我们店坐坐。可以多了解橱柜产品,给自己多一份选择。
地址:安徽安庆南翔光彩国际家居中心北厅一层33A
电话:0556-5900123
手机:18133072069  魏宁
回复 支持 反对

使用道具 举报

5

收听

1

听众

16

帖子

未认证商家

注册时间
2015-6-16
精华
0
QQ
发表于 2015-6-16 16:01:53 | 显示全部楼层
羊先森,恭喜了。这几天天气不是很好。出行要注意安全以及携带雨具。看您今天的帖子,说主体拆装已经完成了。那接下来就是水电工了。这个阶段一些关于需要水电定位的产品,如橱柜、卫浴这块儿请抓紧选购了。我们是紫韩不锈钢整体橱柜,请务必到我们店坐坐。可以多了解橱柜产品,给自己多一份选择。
地址:安徽安庆南翔光彩国际家居中心北厅一层33A
电话:0556-5900123
手机:18133072069  魏宁
回复 支持 反对

使用道具 举报

0

收听

8

听众

634

帖子

资深E粉

注册时间
2010-10-7
精华
0
发表于 2015-6-16 16:23:51 | 显示全部楼层
很有特色的装修风格 有点个性主题餐厅的感觉  我一直很喜欢白色文化石,但最后考虑到卫生难弄 还是放弃了
回复 支持 反对

使用道具 举报

0

收听

3

听众

271

帖子

E粉明星

注册时间
2015-5-22
精华
1
 楼主| 发表于 2015-6-16 16:37:30 | 显示全部楼层
有烟飘过 发表于 2015-6-16 16:23
很有特色的装修风格 有点个性主题餐厅的感觉  我一直很喜欢白色文化石,但最后考虑到卫生难弄 还是放弃了

我老婆也怕太多的文化石元素难打理,有些后期还要再改的。效果图和实际就是理想和现实那么大的差距。
回复 支持 反对

使用道具 举报

3

收听

1

听众

63

帖子

E粉新人

注册时间
2014-10-27
精华
0
发表于 2015-6-16 19:37:47 | 显示全部楼层
期待后续
回复

使用道具 举报

5

收听

1

听众

16

帖子

未认证商家

注册时间
2015-6-16
精华
0
QQ
发表于 2015-6-17 09:53:13 | 显示全部楼层
文化石这块儿的话,其实你可以考虑用墙纸代替的,很多墙纸可以做到这种效果。绿色的乳胶漆,后期搭配其实很出彩,上次华贸有个私装的客户,他家就是绿的,效果很出彩。
回复 支持 反对

使用道具 举报

0

收听

3

听众

271

帖子

E粉明星

注册时间
2015-5-22
精华
1
 楼主| 发表于 2015-6-17 10:28:48 | 显示全部楼层
不锈钢橱柜 发表于 2015-6-17 09:53
文化石这块儿的话,其实你可以考虑用墙纸代替的,很多墙纸可以做到这种效果。绿色的乳胶漆,后期搭配其实很 ...

谢谢建议,色调这块儿还在和设计师慢慢沟通。墙纸看情况而异,毕竟墙纸平面的难以有文化石的质感。
回复 支持 反对

使用道具 举报

5

收听

1

听众

16

帖子

未认证商家

注册时间
2015-6-16
精华
0
QQ
发表于 2015-6-17 10:37:02 | 显示全部楼层
要是这样的话,其实你可以考虑在文化石表面刷层清漆。这样卫生会好打理很多。

回复 支持 反对

使用道具 举报

0

收听

3

听众

271

帖子

E粉明星

注册时间
2015-5-22
精华
1
 楼主| 发表于 2015-6-17 10:51:53 | 显示全部楼层
  6 . 17雨
  昨天下了一夜大雨,一大早潮总就冒着大雨去了我家工地将昨天反映的整改结果QQ发了过来。对面上面有缝隙的墙体进行拆除重砌。并指出了新旧墙打孔拉钢筋的地点。保姆式家装服务还是值得肯定的
1.jpg

已经拆掉的上半部分。
2.jpg
3.jpg

指出墙上打孔插筋的地方。
4.jpg
重新砌墙。
回复 支持 反对

使用道具 举报

0

收听

8

听众

634

帖子

资深E粉

注册时间
2010-10-7
精华
0
发表于 2015-6-17 13:29:58 | 显示全部楼层
暴走的羊先森 发表于 2015-6-16 16:37
我老婆也怕太多的文化石元素难打理,有些后期还要再改的。效果图和实际就是理想和现实那么大的差距。

确实 无论从软装还是灯光,都不可能做到和效果图100%一样
回复 支持 反对

使用道具 举报

您需要登录后才可以回帖 登录 | 注册

本版积分规则

联系合作|手机版|手机APP|Archiver|

GMT+8, 2025-12-10 20:15 Powered by Discuz! X3.4

安庆E网生活网站 © 2001-2013 Comsenz Inc. ( 皖ICP备05012696号 )

QQ

安庆瑞易文化 地址:华茂1958-C7栋 联系电话:0556-5306667 联系邮箱:17779721@qq.com 互联网违法和不良信息举报电话和邮箱:0556-5306667 17779721@qq.com

皖公网安备 34080002000101号

    
快速回复 返回顶部 返回列表